Lectures on the rise and development of medieval architecture; vol. 2

by Sir George Gilbert Scott (1811~1878)

[Image of
the book's cover unavailable.]

Contents.
Index.

List of Illustrations
(In certain versions of this etext [in certain browsers] clicking on the image will bring up a larger version.)

(etext transcriber's note)

LECTURES

ON

THE RISE AND DEVELOPMENT

OF

MEDIÆVAL ARCHITECTURE

{i} 

{ii} 

{iii} 

{iv} 

[Image unavailable.]

J. LEI

Design Submitted for the New Law Courts, London.

Central Hall.

Sir Geo. Gilbert Scott R.A., architect

{v}

LECTURES

ON THE

RISE AND DEVELOPMENT


OF

Mediæval Architecture

Delivered at the Royal Academy


By Sir GILBERT SCOTT, R.A.,
F.S.A., LL.D., Etc.


IN TWO VOLUMES—VOL. II.

WITH ILLUSTRATIONS


LONDON
JOHN MURRAY, ALBEMARLE STREET
1879


The right of Translation is reserved.
{vi} 

{vii} 

Printed by R. & R. Clark, Edinburgh.

CONTENTS.

VOL. II.

LECTURE X.

Early Architecture in Great Britain.
Review of the developments in the early Architecture of our own land—Recent research in Central Syria—Examples in Northern Europe previous to the eleventh century—Early remains in Scotland and Ireland—Anglo-Saxon Architecture—Churches founded by St. Augustine—Canterbury and York—Churches at Hexham and Ripon—Ramsey Abbey—Winchester Cathedral—Destruction of Churches by Sweyn—Restoration and building by Canute—Roman models—Characteristics of Anglo-Saxon work—Brixworth Church, Northamptonshire Church on the Castlehill, Dover—Worth Church, Sussex—Bradford Church, Wilts—Chancel of Saxon Church at Jarrow-on-the-Tyne—Churches of Monk Wearmouth and Stow—Crypts at Wing, Repton, and Lastingham—Towers of St. Benet’s, Cambridge: Trinity Church, Colchester: Earls Barton: Barnach: Barton-on-Humber—Sompting, Sussex: and Clapham, Bedfordshire—Chapel at Greensted, Essex—Classification into periods of this form of ArchitecturePage 1
LECTURE XI.

Early Architecture in Great Britaincontinued.
Architecture of the Normans—St. Stephen’s at Caen—Canterbury Cathedral modelled on that of St. Stephen’s—Description of the Norman church built by the Confessor at Westminster before the Conquest—Instances of Anglo-Saxon architecture being used after the Conquest—Characteristics of the Norman style—Varieties of combination—Doors, windows, archways, arcades, and vaulting—Minor details—Mechanical ideal of a great Norman church—Vast scale and number of works undertaken by the early Norman builders Page 60
{viii}LECTURE XII.

Early Architecture in Great Britaincontinued.
Chapel of St. John, Tower of London—St. Alban’s Abbey—St. Stephen’s at Caen—Cathedrals of Winchester, Ely, London, Rochester, and Norwich—Abbey Church at Bury St. Edmund’s—Gloucester Cathedral—Tewkesbury Abbey—Cathedrals of Worcester and Durham—Waltham Abbey—Christchurch, HantsPage 92
LECTURE XIII.

The Practical and Artistic Principles of Early Architecture in Great Britain.
The close of the eleventh century—The “new manner of building”—Conditions necessary to an arcuated, as distinguished from a trabeated, style—First principles of Grecian and Roman architecture—Rationale of the arcuated style—Its developments—Cloisters of St. Paul without the Walls and St. John Lateran, Rome—Doorways—Windows—Vaulting over spaces enclosed by walls or ranges of piers—Simplest elements defined—Barrel-vaults—Hemispherical vaults or domes—Groined vaultsPage 133
LECTURE XIV.

The Principles of Vaulting.
Vaulting of spaces of other forms than the mere square—Apsidal aisles, St. John’s Chapel, Tower, and St. Bartholomew’s Church, Smithfield—Chapter-house and crypt, Worcester—Round-arched vaulting in its most normal form, as resulting from the barrel vault and its intersections—Short digression on another simple form of vault, the dome—“Domed up” vaults—“Welsh” groining—The square or polygonal dome—The Round-arched style of the twelfth century almost perfect—First introduction of the Pointed arch into vaulting—Names of the parts of groined vaulting—Two specimens in London of the apsidal aisle, one in the Round-arched, the other in the Pointed-arched style—Vaulting a polygon with a central pillar—Ploughshare vaulting—The artistic sentiment and character of early Gothic vaulting{ix}Page 161
LECTURE XV.

The Principles of Vaultingcontinued.
Certain practical points concerning vaulting—Ribs of early and late vaulting—Filling in of intermediate surfaces or cells—Methods adopted in France and England—Sexpartite vaulting—Crypt of Glasgow Cathedral—Choir at Lincoln—Chapter-house, Lichfield—Caudebec, Normandy—Octagonal kitchen of the Monastery, Durham—Lady Chapel, Salisbury—Segmental vaulting—Temple Church—Lady Chapel, St. Saviour’s, Southwark—Westminster Abbey—Intermediate ribs—Presbytery at Ely—Chapter-houses of Chester and Wells—Exeter Cathedral—Cloisters, Westminster—“Liernes”—Ely Cathedral—Chancel, Nantwich Church—Crosby Hall and Eltham Palace—Choir at Gloucester—Winchester Cathedral—Fan-vaulting—Cloisters at Gloucester—King’s College Chapel, Cambridge—Divinity Schools, Oxford—Roof of Henry VII.’s Chapel, Westminster—Ideal of its designPage 190
LECTURE XVI.

The Dome.
Non-existence of the Dome in our old English architecture—Highly developed forms in France, Germany, and Italy, contemporary with our great Mediæval edifices—Suggestions for its introduction into our revived and redeveloped Neo-mediæval style—So-called Tomb of Agamemnon at Mycenæ—The Pantheon—Temple of Minerva Medica—Torre dei Schiavi—Temples of Vesta at Rome and Tivoli—Temple of Jupiter in Diocletian’s Palace, Spalatro—Tomb of St. Constantia—Baptistery at Nocera—Baptistery at Ravenna—Important domical development—“Pendentive Domes”—Early specimens—Pendentive domes the special characteristic of the Byzantine style—How this originated—Further domical developments—Cathedral at Florence—Churches of SS. Sergius and Bacchus, the Apostles, and St. Sophia, ConstantinoplePage 228
LECTURE XVII.

The Domecontinued.
St. Irene, Constantinople—Church of San Vitale, the type, three centuries later, of Charlemagne’s Church at Aix-la-Chapelle—Two influences at work leading to the introduction and adoption of the dome into Italy—From thence into the south-west of France—Baptisteries at Florence and Parma—Cathedral at {x}Sienna—St. Mark’s, Venice—Santa Fosca near Venice—Domes having pointed arches for their support—St. Front and La Cité, Perigueux—Angoulême—Fontevrault—Auvergne—Ainay near Lyons—Pendentives in many French churches give place to corbels—The modern type of dome—Cathedral at Florence—St. Peter’s, Rome, and St. Paul’s, LondonPage 255
LECTURE XVIII.

Architectural Art in reference to the Past, the Present, and the Future.
Sculpture and Painting arise directly from artistic aspirations, Architecture from practical necessities beautified—Architecture, as distinguished from mere building, is the decoration of construction—The History of Architecture has never been viewed as an object of study previous to our own day—Phases of the study—Dangers to be avoided—History of Architecture is the history of civilisation—Western distinct from Eastern civilisation, and to be studied separately—Source of our branch—Its development and progressive stages—The Gothic Renaissance—Advice to the architectural studentPage 290

{xi}

LIST OF ILLUSTRATIONS
CONTAINED IN VOL. II.

FIG.
Design for the Central Hall, New Law Courts, LondonFrontispiece.
 PAGE
193. Stone House, Arran16
194. Oratory of St. Gallerus16
195. Teampull Sula Sgeir, Scotland. Elevation and Plan17
196. Teampull Rona, Scotland. Interior and Plan17
197. Teampull Beaunachadh, Scotland. East and West Ends17
198. Teampull Caeunanach, Ireland18
199. Leather Book-case21
200. Timahoe, Window from22
201. Chapel of St. Cormac at Cashel. Exterior23
202. Do. do. Interior23
203. Church of St. Regulus, St. Andrews, North and East Elevations24
204. Do. do. Plan24
205. Do. do. Details25
206. Brixworth Church, Northamptonshire. Plan and General View39
207. Do. do. Sections across Nave41
208. Church on the Castle-hill, Dover. Plan41
209. Do. do. View from the South-west42
210. Do. do. Section of Window Jambs, showing Wood frames for the Glass43
211. Church on the Castle-hill, Dover. Upper Western Door43
{xii}212. Do. do. Eastern Tower Arch43
213. Do. do. Saxon Balusters43
214. Worth Church, Sussex. General View44
215. Do. do. Plan44
216. Do. do. Transept Arch44
217. Do. do. Chancel Arch44
218. Bradford, Wilts. Church at. Plan and East end46
219. Do. do. South Elevation, North Door and Porch46
220. Jarrow-on-the-Tyne, Church at. Baluster Columns48
221. Monk Wearmouth, Church at. Western Entrance49
222. Repton Church, Derbyshire. View of Crypt51
223. Do. do. Plan of Crypt51
224. St. Benet’s, Cambridge. Tower52
225. Trinity Church, Colchester. Do.53
226. Earls Barton, Northamptonshire. Do.54
227. Barton-upon-Humber, Lincolnshire. Do. and Western Porch54
228. Barnach, Northamptonshire. Do.55
229. Sompting, Sussex. Do.56
230. Chapel at Greensted, Essex. View57
231. Do. do. Plan57
232. Saxon Door Jamb. Diagrams76
233. Norman Door Jamb and Arch. Do.76
234. Jambs of Doorways. Do.78
235. Groined or Intersecting Vaulting. Do.79
236. Do. Do.79
237. Anglo-Saxon mouldings. Do.84
238. Norman mouldings. Do.84
239. Do. development of Do.84
240. With reference to the Capital. Do.85
241. Mechanical Ideal of a great Norman Church. Do.88
242. St. John’s Chapel, Tower of London. Plan92
243. Do. do. View looking East93
{xiii}244. Do. do. View of South Aisle94
245-247. Do. do. Capitals95
248. St. Stephen’s, Caen. Capitals from96
249. Lincoln Cathedral. Do.97
250. St. Stephen’s, Caen. Plan98
251. St. Alban’s Cathedral. Do.99
252. Do. View of, at the close of the 11th Century100
253. Do. Sectional view of Nave101
254. Do. Balusters102
255. Do. Belfry stage of Tower103
256. Winchester Cathedral. Plan of Transept Piers105
257. Do. View of the Crypt108
258. Do. The Nave109
259. Ely Cathedral. Abbot Symeon’s Plan110
260-261. Do. Transept Piers111
262-263. Do. Nave Piers112
264. Norwich Cathedral. Plan117
265. Do. View of Part of Nave119
266. Abbey Church, Bury St. Edmund’s. Plan120
267. Gloucester Cathedral. View of the Crypt121
268. Waltham Abbey. Nave Piers125
269. Durham Cathedral. PlanTo face 127
270. Do. View of part of Nave “129
271. Do. Nave Piers128
272. Do. Gabled roofing to the Aisles129
273. Christchurch, Hants. Stair-turret, North Transept131
274-285. Development of an arcuated style. Diagrams139-142
286. Canterbury Cathedral. Capital from the Crypt142
287. Ely Cathedral. Capital from143
288-293. Development of Piers and Jambs. Diagrams143-144
294. St. Paul without the Walls, Rome. Cloisters of145
295-308. Development of Piers. Diagrams146-148
309-311. Do. Jambs. Do.150
{xiv} 312.St. Leonard’s Priory, Stamford. Part of Western Entrance151
313-318. Diagrams explanatory of Groined or Intersecting Vaulting153-157
319. Church of the Holy Trinity at Caen. View of the Crypt157
320. Canterbury Cathedral. View of Crypt158
321. Durham Cathedral. View of Crypt159
322-326. Developments in the system of Vaulting. Diagrams162-164
327. St. John’s Chapel, Tower of London. Apsidal Aisles of165
328. St. Bartholemew’s Church, Smithfield. Do.165
329. Do. do. Plan of Apse165
330. Worcester Cathedral. Chapter-house167
331. Do. Plan of Crypt167
332. Do. View of Crypt168
333-348. Vaulting by means of the Dome. Diagrams169-175
349. Diagram explanatory of the various parts of a Groined compartment 182
350. Westminster Abbey. Vaulting of Aisle round Apse184
351-352. Vaulting a Polygon with a Central Pillar. Diagrams184
353. Westminster Abbey, Chapter-house. View ofTo face 185
354. Vaulting with Raised Ridges. Diagram186
355. St. Saviour’s, Southwark. Vaulting of Cells adjoining the Clerestory 187
356-372. Ribs, Filling-in and various forms of Vaulting. Diagrams191-198
373. York Cathedral, Chapter-house. Plan and view of Vaulting199
374. Glasgow Cathedral. Plan of Vaulting of the Crypt under the Choir200
375-378. Plans of Vaulting of the Choir, Lincoln; Chapter-house, Lichfield; Kitchen of the Monastery, Durham; and the Lady Chapel, Southwark  202-205
379. Westminster Abbey. St Faith’s Chapel. View looking East206
380. Do. do. do. WestTo face 207
381-383. Intermediate Ribs in Vaulting. Diagrams208-209
384. Westminster Abbey. Vaulting West of the Crossing209
{xv} 385.Chester Cathedral. Chapter-house210
386. Crosby Hall, London. Plan and View of lierne vaulting to Oriel214
387. Eltham Palace, Kent. Plan and View of lierne vaulting to Oriel215
388. Gloucester Cathedral. Plan of Choir Vaulting215
389-390. Fan Vaulting. Diagrams218
391. King’s College, Cambridge. Plan of Vaulting219
392. Gloucester Cathedral. View of Cloisters220
393. Christ Church, Oxford. View of Staircase Ceiling221
394. Do. do. Plan do.221
395-397. Henry VII.’s Chapel, Westminster Abbey. Plans and Views of the Vaulting223-224
398. Divinity Schools, Oxford. View of Fan-Vaulting225
399. Henry VII.’s Chapel, Westminster Abbey. Plan of Vaulting of Apse226
400. Pantheon, Rome. Plan231
401. Do. do. Half Elevation and Half Section of Exterior and Interior  232
402. Temple of Minerva Medica. Plan and Section235
403. Do. Jupiter, in Diocletian’s Palace at Spalatro236
404. Tomb of St. Constantia, Rome. Plan237
405. Baptistery at Ravenna. Plan and Section239
406-411. Domical Developments. Diagrams240-242
412. Tomb in the Via Nomentana, Rome. Section243
413. Double Gate, Temple Area at Jerusalem. View of243
414-419. Pendentive Domes. Diagrams244-247
420. SS. Sergius and Bacchus, Constantinople. Plan248
421. Do. do. Section248
422-423. Ideal of the Plans of the Church of the Apostles and of St. Sophia, Constantinople. Diagrams250
424. St. Sophia, Constantinople. Plan251
425. Do. do. Longitudinal SectionTo face 252
426. St. Irene, do. Section256
427. St Sophia, do. do.256
{xvi} 428.Church of the Holy Theotokos. Plan257
429. Do. Section257
430. St. Nicodemus, Athens. Plan and Section258
431. St. Vitale, Ravenna. Plan259
432. Do. Section259
433. Church at Aix-la-Chapelle. Plan and Section260
434. Baptistery at Florence. Plan261
435. Do. do. Section262
436. Do. at Parma. Plan263
437. Do. do. Section263
438. Cathedral at Sienna. Plan264
439. St. Mark’s, Venice. Do.265
440. Do. Cross Section266
441. Do. Longitudinal Section267
442. Santa Fosca, Torcello. Plan268
443. St. Front, Perigueux. Do.271
444. Do. do. Section272
445. Do. do. Interior View of272
446. La Cité, Perigueux. Do.273
447. Church at Angoulême. Plan274
448. Do. Interior View of274
449. Church at Fontevrault. Plan275
450. Nôtre Dame du Pont, Clermont. Interior View276
451. Cathedral at Florence. Plan and Section279
452. St. Peter’s, Rome. Section looking North To face 281
453. St. Paul’s, London. Half Elevation and Half Section looking East To face 283
454. St. Paul’s, London. Ground Plan286
455. St. Peter’s, Rome. Do. To face 286
456. Design for the Central Dome, Houses of Parliament, BerlinTo face 289

{1}

LECTURE X.

The Transition.

Review of the developments in the early Architecture of our own land—Recent research in Central Syria—Examples in Northern Europe previous to the eleventh century—Early remains in Scotland and Ireland—Anglo-Saxon Architecture—Churches founded by St. Augustine—Canterbury and York—Churches at Hexham and Ripon—Ramsey Abbey—Winchester Cathedral—Destruction of Churches by Sweyn—Restoration and building by Canute—Roman models—Characteristics of Anglo-Saxon work—Brixworth Church, Northamptonshire Church on the Castlehill, Dover—Worth Church, Sussex—Bradford Church, Wilts—Chancel of Saxon Church at Jarrow-on-the-Tyne—Churches of Monk Wearmouth and Stow—Crypts at Wing, Repton, and Lastingham—Towers of St. Benet’s, Cambridge: Trinity Church, Colchester: Earls Barton: Barnach: Barton-on-Humber: Sompting, Sussex: and Clapham, Bedfordshire—Chapel at Greensted, Essex—Classification into periods of this form of Architecture.

IN commencing a series of lectures in my capacity as the official occupant of this professorial chair, I feel in some degree shackled by the circumstance that, though the office is new to me, its duties (so far as the lectures go) are not so: inasmuch as, during the latter years of the tenure of this office by our venerated Professor Cockerell, I was, in conjunction with Mr. Smirke, called upon to occupy the place from which ill-health and infirmity compelled him to be absent; and at a later time I have done the same for my immediate predecessor, Mr. Smirke, when circumstances inter{2}fered, for one season, with his lectures. I have, consequently, already given nine lectures from this chair without being its rightful occupant; and, now that I commence officially, I find the novelty of anything I might have had to say in a great degree worn off by anticipation. I have consequently been puzzled whether to begin afresh or to go on from the point I had reached. The former would, perhaps, be the most correct course; but, after long uncertainty, I feel it to be too artificial to sever what I said out of office from what I have to say in office, and I have determined to link my future lectures on to those which have preceded them. I shall also for the present limit myself to Mediæval architecture as the subject on which I have been engaged.

In my previous lectures I have given an outline of the development of Pointed architecture from the preceding round-arched style, and followed on with some practical suggestions as to the study of these phases of architecture. In them I have treated equally of foreign and English buildings, or have, perhaps, dwelt more at length on the former, and have carefully traced the connection of English with French architecture as they grew up, side by side, from the common germ, each to its glorious perfection.

I purpose now to fall back upon the commencement of this series of developments, and, while I go more in detail into the varied features of the architecture of these periods, to limit myself, during the present session at least, very much to its English productions.

My reason for this is, that we have of late been directing our attention too exclusively to foreign{3} buildings, greatly to the neglect of our own,—so much so, that many of our architectural students seem to be as little acquainted with the Mediæval works of their own country as if they were brought up in Italy or France.

I hold the study of the contemporary buildings of neighbouring countries, especially those of France, to be essential to the due understanding of our own, and of the style as a whole; but this affords no excuse for the neglect of English architecture, to which, beyond all question, we are bound, as English architects, to direct our primary attention, and which will repay our study by a series of special beauties of its own, which have of late years been almost wholly overlooked.

In reviewing the changes in the architecture of our own country, it may be wholesome to begin early:—to “look at the rock whence we were hewn, and to the hole of the pit whence we were digged.” A retrospect such as this gives rise to some curious reflections. At one time we feel perplexed by the depth of antiquity into which we are directing our view, and at another with the very reverse of this. When we go beyond the Norman Conquest,—beyond the destructive ravages of the Danes,—through the half-mythic times of the Heptarchy and the heroic age of the Pagan Saxons; and, again, beyond the destruction of the Roman arts; through the mystic and hazy age which intervened between the withdrawal of the Roman and the conquest by the Saxon; again, through the four centuries of Roman domination into the unknown abyss of prehistoric Britain, what a vast lapse of time does it represent! Yet the earliest period we thus{4} reach is, nevertheless, some four centuries subsequent to the close of the Old Testament history and the period of Pericles and Phidias, and perhaps fifteen centuries subsequent to many of the great monuments of Egypt!

Archaic art seems to have the power of reproducing itself; and even the ages of heroic and barbaric myth may re-occur after periods in which society and civilisation may appear to have worn themselves out by over-refinement; and thus, when we attempt to trace out the early Christian architectural arts of the nations of Northern Europe, we find ourselves as much in the mist of antiquity as if we were prying into that which preceded the Pyramids or the earliest palace of Nimroud, though we are in reality examining works subsequent to the time when the empire of Rome fell to pieces from sheer old age.

In taking an enlarged view of Mediæval architecture, we must view it in two distinct but at the same time united aspects; we must view it as the architecture indigenous to the modern as distinguished from the ancient civilisation; but we must also view it as having been developed upon an antique nucleus.

There are also two other separate, though united, views which we ought to take of it. We should view it, on the one hand, as the work of men elaborating, as from the beginning, a new system of art on the mere reminiscences of an old and defunct system,—absolutely defunct as relates to the northern races,—but we should view it also as, all the while, aided by the yet living art of the Eastern Empire and by the smouldering embers of that of Rome itself.{5}

In some districts there may have been a tradition remaining of some old method of building which had prevailed among the Pagan, Celtic, or Teutonic tribes; but the germ may generally be said to have been Roman or Byzantine, founded on reminiscences, and aided, from time to time, by direct communication.

The two great divisions of Mediæval architecture are, firstly, that which preceded, and, secondly, that which followed the great transition of the latter half of the twelfth century. The whole may be viewed as the one great development of arcuated construction into a style of art, and its two great divisions are the round-arched and the pointed-arched styles.

It is my purpose during the present session to limit myself very much to the former; but viewing it, not only in its own bearings, but also as the precursor of the latter. Though I intend to choose my illustrations almost wholly from buildings in our own country, it would be taking a very narrow view of our subject if we were to consider the great round-arched style otherwise than as a whole, and our own portion of it other than as a branch of that mighty bifurcated tree whose boughs, whether growing from its eastern or its western stem, spread themselves over the whole civilised world.

It has been well remarked, by Mr. Freeman, in his History of Architecture, that the ancient Roman manner of building was essentially an arcuated style, though its true character was artificially overlaid by the features belonging to the purely trabeated style of Greece; and that the whole course of change through which it, in after ages, passed, may be described as the{6} gradual throwing off the trabeated overlayings and the perfecting into an architectural style its vital germ,—the arcuated system.

This process was carried on equally in the East as in the West, though under circumstances accidentally differing. The two great metropolises of the Christian Roman empire, commencing with the same architecture, gradually changed it into two distinct branches, though clearly belonging to the same great trunk. In both the changes or developments took for their starting-point the architecture, not of Greece, but of Rome. In the West, they continued to follow the natural suggestions of that style, influenced deeply by the changed religion, and subsequently curbed and held down, first by the removal of the seat of government to Constantinople, and then by the continuous waves of the northern invaders who gradually brought down to a very low ebb the civilisation and arts of the Western empire.

In the East, the influence of the Christian worship was at least equally deep; while the presence of the imperial court and government offered greater advantages to development, and the accidental preference for domed construction gradually gave a wholly new tone to the general character of the architecture, while the proximity of ancient Greek remains had a very strong influence on the ornamentation.

Different, however, as is the general aspect of a Byzantine and Romanesque building,—especially when the former assumes its crowning feature, the dome,—it cannot be denied that they are, nevertheless, the same style in two phases; and that there is no such contradiction between them as to forbid their amalga{7}mation to any extent. In proof of this, we have the not incongruous character of the Crusaders’ buildings in the East, in which the dome was not forbidden; the similarity to Romanesque of such of the Byzantine buildings as do not happen to have domes; the introduction into France of the domed architecture by a colony of Greeks; the admission of much that is Byzantine into the Romanesque buildings of Germany; and finally, the very extensive use of purely Byzantine foliage and other forms of ornamentation into the buildings of Western Europe in the twelfth century. This last-named circumstance I have dwelt upon at length in one of my former lectures, and I shall, no doubt, have frequent occasions again to allude to it. The fact is, that the ornamentation of the later examples of the Romanesque style is for the most part rather Byzantine than Roman in its origin: even the acanthus-leaves in the capitals and cornices more resembling those of the monument of Lysicrates than those of any Roman building; while the surface ornaments—so profusely used—are often traceable to the patterns of the various manufactures of the East, so largely imported into Western Europe.

Much light has recently been thrown upon the Byzantine style, especially in respect of its secular productions, through the discovery by the Count de Vogüé of a vast number of ruined towns in the mountains of Central Syria, which have remained almost untouched (except by time and earthquakes) just as they were deserted in the seventh century on the approach of the first Mahometan invaders. These remarkable remains give us the connecting link between{8} Classic and Mediæval art, though greatly influenced by the traditional mode of building belonging to Syria. It is a subject which would need a separate lecture to deal with it as it deserves, and I only mention it here for the sake of saying that the carved ornamentation of these remarkable buildings is Greek in its feeling,[1] and not Roman, and that it is evidently allied to that imported at a much later period into Western Europe; and which especially characterises the buildings of the twelfth century in France, and (though less constantly) in England; all tending to establish the essential unity of the round-arched architecture of the early Middle Ages, and the fact that the East and the West were much more united in artistic affinity than has generally been admitted.

My main object at the present time is to trace the history, and investigate the character of those branches of this great round-arched style which have developed themselves in our own country: and my purpose in the foregoing remarks has been to lead you to view our own architecture, not as an essentially separate style, but as a part of that which pervaded Christian Europe, and extended till the Mahometan invasion, far both into Asia and Africa, which was the nucleus even of the Mahometan styles, and which in Sicily (as in the Holy Land and in Spain) again met and coalesced with its infidel offshoot, and produced by this reunion the noble architecture of Palermo, and other cities of Northern Sicily.

Among all the races of Northern Europe, who were either conquered by Rome, or aided in the overthrow{9} of her empire, I do not know that any has left a vestige of what may be viewed as indicating, in any intelligible manner, the previous existence among them of a distinctive style of architecture. Stonehenge and the cromlechs can hardly be viewed as exceptions; and, when the Angles and Saxons invaded Britain, they found, so far as we know, no architecture but the Roman, nor brought with them any of their own; while, to make matters worse, they seem to have devoted themselves to the destruction of what they found.

What was the character of their buildings while they continued Pagan, we have no means of judging. We have proofs that timber was their most customary material, though it would be unreasonable to suppose that they were unable to build in stone. It is likely enough that their houses were generally of wood, for such was the case throughout the Middle Ages, and continues to be so to this day, where timber is abundant. Many of the churches afterwards were of the same material; but such also has at all periods been the case when dictated by local circumstances, and is still frequent in our colonies, so that it is insufficient to disprove the contemporary use of stone.

There is a curious parallelism in this respect between the buildings of ancient Greece, of Etruria, and of England. In Greece we find clear proofs of the architectural style having been founded on timber construction, though the Cyclopean walls, etc., of the primæval cities (whether the works of the same or a different race) forbid the thought that the use of stone was ever unknown. In Etruria we find no less{10} gigantic walls, though we learn from Vitruvius that timber entered largely even into the construction of their temples, and suggested the peculiarities of the Tuscan order. If, then, in Saxon England we find the words “to build” to be derived from timber;—if we learn from early writers that the majority of their buildings were of wood; and if we find in their stone buildings indications of their imitating the construction of timber framing, we need no more conclude that our forefathers were ignorant of stone building, where it was needful, than that the early Greeks or Etrurians used timber from ignorance of the use of stone.

They were colonists, though conquerors. They were, no doubt, but very partially civilised; and, settling down as strangers in a country from which they had driven out the old inhabitants, and whose towns they had in great measure destroyed, they were likely (as colonists do in our own day) to make the largest use of the material most ready to their hand, and to defer to more settled times the use of a more permanent manner of building.

The paucity of remains of buildings of the period between the dissolution of the Roman Empire in the West and the eleventh century, is by no means peculiar to our own country. Throughout Northern Europe the same fact prevails. The earlier waves of northern invaders were absorbed in the old civilisation, but each successive wave made a deeper and a deeper inroad into the remaining arts of the old world. It was natural then, that, on the return of art and civilisation, the works of this dark period should be deemed unworthy of preservation, and were replaced by new{11} erections. In our own country the Romans had not been overcome, but had simply withdrawn, so that the dissolution of art was a more rapid work than in most other parts of the old empire, while the early efforts of the Saxons were over and over again destroyed by the yet uncivilised and unchristianised Scandinavians, from the last of whose devastations there was hardly time to recover before the Anglo-Saxon monarchy was overthrown by the Normans. No wonder, then, that the conquerors, though but then become adepts in architecture themselves, should disdainfully reconstruct nearly all the churches and greater edifices of their predecessors in that new manner of building in which they had been so recently instructed, and for the carrying out of which their conquest had supplied them with such ample means.

It would be a curious and interesting investigation to trace out the history of what may be styled the Primitive Romanesque architecture of Northern Europe; or, in other words, to examine into the style of building which prevailed during the long interval between the overthrow of the Roman power in the fifth century and the final establishment of that family of nations which for the last eight or nine centuries has been the embodied representative of Europe.

The thousandth year of our era seems as if it were the beginning of a new state of things: as if what succeeded it were in the open daylight, while the six preceding centuries could only be viewed by the glimmer of twilight. This is especially the case as regards our own art. How little do we know of the architecture of Western Europe, north of the Alps, during that{12} long interval! Only here and there a building equally obscure in character and date,—a dull ray of light only just sufficing to render the darkness visible. No doubt a careful investigation would increase the number of known examples on the Continent. At present they are but few, such as the Basse-œuvre at Beauvais; the Church of St. Jean at Poictiers; that of Quenqueville in Normandy; the church at Lorsch, on the Rhine, and the older parts of St. Pantaleon at Cologne; all of which possess a character so distinct from that which prevails among the buildings of succeeding times as quite to sever from all which followed the architecture of these primitive ages,—this gulf which divides the ancient from the modern world.[2] Our business, however, at present, is not with the Continent, but with the sister islands of Britain.

The circumstances of the various portions of the British Isles differed in those early times so much one from another, that it is difficult to view them at all systematically. South Britain, early overspread with Roman art, civilised and Christianised, while Scotland and Ireland were yet barbarous and Pagan, became again, in its turn, both Pagan and barbarous when Ireland and Scotland had received the light of Christianity and civilisation.

Early in the fifth century these blessings had been conveyed to Ireland from then Christian Britain, and in the next century South Britain was sunk in almost impenetrable darkness, and was subsequently beholden{13} to Ireland and the Irish race dwelling in Scotland, on the one side, and to missionaries from Rome on the other, for rekindling the extinguished lamp of religion and knowledge.

Of all the churches which must have existed in what is now England when inhabited by the old Britons, I am not sure that we possess a single relic; nor is there any certainty that even in Wales or Cornwall, where they were comparatively undisturbed, the case is much better. More curious still is the scarcity of early buildings in Scotland; though I shall be able to show you that some exceptions exist. Bede speaks of timber building as the “Mos Scotorum” and of stone building as “Mos Britonibus insolitus,” which may account for this dearth of objects of high antiquity. However this may be, we have to look mainly to Ireland for relics of the early modes of building among the British races; and here we happily find much to gratify our curiosity.

It was early in the fifth century that Patricius or St. Patrick (who describes himself as at once a Briton and a Roman), went from the northern parts of Roman Britain to instruct the then Pagan Irish, or, as they were more generally called, Scots. It was about the time when the invasion of Alaric had compelled the Emperor Honorius to withdraw his legions from Britain; and was, consequently, at the precise moment when our country was about to pass from the age of Roman subjection into that of mythic confusion,—beginning with the frightful devastations of the Picts and Scots, and subsequently of the Saxons; passing on through the semi-fabulous days of Vortigern, King{14} Arthur, and Merlin, and ending with the flight of Cadwallader from desolated Britain; the driving out of the ancient inhabitants; the destruction of Christian churches and Roman cities, and the re-establishment of Paganism.

As there seems good reason to believe that, among the existing remains in Ireland, some are actually of the age of St. Patrick, it follows that in them we possess remains two centuries earlier than any left us by our own Anglo-Saxon forefathers, and that their type may be founded on that of the lost British buildings, though no doubt far humbler in scale and mode of building than those erected in South Britain with Roman aid. The Early Irish remains are mainly of three classes: the cells and other domestic buildings of the monks: the oratories and churches; and the round towers. The former class are of the rudest and most ascetic description, and seem to be founded on the customary dwellings of the Pagan inhabitants. The monks evidently eschewed all pretensions to personal comfort, and took up at once with the scale of dwelling common among their flock. They lived in stone huts, built without mortar, and vaulted over; more like ovens than human habitations, and so small as only to be sufficient for one person. With these they surrounded their churches, adding a few buildings, similar in character but somewhat larger, for more general purposes. Some, even of their oratories, were almost as pristine in their construction; and the churches themselves, though less rude, were of the most severe simplicity.

The form of dwelling indicated by the Cells or “Kills” which I have alluded to is not wholly alien to{15} that still existing (or at least in use at the commencement of the present century) in the distant island of St. Kilda, excepting that the cells were for one person while the St. Kilda houses are for a family. Dr. Edward Daniel Clark thus describes these houses in 1797:—“The construction of their dwelling-houses differs from that of all the western islands. They consist of a pile of stones without cement, raised about 3 feet or 4 feet from the ground, forming a small oblong enclosure, over which is raised a covering of straw, bound together with transverse ropes of bent.... Round the walls of their huts are one or more arched apertures, according to the number of the family, leading to a vault, like an oven, arched with stone, and defended strongly from the inclemency of the weather; in this they sleep. I crawled on all-fours, with a lamp, into one of these, and found the bottom covered with heath; in this, I was informed, four persons slept. There is not sufficient space in them for a tall man to sit upright, though the dimensions of these vaulted dormitories varied in each hut, according to the number it was required to contain, or the industry of the owners.”

The central apartment he describes as without either chimney or window, but with two holes, some 7 inches square, to let out a little of the peat smoke.

There exists in the greater island of Arran, in the Bay of Galway, among many primæval antiquities, a house (Fig. 193), supposed to be of the Pagan period, which is thus described by Mr. Petrie, in his admirable work on the Ancient Architecture of Ireland:—“It is in its internal measurement 19 feet long, 7 feet 6 inches{16} broad, and 8 feet high, and its walls are about 4 feet thick. Its doorway is but 3 feet high, and 2 feet 6 inches wide on the outside, but narrows to 2 feet on the inside. The roof is formed, as in all buildings of this class, by a gradual approximation of stones laid horizontally, till it is closed at the top by a single stone; and two apertures in the centre served the double purpose of a window and a chimney.”

[Image unavailable.]

Fig. 193.—Stone House, Arran.

The cells of the monks differed but little from this, excepting in being quadrangular within, though round or oval without. It would appear that some of the Irish monasteries had whole towns of such insulated cells, and it was from the great number of these erected by St. Columba that his name received the affix of “Kill,” and which caused his famous foundation in Iona to be called “I Colmkill.”

The earlier oratories seem frequently to have been a development of the construction of these cells, “built of uncemented stones admirably fitted to each other, and their lateral walls converging from the base to their apex in curved lines.”

[Image unavailable.]

Fig. 194.—Oratory of St. Gallerus.

These pristine oratories are surrounded by the cells and the graves of their founders{17} and occupants, the latter inscribed with the cross. I give, from Mr. Petrie, a sketch of the oratory of St. Gallerus (Fig. 194), which he describes as, externally, 23 feet long by 10 feet broad, and 16 feet high to the external apex. It has a small doorway in the west end, and is lighted by a single window in the east end, which east gable was finished by a cross. Of very similar construction are several in Scotland and the Western Isles. Of these I have been enabled to give some illustrations, which are, in one respect, more complete than Mr. Petrie’s drawings, inasmuch as they are furnished with plans (Figs. 195, 196, 197).

[Image unavailable.]

Fig. 195.—Elevation of south side, and Plan of Teampull Sula Sgeir, Scotland.

[Image unavailable.]

Fig. 196.—Interior, west end, and Plan of Teampull Rona, Scotland.

[Image unavailable.]

Fig. 197.—Teampull Beaunachadh, Scotland. The Chapel of St. Flann, in the Flannan Isles.

East end. West end.

“The early Irish churches are of two very simple types, being either oblong (Fig. 198), with a door at the{18} west, and a window at the east end,—a mere development, with upright walls, of the oratories just described,—or a double oblong, forming a nave and chancel, and united by a chancel arch.... The one doorway is always west, and one of the windows to the east, though side windows are also introduced, all apparently without glass; the doorway usually square-headed, the windows round-arched, or triangular-headed.” “In all cases the sides of doorways and windows incline, like the doorways in the oldest remains of Cyclopean buildings, to which they bear a singularly striking resemblance.” “In the smaller churches the roofs were frequently formed of stone, but in the larger ones were always of wood.”

[Image unavailable.]

Fig. 198.—Teampull Caeunanach, Ireland.

The doorways are, however, sometimes arched. The apsidal termination is, I believe, wholly unknown in these churches; and it would appear from this fact that the square end of the majority of English chancels is a tradition from the ancient British churches: the apse, which so frequently made its appearance and was again so frequently removed, being a foreign importation, against which the national feeling rebelled, as if opposed to local tradition. Of a piece with this feeling was the indignant protest of a Scotchman against the intention of one St. Malachy to erect a church in an unaccustomed style. “Good man, what has induced you to introduce this novelty into these regions? we are Scots, not Gauls; why this levity?{19} Was ever work so superfluous, so proud!” This feeling, rather than the poverty of the country, may have occasioned the rigid severity of these early churches in Ireland, the largest of which rarely exceeded 60 feet in length,—the very length prescribed by St. Patrick for one of his churches, and which Mr. Petrie thinks was his usual dimension for churches of the largest class. This was also the length of the original church at Glastonbury, probably the first erected in Great Britain, while it differs but slightly from that of the naves of Brixworth Church, Worth Church, and that on the Castlehill at Dover, three of our oldest remaining pre-Norman English churches.

The difficulty naturally arising from the limited size of the churches and the unlimited numbers of the monks, appears to have been met by multiplying the number of the former. Thus we find several—up to seven—churches continually forming a single group. Just as at Glastonbury, there were at one time three in immediate proximity, though subsequently united into one.

Besides the more or less numerous cells which surrounded the churches, or groups of churches, there were usually houses for the abbots, hardly less ascetic in their construction than the cells of the monks; halls for strangers, refectories, and kitchens. Of the abbots’ houses we have several remaining, especially those of St. Columba at Kells, and of St. Kelvin at Glendalough. These were single rooms, about 18 feet to 25 feet long, by 15 or 16 feet wide, vaulted and covered by a stone roof, with a window{20} and a door of very small size, all perfectly plain, but skilfully constructed.

All such groups of buildings were surrounded by a high and thick wall of defence, with strong gateways, and somewhere at hand was often erected a round tower, at once the bell-tower of the monastery and the place of refuge in case of attack.

We know nothing of the internal arrangement of the churches, excepting that in some cases there is a stone bench across the east end, the altar standing a little in advance; a square version of the Basilican arrangement; for, be it remembered, the apse possibly only came into use when secular Basilicæ were converted into churches, while those under consideration were probably founded upon the traditions of churches which existed in Britain before the time of Constantine, so that our English square east-end may after all be the more primitive type, and if such were the case, it would appear that the seats of the clergy were at first along the eastern wall and behind the altar, as in the apsidal churches. To these views, however, I will not pledge myself, as we do not know how soon apses came into use.

This system, too, of erecting monasteries, not with general dormitories, but with numerous private cells, seems to have been founded on the early Eastern form, of which so many existed in the deserts of the Thebaid, and of which many ancient notices exist. The most perfect remaining specimen of this kind of monastery in Ireland is one on a most minute scale founded by St. Fechin, in the seventh century, in the almost inaccessible island of Ardoilen, off the coast of Conne{21}mara, which, excepting only that all its buildings are vaulted, agrees almost precisely with Bede’s description of that founded about the same time in the island of Farne, on the Northumbrian coast, by St. Cuthbert, himself a Scot or perhaps an Irishman. Those in the north of Ireland and in Scotland seem to have been usually of timber, “more Scotorum,” as Bede says, and have consequently perished; but in the south and west of Ireland they were of stone, and remain, in many instances, in a more or less complete state to our own day.

Some, however, in Scotland, were of stone, like those of Ireland.

[Image unavailable.]

Fig. 199.—Leather Book-case.

It was in these establishments,—so severely simple in their architecture,—that the lamp of piety and learning was preserved during the darkest period of our history; sending forth its light not only among the British islands but to Continental Europe; and here were followed up even the decorative arts,—as illumination, embroidery, and jewellery. Such, no doubt, was the famous monastery of Iona, which, as an able historian says, “soon became, morally and religiously, a spectacle as glorious as any that Christendom could afford.... The school, of whatever knowledge, sacred or profane, was then within the reach of the northern people,—the nursery of many arts, the centre of a Christian colony, and the mother of priests and missionaries.{22}

It was on landing here that Dr. Johnson exclaimed:—“We are now treading that illustrious island which was once the luminary of the Caledonian regions, whence savage clans and roving barbarians derived the benefits of knowledge and the blessings of religion.... That man is little to be envied whose patriotism would not gain force upon the plain of Marathon, or whose piety would not grow warmer among the ruins of Iona.”

[Image unavailable.]

Fig. 200.—Window, Timahoe.

At somewhat later periods the severity of the Irish architecture became gradually relaxed, while its leading types remained unaltered. As the dates of the more decorative buildings are unsettled, I will not enter upon the discussion how far their ornamentation was indigenous, and how far derived from other countries. Towards the Norman period, we find features agreeing with the details of that style united with Irish forms and mixed with ornamental details,—such as those which decorate the well-known Irish crosses, and are common on the monumental slabs in the monastic cemeteries. We also find the jambs of doorways, windows (Fig. 200), and chancel arches, losing the square form extending through the thickness of the walls, which characterises the earlier examples (like those of our own Anglo-Saxon buildings), and becoming divided into separate orders, with decorative mouldings, and shafts with caps and bases, and thus exhibiting the most important elements of the advanced Romanesque and “Gothic{23}” styles. These features increase in distinctness till we reach examples known to be contemporary with our own Norman works, and culminate in the charming Chapel of St. Cormac at Cashel, which, though in outline evincing an adherence to Irish tradition, is in all its details distinctly Norman, and is known to have been erected in the twelfth century. Mr. Petrie thinks that these decorative features are in many instances of very early date. I cannot quite agree with him where Norman details appear; for, though a system of ornamentation may appear early in a particular country, it is impossible that it should anticipate the precise forms elaborated much later by a regular course of progression elsewhere.

[Image unavailable.]

Fig. 201.—Chapel of St. Cormac at Cashel. Exterior.

[Image unavailable.]

Fig. 202.—Chapel of St. Cormac at Cashel. Interior.

{24}

There is in Scotland at least one specimen of parallel character to these later of the old Irish churches. I allude to the church of St. Regulus, which stands side-by-side with the cathedral at St. Andrews; just as that of St. Cormac does with the cathedral at Cashel.

[Image unavailable.]

Fig. 203.—North and East Elevations, Church of St. Regulus, St. Andrews.

[Image unavailable.]

Fig. 204.—Plan, Church of St. Regulus, St. Andrews.

Mr. Billings has given a good view of this interesting, and, I may say, beautiful, remain; and I am enabled, by the kindness of a friend (Mr. R. Anderson, of Edinburgh), to show you detailed drawings of it. It consists either of a nave (with chancel arch) and a western tower, or of a chancel with apse arch and a central tower, in which latter case it would be parallel to the remains of Jarrow Church. In the other case, it may have had a lofty western porch, as had those of Wearmouth and Barton-upon-Humber. The large western arch in the tower must have opened into either a nave or a{25} porch; and, as this is actually larger than the chancel arch, and the mark of the roof of equal height, it certainly suggests a nave. Its workmanship is of a very superior character: and its details, though plain and archaic, are very good. The tower is of great height, evidently, like many other early towers in Scotland, founded on the idea of the early campaniles of Italy. The capitals of shafts closely resemble those of St. Pantaleon at Cologne,[3] which are of the tenth century. I find it difficult to conjecture the age of this church; but, I imagine it to be anterior in its date to the introduction of Norman architecture into England. It is said that when the surrounding ground was excavated the foundations of an apse were found.

[Image unavailable.]

Fig. 205.—Details, Church of St. Regulus, St. Andrews.

I will not dwell on the Irish crosses, and the round towers,—time not permitting,—though both are among the most remarkable features of early Irish art. The towers agree precisely in their architectural details with the churches, and never appear but in connection with them. They are known in the Irish language by a name signifying a belfry, and were no doubt the campaniles of the monasteries, their unique type showing{26} the originality of invention of these early architects. Their doors were placed at a considerable height for the sake of security; they were divided into several stories, each with a single window except the upper one, which had four or more,—all pointing out their double object of bell towers and places of defence. Two similar towers remain in Scotland.

The Irish and Iona crosses are works of extreme beauty, and of very decorative detail. I shall have to allude to their anti-types in England when speaking of Anglo-Saxon architecture, to the consideration of which I will now proceed.

The subject of the architecture of pre-Norman England,—that is to say, of England (exclusive of Wales and the counties occupied by the Britons), between the arrival of Augustine in 596, and that of William of Normandy in 1066,—a period exceeding by ten years the interval between the reigns of Edward III. and Queen Victoria,—has been held by some to be involved in such utter obscurity as to leave it uncertain whether any such architecture existed, or, at least, whether we have any means of ascertaining what it was; and yet no period of history is, perhaps, more replete with accounts of the foundation of cathedrals, monasteries, and churches. The cause of this is clear. The churches of this period were, no doubt, frequently of timber; but, of whatever material, were subjected,—first to the destructive effects of the repeated devastations of the Danes, and subsequently to the greater architectural ambition of the Normans which led to a perfect mania for reconstruction. The consequence is, that we have no cathedral or great abbey{27} or church remaining of this period, and have to content ourselves with such evidences of their style as may be gleaned from among ordinary parish churches for the most part in rural districts, and consequently of the humbler class.

The historical notices of the erection of churches during the Anglo-Saxon period are more frequent than descriptive.

On the arrival of Augustine, he found the Church of St. Martin, Canterbury, already used by the Christian Queen Bertha. This was, no doubt, a Romano-British structure. He found also a second, but in ruins; and this he made the nucleus of his metropolitan cathedral. He constructed also a third, afterwards called by his own name. We know, too, that in his day were also founded the cathedrals of Rochester and London; and there is no reason to doubt that all of these were of stone. I am not aware that we hear anything more, in Anglo-Saxon days, of St. Martin’s, or that we have any description of St. Augustine’s, but we have a strong light thrown on the subsequent history of the cathedral up to the Norman Conquest in the writings of one Eadmer, a singer at the cathedral, who wrote early in the twelfth century.

Recapitulating the account of its having been erected by St. Augustine on the site of a Roman church, he proceeds to say that in the days of Archbishop Odo, in the tenth century, the roof had become so decayed as to require renewal; that Odo took the opportunity of increasing the height of the walls, and that the work occupied three years. He also tells us that a church dedicated to St. John the Baptist had been{28} added by Archbishop Cuthbert in the eighth century near the east end of the Church, for baptisms, etc. He says that the church escaped the destruction threatened by the army of King Sweyn in 1011; but was subsequently burnt down by accident, and remained in ruins until rebuilt by Lanfranc.

He further gives a very clear description of the church, from which it appears that it was built in some degree on the model of the Basilica of St. Peter at Rome. He minutely describes the eastern altar space as greatly raised above the general level of the church, and having beneath it a crypt or confessionary, made in the likeness of that of St. Peter’s at Rome. He further describes an oratory and altar to St. Mary at the western end raised on steps, behind which was the pontifical throne. Also two towers, the one on the north and the other on the south side of the nave, projecting beyond the aisles, and containing chapels.

Professor Willis, in his admirable history of the cathedral, gives an able dissertation on its plan at this period, showing how precisely the description of the eastern arrangements agree with those of the Basilica of St. Peter, but that the Chapel of the Virgin at the west end must have been a western apse, like those so common in Germany, and of which we have an earlier instance in the ancient design for the arrangements of the monastery of St. Gall, supposed to be of the eighth century. Eadmer confirms his account by saying that he can answer for its correctness, for he saw the ruins himself when a boy at school.

From the above description we learn, first, that a{29} Roman model was taken; secondly, that the church was of stone or brick; thirdly, that it had aisles; fourthly, that it had both an eastern and western apse; beneath the former of which was an extensive crypt, called a confessionary, as containing the tombs of confessors.

The additional church of St. John was clearly a baptistery; and Professor Willis thinks that Archbishop Odo’s addition to the height of the walls was a clerestory.

I am not aware that we have any information as to the cathedrals built by the companions of Augustine (Mellitus and Justus) at London and Rochester; but it is unlikely that they would be otherwise than of cognate plan and materials; while, curiously enough, there continues to this day at Rochester, and continued to the seventeenth century in our own St. Paul’s, equally as at Canterbury, a crypt beneath the elevated sanctuary, no doubt the lineal successor and representative of those erected by these missionary bishops, in imitation of the great basilica at Rome, whence they had been sent to evangelise this distant region.

A few years later Paulinus, another Roman missionary, succeeded, under circumstances very similar, in converting to Christianity Edwin, king of Northumbria, who, while receiving instructions preparatory to his baptism, built a temporary church of timber at York; but subsequently erected, around the same, and under the instructions of Paulinus, a larger and nobler church of stone, which was completed by Oswald, his successor. Here, again, we have still remaining the choir-crypt,—the probable successor of that of the original church,{30} and as some say, containing a relic of its actual structure. Thus, we have the two metropolitan cathedrals distinctly recorded as erected of stone by their first bishops.

Bede also relates that Paulinus built a stone church, of beautiful workmanship, at Lincoln, the walls of which remained at the time he wrote, though, by some mischance, it had lost its roof. It is clear, however, that some of Paulinus’s churches were of timber, and, later on, we find St. Aidan and St. Finan,—missionaries from Iona,—erecting a cathedral of that material in the Island of Lindisfarne “more Scotorum.”

Shortly afterwards, however, a church was built, after the monastic rule of Lindisfarne, but of stone, at Lastingham, in Yorkshire; where, again, we find the choir-crypt,—the successor of the original one,—remaining to this day. Still, in the seventh century, we have a more minute account given us by Bede of the works of Benedict Biscop, in the erection of the monastic church of Monk Wearmouth. This church he built of stone, “according to the manner of the Romans, which he had always loved.” He built, also, the church at Jarrow of the same material, and the existing remains of both I shall have presently to describe. So much did he consider himself a follower of the Roman manner, that he went, over and over again, to Rome, to procure ornaments wherewith to decorate his two churches. This was about 670 and 680.

The successor of Benedict Biscop is said to have sent architects to Naitan, king of the Picts, to make him a church of stone after the manner of the Romans.{31}

About the same time we find St. Wilfrid thoroughly repairing, glazing, and “washing whiter than snow,” Paulinus’s Church, at York, and building two of great splendour (according to the ideas of the times), at Hexham and Ripon.

The former is described by a contemporary writer in ecstatic language, as “supported by various pillars and porticoes, adorned with a marvellous length and height of walls, and with passages of various turnings; nor was it ever,” he adds, “heard that such another church was erected on this side the Alps. He tells us also, of its ornaments of gold and silver and precious stones,” and of its altar, clothed with purple and silk hangings. This church remained, though in a damaged state, till the twelfth century, when the Norman prior describes it in very similar words to those used by the old Saxon historian. He speaks of the crypts and subterranean oratories, the walls of great height, “divided into three distinct stories supported by polished columns, some square, and others of various forms,” of the “capitals of the columns” ... and “the arch of sanctuary,” as “decorated with histories and images and different figures carved in relief in stone and painted, displaying a pleasing variety and wonderful beauty.” The body of the church was “surrounded by aisles and porticoes, which with wonderful art were divided above and below by walls and winding stairs.” Above he describes “galleries of stone,” by which “a vast multitude of persons might be there and pass round the church without being visible to any one in the nave below.”

Of the church at Ripon, the contemporary historian{32} says that “he [St. Wilfrid] erected and finished at Ripon a basilica of polished stone from its foundations in the earth to the top, supported on high by various columns and porticoes.”

This church, founded by Odo, archbishop of Canterbury, was in the tenth century “reduced by wars and hostile incursions to a deserted and ruined solitude.”

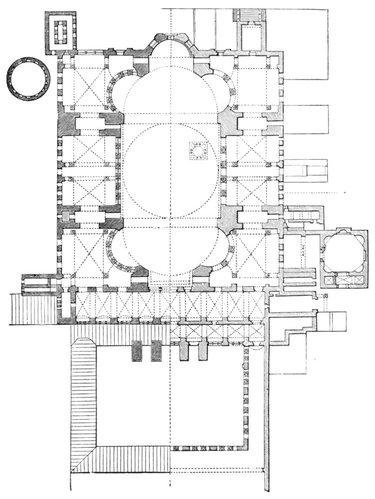
All the buildings of the erection of which I have briefly enumerated the records, were founded within a century of the arrival of St. Augustine. Within the same century (about 680) we have reason to believe was erected the church at Brixworth, in Northamptonshire, which still remains in a fragmentary state, but, as I shall presently show, with sufficient proofs of its having been founded on the plan of a Roman basilica, with an aisled nave and an unaisled choir, an apsidal and aisled sanctuary raised high on a vaulted crypt. This church was but a humble dependency of the great monastery of Peterborough.

I would not have fatigued you with these documentary accounts, had I not felt it desirable to prove the importance of these earliest temples of our English Church. Cathedrals, churches, and monasteries were, in fact, built throughout the length and breadth of now Christianised England. The more important buildings were all, no doubt, of stone; many of the humbler ones of timber.

But times of trouble were at hand: “there is a time to break down” as well as “a time to build up;” and what the Christian English had built, the Pagan Northmen too often overthrew. Thus, in Alfred’s time (though in the reign of his predecessor), we find{33} Croyland, Peterborough, Ely, and other monasteries ruthlessly destroyed, and in some cases they lay desolate for very long periods of time, though in others they were speedily restored.

At a later period, a new impulse was given to building by the introduction of the Benedictine order, and we find monasteries either founded or reformed on this rule throughout the kingdom.

Two descriptions of such Benedictine churches I will quote, the first being from the history of Ramsey Abbey, in the time of Dunstan.

The architect’s name is, for a wonder, mentioned in this case: it was Ædnoth, and he came, as it would seem, from Worcester. The church is said to have had “two towers rising above its roof. The smaller of these towards the west, in front of the Basilica, presented a fine spectacle from a distance to those entering the island. The larger one was in the centre of the square, standing upon four columns connected by arches stretching from aisle to aisle.” This laconic description seems to indicate a church with aisles, transepts, central tower, and a western tower. It may be, however, that the word “ala” signifies not an aisle, but merely a transept.

The other church I will refer to under this head is the Cathedral of Winchester, as rebuilt in the reign of Edgar. It had been founded in the days of St. Birinus, the first missionary to the West Saxons, about 635. Athelwold, made Bishop of Winchester in 963, was a great restorer of churches which had been devastated by the Danes. Among those restored by him may be especially named those of Ely and Peterborough. He{34} renovated and partly rebuilt his own cathedral at Winchester, which was rededicated in 980. It is described by Wolstan, in a poem addressed to the succeeding Bishop, St. Elphege. He speaks of the “lofty walls and solid aisles, and various arches; the many chapels which so distract the attention, that a stranger is at a loss which way to turn, seeing doors open to him on all sides.” He mentions also the “fine roofs of intricate structure, and the brilliant variety of the fabric.” St. Elphege seems to have added a new apse, with “secret crypts, where secret recesses lay on every side, the structure of which supported the holy altar, and the venerable relics of the saints.” “A sparkling tower,” also, “that reflects from heaven the first rays of the sun.” “It has five compartments pierced by open windows, and on all four sides as many ways are open. The lofty peaks of the tower are capped with pointed roofs, and are adorned with various and sinuous vaults, curved with well-skilled contrivance. Above these stands a rod with golden balls, and at the top a mighty golden cock, which boldly turns its face to every wind that blows.”

Again, however, came the ruthless Northman, and destroyed church after church throughout the entire course of his desolating march.

No former incursion probably had been so fatal to architecture as that of Sweyn. Its very success, however, brought its own cure; for his son Canute, being allowed to succeed to the English throne, not only became Christian, but devoted himself with exemplary piety to repairing the devastations which the sacrilege of his father and himself had perpetrated. He not only{35} repented, but brought forth fruits meet for repentance; so that the last half-century of the history of the pre-Norman England, is replete with accounts of the restoration and building of churches.

The foregoing notices are sufficient to show that throughout the continuance of the pre-Norman English Church buildings were constantly being erected of considerable dimensions and sometimes of great intricacy, and even of some degree of splendour of design; and that the more important of these were uniformly of stone, though the humbler ones were often of timber. It further shows that the architectural style of these buildings, as well as the internal arrangement of the churches, was intended to be an imitation of the Roman buildings of the same period.

We will now proceed to inquire into the existence and character of any remains of buildings of this period.

Of the important structures, I may say at once that nothing remains; the ambitious character of the Norman builders having led them to reconstruct on a larger scale all the cathedrals and great monastic churches, excepting, indeed, that one which they found in course of re-erection at Westminster, and which was designed in their own style.

There exist, however, throughout the length and breadth of the land, remnants, and, in a few instances, large portions, of buildings of a wholly exceptional character; not assignable to the Norman or any other of the well-known styles which have prevailed in England; but evidently of earlier date. They are clearly not early Norman; for, with the single exception of the round arch, they have nothing in common{36} with the specimens of that style erected in the reign of the Conqueror, but are clearly of a style quite distinct from them. In one instance, we have a tower known to have been erected in the days of the Conqueror, in juxtaposition with the remains of a church in this more ancient style; and in many other instances we have Norman features in connection with these mysterious remains, and to every eye asserting the entire diversity of their art. In some instances, again, as at Monk Wearmouth, Jarrow, Brixworth, and Deerhurst, the remains of this style are on the sites where churches are recorded to have been built in Anglo-Saxon days. These remains correspond in character with buildings represented in Saxon illuminated books. They evince in many instances evidence of having been built in rude imitation of the Roman works of those periods, though in some instances they seem also to suggest the imitation of timber construction.

The most obvious rules of induction, then, point to the conclusion that these are the remains of buildings of Anglo-Saxon date.[4]

The leading characteristics of these remains (though not all of them to be found in every instance, and probably varying with the date) are as follows:—The frequent decoration of the external walls with pilaster strips, as is so common in early Italian churches, and afterwards in Germany; the bonding of these by alternate vertical and horizontal stones; the imitation of this mode of bonding in quoins where no{37} such strips are used, and in the jambs of doorways and other openings, excepting where Roman brick is of frequent occurrence; the jambs of doorways running square through the thickness of the wall, without recessed orders, and the door itself hung against the inner face of the wall; the frequent use of a kind of pilaster on either side both of doorways and archways, the impost moulding sometimes breaking round, and sometimes stopping against them, and a continuation of the pilaster going round the arch;[5] the occasional use of triangular heads to doors and windows; the use of what are called baluster columns, or short pillars, turned in a lathe, not unlike Elizabethan balusters, bulging in the middle and ornamented with a number of mouldings of trifling relief, such as turners of all ages delight in (these are used for the division of windows, and other purposes); the windows which are usually set high in the wall, are often equally splayed within and without, and the arches sometimes more splayed than the jambs, and slanting upwards like an old-fashioned bonnet; a very abnormal kind of mouldings, unlike those of any other style, and generally a very strange archaic look in the whole of the work, which makes one conscious of being in the presence of the works of men in a very pristine state of civilisation, the style having little or no relationship to those Mediæval buildings with which we are familiar.

I ought, also, to mention the frequent use of tall, narrow towers, unbroken, or nearly so, in their vertical outline, either simply quoined with the long and short work already mentioned, or with their surfaces diver{38}sified by pilaster strips and string-courses, the intervening surfaces being usually built of rubble and plastered. The belfry-windows are often of two lights, separated by a baluster or other form of pillar set in the middle of the wall, and bearing a transverse bracket of stone, to enable it to support the whole thickness of the wall. Such towers are clearly imitations of the Italian campanile, though in a rude form. They occasionally have oblique strips as well as the vertical pillars and horizontal strings, which suggest the idea of an imitation of timber-work; at other times the pilasters are united by arches.

It is not easy to describe the general plans of churches, as the remains we possess are too scanty to be generalised upon. Some had aisles, some transepts without aisles, many had neither. One, at least, has a central tower without transepts; and at least one a central tower with transepts. Some had apsidal chancels, and some had the square end. The towers, in a great majority of instances, are at the west end. The walls are in some cases by no means low, and the naves occasionally of greater width than is usual in village churches of later periods.

What forms are made use of for pillars we are but imperfectly aware. One of the notices I have quoted speaks of their being square and of other forms. The few which remain in situ are of the former kind, mere fragments of wall: but at Worth Church there are, in the jambs of the chancel arch, half pillars, 2½ ft. in diameter, with very perfect capitals; and certainly an entire pillar of this form must have suggested the demi-column. At Canterbury there are two round{39} columns brought from Reculver, which are probably of Anglo-Saxon date. Their capitals are of the most remarkable form.

I will make special mention of a few pre-Norman churches and fragments of churches as specimens; but to do more in a lecture such as this would be both tedious and unprofitable; for, however interesting the study of the primæval architecture of our race, it must be confessed that, while in general plan these churches are the progenitors of those we think worthy of imitation, we cannot venture to say so much of their details.

[Image unavailable.]

Fig. 206.—Plan and General View of Brixworth Church, Northamptonshire.

I exhibit a plan and a general view of Brixworth{40} Church, enlarged from drawings kindly lent me by Mr. Roberts, who has given the church the most careful study. We have documentary evidence of the erection of the church by the abbots of Peterborough, about 680. Being near the ruins of a Roman station, it contains much Roman brick.

The chancel, or rather the sanctuary, was apsidal, with a surrounding aisle, and raised high on a crypt of corresponding plan. This sanctuary and aisle open by three arches into a choir of 30 ft. square, and this, I think, by a single arch, into a nave about 30 ft. by 60 ft.

This nave had arcades opening into either aisles, or, as Mr. Roberts thinks, into cubicula or oratories, the foundation of which he has found. The arches are turned in Roman bricks, very strangely used; a steep skewback being formed for their springings to reduce the angle of convergence, and so moderate the thickness of the mortar-joint, which, in arches of such a depth, would have been inconvenient. The nave and choir have had a clerestory, the windows of which have arches of Roman bricks. This is thought by some to be a later addition, from the reduced thickness of the walls; but of this I feel far from certain. Mr. Roberts suggests it as possible that the wide nave was again subdivided by arcades; but I confess I much doubt this.

To this original church a western tower was subsequently added, in which the Roman brick does not take so prominent a place; and later still, though still in Anglo-Saxon days, a very large round stair-turret was added, west of the tower.

The alterations introduced when the tower was added are clearly visible, especially the introduction of{41} a triple window with baluster pillars, looking from the second storey of the tower into the church.

[Image unavailable.]

Fig. 207.—Brixworth Church, Northamptonshire.

Nave, looking West. Nave, looking East.

[Image unavailable.]

Fig. 208.—Plan of Church on the Castle-hill, Dover.

I exhibit also a plan and other drawings of the till lately ruined church on the Castle-hill at Dover. Here, again, Roman bricks have been largely used, both for quoins and arches, and some other parts. The church is cruciform, with a central tower, the transepts being narrower and lower than the nave. Wide and lofty arches open into the tower on the east and west, but those on the sides were, no doubt, low and narrow, and consequently were replaced by larger{42}

[Image unavailable.]

Fig. 209.—View of the Church on the Castle-hill, Dover.

ones late in the twelfth century. The chancel is square-ended. The windows are of a very large size, and about equally splayed without and within, and had wood frames for the glass, the grooves for which were quite distinct (Fig. 210). The main doorway seems to have been that on the south side. It has stone jambs of long and short work running square through the wall, the door having been hung against the inner surface. The arch is of brick, and a pilaster strip flanked it on either side and ran round the arch. Similar, on a small scale, was a ruined doorway, found in the north transept, and now restored precisely to its original form. Similar, also, are the windows of the tower, which were treated like doorways, with a shutter within. At the{43} west end stands the ancient Roman pharos, from which was a communication to the church, both on the floor-level and also above. The latter had a doorway in a very perfect state (Fig. 211), which opened into a western gallery, of which I found the holes for the insertion of the timbers. Beneath this gallery, on either side, was a small window, which, for want of room for an arch, was made square-headed, with splayed wooden lintels, of which the exact impressions of the ends were found, giving its precise form.[6]

[Image unavailable.]

Fig. 211.—Upper Western Door, Castle-hill Church, Dover.

The tower arches have the pilaster strips on either side, and continuing round the arches. Each has a stone impost with very abnormal mouldings (Fig. 212).

[Image unavailable.]

Fig. 212.—Eastern Tower Arch, Castle-hill Church, Dover.

Fig. 213. Saxon Balusters.

Several very curious balusters of Caen stone were found among the ruins (Fig. 213). They appear from their freshness to have been always internal, and, I fancy, formed parts of a screen under the western arch of the tower, of which some foundations apparently remain. Externally, the quoins{44} are partly of Roman brick and partly of long and short work, with very large stones. This is, perhaps, the most nearly complete of all our pre-Norman churches. There is no clue to its date. Some call it a British church: some say that it was built by Eadbald, the son of Ethelbert, about 640, and others that it is of a much later period, to which opinion I confess that I incline.[7]

[Image unavailable.]

Fig. 214.—Worth Church, Sussex.

[Image unavailable.]

Fig. 215.—Plan, Worth Church.

Another nearly complete church is that at Worth,{45} in Sussex (Fig. 214). The plan may be said to be that of the Dover Church, omitting the central tower and adding an apse. The transepts, like those at Dover, are small, and their arches low and narrow; while the chancel arch assumes almost majestic proportions. The transept arches (now much mutilated) had the pilaster strip, both to jambs and arch, with a double square impost of massive proportions (Fig. 216). The chancel arch is more artistic in its treatment, having a large demi-column in either jamb, 2 ft. 6 in. in diameter, with a regularly formed, though plain, capital; while instead of the pilaster, a smaller semi-column is placed against the face of the wall on either side, and indirectly carried round the arch in the form of a square projection (Fig. 217). The arch itself is square in section, and runs without break, through the thickness of the wall. No doorway nor window of the original date remains. The walls of the nave are about 25 ft. high, and are divided at mid-height by a large string-course, above which the windows were probably placed. The angles have pilaster strips in long and short work, and similar strips are placed at intervals along the walls reaching up to the mid-height string-course, all of them standing on a continuous base of two massive courses of stone. The half-height string-course of the nave is continued round the transepts, as are the eaves courses, and run across their gable ends. The chancel was externally dealt with much as the nave, though a little less in height.{46} This church had no tower, and, as a curious commentary on the fashionable opinion that the Anglo-Saxons nearly always built of timber and their successors in after-times of stone, we find a timber tower of the fifteenth century added to the stone church of Saxon date![8]

[Image unavailable.]

Fig. 218.—Plan, and East End of Church, Bradford, Wilts.

[Image unavailable.]

Fig. 219.—Church, Bradford, Wilts.

At Bradford, in Wilts, a very complete church has but recently been discovered; having previously been{47} so surrounded by buildings that its character was unnoticed. I give drawings of it, made by my friend Mr. Irvine, a zealous antiquary, who has also sent to the Academy a cast of some uncouth sculpture found there.[9] The church consists of a nave and chancel, and has every characteristic of Anglo-Saxon work strongly developed.[10]

At Jarrow-on-the Tyne the chancel of the Saxon church remains. It has few characteristic features. The windows are of a very pristine form, in this case with no external splay, the jambs of upright stones with horizontal stones for imposts, and arches cut out of single stones. They had been walled up at a very early date to a certain thickness from the exterior with very small perforations,—some circular and some more elongated,—in the filling up wall. This, I fancy, was as a means of defence. There is one doorway, which is a plain arched opening running square through the wall, the door having been hung as usual against its inner face, and the jambs formed of large stones facing the reveal. There are some signs of an apse having existed, but of this I cannot speak with any certainty. A tower was erected between the nave and the chancel—as I am informed by a local antiquary—in the reign of the Conqueror. The nave has long since perished, but in the walls of a modern erection on its site were found, used as building mate{48}rial, about twenty baluster columns, some 2 ft. 3 in. high and a foot in diameter (Fig. 220). This was in all probability the very church erected by Benedict Biscop, and in which the Venerable Bede worshipped.

[Image unavailable.]

Fig. 220.—Baluster Columns, Jarrow-on-the-Tyne.

At Monk Wearmouth are the remains of the other church of Benedict Biscop.

This church was burnt, as also was that at Jarrow, by the Danes in 867, and both remained in ruins till about 1074, when (or a few years later) both churches were re-roofed and restored to their sacred use. It was at this time that the tower at Jarrow was erected.

The most interesting portion of the church at Wearmouth is its western end. From this projects a tower evidently of Anglo-Saxon date. This tower has arches on three sides of its lower storey, which, till recently, were not only walled up, but almost buried in the accumulated earth.

In September 1866 they were excavated, and the western entrance opened out by the local Archæological Society, with the help of Mr. Johnson, architect, of Newcastle. The side doorways were found to have monolith jambs, 6 in. wide on the face, which are notched into a continuous cill, and support massive imposts, from which the arch springs, with very bold voussoirs. The western entrance, which is 6 ft. 4½ in.{49}

[Image unavailable.]

Fig. 221.—Western Entrance. Church at Monk Wearmouth.

to the springing and 4 ft. 8½ in. wide, has an arch springing from massive abaci 10½ in. thick, which are supported by baluster-shafts very similar to those found at Jarrow, two of which occupy the width of the wall on either side, and stand upon jambs each of a long and a short stone, the reveal of which is curiously sculptured with entwined serpents. This is decidedly the most remarkable doorway of this kind yet known. Above the doorway runs a band or string sculptured with animals and edged with the cable mould. At the same time, the two lower storeys of the tower were{50} found to have originally formed a gabled porch,—two windows, of construction very similar to the side arches above described, having been stopped up in the end of the church by the conversion of this porch into a tower. Baluster-shafts have been discovered in the internal jambs of these windows.

At Jarrow, amongst many curious fragments discovered, is a stone in which is sculptured, as a continuous ornament, a long row of the balusters represented on a miniature scale, as if they were so established an architectural element as to be imitated just as arcades and windows are in Gothic architecture as a mere ornament.

The church at Stow, in Lincolnshire, contains extensive remains of Anglo-Saxon work, but of doubtful date. The church was founded about the time of Paulinus, as a cathedral for the Bishops of Lindsey, but was burnt by the Danes, as it is believed, in 870. It was re-founded about 1040. The tower arches and transepts are in one style, but of which date is doubtful. I confess I think the preponderance of evidence is in favour of the earlier date. Foundations have been discovered of aisles to the nave, clearly of the same age with the transepts. The older parts show everywhere marks of fire, and the transepts have been heightened in Saxon times; and, as I should think probable, at the time of the second foundation. The present nave and chancel are Norman.

There exist several crypts beneath chancels, which are of this date. Among these, besides the fragmentary remains at Brixworth, I will mention one not generally known, at Wing, in Buckinghamshire. It is of excessive rudeness, being built only of very rough{51} stone; but it is notable for the completeness of its plan, being apsidal, with two ranges of piers, and as having remains of the two doorways through which it was approached by steps from either side of the chancel arch.

[Image unavailable.]

Fig. 222.—View of Crypt, Repton Church, Derbyshire.

The apse in this case is polygonal, with pilaster strips up its angles, and parts of the nave are of pre-Norman date, and show clear evidence of its having had aisles.

The crypt at Repton is famous for the finished and decorative form of its architecture. I give a drawing of it.

[Image unavailable.]

Fig. 223.—Plan of Crypt, Repton Church, Derbyshire.

The crypt at Lastingham is not of Saxon date, but its Norman successor. The original church was destroyed by the Danes. Its foundation I have already noticed.{52}

The most numerous of the Anglo-Saxon remains are the bell-towers. These have almost always the peculiar characteristics which I have already noticed. Their number is so great that it would be impossible to enter into any enumeration of them. One of the best known, perhaps, is that of St. Benet’s, Cambridge. It has pilaster strips up each angle, with long and short work. The string-courses are merely square courses: each storey recedes a little in width. The belfry windows are double, divided by a mid-wall baluster and bracket; and there are plain windows again over their spandrels. The intermediate surfaces were plastered. The tower arch is of strangely rude design. The tower of Trinity Church, Colchester, is peculiar, as being, to a great extent, of Roman brick.[11] (Fig. 225).

[Image unavailable.]

Fig. 224.—St. Benet’s, Cambridge.

Earls Barton tower is the most remarkable of its class, uniting the profuse use of pilaster strips, diagonal strips, arched strips, long and short work, baluster columns, and other characteristics of the style (Fig. 226). I have noticed here that the majority of the arches are so in form rather than in construction, some being cut out of the solid, some built up with horizontal courses projecting one over the other, and others, again, formed by a number of flat stones set on edge one behind another, and the arched opening cut through them all.{53}

Barnach Tower is something like it, though with less variety,—a more Cyclopean look.[12] (Fig. 228).

[Image unavailable.]

Fig. 225.—Tower, Trinity Church, Colchester.

The tower at Barton-upon-Humber bears considerable resemblance to that of Earls Barton, though with less profusion of the usual characteristics and less rudeness of construction. This tower is rendered remarkable by having attached to it a very large and lofty western porch, apparently of about the same date (Fig. 227).

Among the most remarkable towers, however, is that at Sompting, in Sussex (Fig. 229). Its most striking characteristic is, that its sides are each gabled, and it is roofed like the typical steeples on the Rhine. I am told that an instance of this also existed at Flixton, in Suffolk. The details at Sompting are somewhat elaborate.{54}

[Image unavailable.]

Fig. 226.—Tower, Earls Barton.

Fig. 227.—Tower and Western Porch, Barton-upon-Humber.

The tower of Clapham Church, in Bedfordshire, is chiefly remarkable for its great height and plainness. The chancel arch, of great simplicity, here remains, as did one window of the chancel (a small bonnet-arched opening like some in the tower itself) till destroyed recently by a stupid builder.

One more building, I must notice. It has often been mentioned that our Anglo-Saxon forefathers built largely of timber; and, strange to say, after the lapse of more than eight centuries, we have one of their timber structures remaining!

Edmund, king of East Anglia, who had been slain by the Danes in the ninth century, had been canonised; and on the invasion by Sweyn, more than a century later in 1011, his relics were removed from Bury St. Edmund’s to London for security. On their being{55}

[Image unavailable.]

Fig. 228.—Barnach Tower, Northamptonshire.

carried back in 1013, an old register of Bury informs us, “he was also sheltered near Aungre, where{56} wooden chapel remains as a memorial unto this day.”

[Image unavailable.]

Fig. 229.—Tower, Sompting, Sussex.

This chapel still exists at Greensted, near Ongar (Figs. 230, 231). It consists of cleft oak-trees grooved and tongued together by their edges, and let into grooves in horizontal cills and heads. The exterior of the trees was exposed on the outside of the church, the sapwood of which having long since perished, the furrowed and gnarled heart is now seen, presenting a most ancient and interesting appearance. It is more than thirty years since I visited this most venerable relic. Since then it has been repaired; but I trust that its antiquity has not been compromised, and that it will long remain as a relic of the royal saint, and a visible exponent of the old Anglo-Saxon verb getymbrian—to build.

I must not, however, go on enumerating specimens: they will be found in great numbers in several publications, as Mr. Bloxam’s Principles of Gothic Architecture, Mr. Parker’s Glossary, Britton’s Antiquities, and elsewhere; while very interesting articles have{57} been written on them by Mr. Freeman, Mr. Ayliffe Poole, Mr. Paley, and others. In my own practice I every now and then fall in with minor specimens not mentioned in books, and often walled up and hidden from view, to make way for later work.

[Image unavailable.]

Fig. 230.—Chapel at Greensted, Essex.

Taken from a drawing made in 1748.

[Image unavailable.]

Fig. 231.—Plan of Chapel at Greensted, Essex.

Fragments of Saxon crosses are frequent. They are usually covered with that plaited ornament so frequent in the illuminations of the period.

In proof of their early age, we often find them imbedded, as mere material, in Norman walls. In St. Peter’s, at Northampton, I found the base of one of the Norman columns to be wrought out of a piece of one of these crosses; and at Jarrow there are several portions of them built into the tower, which was itself erected in the reign of the Conqueror.[13] {58}

Though this form of architecture spread over a period of some 470 years, we have little or no means of classifying it into distinct divisions of date. It would seem that the system of rapid change which characterises the centuries succeeding the tenth had not then commenced, and that much the same manner of building pervades long spaces of time.

On a conjectural view of the case, one would look, perhaps, for the following divisions:—

1st. From the arrival of Augustine to the earlier devastations of the Danes.

2nd. From the time of Alfred to that of Dunstan.

3rd. The period of the general establishment of Benedictine rule up to that of the devastations of the Northmen under Sweyn.

4th. That from the accession of Canute to the Norman conquest.

Mr. Freeman divides the style into three:—

1st. The direct but rude imitations of Roman work, of which Brixworth is an instance.

2nd. The developed Saxon manner, with its high towers, its pilastered strips, and suggestion of imitated timber-work, as at Earls Barton, etc.

3rd. That in which Norman features are introduced or anticipated.

I may mention, however, that we have proofs, as at Deerhurst, which is said to have been rebuilt in 1056, and elsewhere, that the style remained with little modification to the last.

I shall show you in my next lecture (in which I propose to treat of the earlier Norman buildings, erected by those who actually came over in the days{59} of the Conqueror or of his companions) that the two styles overlapped; that there were pre-conquestal Norman and post-conquestal Saxon buildings. I will, however, at present detain you no longer; and if I have trespassed upon the rules of the Academy by giving a lecture more on archæology than on art, I must apologise on the ground that I have treated of our own early efforts in architecture; of buildings whose bold and archaic rudeness was so strangely accompanied by exquisite skill in other arts,—as in illumination, in embroidery, in jewellery; and the contemplation of which, to use the eloquent words of Mr. Freeman, “Should raise a thrill of patriotism in the heart of every genuine Englishman,” ... “whose barbaric grandeur breathes in its fulness the spirit of England’s ancient days of freedom and isolation,” and reminds us “of the long roll of our native saints and heroes; of holy bishops and no less holy princes; of Ina, and Alfred, and Athelstan; of Bede ... and the martyred Alphege; of Harold and Gurth, and Leofwine; of St. Wolstan and Abbot Frederick; of the battle-axe of Hereward and the martyr-block of Waltheof; and all the glorious train of the ‘England of saints’ ere yet she bowed beneath the yoke of a foreign lord.{60}

LECTURE XI.

The Transition.

Architecture of the Normans—St. Stephen’s at Caen—Canterbury Cathedral modelled on that of St. Stephen’s—Description of the Norman church built by the Confessor at Westminster before the Conquest—Instances of Anglo-Saxon architecture being used after the Conquest—Characteristics of the Norman style—Varieties of combination—Doors, windows, archways, arcades, and vaulting—Minor details—Mechanical ideal of a great Norman church—Vast scale and number of works undertaken by the early Norman builders.

MY last lecture was rather antiquarian and historical than instructive in any principles of art. It showed you how the Celtic inhabitants of Ireland and Scotland worked out for themselves,—upon Romano-British reminiscences, added to those of their own race,—a manner of building which, though severely simple, was by no means to be despised; and also how our own Anglo-Saxon forefathers went through a similar process, working partly on the same foundations, but more directly on lessons brought to them from Italy, though not always very well understood.

I might further have shown you (had it been my subject) how that both of these races were far more successful in the more delicate arts of embroidery, illuminated painting, and jewellery; and how little in their practice of those decorative arts they trusted to any but their own traditions.

I am not sure, too, whether in sculpture the pre-Norman English may not have succeeded better than{61} in architecture,—quaint and untechnical though their productions were.

I fear, however, that we must admit that, in our own particular art of architecture, we have little to learn from their buildings, however interesting and quaintly picturesque; and that, though belonging to a branch of the great round-arched family, they fail—almost of all effort, certainly of any success—in developing that manner of building into a style of art.

That fearful deluge, whose destructive waves swept with such overwhelming fury over our land after the decease of the last—the sainted—monarch of England’s older dynasty, may be likened to the sudden breaking down of its banks by some mighty river, which, while it sweeps from the earth the crops and the homesteads, leaving nothing but devastation on its track, yet deposits, in subsiding, a film of foreign substance upon the deluged soil, which adds to it a new productiveness, and, in time, far more than compensates for the loss and havoc which accompanied it.

So it was (at the least with architecture), after the Norman conquest. The old manner of building which, during a course of nearly five centuries, had failed to generate any development of a truly artistic character, was swept once and for ever from the face of the earth, so much so that some have denied its very existence; but there was substituted for it a style which, if at first little less rude than its predecessor, contained within itself the germs of a thoroughly sound artistic system, which speedily germinated into a series of developments, the most glorious which, perhaps, man has ever yet seen.{62}

We have the clearest evidence, both from the statements of old writers, and such as we derive from our own observation, that the style of building introduced into England by the Normans, was viewed as a distinctly new one—a “novum genus compositionis,” and in no degree as a development of that which preceded it in this country.

How far the Norman style was distinct from the Romanesque of other parts of the north of France is a question which it would be curious, though difficult, to investigate. I think it might be shown that architecture, both in France and other countries of Western Europe, made a sudden forward start after the thousandth year of our era; possibly owing to the relief experienced at finding the futility of the prevalent fears that the world was to come to an end in that year. If such a simultaneous impulse did take place, it would be especially felt by a young and energetic race like the Normans, newly admitted into the Christian European family, recently reclaimed from the savage barbarism of Scandinavia, and grafted on to the old and comparatively civilised stock of France. Unlike, too, the other portions of France, Normandy had lost, in all probability, a large proportion of her ancient churches by the devastation of this very race while yet pagan; and nothing would be more natural than that, when Christianised, settled down, and instructed in the arts of their new neighbour, they would feel a special impulse towards repairing the effects of their own devastations, and would, while doing so, take a vigorous course in developing the manner of building in which they had been so newly instructed. I would{63} not, however, wish to claim for the Normans any great degree of originality in architecture. Different districts of France each possessed their own local variety of Romanesque, though all clearly of one family; and Normandy, like the others, had its own variety, and that a vigorous one; and to ourselves the most interesting, as having been transplanted into our own country and become the parent of all our architectural developments. What was the form of Romanesque which prevailed in Neustria before it was overrun by the Northmen and transformed into Normandy, I think we have no means of judging,[14] the relics of its buildings being so few and fragmentary as to offer no distinct evidence; but just as the converted Northmen in the days of Canute were in this country the earnest restorers and builders of churches, so did those who had settled in France become the vigorous promoters of the art which they had once destroyed; while, by a remarkable coincidence, they were the means of bringing over in a succeeding generation to those of their own and kindred race in England the developments which they had generated under more favourable circumstances and guidance in the country which had for a century and a half adopted them into its own family.

If, however, the more vigorous pursuit of the building arts in France dates, as I have conjectured, from the opening of the eleventh century, and was contemporary with the revived impulse in this country under Canute, it follows that the mode of building introduced by the Normans was not only{64} to the English, but in reality, a novum genus compositionis.

Quite in accordance with this is the character of what we call in this country Early Norman. Had Norman architecture been fully matured before its transplantation into England, we should not recognise its earlier productions by evidences founded upon rudeness and immaturity; yet such is unquestionably the case. Noble and vigorous as are the works of the Normans of the early days of their occupation of England, they undoubtedly bear evidences of an early and archaic stage of their form of art; and, even in Normandy itself, we do not find buildings of great architectural importance of dates much antecedent to those of the first structures built by the invaders of England. Early Norman in England would still be Early Norman, if in Normandy; so that we may consider the style, though generated on French soil, to have run the greater part of its course pari passu in both countries.

The investigations made and recently published by M. Bouet, of Caen, into the architectural history and changes of the abbey church of St. Stephen, founded in that city by the Conqueror, fully bear out this view, and show that the church, as built by William, was a very different and much more archaic structure than that which we now see; a large proportion of the more prominent features of which are proved to be the overlayings of later, though still Romanesque, times.[15]

As it is not my purpose, generally, to illustrate my description of the Norman style by its productions on{65} its native soil, I shall select the church just named as the point de départ, by means of which I shall transfer my consideration of the style from Normandy to England. There are several churches of earlier date than this, such as parts of the abbey churches of Jumièges and Bernay,[16] but St. Stephen’s is clearly the great connecting link. In the first place, it was built by the Conqueror, and was in actual progress when he invaded England; and, in the second place, Lanfranc, the first abbot of St. Stephen’s, which was built under his direction, was also the first metropolitan of England appointed under the Norman dynasty, and immediately on his assumption of the see of Canterbury,—only four years after William’s arrival,—he commenced the rebuilding of the cathedral (then lying in ruins), after the almost precise design of his own abbey church at Caen. This abbey church, then, at Caen, and the metropolitan church of England, were built under the influence of the same monarch and at the same time; for, though St. Stephen’s was first begun, it would appear that Canterbury was finished first: they were built under the direction of the same ecclesiastical head, and in all leading features were on the same design, their plans being absolutely identical. The only difference of importance was the existence at Canterbury of the crypt, on which the choir was raised by many steps,—a reminiscence of the church built by St. Augustine, described in my last lecture, while such did not exist at St. Stephen’s. Both churches had naves of eight{66} bays in length, in addition to which both had a western façade, with two flanking towers.

The transepts of both churches were of two unequal bays, and the outer bay of each had a gallery all across it, supported by a massive pillar (as at Winchester); in each there was in both transepts an apsidal chapel repeated on the triforium level; and though both have lost their original choirs, the probability is that both were of two bays long, with the addition of a simple apse. Professor Willis has shown that their very dimensions were nearly identical.

It has been discovered that at St. Stephen’s the western towers were a subsequent addition, though so early that little difference can be observed in their details. I judge from this that the towers at Canterbury were a deviation from the design of St. Stephen’s, which was at once rectified by adding them to the prototypic building.

The piers of St. Stephen’s are oblong masses, divided at each end into groups of three large shafts. To these are added, on the side facing the nave, shafts, alternately single and triple, which ran up to the roof. The triforium storey is almost a repetition, to a less height, of the main arcade; though, where it passes the western towers, it is divided into two sub-arches by a single shaft. Mr. Parker, whose excellent paper on the subject will be found among the Transactions of the Institute of British Architects, seems to think that the triforium floor was of timber, and the aisle unvaulted. Professor Willis was under the impression that it had had no floor, but that the two storeys were united, as is now the case at Rochester. This, I think,{67} seems disproved by Mr. Parker’s paper, and by M. Bouet’s drawings, which show a doorway opening into the triforium storey. This storey is at present vaulted above with a half-barrel vault. This Mr. Parker thinks an addition; but M. Bouet shows a remnant of it embedded in the east wall of the transept, where the old choir aisle has been removed, which seems to suggest its being original.

The greatest alteration which the older portions of the church have undergone is the addition of vaulting to the nave and the entire transformation of the design of the clerestory in a later Norman style, which, to a casual observer, seems to work in so well with the older parts as to appear original. M. Bouet and Mr. Parker have found the remnants of the original arcade,—which were uniform in height and incompatible with vaulting,—both in the nave and transepts, proving that vaulting was not contemplated in the first erection.

I am, however, rather anticipating my history, and must fall back upon a somewhat earlier period; for, though Canterbury Cathedral was probably the first church erected in England after the Norman Conquest, it was nevertheless by no means the first Norman church; for it was in a Norman minster that the Conqueror had, full four years before the works at Canterbury were begun, received at the hands of an English archbishop the crown of England.

You will remember that as early as 1013 Ethelred and Emma, the parents of King Edward the Confessor, had fled with their children from the fury of King Sweyn to the court of Richard le Bon, duke of Normandy. It followed that the education and tastes of{68} the future king were Norman; and long subsequently, after he ascended the throne, England so swarmed with Normans as not only to excite discontent but to give occasion to civil war. It was, then, natural that, when King Edward determined (about 1050) to refound the Abbey of Westminster, he should adopt for his new work a Norman rather than an English design. We accordingly find it spoken of by William of Malmesbury (writing in the following century) as “That church which he, the first in England, had erected in that mode of composition which now nearly all emulate in its costly expenditure.” Matthew Paris,—a century later,—says that Edward “was buried in the church which he had constructed in that new mode of composition from which many of those afterwards constructing churches, taking example, had emulated it in its costly expenditure.” These notices by men of whom the one knew most, and the other might have known all, of the Norman churches in England, are sufficient to prove the Confessor’s church to have been not of Anglo-Saxon but of Norman architecture; and, as they thought, the earliest of its style in this country.

Whether that erected by Earl Harold at Waltham, and consecrated in 1060, was in the same style, we cannot ascertain. His proclivities were certainly not Norman, yet he may have adopted the fashion just coming into vogue, though we find that other churches built nearly as late, and some even subsequent to the Conquest, still retained the older and more national character.

The church built by the Confessor at Westminster is thus described by a contemporary writer:{69}

“The house (domus) of the principal altar, constructed with very lofty vaultings, is compassed round with squared (stone) work uniformly jointed: the aisle[17] around the building itself is shut off by a double tier of arches from either side, the continuity of the work being firmly consolidated in every direction.

“Further, the cross (crossing) of the temple which would enclose the choir of those singing the praises of God in its midst, and by its two-fold support on either side would sustain the lofty apex of the central tower, rises at first simply with a low and massive vaulting; it then swells out with several staircases, skilfully ascending with many windings; then, with a plain wall, it runs up to the roof, which is of wood, carefully covered with lead.

“Below, however, and above are arranged in order chapels (domicilia), which are to be consecrated through their altars in commemoration of apostles, martyrs, confessors, and virgins.

“This multiplicity of a work so vast was, however, begun at such a distance from the east of the ancient temple, that even some part of the nave which was to lie between them, intervened with ample space, lest the brothers occupying it should be interrupted from the service of Christ.”

Another contemporary writer describes the church as “upheld by diverse columns, and vaulted everywhere with multiplicity of arches.{70}

From these accounts we may gather:—

1st. That the church was apsidal.

2d. That the aisles were of two storeys, and each of them vaulted.

3d. That there was a lofty central tower under which the choir sat, and that this had winding staircases, and was covered with a timber roof and leaded.

4th. We further learn that the church contained numerous chapels and altars placed both below and above, and that in the eyes of one who had, perhaps, lived to see several of the new Norman churches commenced, it appeared a work of vast size and great multiplicity.

Lastly, we find that it was placed so far to the east of the ancient church, that not only were the services in that church never discontinued, but that a portion of the nave of the new church might be erected. The latter proves, of course, that the entire nave was not completed by the Confessor himself, as he died within a few days after the consecration.

A writer of the thirteenth century, in a poetical Life of the Confessor, thus describes his works at Westminster:—

“Now he laid the foundations of the church with large square blocks of grey stone; its foundations were deep; the front towards the east he makes round; the stones are very strong and hard; in the centre rises a tower, and two at the west front, and fine and large bells he hangs there. The pillars and entablatures are rich without and within, at the bases and capitals; the work rises grand and royal; sculptured are the stones and storied the windows; and when he finished the{71} work, with lead the church completely he covers. He makes there a cloister, a chapter-house in front towards the east, vaulted and round, ... refectory, dormitory, and offices, in due order.”

This description adds to what I have before stated, that there were two western towers, though these were not really erected till later, but were, nevertheless, in all probability a part of the first design. It tells us also of the monastic buildings.

Of the scale of this first Anglo-Norman church we have some indirect means of judging. In the first place, it is unlikely that a church of royal foundation, built in juxtaposition with the palace, and intended as the burial-place of its founder, built also in substitution for a pilgrimage which he had vowed to make, should be other than of similar scale to the great churches erected at the time in the country whence he borrowed his architecture. In confirmation of this we have several evidences, not necessary here to state, that it differed but little in scale from the present church; indeed, had it been otherwise, the succeeding historians would hardly have spoken of it in the terms which they make use of.

As to its architectural character, we have little to guide us. We have the extensive substructure of the dormitory and the lower part of the refectory. From these we find that the offices were of the plainest variety of Norman; indeed, the pillars of the first-named structure are of the very extreme of massive simplicity, and the shafts of the refectory arcading have cushion capitals of the most normal type.

{72}

We have recently discovered, beneath the pavement of the altar space, the bases of two of the great piers of the Sanctuary: from which we find that they were clustered, not unlike those at St. Stephen’s at Caen. The bases consist of a double hollow, precisely like one from that church. The work is by no means so rough as that common in early Norman buildings; a circumstance which I have noticed in several pre-conquestal works.

Having noticed this one building in which Norman architecture was used in England before the Conquest, I will mention one or two instances of Anglo-Saxon architecture being used subsequently to that event.

I refer especially to two churches (St. Mary’s and St. Peter’s, at Gowts,) in the lower town of Lincoln. This portion of the city did not exist till after the Conquest; when, owing to the expulsion of many of the inhabitants of the old, or upper, city to make way for the Norman Castle and Cathedral, they were obliged to build below the hill, where they founded these two churches; building them in their own old English manner, while the castle and minster were being erected by the Normans in conformity with their own taste above. There are a number of towers between Lincoln and the Humber which correspond so closely in style with these as to lead one to assign to them the same date. Nothing can more manifestly prove the distinctness of the two styles than that the most marked church of the period was built by the Norman-loving Anglo-Saxon king in Norman architecture before the Conquest, and that old-fashioned English people still built in the Anglo-Saxon manner in the days of the Norman Conqueror.{73}

It is time now that we should consider what were the distinguishing characteristics of the Norman style.

According to Mr. Petit and Mr. Fergusson, the Norman is rather an early stage of Gothic than strictly Romanesque; and, though this may be said to be rather a question of nomenclature than of distinctive principle, I am inclined to think there is much real truth in it. I would rather, however, put it thus: that, among the many branches of the great Romanesque tree, this was one,—as the Anglo-Saxon was not one,—of those which contained the intrinsic elements of the future Gothic style. I gave my reasons, in one of my earlier lectures[18] (while not desiring a change of nomenclature), for holding the completed round-arch style to be, in a certain sense, one with the earlier-pointed, and for rather favouring Mr. Fergusson’s custom of calling them respectively round-arched and pointed-arched Gothic. It is better, however, in an historical sketch, to view each phase on its own bearing, and not to judge of it by anticipation of its subsequent results.

Norman architecture, then, judging of it from its principles, and throwing aside imperfections resulting from its development occurring in comparatively rude times, may, in the first place, be said to be an almost perfect carrying out into a style of art the arcuated system of construction; using, also, the simplest and most obvious form of arch, the semicircle. Roman buildings, when divested,—as in the case of aqueducts,—of Grecian or trabeated accompaniments, displayed often a perfect system of arched construction; but, in{74} such works, one cannot say that it had been developed into a style of art.

To effect this, both the arch and its supports and accompaniments must be moulded into artistic elements; their natural crudenesses softened; their mere normal character relieved; and each part subjected to a system of decoration suited to its proper character and conditions. The parts, too, which have been thus dealt with, must be studied as to their grouping. They must not be viewed as isolated objects, but as parts of an architectural work; each contributing to the beauty and consistency of the whole; and that also, by such combinations as are dictated by the varied suggestions arising from the purposes and demands of the buildings of which they form parts.

All this required time; and the length of time was, no doubt, increased by the rudeness of the ages during which the process had been going on.

Among the earliest approaches to so reasonable a result, the Lombard style had taken, perhaps, the lead in Western Europe; and, during the days when the three Othos governed Northern Italy as well as Germany, the good seed had spread from Lombardy into Germany, and it there grew into an almost perfect development.

Somewhat similarly, a well-considered development seems to have originated in Central France, and spread towards the north. Probably these two varieties may have come in contact, and in some degree influenced each other; for the early Norman architects, though mainly developing upon French models, appear to have been acquainted with those of the Rhine. How{75}ever this may be, it is certain that they developed for themselves a variety of Romanesque at once eminently reasonable, and susceptible of highly artistic treatment and combinations.

The elements of such a style are often not, as taken singly, peculiar to itself, but may be found in other and in earlier works: it is the aggregation of many such elements, and their judicious and artistic utilisation that constitutes the merits of a style.

Among the most important of these may be placed the sub-ordination of arches, by means of which, instead of going square through the thickness of a wall, they recede in orders or arched rims, each narrower than that above it, so as to give the entire arch or section of alternate salient and receding angles. This is the primary element; and it at once produces the second,—the breaking of the section of the bearing pier into a similar form to that of the arch. This, in the Anglo-Saxon style, was hardly known; while in the Norman it is the key-note.

At St Alban’s, where the unmanagable nature of the material,—the Roman brick,—rendering finished architecture unattainable, we find these two principles supplying all architectural requirements, and producing results certainly rude, but not unpleasing in their effect. This building is often said to partake of “Saxon” character. I think the very reverse of this; for the one thing to which it trusts for effect is that which scarcely exists in Anglo-Saxon buildings, while it is the leading principle in Norman ones. This error is the natural result of looking to rudeness of{76} workmanship and homeliness of material, instead of the principles of design, as the evidences of early style.

The next principle is merely the resultant of those already named. It is the decoration by mouldings of the salient divisions of the arch and the substitution of decorative shafts for those of the pier.

These principles do not necessarily accompany one another. An arch-order may be moulded or otherwise decorated, while the corresponding pier-order may remain square, the two being parted by an impost; or the decorations of the arch may, without the intervening impost, be continued through the pier; or, again, a shaft may be substituted for the pier-order, while the arch-order remains plain. The above principles, thus variable in their application, supply the most marked features in the perfected Romanesque style, nor can any arched architecture be perfect without them. To illustrate their effects let us take a doorway of the older English period, and contrast it with a Norman doorway.

[Image unavailable.]

Fig. 232. Saxon Door Jamb.

Fig. 233.—Norman Door Jamb and Arch.

The Anglo-Saxon doorway would, in all probability, be an arched opening straight through the wall, the door hanging against the inner face (Fig. 232). It may or may not be relieved by a pilaster strip on either side, and an impost to crown the pier, leaving it still a very primitive and inartistic composi{77}tion, with the door itself dealt with as if it had been forgotten and no provision made for it. We will suppose the Norman doorway to be of the same width and height with the Saxon one (Fig. 233). Its reveal, to begin with, is reduced to perhaps one-fifth of the thickness of the wall, and the door itself placed at such a distance from the exterior as the architectural grade aimed at may dictate, and this distance is divided into so many orders or recesses (each some 8 or 10 inches in depth in a moderate doorway) as may be thought best. These arched rims or orders may be either left plain or may be moulded, or otherwise decorated at pleasure. The jambs of such a doorway may be treated in several different ways. The simplest is to make the jambs continuous with the arch, with or without the interposition of an impost. A second mode is to substitute a shaft or decorative column, for one or all of the orders, excepting, generally, that with which the door itself comes in contact. Add to this an outer or drip moulding to sever the arch from the wall face, and you have the elements of a really well-considered and artistic doorway. Internally, the remaining thickness of the wall is arched in another order (either square or sloping), which arch has to spring at a higher level to avoid the catching against it of the door while opening.

A doorway thus constructed may be clothed with what decorations you think good; and, if you are working in the Pointed style, the principle applies just as well as in Norman; indeed, we have here the principles of nearly all good doorways, whether Romanesque or Gothic (Fig. 234).{78}

[Image unavailable.]

Fig. 234.

I have already described the application of the principle to an archway, which in its elementary form is merely the outer jamb of a doorway repeated on both sides of the wall. A shaft or demi-shaft may be substituted for the central order, or, if the wall be a little thicker, this shaft may be doubled; or, if thicker still, there may be two orders on either side of the wall besides the central one, or other obvious combinations may be made, rendering the archway, instead of a mere crude opening, an artistic composition, though trusting for its effect to a perfectly reasonable constructive system.

I will now suppose two such openings brought so closely together as to leave only a short space of wall between. We have then two such systems of recesses brought into close contact, making either a plain pier of comparatively sightly form, such as those at St. Alban’s; or, if shafted, we at once obtain the great feature of Gothic architecture, the clustered pier.

In cases where it was preferred to support the adjoining springings of two arches upon a single column, though the arch was sometimes left undivided, the same system of sub-orders was more usual. In this case if the abacus remained square, its angles, being unoccupied, would present a clumsy appearance. This led to the breaking of the capital into orders, though resting upon a single shaft, or the abacus was made round or octagonal.{79}

Such a column as this often alternated between two clustered piers, making an extremely agreeable group.

The developments I have described—so logical in their motive that one fancies that one might have originated them all by a mere process of inductive reasoning—supply nine-tenths of all the elements of the perfected Romanesque style.

Extend, now, the same principles to a vaulted space which we have hitherto applied only to an arcaded wall, and we gain another great instalment of the elements of the style by a simple process of reasoning.

[Image unavailable.]

Fig. 235.

Fig. 236.

The normal form of groined or intersecting vaulting,—the simplest manner in which a large space may be arched over in moderate spans,—is, by the two or more intersecting vaults, springing directly from a square pier (Fig. 235). Now, this is not only inartistic, but is bad in construction. The line of intersection is necessarily weak, and the vault requires aid to make it perfect in construction; and this can only be given it in the form of increased thickness, which is at once obtained by altering the form of the pier from a square to a cross form, and applying to the vault the same principle of divided orders as we have done before to arches (Fig. 236); only that, in this case the upper order is a vault, and the lower one only an arched rib coming in to aid the{80} vault. The groined vault is thus divided into compartments, and beauty and strength at once provided for. This elementary form may be decorated in a multitude of ways.

The mere addition of an impost and a base to the pier does much to relieve its plainness. We may, however, as in the case of arches, substitute shafts for the divisions of the pier, or double shafts where the ribs are wide; or we may, instead of amplifying the forms of the pier, concentrate it to a column, from whose capital the ribs spring, as we have already seen in case of the double arch.

When groining springs from a wall, nearly the same system applies, excepting that one division only of the pier is needed instead of all four. Thus the simplest provision is a mere projecting pilaster, carrying the cross ribs, the wall itself taking the place of the lateral ones. This pilaster may be converted into a shaft or a double shaft, or the rib may be amplified by a central semi-roll moulding, and the whole carried by a triple shaft or other combinations, or a corbel substituted for the pilaster or group of shafts. Thus we have vaulting reduced to a principle which, however plain, is at once artistic and constructionally good, and is susceptible of all degrees of ornamentation.

What I have said of doors applies equally to windows, subject to some modifications arising from their practical requirements. The simplest form of an arched opening, going square through the wall, is eminently unsuited to a window; and this is so obvious that it has rarely been used at any period, for the{81} square edges of a thick wall evidently prevent the light from diffusing itself in the interior.

The most favourable forms are those in which the jambs are sloped, either directly from the exterior inwards, or from some intermediate point, both inwards and outwards, so as to give the freest scope for the rays of light. In this respect I have nothing to say against the forms customary in the previous style.[19]

The Norman windows are of great variety. The simplest, which is prevalent in very homely buildings (as may be seen in many extremely humble churches on the cliff between Dover and Deal), is an opening with no external recess, but splaying at some 45 degrees inward, the glass being flush with the exterior. From this we have every variety of architectural grade; first, a chamfer or moulding added to the exterior; then, two orders, plain or moulded; or a shaft may be substituted for the outer order in the jamb, or the same repeated, as in doorways. Internally, the thickness of the walls continues to be splayed so as to diffuse the light, though in buildings of a high architectural class, mouldings or divided orders (with or without shafts) may enrich the inner angle, or may even take the place of the splay altogether.

In domestic windows two or more openings are often used externally, divided by a little column, the whole being internally united into a single opening. These are sometimes comprised on the exterior under{82} a single arch to increase the architectural effect.[20] The same is also used for belfries and other positions where use dictates it.

I have now shown you that doors, windows, archways, arcades, and vaulting were generated, as to their architectural treatment, simply by the exercise of logical reasoning.

In the general treatment of the exterior of a building the same prevailed. The walls, being thick, needed little buttressing, and this little was supplied, and the flatness of the walls at the same time relieved, by a sort of pilaster or slightly projecting pier placed at reasonable intervals, which were united under the eaves, in many cases, by a row of corbels. The walls were further relieved by projecting base-courses, and string-courses under the window cills or elsewhere; and, in buildings of a higher class, by decorative arcading or other methods of raising its architectural character.

In all the foregoing particulars, it will be observed that I have stated nothing but what could be arrived at by simple and almost abstract reasoning, almost apart from anything which, strictly speaking, belongs to style of art. The results, indeed, apply equally to all the more perfect varieties of Romanesque, and follow from the mere thinking out of the subject; and if we desired to strike out some new variety of arcuated architecture, we could not do better than start from a point thus logically arrived at. To say that these are the leading characteristics of the Norman{83} style, is saying at once too much and too little; for none of these characteristics would distinguish it from the Romanesque of Central France or Germany, which possess them equally with the Norman, while the latter certainly does possess features of its own, which would so distinguish it. These consist, however, for the most part, in the decorative details, and in the general composition of the buildings, but more particularly the latter; for, if the Rhenish, Central French, and Norman buildings were to exchange details, their composition would still distinguish them at a single glance, and each would be appropriated to its respective district in spite of any doubt about its details. The essential and logically derived elements are the same in all; the details, though united by a common bond of sentiment and feeling, differ in a certain degree,—while the customary forms of composition, though by no means contradictory, still differ so much as to leave no doubt about their being three, though evidently sister styles, or, rather, local varieties of the same great style.

Two very important features which Norman possesses, in common with other varieties of Romanesque, are, first, that, when a column is used for bearing weight, its diameter is made proportionate rather to its load than to its height; and, secondly, that columns are used also in a purely decorative capacity, and their diameter, in that case, is simply such as is best proportioned to their position; and most usually to the size of the arch-order they have, apparently, or really to carry.

We will now go into minor details.{84}

The first purely decorative features which we may imagine to have been introduced,—if the logical scheme I have been supposing had been strictly followed out,—would be the base-course of a wall, the impost to sever the pier from the arch, and the drip, or label, to draw the line between the arch and the wall. These mouldings in their elementary forms are alike. In Anglo-Saxon they were usually square courses (Fig. 237); in Norman, their simple form is the same with the angle cut off (Fig. 238).

[Image unavailable.]

Fig. 237.

Fig. 238.

This form for the impost and the label was adopted also, very usually, for string-courses; but, in all positions, it was soon relieved by additional forms, as the double chamfer, the quirk, the quirk and hollow, and the round and hollow, or the cyma (Fig. 239).

[Image unavailable.]

Fig. 239.

The primary idea of a capital to a decorative shaft is that of a cubical block over which the impost returns. It is, in fact, the upper course of the square portion of the pier for which the shaft has been substituted, or out of the substance of which it is cut (Fig. 240).

The object, therefore, to be kept in view in designing the capital, is to devise the best method or methods of bringing about a transition from the cylindrical shaft to the square impost or abacus. The simplest form used in early Norman work is little more than the mathe{85}matical solution of the problem, which would be the frustum of an inverted cone intersected by the faces of the cube.

[Image unavailable.]

Fig. 240.

The elliptical sections thus generated being unsightly, they would soon be converted into semicircles; and as these will not fit themselves to the true cone, a group of portions of conoids is generated, meeting in an indented angle, such as we always find in these caps, excepting in the very earliest. At no period, however, were the reminiscences of the Corinthian capital wholly ignored; and we accordingly, even in the earliest examples (and perhaps as frequently in them as in later ones) find a rude imitation of its form.[21] At other times we find the block covered with carved scrollwork; and at others, again, the extreme simplicity is obtained by a mere portion of a cone or a simple moulding intervening between the shaft and the abacus, as in the Confessor’s buildings at Westminster, and in the crypt at Winchester.[22] The bases consisted usually of a moulding following the curve of the shaft, and resting upon a square plinth, beneath which was a sub-base. The mouldings of the base were very various: they seem to have been suggested by the varieties of the Roman base; but they often take other forms, as in the Confessor’s work at Westminster, where we have a mere splay and a double hollow. The orders of arches were sometimes relieved by{86} being cut into large rolls; or the lower order in archways had a massive demi-roll attached to it. The roll was soon accompanied by a hollow, and these varieties almost exhaust the list of mouldings in the earlier examples, though we shall see that they subsequently increased into great multiplicity and beauty. Mouldings became, moreover, at an early date enriched. Thus we find the chamfers of a string or label relieved with the billet or short piece of roll left projecting from them at intervals. These chamfers are also enriched with chevrons of slight depth, such as masons sometimes impress in mortar with the point of their trowel. These simple ornaments, as we shall presently see, soon increased into endless variety.

The figure-sculpture of the period was of extreme uncouthness; often so much so as to be nearly unintelligible, though rapidly improving as the style advanced. The tympana of the doorways (which were sometimes filled in to the square, and sometimes to a low segmental arch line) were often filled with sculpture in slight relief. Heads were used as corbels (placed in a hollow moulding), and such rude art was introduced in other positions which might suggest it.

Soon it became frequent to relieve plain surfaces—whether to arch-orders, or elsewhere—with ornaments in very slight relief usually known as “surface ornaments,” which had the advantage of imparting decoration without disturbing essential forms. Of this, however, we shall see abundance as we proceed.

Having now traced out, by a system of rational induction, the essential elements of the style, we will proceed to some of the varieties of combination.{87}

Let us take, in the first instance, a portion of the nave or choir of a church.

If this be unaisled and unvaulted, it is a very simple affair. Windows at a reasonable height, dealt with agreeably to the architectural grade of the building,—probably a base-course, a string beneath the cills, and possibly pilaster buttresses between the windows, and a corbel-table uniting the same under the eaves.

If vaulted with a wagon-vault (as, for instance, St. Cormac’s Chapel, at Cashel),[23] the walls must be higher, and, it may be, the dead space which this occasions externally may be decorated by arcading. If, however, it is groined, the difficulty disappears.

Again, an aisled but unvaulted nave is of simple construction, but if the aisle be vaulted (unless, indeed, it be a mere demi-vault, which in this country is very rare), a greater complication is brought into existence. The groining requires that the aisle wall shall be fully as high as the crown of the arches between the aisles and the nave; and, as the aisle roof demands some reasonable height, it follows that there must be a considerable space of wall above the arches. This may be dealt with in several ways. If the nave be unvaulted, it is a blank space, or may be pierced by an arcade or other openings. If the nave is groined without a clerestory, the space is partly occupied by the springers of the vaulting, and the intervals may be pierced. If there is a clerestory, the space becomes what we call (though erroneously), a triforium; or (whether there be a clerestory or not), it may be made{88} more of and utilised by raising the aisle walls sufficiently to convert it into a second storey or gallery to the aisle (Fig. 241).

[Image unavailable.]

Fig. 241.

We possess a most complete instance of such an arrangement (though without a clerestory), in the chapel of the Tower of London,[24] where this space is made a gallery, covered with a wagon-vault and opens by a second tier of arches into the nave, which is itself covered by a similar vault. Had clerestory windows been in this case desired, the only change requisite would have been to groin the central space and the gallery, instead of giving them plain vaults, and we should then, with a trifle more height, have had a model, on a small scale, of the perfected arrangement of a vaulted and aisled church. Most, however, of our Norman churches in England are imperfect in two particulars as compared with this ideal. They have no groining to the central space, nor any vaulting to the gallery over the aisle. Several, as Durham and Lindisfarne, had the former, and Gloucester, and perhaps Tewkesbury, the latter; but I know of no existing church in England, nor of any perhaps of very early date, even in Normandy, which has both. The Tower chapel is the nearest approach;{89} and, strange to say, the pre-conquestal example at Westminster appears (if I read the description aright) to have had all these features complete, the central space being vaulted, and the aisle also vaulted in two storeys. Such was often the case in Central France, even at an early date, as we see in the Church of St. Stephen at Nevers, erected about 1063, where we find groined aisles, aisle-galleries with the demi-vault, a clerestory, and above it a wagon-vault to the nave.

The churches at Nôtre Dame du Pont at Clermont, Issoire, and some others of about the same date in Auvergne, are one point less complete, having all the features I have enumerated excepting only the clerestory: nor do I know that there is any specimen so complete and of early date in Normandy, so that King Edward’s church seems to have gone ahead of its types in Normandy, and its model not to have been reached by its successors in England.

Those principles of combination being attained, it was easy to carry them out into a complete building.

A nave, such as I have described, may be either continued, with the intervention of a chancel arch, into the choir, and terminated by an apse; or two such ranges of buildings may be made to intersect, the crossing space being surmounted by a central tower, supported on four lofty arches and by massive piers. The east end would usually be terminated by an apse; the cross building, or transept, by gables; and the nave perhaps, by a gable flanked by two towers, which terminated its aisles, or projected beyond them. Transepts may have two aisles, as at Winchester and Ely; one, as at Durham and Peterborough; or none,{90} as at Canterbury, St. Alban’s, and Norwich. In the latter case, apsidal chapels would probably project from its eastern face; and, if the choir aisle runs round the apse, similar chapels may open out of it.

This gives us the complete mechanical ideal of a great Norman church, though numerous are the varieties which it is capable of assuming.

I have occupied your time so long in my elementary investigation of the style that I must defer till my next lecture any attempt to describe its actual productions.

I will only now say that the vast scale and the endless number of the architectural works undertaken, and, in most cases carried out to completion by the early Norman builders, is such as to fill the mind with astonishment, when we contemplate them. Nearly every cathedral and great abbey was rebuilt on a stupendous scale; new cathedrals and new abbeys founded; and churches of all grades from these vast temples down to the smallest village church erected throughout the length and breadth of the country; while castles of the most portentous magnitude and prodigious solidity rose in all directions; the one class of building appearing to propitiate the divine aid, and the other to defy human opposition, as if the kingdoms both of heaven and earth were to “suffer violence,” and “the violent to take them by force.”

Few periods, probably, in the world’s history have been marked by the construction of buildings more multitudinous and more vast. Their architecture, as Mr. Freeman remarks, “majestic and awful rather than beautiful, no style is more truly religious or more{91} imbued with the spirit and position of the church” (and one may add of the State) “in its own day,” nor has any age “produced structures whose number, size, splendour, and richness bear more honourable testimony to the zeal and bounty of their founders.{92}

LECTURE XII.

The Transition.

Chapel of St. John, Tower of London—St. Alban’s Abbey—St. Stephen’s at Caen—Cathedrals of Winchester, Ely, London, Rochester, and Norwich—Abbey Church at Bury St. Edmund’s—Gloucester Cathedral—Tewkesbury Abbey—Cathedrals of Worcester and Durham—Waltham Abbey—Christchurch, Hants.

HAVING now given a general outline of the intrinsic principles of Norman architecture, I will proceed to offer a few brief descriptions of some of its earlier creations, or rather of a selection of such of them as have come down to our own day, or of which we have sufficient information to make the consideration of them profitable.

[Image unavailable.]

Fig. 242.—St. John’s Chapel, Tower of London.

I have already spoken at some length of Lanfranc’s Cathedral at Canterbury, and of its identity, in general design, with the Conqueror’s Abbey Church of St. Etienne, at Caen. I shall have to revert to this cathedral more than once in describing additions and alterations of later date; but there are no remains of Lanfranc’s original work of sufficient importance to warrant me in occupying your time upon it.{93}

[Image unavailable.]

Fig. 243.—St. John’s Chapel, Tower of London.

View looking East.

I have also alluded to the chapel in the Tower of London: of this most perfect and typical example of the very early Norman, I exhibit some illustrations. Severely plain, as befitted the chapel of a fortress, it is, nevertheless, as complete and as well designed a building as could well be produced. Apsidal, with continuous aisles, in two storeys, and vaulted throughout the central space and the upper aisle by unribbed wagon-vaults, becoming in the former case semi-domical on reaching the apse, and the lower aisle groined, it is more perfect in ideal than the choir of any English or Norman church that I am acquainted with of its period, and is parallel in this respect with the great{94} churches of Auvergne, only needing the clerestory to render it a complete type; a model of a perfect choir, with an entire absence (excepting in the capitals of the columns) of ornamental detail. Several of these capitals are like those which prevail in St. Etienne at Caen, and which appear in Remigius’s work at Lincoln; they are a dim reminiscence of the Corinthian capital, with a cross-formed block representing the rosette in the abacus; for, be it always remembered, that the abacus of a Corinthian capital was not the prototype of that of a Romanesque one, in which a substantial impost is superimposed upon the delicate abacus of the classic column. I give drawings from Caen (Fig. 248), from the Tower (Figs. 245, 246, 247), and from Lincoln (Fig. 249), to explain the identity and peculiar characteristics of these capitals. The common cushion capital is also freely used.

[Image unavailable.]

Fig. 244.—St. John’s Chapel, Tower of London.

South Aisle.

I will next go to St. Alban’s; not that I can distinctly assert it to be the next in date; but because it stood first in rank among abbeys, as Canterbury among cathedrals; because it was built by the friend and{95} companion of Lanfranc; and because the crudeness of its material, by divesting it of all decorative features, renders it a more purely typical and elementary example than any other we possess.

Founded only ten years after the Dioclesian persecution, when St. Alban became the proto-martyr of Britain,—destroyed during the invasions of Pagan Saxons, and refounded as an abbey during the last years of the eighth century by Offa, king of Mercia,—the church of St. Alban had become famous throughout Christendom.

[Image unavailable.]

Fig. 245.—St. John’s Chapel, Tower of London. Capital.

The two last Anglo-Saxon abbots having determined on its reconstruction, had incurred great labour in excavating among the ruins of the adjacent Roman city of Verulam to procure materials for the work; but a dreadful famine, followed by the Norman invasion, had prevented the realisation of their intentions.

[Image unavailable.]

Fig. 246.

Fig. 247.

St. John’s Chapel, Tower of London. Capitals.

In the year 1077 Paul, a monk of St. Stephen’s, at Caen, and a relative of Lanfranc, was appointed to the{96} abbacy; and, during the first eleven years of his tenure of office, he had “constructed the entire church” “of the stones and tiles from the ancient city of Verulam.” I presume, however, that this statement of Matthew Paris must be taken with some abatement, as we do not find the dedication to have taken place till 1115.

The church thus erected, though homely in material and of simple workmanship, was stupendous in its scale and prodigiously massive in its construction.

[Image unavailable.]

Fig. 248.—St. Stephen’s, Caen.

It is curious that, while the Abbot of St. Stephen’s, when made Metropolitan of all England, was content to copy his abbey church for his metropolitan cathedral, a plain monk of the same monastery, when made head of the first English abbey, should go so far beyond his former church in the scale of his new one.

A glance at the two plans will show the extent of the difference (Figs. 250, 251). While at St. Stephen’s the nave (including the façade) has nine bays, that of St. Alban’s has thirteen; while each transept of the former church had two bays and one apsidal chapel, those of the latter had each three bays and two chapels; and, while the choir at Caen had only two bays besides the apse, that at St. Alban’s had four.{97}

[Image unavailable.]

Fig. 249.—Lincoln Cathedral.

The western façade, too, differed in that while that at Caen had towers which closed in the ends of the aisles, those at St. Alban’s projected wholly beyond their side walls; thus increasing the width of the front by double that of the aisles. The effect of all these changes upon the dimensions of the buildings was that, while St. Stephen’s was only 300 feet long, St. Alban’s was 465; that while the transept of the former measured 140 feet in length, that at St. Alban’s was 210 feet; and that the widths of the two western façades were respectively 88 feet and 155 feet.[25]

The design, though of the most rigid and almost gaunt simplicity, was admirably proportioned; and, when compared with Norman churches of more kindly material, seems like the block model rather than the finished structure. The cause of this was the use, almost to the entire exclusion of finer material, of the Roman tiles from Verulam. With these, not only a great part of the mass of the walls, but the pillars, arches, windows, string-courses, and other{98} parts usually formed of stone, are almost exclusively constructed.

[Image unavailable.]

Fig. 250.—St. Stephen’s, Caen.

One might fancy that a vast structure erected of such materials might have a very picturesque appearance, and that the rich and deep red of the brick, alternating with an equal quantity of coarse mortar in the joints, and interspersed with rough flint work, might give to the general colouring of the edifice a warmth of tone, and a richness of texture which, on a general view, might more than make up for its ascetic plainness. But, oh! tell it not in our Belgravian Gath; neither publish it in the streets of our Tyburnian Ascalon! These Norman builders, like too many of their descendants in our own day, had no such artistic notions, but rejoiced in encrusting the whole,—within and without,—with one uniform coating of the smoothest and whitest plaster! St. Alban’s, when viewed from the ruins of Old Verulam, must have looked like a sort of “Moel Wynn,”—a white mountain; or, like the creation of a spell of Merlin,—hewn out of a single block of marble (Fig. 252)! Our romantic old Mediævals were not proof against such fascinations, for we find{99}

[Image unavailable.]

Fig. 251.—Plan, St. Alban’s.

St. Wilfrid glorying in having washed the York Minster of his day “whiter than snow;” and at Peterborough, it was the boast of one of the abbots, that he had so skilfully whitewashed his cathedral, that it appeared as if cut out of a single stone! But let us take comfort. Abbot Paul had not sunk to so low a depth! He had an eye to the sister arts; and we find him recorded as having enriched with painting the vaulting of the apse behind the high altar. Nor did he stand alone in his taste for such decorations; for we find now that every part of the plain old plastered walls, pillars, arches, and vaulting has been so enriched at different periods, the western side of the great piers of the{100} nave being richly painted with figures and subjects as the reredoses of the altars placed against them.

[Image unavailable.]

Fig. 252.—St. Alban’s Abbey at the close of the 11th century.

With such artistic relief as this, added to the stern and massive grandeur of its parts and the stupendous scale of the whole, and adding also the gorgeousness of the shrine of the Proto-martyr, and of the numerous altars and other objects which imparted beauty and solemnity, one may well imagine that the internal effect, notwithstanding the absence of architectural detail, was as noble as it must have been unique.

The roofs, internally, may be proved to have been masked by level ceilings, no doubt gorgeously painted like that which still remains over the contemporary church at Hildesheim in North Germany, or that but recently executed by Mr. Burges, aided by the charming art of Mr. Poynter, over the nave of Waltham Abbey. The present painted ceilings are, no doubt, the lineal successors of the Norman ones.{101}

In the midst rose the stupendous piers and arches which sustained the tower, between which the open lantern soared high above the church, while beneath this lofty centre of the stupendous cross were ranged the stalls of the monastic choir.

I illustrate this wonderfully dignified and impressive structure by several drawings of the whole and of parts. It will be seen from this how simply and almost exclusively it trusts to the most elementary principles for its architectural effect. First, to its general grouping and proportions, which are a perfect model of a typical Norman church, bereft of its usual details; and, secondly, to the simple principle of divided orders, which I have before explained, but used in nearly all instances without the aid of decorative shafts or mouldings.

The proportions of the internal elevation are such that, if the entire height of the wall be divided into nine parts, four go to the main arcade, two to the triforium or gallery, and three to the clerestory (Fig. 253).

[Image unavailable.]

Fig. 253.—Sectional view of Nave, St. Alban’s.

The arches of each are of three orders, and are, for the most part, without shafts; the section of the jamb and arch being the same, severed only by a simple{102} impost. A broad pilaster buttress runs up the face of each pier from floor to ceiling.

[Image unavailable.]

Fig. 254.—St. Alban’s Abbey. Balusters.

In the transept, however, the triforium is differently designed, being subdivided into coupled arches, and supported by stone shafts. Many of these shafts are balusters (most likely of Offa’s church) made use of again, with the addition of a Norman capital and base, and sometimes eked out in length by the interposition of Roman tiles (Fig. 254). Like the balusters I have had the opportunity of examining at Dover and at Jarrow,[26] they bear evident marks of having been turned in a lathe.

The outer wall of the gallery storey has been removed, but of its former existence there is distinct evidence; the mark of the roof, as seen against the transepts, showing that the aisle walls have been lowered by some 8 or 9 feet. Only three bays of the aisles retain their vaulting, which is of the most typical form of groining. It is capable of almost certain proof that the roofs were throughout devoid of parapets. The transept fronts were divided up the middle by a wide pilaster buttress, and flanked by similar ones. Their windows, as nearly all others, are of the greatest simplicity; three recessed orders in jambs and arches alike, with imposts to the two outer ones: above{103} the springing line, however, of the gables, were ranges of double windows divided by stone shafts. Each transept has a staircase in its western angle which runs up into an ornamental round turret, with four double windows in its upper stage, and was most likely crowned with a cone. These staircases led into the triforium passages and into the roof.

[Image unavailable.]

Fig. 255.—Belfry Stage of Tower, St. Alban’s.

The tower has three stages above the ridges of the roofs. The lower one has plain windows lighting the lantern; the second has, on each side, two pairs of double windows; and the upper storey has two such windows of large scale. The tower is flanked with pilaster buttresses merging in the upper storey into round turrets.

I will next take Winchester Cathedral. York would have claimed precedence as a metropolitan church, but its Norman remains are so small in extent as to neutralise its claims. I may mention, however, that Professor Willis (whose marvellous perception of antiquarian evidence enables him to describe, almost with precision, buildings of which the common observer would{104} conclude that no relic or evidence exists) has shown us that the Norman cathedral at York (begun soon after 1070), was a structure of prodigious magnitude, and exceeded in the width of its nave any church in England; measuring 50 feet from centre to centre of its piers.

Winchester may be said, in these early days, to have rivalled London as the capital of England; for it had been the capital of that Saxon kingdom which brought all the others into subjection, and whose kings became kings of England; while London—the capital only of Essex, a kingdom subordinate to Kent—owed its greatness simply to its river.

We have already seen that the cathedral, founded by Birinus in the seventh century, had been rebuilt by Athelwold and Elphege in the tenth century.

In 1079 it was again rebuilt by Bishop Walkelyn, a chaplain and relation of the Conqueror, and finished about 1093.

Walkelyn’s Cathedral exceeded in vastness even Abbot Paul’s stupendous work at St. Alban’s. Its nave was of eleven bays, besides two vast western towers. Its transepts each had four bays; its eastern arm four bays, besides the apse, which had a surrounding aisle, and was flanked by two small towers.

Its length, independently of an eastern chapel, was 485 feet; or, including this chapel, 530 feet. The length of its transept was 225 feet (it was double-aisled, that at St. Alban’s being unaisled), dimensions which exceed those of St. Alban’s, and leave those of Lanfranc’s metropolitan church far in the background.{105} The width, too, of the nave and its aisles was greater than that of St. Alban’s.

The architecture of this vast temple was of stern simplicity, though, being carried out in stone, it was much more fully developed than that of St. Alban’s. It was, in fact, a full and typical development of the Early Norman, with every feature complete, though all in their plainest garb.

All which now remains of this date is the transepts and the crypt (Fig. 257) of the eastern arm, and they may be described as the text-book of Norman in its earlier form. The transepts, as before stated, were doubly aisled, and (as Canterbury, Ely, and at Caen) a gallery crossed the outer bay of each, supported on a massive round pillar, so as to render the upper aisle continuous.

The plan of the piers of the transept, which probably gives us also that of the rest of the church, is very perfect and typical (Fig. 256).

[Image unavailable.]

Fig. 256. Winchester Cathedral.

Their figure may be generated by the process I have described in my last lecture. Take a block of wall about half as long again as its thickness; cut out from each of its angles the recess of an order; substitute half or three-quarter shafts for the part which supports each order; and the pier proper is complete. It still needs, however, supports for the vaulting of the aisle on the one side, and for the central roof on the other. The former is given by adding to that side a pilaster of equal size with the transverse rib of the vaulting, and substituting for its front portion a demi{106}-shaft; the latter by a similar projection with the addition of two smaller shafts on its flanks. Nothing could be more perfect or more typical than this arrangement. The capitals are everywhere of the cushion type, in its simpler form; the arch-orders square, and without labels. The entire height of the wall being divided into three, the upper, or clerestory, may be said to occupy one-third; the remainder being divided between the great arcade and that of the gallery, or upper aisle, in the proportions of about four and three.

The gallery, or triforium pier, is similar in plan to that below, but the arch is divided into two widths, in the sub-order, by a central shaft bearing two smaller arches. The clerestory, in its more typical bay, is divided into three widths by small shafts, the side spaces being low arches, and the central one being considerably elevated, and containing the window.

Through this storey passes the passage in the thickness of the wall, which ought more properly to be called the triforium.

The transept elevation is divided vertically into two compartments by a large pilaster buttress, both without and within, and is externally flanked by similar buttresses. In height it is divided into three storeys, ranging with those of the interior, already described, the aisles naturally containing two of these storeys; the upper of which has small windows in the sides, and large ones in the gables. The windows are (as a rule) shafted singly, without and within, with a deep splayed jamb internally filling the interval. Those of{107} the upper storey of transepts fronts are arranged internally to correspond with the clerestory. The gable of the south transept is enriched with intersecting arcades.

Unfortunately, the central tower, of the early period, fell shortly after its erection, rebelling, as it was thought, against the ungrateful task of overshadowing the body of the detested Rufus.

This untoward behaviour has had the effect of rendering the work imperfect; for, had the crossing remained, one could supply the choir and nave with a fair amount of certainty. As it is, we cannot make any imaginary restoration, for the whole of the centre, with the adjoining bays, has been rebuilt in a later Norman style, influenced by a morbid fear of a second catastrophe, which led to an undue bulkiness in the piers, where better foundations and harder material would have supplied sufficient security. Let us hope that no second Rufus may be buried beneath the shadow of our precious monuments of art-history! The tower, however, as rebuilt, is a noble work, though of small height. That such stumpiness of proportion was not viewed as essential to the style, we have practical proofs at St. Alban’s, Tewkesbury, and Norwich; so we may safely conclude that, like the needless bulk of the renewed piers, it was the result of the fear that their power would again refuse to canopy the red-haired king, who still lay in the midst of the church, though removed a few feet from being under the tower.

The crypt (Fig. 257), which gives us the form of the original sanctuary and eastern chapel, is a fine example{108} of the Early Norman where used for simple purposes. The columns bear some resemblance to those of King Edward’s work at Westminster, though much lighter. Their proportions, however, cannot be seen, owing to their being buried deep in earth, which is, I am sorry to say, not the only barbarism for which the chapter there are responsible.

[Image unavailable.]

Fig. 257.—Crypt, Winchester Cathedral.

The nave, as is so well known, was converted into another style by Wykham and his predecessor, Eddington (Fig. 258); the last-named of whom must, I suppose, have destroyed the two western towers, if ever they had been carried up. We know them only by their foundations.

In the same county are the two noble minsters of Christchurch and Romsey, the former of which I will mention presently; meanwhile I will carry you in thought to Ely, where Walkelyn’s brother, Abbot Symeon, undertook, a little later and in his extreme old age, the reconstruction of his abbey church on a vast scale. The parts built or commenced building by Symeon were the eastern arm, the transepts, the central tower, and probably a bay of the nave; for, be it{109}

[Image unavailable.]

Fig. 258.—The Nave, Winchester Cathedral.

remembered, the eastern arm was, not in those days, as afterwards became customary, the choir, but rather the sanctuary, or, more correctly, the sanctuary and presbytery conjoined. The choir,—that is to say, the stalls for the monks or canons who sat in choir,{110}—was under the central tower, and often ran a little into what we call the nave. It resulted from this that, in cases where funds did not permit the completion at first of the entire building, it was customary to build from the east end up to the second or third pillar of the nave, so as to provide for the actual requirements, and also to give an abutment to the central tower.

[Image unavailable.]

Fig. 259.—Plan, Ely Cathedral.

Abbot Symeon’s plan was formed on the largest scale (Fig. 259). His transepts had each four bays in length, and, like those of his brother’s church at Winchester, were aisled on both sides. He also built the gallery across the transept, as at Canterbury and at Winchester. His eastern arm was of four full bays, added to which was a smaller bay and an unaisled apse. The aisles of the eastern arm were square-ended. The pillars of the transept were generally round, though in some cases clustered, and their capitals were totally different from those used by his brother, being a quaint reminiscence of the Corinthian.{111}

The proportions of the interior, in point of height, differ from those of Winchester; and it would seem, that the height being divided into three, one was here given to the gallery or triforium, the remainder being divided between the great arcade and the clerestory, with proportions of four to three; so that the main arcade retaining the same proportion as at Winchester, there is more triforium and less clerestory, differences which were increased in building the nave.

The galleries, originally built across the ends of the transepts, were removed during later, though still Norman, times; and an arcade of slight projection substituted. The clerestory differs from Winchester in the arches of the three openings springing at equal height, and the plans of the piers differ considerably. Those in the transepts (as before said) are round and clustered, the latter consisting of the customary group of three shafts on its lateral faces, with a single shaft at back and front, for the vaulting and the roof, making together a perfectly uniform group of four larger and four smaller shafts (Fig. 260). The round columns have a shafted pilaster attached to them on the side facing the aisle (Fig. 261).

[Image unavailable.]

Fig. 260.

Fig. 261.

Transept Piers, Ely Cathedral.

The nave piers are of alternating forms. The one is founded on the circular column, but has not only the shafted pilaster at the back, as those in the transepts, but two shafts, to carry an extra arch-order, in front, and a group of three running up to the roof (Fig. 262). The other form of pier is like that at Winchester, with the addition of an{112} extra order, and has the triple shaft running up to the roof, as that last described (Fig. 263).

[Image unavailable.]

Fig. 262.

Fig. 263.

Nave Piers, Ely Cathedral.

The triforium piers are very similar, though lighter, excepting that the round pillar has lateral shafts to carry the sub-arcuation. All the orders are moulded.

How far the general plan was laid down from the first by Symeon is not known, but it differs from other cathedral and abbey churches in having a magnificent transept at the west end. Whether what we call the foundations of towers at Winchester may have been a foreshadowing of the arrangement, I cannot judge; but from its extraordinary scale (far exceeding that of western towers in general), I think it not unlikely. There was also some distant resemblance to this in the façade at Bury. Though, judging from the number of its bays, one would think the size of Ely and Winchester not very different, there is a disparity in the essential scale, which causes it to fall far short of the dimensions of Walkelyn’s church. The widths of naves from centre to centre of piers are respectively, 42 feet 6 inches and 37 feet 6 inches; and that of the bays, similarly measured, are about 22 feet and 19 feet 9 inches.

The nave is of thirteen bays, besides the western transept. These parts were added in the course of the twelfth century, making the whole length (not measuring the west porch added in another style), about 420 feet, the transept measuring about 190 feet in length.

There was, of course, a central tower as usual, but{113} there was a second tower of great size, and probably of greater height in the middle of the western transept, which transept was flanked at its angles, with vast polygonal stair-turrets, and had large and noble apsidal chapels projecting from its eastern sides. These parts are in the Transitional style, which I do not touch upon during this session; but I may here say that, whether projected from the first or not, a more magnificent addition to the usual features of a great cathedral or abbey church, can hardly be imagined, though what its effect was when the central tower existed, and the western one was crowned by a vast leaded spire, one can hardly now appreciate.

Abbot Symeon’s tower had the same radical weakness with that built by his brother, and though it lasted longer (having no Rufus beneath it), it at length gave way, and was succeeded by the remarkable structure now forming the unique centre of the glorious temple.

Of doorways, windows, etc., I will not now treat, though some of the latter are of great beauty. Were it not that I limit myself during the present lecture to buildings begun during the eleventh century, I should here have noticed Peterborough, whose eastern end was a manifest imitation of that of Abbot Symeon.

Abbot Symeon died at a hundred years of age in 1093. Of what a long course of events had he been a contemporary or an eye-witness! He might have remembered the congratulations called forth by the failure of the prognostications of the world’s coming to an end in the year 1000. A relative of the ducal family of Normandy, he might have witnessed, when{114} in early manhood, the arrival of Ethelred and Emma with the destined king, confessor, and saint, when they fled from the ravages of King Sweyn; and he might have even directed the education of the Confessor-King. In architecture, he might have watched almost from its rise the development of the Norman style, and have assisted, when at early middle age, at the consecration of Duchess Judith’s Abbey Church at Bernay, which is now our earliest specimen of what was then the rising art of Normandy, and long subsequently became that of England, and of which he and his brother,—now in their old age,—had become respectively the founders of two of the noblest examples.

Before describing any other of the remaining works of the period, I will carry you in imagination to one which has long ceased to exist. St. Paul’s Cathedral in London was founded, as we have seen, early in the seventh century, by Mellitus, the missionary bishop, and by Sebert, king of Essex. Having been destroyed by fire, its rebuilding was commenced in 1083 by Bishop Maurice. The structure then commenced was of the most ample dimensions. The elementary scale was larger even than that of Winchester, for the width of the nave from centre to centre of the pillars was 46 ft. 6 in., while that of Winchester was 42 ft. 6 in. The nave was twelve bays in length, and each transept had five bays, exceeding in this respect (so far as I know) any other Norman church, excepting the Abbey at Bury St. Edmund’s. The transepts were doubly aisled. The choir had, probably, four bays, but of its eastern termination I know nothing.

The central tower must have been nearly 60 ft.{115} square, and the length of the transept 300 ft. The choir was raised high on an extensive crypt (the successor, in all probability, of that which I have conjectured Bishop Mellitus had constructed on the model of that of St. Peter’s at Rome). Whether the two western towers, placed beyond the outer walls of the aisles, like those of Abbot Paul at St. Alban’s, were of the original date, I am uncertain.

The architecture of the interior seems to have somewhat resembled that of Winchester, but was more lofty and more ornate. The plan of the pillars seems precisely the same; but the arches both of the main arcade and of the gallery were moulded, and circumscribed apparently by an enriched label. The triforium arches are not shown as subdivided, but I think that this was owing to an alteration of the original work. The clerestory had in each bay three openings. The aisle walls were, internally, arcaded beneath the windows. Whether the circular windows, which in Hollar’s view light the triforium storey, represent original ones, such as those at Waltham, we cannot judge.

Of this stupendous edifice, William of Malmesbury, who saw it in its unaltered state, remarks, that “such is the magnificence of its decorations that it is reckoned worthy to be numbered among the most illustrious edifices; such the extent of the crypt, such the capacity of the temple above, that it seems capable of sufficing to hold any multitude of people.”

Our old London cathedral, through the whole period of its existence, appears to have been the largest in England, and one of the largest in Europe,{116}—its dimensions at a later date being 600 ft. from east to west, 300 ft. from north to south, and 520 ft. in the height of its spire.

One of the great builders of the first race of Anglo-Normans was Gundulph, a monk of the famous Abbey of Bec, and the friend of Lanfranc, who, in 1077, consecrated him as Bishop of Rochester.

He rebuilt his cathedral, originally founded by the missionary Bishop Justus; but it is very doubtful whether any important part of his cathedral now exists.[27] He founded, also, the Castle at Rochester, though he did not build the magnificent keep usually attributed to him. He did, however, build the still more stupendous keep of the Tower of London, including the chapel already described, having been regularly employed by the king as the surveyor of the work.[28] The existing remains of Norman style at Rochester differ so entirely from this in character that I am convinced that the parts of the cathedral which he built were just the eastern portion,—raised high on its crypt,—which were rebuilt again in the thirteenth century.

Though not precisely in order of date, I will take next the great cathedral of East Anglia, which was erected, not on any ancient site, but wholly anew at Norwich; and of which nearly the entire shell of the original fabric has come down to our own day.

{117}

It was commenced in 1096 by Bishop Herbert de

[Image unavailable.]

Fig. 264.—Plan, Norwich cathedral.

Losinga, who (O tempora! O mores!) had, among other acts of simony, purchased the see of the sacrilegious Rufus for £1900!—a sum equal in our money to nearly £40,000. His apologist excuses this on the ground that it is lawful for the clergy to purchase the rights of the church if they cannot obtain them otherwise, adding the apostolic words, “Redeeming the time, because the days are evil.” The Pope, however, did not take this view, and sentenced him, for his simoniacal practices, to build a number of churches at his own cost, of which this stupendous edifice would appear to have been one, for it is distinctly{118} stated that he built it at his own charges,—a most amazing fact, though he held the see for twenty-eight years; and our surprise is increased when we recollect that the stone of which it is constructed was transported from Northamptonshire.

The plan of the church (Fig. 264) differs from that of St. Alban’s mainly in there being only one apsidal chapel to each transept, the aisle being continuous round the great apse, and in the projection therefrom of three chapels; also in the absence of western towers. Two of the chapels last named remain, and are of remarkable plan, a circle, from the eastern part of which projects an apse. The nave attains the vast number of fourteen bays; each transept has four; and the eastern arm a like number to the commencement of the apse. The length is 420 ft. without the eastern chapel, now lost; that of the transept is 195 ft. Like St. Alban’s, we have here the original central tower rising to its full height of 135 ft. It is richly decorated, both without and within, with ranges of arcading and other ornamental features. Within it rises a lofty lantern, round which are triforium passages on two levels. The angle buttresses without consist of a group of numerous shafts forming an octagon, and ending in turrets now terminated in another style. The upper part of the walls is curiously filled up with two ranges of large circles. The tower is a very noble work, though somewhat eccentric in its design.

We find here the aisle and its gallery, or triforium, of about equal height, and occupying about three-fourths of the height of the wall; the remainder being given to the clerestory. The triforium arches are{119} undivided, and very much resemble those of the main arcade; differing chiefly in being generally uniform, with a slight alternate variety, while those below are subjected to frequent changes.

[Image unavailable.]

Fig. 265.—Part of Nave, Norwich Cathedral.

The usual pier on the triforium level has three shafts in a row in its reveal, carrying a wide and plain soffite, while the angles have alternately one and two recessed shafts, and the piers have alternately single and couple shafts running up their front.

The piers below are in some cases like those above, in others a portion of a vast round pillar is substituted for the row of three-shafts, the rest remaining as before{120} described; and in one instance, on each side is a simple round column with spiral flutings, as at Durham, Waltham, etc. (Fig. 265).

[Image unavailable.]

Fig. 266.—Plan of Abbey Church, Bury St. Edmund’s.

The zigzag and billet appear in the arches, and mouldings are, though sparingly, introduced. The capitals are mostly either of the cushion type, or varieties of the form I have shown you from the Tower of London, Caen, and Lincoln.

The whole internal effect is magnificent and noble in a very high degree.

The transept-fronts are divided here into three bays instead of two, as in the churches hitherto described. The arcades of the eastern arm differ considerably from those of the nave, while those of the apse unite in a very pleasing manner into a {121}continuous range. Beneath the central arch are still remaining the shattered vestiges of the original episcopal throne.

I may mention in passing the remarkable plan of the great East Anglian abbey church at Bury St. Edmund’s. I exhibit a ground-plan, from which its remarkable features and extraordinary magnitude may be judged (Fig. 266). The length was 500 ft, and that of its western façade 250 ft. The latter is of a unique type, being flanked by two vast octagonal towers.

A very different type of the same age is found at Gloucester, the erection of which commenced in 1089. Here, as was so usual where the foundation was of the Anglo-Saxon period, the sanctuary has a vast crypt beneath it (Fig. 267).

[Image unavailable.]

Fig. 267.—The Crypt, Gloucester Cathedral.

The peculiarities of this church are two,—first, the triforium or gallery of the eastern arm is vaulted with a demi-vault, and from it opened repetitions of the{122} apsidal chapels, which are placed somewhat as at Norwich; and second, no such gallery exists to the nave, but the height is there thrown into the aisle; so that we have a very lofty aisle of one storey to the nave, and two ranges of aisle of very low proportions to the eastern arm, the two arrangements coming face to face in the transepts. The piers throughout were vast cylindrical columns, with very plain and uncouth round capitals.

This remarkable type was followed, with minor variations, in the two neighbouring monastic churches of Tewkesbury and Pershore. In all it has been greatly altered; but, by comparing one with another, the same scheme is shown to have prevailed in all three. In none were there aisles to the transepts.

The church at Tewkesbury was built just at the same time with Gloucester, and retains a feature which Gloucester has lost, a magnificent Norman central tower.

This church is of peculiar value from its retaining, like those of St. Alban’s and Norwich, so much of the original Norman outline, and few there are which exceed it in the solemn dignity of its external aspect.

Of the neighbouring cathedral of Worcester, as rebuilt about this time or a little earlier by St. Wolstan,—one of the few English bishops who retained their sees under the Normans,—we have only the crypt,[29] which is wonderfully perfect in its design and preservation, and the arches which led into the eastern chapels of the transepts. We have also the unique{123} and beautiful circular chapter-house of about the same period.[30] Against the south transept, in an arched passage, we find either a reminiscence of the Saxon baluster or some from the older cathedral used again. St. Wolstan would, no doubt, have been glad of any such memento of good old times; remembering which, while watching the progress of his Norman Church, he could not restrain his feelings, and exclaimed, “We wretched people destroy the works of the saints, that we may get praise for ourselves. That age of happy men knew not how to construct pompous edifices, but they knew well how, under such roofs as they had, to sacrifice themselves to God, and to set a good example. We, alas! strive that we may pile up stones, neglecting, the while, the care of souls.”

I will not detain you by describing Hereford, built by the more pious relative and namesake of Losinga, of Norwich;[31] nor Chichester, commenced about 1089, a few years after the removal of the ancient see from Selsey, and which was a very perfect Norman cathedral on a minor scale, with its eastern end arranged much as that of Norwich, but with two western towers. Its original features are excellent specimens of the early period.

Let us now travel far northwards, and visit St. Cuthbert’s glorious shrine; but, after entering upon the great Northern road, let us step aside and pay a pass{124}ing tribute to the memory of England’s last Saxon king, Harold Infelix, in the church of his own founding, at Waltham.

When the nave, now standing, was erected, let us not too curiously inquire. It is a question on which some of our keenest antiquaries have differed, and let us not dispute over a site so sacred in England’s history. Right goodly is the remaining fragment, by whomsoever erected. I confess to a belief that it was the work of some who still loved the memory of Harold, after living long under Norman sway; and if, in after years, the chieftains of Norman lineage delighted to trace their names in the roll of Battle Abbey, that proud memento

Of Hasting’s fatal field,
Where shiver’d was fair England’s spear,
And broken was her shield,

be it rather for Englishmen to take a mournful pleasure in the spot whither were borne from that fatal field the mangled remains of England’s native but unhappy king.

The two are alike mementos of national humiliation; but let us rejoice that, though the triumphal thank-offering of the Conqueror is now a desolate ruin, the remnant of Harold’s foundation, however reduced, is still a church, and has been in our day rescued from much of its humiliation, and been made the subject of thoughtful and artistic care.

Its architecture has some resemblance to the glorious work which we have next to consider; for, like Durham, its bays are arranged in couplets. In one instance, on either side, the intermediate pier is a{125} round column, pure and simple, with spiral flutings; in the others, the same form but with attached shafts towards the aisles, so that the two buildings which I have thus accidentally taken—the one on our pilgrimage to the other—are so much alike in internal design that one might fairly attribute them to the same architect.

[Image unavailable.]

Fig. 268.—Waltham Abbey.

At Durham we have a glorious temple erected by Norman bishops, over the shrine of a British saint. The body of St. Cuthbert, after many journeyings and sojournings, had eventually become domiciled at Durham; for,

“After many wanderings past,
He chose his lordly seat at last,
Where his cathedral, huge and vast,
Looks down upon the Wear;
There, deep in Durham’s Gothic shade,
His reliques are in secret laid.”

The existing cathedral was commenced in 1093, by the Norman Bishop de St. Carileph. Malcomb, king of Scotland, and his true-hearted English queen, Margaret, assisted in laying the first stones.

Sir Francis Palgrave tells us that Bishop de St. Carileph obtained the design abroad during three years’ exile from his see. I know not of any church like it abroad, but this is no refutation of the statement, which seems by no means an unlikely one, and is, I think, founded on ancient authority. However this may be, a design more noble can scarcely be conceived, and I think it must be admitted that, among all the{126} churches erected by the Normans in England, this is the noblest though far from being the first in size.

Its great beauty is internal, and arises from the carrying throughout the principle of alternating clustered piers and vast round columns, the latter having their shafts decorated with spiral, zigzag, intersecting, and vertical flutes.

This principle, in an isolated form, we find elsewhere: as in two bays at Norwich, and a similar number at Selby, and more perfectly at Waltham, and at Lindisfarne; Durham, however, seems to have taken the lead in carrying it throughout the church. But still more remarkable is the stupendous scale and noble proportions in which it is produced.

Though the church was begun by Carileph, he only survived its commencement for three years, and a like interval of vacancy followed his decease. During this time the monks, under their zealous prior, Turgot, carried on the work, which, on the succession of Ralph Flambard to the see, in 1099, is said to have been completed.

It is clear that the general design had been laid down under Carileph, as the choir, transepts, and nave agree in their leading idea; so that, whatever influence the previous building experience of Flambard obtained during his holding the deanery of St. Paul’s or elsewhere may have had upon the details of his nave at Durham, we must award the honour of the scheme, as a whole, to Carileph’s architect, who had supplied him the design during his exile in Normandy. Both bishops were as far as may be from the beau ideal of

[Image unavailable.]

Fig. 269.—Plan, Durham Cathedral.

{127}

an unworldly ecclesiastic, but one would regret to attribute a work so noble to the unscrupulous and wicked agent of the oppressions of Rufus.

In plan (Fig. 269), the church, being arranged in coupled bays, two such couplets are given to its choir and two to either transept (the latter much narrower than the former). The nave consists of three couplets, after which comes a single bay, and then the bay which represents the western façade; or, in other words, it consists of four couplets, the westernmost of which is disturbed by the substitution of a complex pier on either side to carry the towers, in the place of what would have been its round column. This seems an imperfection; for four couplets, clear of the tower bay, would appear a more perfect arrangement.

The transept has only an eastern aisle. The eastern termination of the church is lost. It was apsidal, and probably with a circumscribing aisle. The dimensions of the entire building are not quite equal to some of those which we have reviewed, being probably at first about 430 ft. in length by 200 ft. from north to south of the transept. The width from centre to centre of columns is 40 ft. The bays of nave and choir, similarly measured, vary from 23 ft. to 26 ft.

The piers are of prodigious size, the clusters and round pillars being respectively about 11 ft. and 7 ft. in diameter. The magnificent grandeur of the interior arises as well from the extreme nobleness of the design of these couplets of bays, as from their continuous use throughout the church. Nothing can{128} exceed the noble simplicity and grandeur with which they are treated, nor the happiness of their proportion (Fig. 270).

The main arcade assumes a much more commanding altitude than in most of the churches already described, occupying, what became in after-times its received proportion, of one-half of the height of the wall, the other half being pretty equally divided between the triforium and clerestory.

[Image unavailable.]

Fig. 271. Durham Cathedral.

The great columns are precisely like those at Winchester, excepting that the three-fold group of shafts, which there occupies the lateral portion, is precisely repeated on the front and back faces, making a perfectly uniform group in all directions (Fig. 271). This arrangement produces great grandeur, owing to the noble group of shafts it carries up to the vaulting of the central space. The arches are boldly moulded, with rolls and hollows, and enriched with the chevron. The triforium, piers, and arches are of three orders; the lower one dividing into two arches on a centre shaft. The clerestory is usually of three unequal arches.

The capitals are all of the cushion type; those to the great cylindrical columns being octagonal. The chevron is here freely used, and the doorways are magnificently rich. One most marked feature in this cathedral is, that its central space is everywhere vaulted.

It is known that this was a subsequent work; but, in the nave at least, it appears equally clearly to have

[Image unavailable.]

Fig. 270.—Part of Nave, Durham Cathedral.

{129}

been contemplated from the first, a portion of the transverse ribs having been built with the walls. In the transept, however, the evidence seems to be the other way, though I think the question has been hardly sufficiently investigated. The sister church at Lindisfarne, built almost on the same design, seems, from the views one sees of it, to have been vaulted from the first, or, at least, to have been so designed.

Externally, a peculiarity occurs at Durham in the gabled roofing originally covering the aisles (Fig. 272). This does not now exist, but the evidences of it are indisputable.

[Image unavailable.]

Fig. 272.—Durham Cathedral. Gabled roofing to the Aisles.

The awful grandeur of the interior of this cathedral, and its noble effect from without,—standing, as it does, on a rocky promontory nearly surrounded by the deep ravine of the river, and, as a quaint old writer says—“So envyroned with hilles, that he that hath seen the situation of this city hath seen the mapp of Sion, and {130}may save himself a journey to the Holy Land,”—must ever cause it to rank among the grandest of our Mediæval remains: and its influence seems to have been proportioned to its merits; for, as Sir Francis Palgrave tells us, it “became the normal model of ecclesiastical architecture throughout the ancient diocese of Aidan and Finan, far beyond the Tweed.”

I will only notice one more building in the present lecture, and that in the farthest south; and I make this long stride,—from the Wear to the New Forest,—for the sake of noticing the other great work of the notorious prime minister of Rufus. Mr. Ferrey, who has every right to judge of all that relates to Christchurch, has traced out certain resemblances between Christchurch and Durham. The difficulty in connecting such resemblances with the influence on each of Bishop Flambard, is (as I have before said) that Durham was commenced, and had made great progress before his succession to the see. I am, however, disposed to think that it was Durham that influenced Christchurch,—as it was not while dean, but subsequently, when patron of Christchurch, that Flambard rebuilt that church; and this was contemporaneous with his holding the see of Durham.

Flambard’s Church is extremely bold and simple in its parts, and well studied in its proportions. The clerestory and vaulting are of a later date; but Mr. Ferrey gives reasons for thinking the latter to have been from the first intended. The details are good and well considered; the capitals are of the cushioned form, and of that type noticed in the Tower of London and elsewhere. Some appear to have been subsequently carved with exquisite taste, in a manner which{131} reminds one of Greek foliage. The windows of the triforium gallery, with the corbel tabling over them, still remain, and are of excellent, though simple, design; while the beautifully arcaded stair-turret to the northern transept is one of the choicest relics of the Norman style (Fig. 273).

[Image unavailable.]

Fig. 273.—Stair-turret, North Transept, Christchurch, Hants.

The buildings I have thus imperfectly described I have selected as having been all commenced within the eleventh century. I trust I may be able during the next session to follow on the style through its subsequent and more ornate stages, and on again through the interesting period of its transition into the Pointed style; and, while doing this, I hope to illustrate my remarks by means of many of the smaller creations of the style, and by some which are other than ecclesiastical.[32]{132}

For the present,—after travelling over an eventful period of nearly seven centuries, and tracing out the rise of British[33] architecture through many phases,—I must bring my course for this session to a close, apologising if I have, in the warmth of patriotism, been induced to lead you out of the beaten and accredited track of art; though at the same time convinced that the architecture we have been considering will be found on close examination to contain germs and principles which have been and may again be made to germinate into styles of art of the highest and noblest character.{133}

LECTURE XIII.

The Transition.

The close of the eleventh century—The “new manner of building”—Conditions necessary to an arcuated, as distinguished from a trabeated, style—First principles of Grecian and Roman architecture—Rationale of the arcuated style—Its developments—Cloisters of St. Paul without the Walls and St. John Lateran, Rome—Doorways—Windows—Vaulting over spaces enclosed by walls or ranges of piers—Simplest elements defined—Barrel-vaults—Hemispherical vaults or domes—Groined vaults.

WHEN I delivered my last lectures in this Academy, it was my intention to give a practical sketch of the history and development of architecture in this country from the earliest rise of civilisation among the races of which our nation is composed, down, perhaps, to the period of the revival of Classic architecture. As, however, such continuous history has been disturbed by the omission of my lectures last season, and as few now present heard, and fewer, probably, now remember, those lectures, it is not my intention to continue my former course, but, adopting as my stand-point the stage at which I had then arrived, to digress into an inquiry into some of the practical and artistic principles of the class of architecture of whose development I was then treating.

The chronological point which I had reached was the close of the eleventh century,—a point well fitted to be chosen as one for leaving the beaten track for{134} the purpose of inquiring into principles. It was the very stage at which the great round-arched style, which had just developed itself into a strong and sturdy luxuriance, was in the condition best suited to receive the refinements of art.

It was, too, the very eve of that wonderful politico-religious movement which was to bring the nations of the West into contact with the East;—thus preparing the way for a vast influx of new ideas and of fresh artistic elements; and, so far as our own country was concerned, it was just the moment when the simple and unambitious architecture of the Anglo-Saxon race had given place to the more colossal edifices and the more systematic style of the Norman invaders; and when the newly-imported architecture, having taken firm root in our soil, was ready to become naturalised as our own, and to be pressed forward in all zeal and earnestness by the united races which—now neither Saxon nor Norman—were becoming, to all intents and purposes, English.

Nor let it be supposed that the architecture, thus made ready as the nucleus of subsequent developments, was in itself essentially rude, or mean, or barbaric. I admit that it was stern and severe, and lacking the refinements of advanced art; and that its sculpture, though a reflection from that of Byzantium—as that had been from ancient Greece—was nevertheless grim, uncouth, and unrefined; yet in grandeur of conception and in vastness of scale its productions vied with those of almost any period or country; and I shall be able to show you that it contained principles the most profound and accurate, and capable of being carried forward to any degree of refinement.{135}

A single half-century had, in fact, filled the length and breadth of our land with structures of prodigious scale and impressive grandeur, founded on the most reasonable principles, and containing, in a rough and unrefined form, the most prolific and the most artistic elements. So many of these vast edifices have given place to others of more advanced style, or have been recklessly destroyed, that we can now with difficulty realise the architectural status of a country where they were rising or were just completed in every town and (on a reduced scale) in almost every village;—a period when vast fortresses, such as the Tower of London and the stupendous keeps of Rochester, of Norwich, and of Headingham were specimens of the vernacular architecture to be seen all over the land; when the now shattered ruins of Newark and the grim tower of Newcastle were as freshly erected as their names imply; when the awful names of Durham and Gloucester were but specimens of the “new manner of building” then recently introduced, and which pervaded the whole land; and when no city, or hardly a village, could be approached without the lofty scaffoldings heaving first into view which surrounded campaniles which could boast such as those at St. Alban’s and Tewkesbury as their types.

We will, however, quit the track of mere history, to inquire into the intrinsic principles of the architecture thus far attained, and in course of development; and I must beg to be forgiven if, in doing so, I am compelled at times to repeat what I have brought under your notice in former lectures; for, not then intending to go systematically into this inquiry, I have{136} occasionally forestalled my subject by adverting to these principles, as the course of my historical sketch chanced to suggest.

I shall, then, firstly consider the architecture in question,—this “novum genus ædificandi,”—from a point of view bearing upon its great structural characteristic as a purely arcuated style, and one whose strivings all took the direction of rendering that structural fact the main source, as well as the main receptacle, of its artistic character and decoration.

Now what, I would ask, are the conditions necessary to an arcuated, as distinguished from a trabeated, style?

I would thus define them:—Generally, I would say that such a style should be capable of doing all, whether structural or artistic, by means of the arch, which other forms of architecture had done through the use of the horizontal beam or lintel.

And to go more into particulars, I would add:—

1st. That, as a rule, openings in walls and between pillars, whether taking the form of doorways, windows, gateways, or intercolumniations, should be bridged over by arches instead of by horizontal lintels or entablatures, though not descending into such purism as to reject the latter when circumstances clearly point to its adoption.

2nd. That areas enclosed by walls, or by ranges of piers or columns, and of any reasonable width, should be capable of being covered over,—and, in buildings of the highest grade, should as a rule be actually covered over,—by vaulting; this rule, however, not being pressed so far as to exclude level ceilings or timber roofs,—the one the most natural and economical{137} covering for rooms, and the other for churches, halls, etc.,—where circumstances forbid the use of vaulting.

3rd. That the decorative system of the architecture should harmonise with, and result from, these prevailing structural conditions; the construction and the architectural treatment being, not only in harmony, but in the most intimate alliance the one with the other.

Now, we all know that Grecian architecture almost ignored the arch, carrying the horizontal or trabeated system of covering openings to the highest artistic perfection; doing for that system just everything which the above-stated conditions would demand for an arched style. Repose was the great sentiment which their architecture expressed; vertical pressure, the one physical condition it had to provide against; whereas arched architecture (as they say in India) “never sleeps.” It is always exerting pressure in some other direction than the mere vertical line, and the physical conditions it has to meet are the resistance of these, as well as the support of mere weight.

We know, too, that Roman architecture admitted nearly all the constructive conditions we have demanded, and carried them on to a very considerable degree of practical perfection. We believe, moreover, that had not circumstances checked its progress, it would have carried out these conditions to a much greater extent. As it happened, however, it did not go so far as to make these structural conditions a leading artistic element, and the groundwork of a distinctive decorative system; but, being broken up through political convulsion before such an end was attained, it bequeathed the task to the descendants of{138} its despoilers, and long centuries of darkness had to pass by before the work could be accomplished.

In Roman works, the arched construction was in many cases studiously overlaid and concealed by the decorative features of trabeated architecture; and, where an arch was architecturally treated, it was for the most part by bending round it the mouldings of an architrave or beam: and, where a vault was rendered ornamental, it was often by repeating on its coved surface the coffered panels which had originated in a horizontal ceiling; while, in purely arcuated works, such as the stupendous aqueducts, architectural decoration was usually ignored, and structural grandeur alone trusted to for beauty. Still, however, enough was done to convince us that these great builders were on the high road to a noble solution of the problem, and were only, by external accidents, stopped short of its attainment.

I am not about to indulge in abstract imaginings as to what an arcuated style of architecture might be if originated without the aid of previous associations or traditions; but I would ask you to follow out, with some reference to the previous Classic styles, and aided by our knowledge of subsequent developments, the rationale of such a style as that whose leading conditions I have stated.

We must begin with the simplest elements of the style.

Firstly, then, let us take a mere opening in a wall, whether intended for a window or for any other use. As in the trabeated system, apart from architecture, such an opening would be covered by a single block of stone (Fig. 274), so in an arched system would it be bridged{139} over by an arch (Fig. 275); and, just in the same manner, if a continuous series of openings were required, equivalent to a colonnade, the same simple idea would be repeated,—in the one system horizontal stones lying upon upright ones (as at Stone House) or upon piers (Fig. 276), and in the other the openings being covered by a series of arches (Fig. 277); the colonnade being the ultimate result in the one case, the arcade in the other.

[Image unavailable.]

Fig. 274.

Fig. 275.

Fig. 276.

Fig. 277.

[Image unavailable.]

Fig. 278.

Fig. 279.

Fig. 280.

To architecturalise the arched opening, or the continuous arcade, the simplest expedients seem to be the insertion between the pier and the arch of an impost moulding to mark the springing line (Fig. 278); and, in the arch, either to individualise the arch-stones by chamfering their edges, as the Romans often did, or to relieve their plain surface by moulding, the latter being best suited where the stones made use of are of only moderate size (Fig. 279). The mouldings of the arch may, however, be continued down the jambs without an impost, and in either case a projecting{140} rim or hood-mould may be introduced over the main arch to emphasise the line which separates the arch from the superincumbent wall (Fig. 280).

[Image unavailable.]

Fig. 281.

Fig. 282.

These simple changes bring our plain arched opening into something like an architectural feature; and, if we apply them to a continuous arcade, the architecturalising process becomes yet more apparent, and it may readily be carried a step farther by adding pilaster capitals to the piers (Fig. 281). Another and yet more important step, inasmuch as it is really the basis of a very marked feature in our arch styles, is the substitution of columns for the piers of an arcade (Fig. 282); which columns, having square abaci, are really as well fitted to support the arch as the square pier itself, and at once give a highly decorative character to our arcade; and the more so if the jambs are converted into pilasters.

The abaci, however, of such bearing-shafts ought to be very different from the delicate finish of the Corinthian capital; for the arch is not the same inert load which the columns in a trabeated style are destined to carry. It exerts diagonal as well as mere vertical pressure, and so demands a firmer base. This led the architects of the early arched styles, while adopting the Corinthian capital, and perhaps{141} re-using those of older buildings, to add to it a strong flat stone as an impost upon which they could safely give the springers of their arches a basis larger in diameter than the sustaining column. This form,—that is to say, the Corinthian capital with an added impost,—became traditional, and we find the imitations of it down to the end of the twelfth century.

We have hitherto supposed our arches to be of moderate depth from extrados, or outer line, to intrados, or inner line, and our walls, perhaps, of moderate thickness. Let us, however, assume it to be necessary to increase the depth of the arch, and that the materials at hand are not of large size. In some of the Byzantine remains in Central Syria, where the stone is of great size, we find that they have architecturalised by mouldings and enrichments only just so much of the arch-stones as was needful for beauty, and left the rest to go as mere wall-face; and where such large stones are not made use of, it is common enough to build the arch in two rims, and only to deal architecturally with the lower one (Fig. 283) or perhaps to leave both plain (Fig. 284).

[Image unavailable.]

Fig. 283.

Fig. 284.

Now, the first may be unobjectionable where the wall is of moderate thickness and the load great, and the second is well suited to large and massive engineering works; but for ordinary architecture, it is apt to give too bulky and cumbrous an effect. This naturally suggests the idea—while allowing the upper range of arch-stones to occupy the full thickness of the wall—of reducing the lower range{142} to a smaller width, thus breaking the arch section into resalient angles, and thereby both lightening its effect and rendering the piers or jambs which support it lighter and less obstructive to the view (Fig. 285).

[Image unavailable.]

Fig. 285.

Simple as this step may appear, it is one whose importance can scarcely be over-stated; for it is the starting-point of the entire system of Romanesque and Gothic arch-moulding; it is the origin of the clustered columns, and the deeply-recessed and richly-decorated doorways which mark those styles; and to it we owe in great measure even the traceried windows which are such leading characteristics of Gothic architecture. For, as regards arches, we had before but one angle to mould, whereas we may now have as many as the thickness of our walls will permit, thus generating at once the great Mediæval system of receding orders, whether of arches or their jambs; and you will presently see that this gives us also our clustered columns, which are, in fact, the mere decoration of the receding orders of the piers.

[Image unavailable.]

Fig. 286. Capital from the Crypt, Canterbury.

Let us now deal with such a pier as is shown in our last figure. It is clear that the plan of that pier is the same as that of the springers of the coupled arches which it supports, and that this plan is of a cross-form. It is not, however, necessary that this plan should be continuous through the pier, if only an impost is provided of a form suited to receive this double springer (Fig. 286).{143} It is quite possible (and is very frequent), to substitute a single column for this cross-formed pier, giving it a capital whose abacus either assumes a like plan with the springer (Fig. 287), or, if either octagonal or round, is suited in size to contain it without either undue projection or much superfluous space.

[Image unavailable.]

Fig. 287. Capital from Ely.

Let us, however, take another step; and instead of substituting a column for the group of arch-orders, let us substitute either a smaller column for each of the four orders, thus supporting the arches by a group of four columns (Fig. 288); or else let these be united into one complex pillar formed of portions of four columns (Fig. 289); or, thirdly, let us place a colonnette under each order, grouping them, either in the solid or as detached shafts, round a central square pier (Figs. 290, 291). In any of these methods we at once obtain the clustered column.

[Image unavailable.]

Fig. 288.

Fig. 289.

To the jambs we may apply the same process, either substituting a colonnette for the inner order, and pilasters for the outer ones, or vice versa (Figs. 292, 293), or substituting colonnettes or pilasters for all. I do not know how early this system of using colonnettes to do merely decorative duty was introduced. We have a specimen of it in the remains of the church built by Benedict Biscop, at Monk Wearmouth, in the seventh century, where, as I have stated in a previous lecture,{144} two baluster shafts are placed in either jamb of a doorway to support the impost.[34] To go to the far East, we find the system in use in the Mosque of Touloun, at Cairo, built, I believe, in the ninth century. In one of the doorways of the cathedral at Mayence, built about the end of the tenth century, columns and pilasters, with Corinthian capitals, and crowned by a thick impost moulding, are alternately employed to carry the four receding orders of the arch. The whole has semi-Classic details. In the western portals of St. Mark’s, at Venice (close upon the same period), we find a profusion of detached columns similarly used. They are of marble and other rich materials, and were probably brought to Venice from ancient buildings in the East.

[Image unavailable.]

Fig. 290.

Fig. 291.

Fig. 292.

Fig. 293.

It may be that the possession of such antique relics, and the long-established practice of re-using them, may have suggested the use of small columns for such purposes; indeed, it is curious that in the case of the Mosque of Touloun, just alluded to, as a very early instance of the use of colonnettes, there is a tradition that the architect, who was a Christian, was imprisoned for refusing to use the columns torn{145}

[Image unavailable.]

Fig. 294.—Cloisters of St. Paul without the Walls, Rome.

from desecrated churches, which had been a condition prescribed to him, and only consented to proceed with the work on the withdrawal of this order. Whether or not, this custom originated the feature under consideration, I think that it is one which belongs essentially to a derivative style, and would hardly have come into existence in a style of architecture not aided by traditions of the past. The Romans themselves, as is proved by their mural paintings, seem to have indulged in the use of thin columns (possibly of metal), for buildings not demanding massive dignity; and it is just possible that in their domestic architecture some suggestions of this use of such pillars might have existed;{146} and certainly among Mediæval works, in none are they more charmingly introduced than in the cloisters of St. Paul without the Walls, and St. John Lateran, at Rome, whose details are much more Classic than Gothic (Fig. 294).

In our Norman buildings colonnettes are for the most part built in the solid of the piers, which would suggest that they are not there in the earliest stage of their use.

The principle once adopted, there seems no limit to the variety of which it is capable. Shafts may be substituted for all of the arch-orders, or for such only of them as may be desired.

Where the arch consists of more than two orders, a half-column of larger size may be made to support two or more, and smaller ones may flank them carrying single orders (Fig. 295). Where, again, the lower order is wide in its soffit, it may be carried either by a large semi-column (Fig. 296) or by coupled colonnettes (Fig. 297); and where there are three orders, the same may be applied to the front, bringing the pillars to a uniform design on all of its sides (Figs. 298, 299).

[Image unavailable.]

Fig. 295.

Fig. 296.

Fig. 297.

Fig. 298.

Fig. 299.

We have already seen that single columns may be used to carry arcades of two or more orders, either by breaking their abaci into receding angles, to fit them to the orders of the arches, or by making round or{147} octagonal abaci large enough to receive them; and such single columns may be alternated with clustered piers. There is, however, another extensive variety of pillar compounded of the two.

[Image unavailable.]

Fig. 300.

Fig. 301.

Let us suppose a single column supporting arches of a single order (Fig. 300), and that we desire to extend the arches to three orders, retaining the same main bearing-shaft. We may imagine the additional orders to be super-added on all sides of the original square springer and additional colonnettes (attached or detached) added round the original bearing-shaft to receive them (Fig. 301). The same may be applied to an octagon, placed either angularly or in its usual position (Figs. 302, 303).

[Image unavailable.]

Fig. 303.

Fig. 302.

Fig. 304.

Fig. 306.

The process may be carried a step farther, and eight colonnettes be set round the original bearing-shaft (Fig. 304). In St. Mary’s Abbey,[35] at York (towards the end of the twelfth century), we have an instance of sixteen colonnettes thus placed round a bearing-shaft (Fig. 305), but only eight of them carry separate orders; and a little{148} later, in the cathedral at Genoa (the work, apparently, of a northern French architect), we have no less than twenty-four colonnettes similarly ranged round an octagon (Fig. 306); though here, again, only eight are represented in the plan of the abacus or of the base when it rests upon the floor, the others being introduced probably for the relief produced by the varied colours of the marbles of which they are composed.

[Image unavailable.]

Fig. 305.—St. Mary’s Abbey, York.

A little later the colonnettes themselves become grouped in threes and fours, and their edges often filleted, or “keeled,” that is, decorated by an arris or edge projecting from their round surface. Thus, at Lichfield (Fig. 307) in the older portions, groups of three shafts united into one, and carrying a common abacus, were set on each side of an octagonal bearing-shaft. At Wells (Fig. 308) similar triple shafts were set alternately against the faces and in the internal angles of a cross-formed nucleus, with alternately square and octagonal abaci.

[Image unavailable.]

Fig. 307.—Lichfield.

Fig. 308.—Wells.

My purpose, however, is not to enumerate all possible varieties of clustered pier, but to explain its principle, and at the same time to show how unlimited an{149} artistic element was deducible from an intent thus founded on the natural conditions of arched construction. To go much farther would carry us on prematurely into the succeeding styles, and would be also anticipating another cause, which carried on the principle to a still further development. I allude to groined vaulting, of which I shall have to treat in detail when I reach it.

Before, however, I quit the subject of arches and piers, I must say a few words on the application of their principles to doorways and windows.

Doorways differ in no degree, as to principle, from archways, excepting in having, at some point in the thickness of the wall, more or less recessed at pleasure, what Professor Willis calls the “doorway plane;” that is to say, one of the arch-orders so formed that the door may be hinged to it, and may shut against it. The actual opening of the door may or may not be stopped on this plane to a square heading, the arch over it being filled in with a tympanum, plain or sculptured; or it may be altered from the form of the main arch to some shape having less height. In all other respects the principles already stated apply equally to doorways as to archways. The interior, however, has to be varied if the door fills in the arch-form, with a view to facilitating its free opening; but this is a practical point not needful to be here gone into. The orders of arch-mouldings in a doorway often continue down the jambs, as in one of the magnificent doorways at Malmesbury Abbey: or they may be replaced by colonnettes or pilasters, or these methods may be united in the same doorway,{150}—just as in another door at Malmesbury, continuous mouldings alternate with colonnettes,[36]—and the arches, jambs, and capitals, and even the shafts of the colonnettes, may receive any degree of sculptured enrichment.

The doorway being a point on which much architectural character was concentrated, and great depth being necessary to give the required effect, it was customary to thicken the walls at the doorways by various expedients, so as to obtain depth enough to give several orders of arch-mouldings; this increased thickness was covered over by gables, and by other means.

The width, too, of the jambs of doorways is often increased, and more space gained for enrichment, by giving to each order in the jamb a larger space than would otherwise be necessary of square face between the shafts (Fig. 309).

Fig. 309.

[Image unavailable.]

Fig. 310.

Fig. 311.

In some cases, also (as in the doorway in the Castle at Durham), there is a small arch-order which continues down the jambs between the principal orders, and adds much richness to the effect.

In later examples, two ranges of shafts were often introduced; the outer ones carrying the orders, and{151} the inner ones having capitals lost under the main capitals, as if carrying an imaginary order hidden within the visible mass of the arch. These are, in fact, the parallels of the supernumerary shafts I have mentioned as often existing in clustered piers. Thus, in St. Leonard’s Priory, Stamford (a work of the twelfth century), we find two ranges backed by a plain splayed surface (Fig. 312). In the Galilee at Ely (somewhat later), the second range is backed by large hollows between salient mouldings (Fig. 310); and again at Lichfield, the back range is, as at Stamford, placed against a splayed surface, but relieved by ranges of large toothed ornaments running up behind each of the front shafts (Fig. 311).

[Image unavailable.]

312.—St. Leonard’s Priory, Stamford.

The windows also differ from mere arched openings in having a functional plane, which occupies one order, and is needed to receive the glazing. The orders are never so numerous in windows as in rich doorways, rarely exceeding two besides that which receives the glass. The inner side is usually splayed, to diffuse the light through the interior. It is not my intention in this lecture to treat in detail either of doorways or windows; but having stated that a system of receding arch-orders was originally the origin of window tracery, I will say a few words in explanation of my statement.{152}

Many early windows and window-like openings—such as those with the triforium galleries of churches[37]—are divided into two or more portions by pillars and small arches in the inner plane or order; the outer order or orders embracing the whole, and the plane of the inner or functional order forming a second wall-space over the heads of these subordinate arches. Thus the triforium at St. Bartholomew’s is divided into four subordinate arches. This window plane, as it may be called, is often ornamented in different ways, and occasionally even in Norman work, is pierced. At a later stage this piercing becomes systematic, and has received the name of “plate tracery,” the plate being the window plane or order. It is simply the piercing of this plane of the functional order of the window arch; and as it is clear that this piercing developed itself into window-tracery, so is it equally manifest that the plane thus pierced originated in the division of the window-arch into receding orders; and, consequently, that traceried windows were a natural result of the conditions of arcuated architecture. The subject of windows being quite sufficient to occupy a separate lecture, I leave it for the present to go on with the more elementary questions resulting from the conditions I laid down at the outset.

You will have noticed that, having in those prescribed conditions divided my subject into two great natural heads,—viz. the arching over of openings in walls, and between piers; and the vaulting over of the spaces enclosed by walls or ranges of piers,—I have hitherto dealt exclusively with the former; and that,{153} as the forms of piers and clustered columns are influenced as much by the requirements of the vaulting as of the arches they have to support, I have been obliged to leave my description of their forms imperfect; and as it is my wish to treat of vaulting as systematically as I am able, I must beg you to allow this incompleteness to remain till it is incidentally filled up as we proceed with this, the second great elementary division of arcuated architecture.

It must be clear, even on the most superficial glance, that the vaulting over of extended areas is a matter of far greater intricacy, and requiring vastly more thought and contrivance, than the mere arching over of an opening in a wall; and though its primary elements are simple, I must beg you to follow me over easy ground,—and ground already trodden in my previous lectures,—because these early and simple steps are needful to the due appreciation of the more advanced and complex ones which we shall presently have to consider.

The simplest elements of vaulting are—first, the covering over of a rectangular space enclosed between parallel walls by means of a semi-cylindrical vault, usually known as a “barrel vault;” and secondly, the covering over a space enclosed by a circular wall, by means of a hemispherical vault or dome.

[Image unavailable.]

Fig. 313.

Fig. 314

The first is the prolongation of an arch in a direct line at right angles to its plane (Fig. 313), the second may be conceived as generated by the revolution of an arch upon its vertical axis (Fig. 314).{154}

I will keep, for the present, to the development of vaulting from the first of these types. We will first suppose that, while limited by constructive convenience to some moderate span, we have occasion to vault over an area of double that width.

The most natural expedient which suggests itself is to divide the space into two widths by an arcade whose top ranges on a level with the springing of the vaulting, and on this and the outer walls to place twin and parallel barrel vaults.

This was a system at first largely made use of, as we may see, in some of the covered tanks or piscinæ of the ancients, and in the galleries of the Colosseum. It is clear, however, that this is an imperfect covering for a single room or hall, not only from its severing it too much into two separate areas, but from its placing so much of the covering above the level of side windows, and thus practically reducing the available height of the walls; not to mention its heavy effect.

[Image unavailable.]

Fig. 315.

Let us see how these imperfections may be obviated.

The solution of the question may have arisen from a different and accidental case. Let us suppose two corridors, each covered by a barrel vault, crossing each other at right angles. It is easy to see that these vaults must, by their intersection, generate angles running diagonally from corner to corner of the crossing{155} of the corridors, and that these angles of intersection would assume curves of an elliptical form (Fig. 315).

This square of intersection would in fact be found to be vaulted on a system previously unthought of.

Let us next suppose twin corridors, severed only by a wall, crossing two other such corridors, all similarly covered by barrel vaults. Instead of the simple intersection of our previous case, we now have a group of four, or two pairs of such intersecting vaults, meeting in the centre on a mere frustum of the partition walls reduced to a square pier, from whose angles spring four of those edges of intersection before described (Fig. 316).

[Image unavailable.]

Fig. 316.

This, then, contains the solution of the problem under consideration, for, returning to our first case of vaulting a hall of double width, we may, by repeating as many as we may need of these pairs of intersecting or “groined” compartments, such as we have generated by the last process, effect our object in a perfect manner; the vaults being all of equal height, and the two widths being practically united into one, while the walls cease to be stunted of their full height, and room is left in them for windows reaching nearly to their top.

The same process may be applied to an area of any extent by repeating the ranges of piers, or limited to a single span or to a single compartment, at pleasure; and in all these cases it has the advantages of giving all the internal cubic space, and all the{156} height of wall of which a vaulted area is capable; while, by concentrating the lateral pressure upon points at convenient intervals, where it may be readily resisted by external buttresses, it leaves the intervening wall-spaces at liberty to be pierced by windows, doors, or archways at pleasure.

The Roman builders usually strengthened their vaulting by narrow strips of brickwork or cut stonework from pier to pier, constructing the rest of inferior materials. Their groined vaults were similarly fortified at the lines of intersection; but, as the whole was usually encrusted with plaster, these constructive expedients had no effect on the appearance. Sometimes, however, in their barrel vaults (as in the piscina at Baiæ, mentioned by Professor Willis, and in the corridors of the Colosseum), we find these strengthening strips appearing as ribs projecting downwards from the surface of the vaulting, and supported by projecting piers.

The application of this to groined vaulting is an obvious step, and adds vastly both to its strength and beauty. Let us suppose a length of vaulting so divided; we find at once that we are getting into a very sightly system, and one susceptible of excellent architectural treatment. Let us then, before proceeding to more advanced or intricate developments, apply to what we have reached the same process of architecturalisation which we have gone through for mere arching.

Now, so far as relates to a barrel vault, it is evident that when divided by transverse ribs, those may be carried by pilasters or by colonnettes just as{157} the orders of an ordinary arch (Fig. 317); and if we further mould or otherwise decorate the ribs and continue the capitals as an impost along the springing line, we have given a very fair amount of architectural character to the simplest form which vaulting can assume (Fig. 318).

[Image unavailable.]

Fig. 317.

Fig. 318.

To pass on to the simplest form of intersecting or groined vaulting, it is equally clear that columns may be substituted for the square piers which are its normal supports.

[Image unavailable.]

Fig. 319.—Crypt under the Church of the Holy Trinity at Caen.

In my theoretical description of this form of vault, I supposed the springers which are next to the wall to rise directly from its face (Fig. 316); but in practice{158} it is better that they should rest upon projecting piers; and it is obvious that for these pilasters or columns may be substituted. The crypt under the Church of the Holy Trinity at Caen is a good example of this class of vaulting (Fig. 319). When we apply the transverse rib to this vaulting, we give it at once a strictly architectural character, as every compartment is now distinctly defined (Figs. 320, 321).

[Image unavailable.]

Fig. 320.—Crypt under the Choir. View looking West.

Canterbury Cathedral.

{159}

The complete plan of the springer upon a detached pier now takes the cross form, suggesting the substitution of a cluster of four shafts round a square, or of a larger column, with a capital broken into the cross form. Where, however, the weight to be carried was small, as in crypts whose vaulting supported only the floor above, this enlargement of the pier was obviated by making the ribs die out at their springing one into another, and the groin to commence a little higher up; or sometimes by the awkward expedient of making the outer curve of the rib eccentric with the inner one.[38]

[Image unavailable.]

Fig. 321.—Crypt, Durham Cathedral.

Where we have already clustered pillars carrying a main arcade, the presence of vaulting on either side adds a new member to the pier, both behind and in front; and if, as is usual in churches, the central vault springs from a higher level, the additional shaft on that side runs up through, or rather by, the capital of the pier till it reaches the higher springing, thus emphasising the division of the bays throughout their{160} entire height.[39] This multiplication, however, of shafts is by no means essential, as the ribs may be brought, by a little management, on to the capital of a single column, which supports the arcades, and on their other side shafts may be carried up upon corbels to receive the higher groining.

Having said enough upon this simple case of groined vaulting to show that it may be made both the source and the vehicle for architectural treatment of a most reasonable kind; and, as you will readily imagine that its ribs and their supporting capitals, corbels, and colonnettes, may receive any amount of sculptured enrichment, and its vaulted surfaces any degree of decoration in the form of painting or mosaic work, I will here close my lecture, hoping that, though its subject-matter may have appeared somewhat dull and its arguments almost self-evident, it may, nevertheless, have placed simple and familiar facts before you in a form more systematic than that in which they might otherwise have presented themselves; and that, like the definitions and axioms of Euclid, it may be serviceable in preparing the way for more intricate and less obvious matters of consideration which I shall have to bring under your notice while following out, in my succeeding lectures, the principles of vaulting into those more difficult and ornate forms which became so important an artistic element in the subsequent developments of Mediæval architecture.{161}

LECTURE XIV.

The Transition.

Vaulting of spaces of other forms than the mere square—Apsidal aisles, St. John’s Chapel Tower, and St. Bartholomew’s Church, Smithfield—Chapter-house and crypt, Worcester—Round-arched vaulting in its most normal form, as resulting from the barrel vault and its intersections—Short digression on another simple form of vault, the dome—“Domed up” vaults—“Welsh” groining—The square or polygonal dome—The Round-arched style of the twelfth century almost perfect—First introduction of the Pointed arch into vaulting—Names of the parts of groined vaulting—Two specimens in London of the apsidal aisle, one in the Round-arched, the other in the Pointed-arched style—Vaulting a polygon with a central pillar—Ploughshare vaulting—The artistic sentiment and character of early Gothic vaulting.

IN my last lecture I explained the general principles of groined or intersecting vaulting, and just carried on the subject through its simplest case,—the covering of a square space, or any repetition of square spaces, by the intersection of semi-cylindrical vaults; and I just showed how, by emphasising the outlines of the squares so covered by means of transverse ribs or angles, and by placing impost mouldings, pilasters, columns, or colonnettes in the sustaining piers, such a mode of covering a space might be readily made at once susceptible and suggestive of architectural treatment.

Let us now proceed to consider the application of the same principles to the vaulting of spaces of other forms than the mere square.

The next form, perhaps, in point of simplicity is{162} an equal-sided polygon,—say, for example, an octagon (Fig. 322). We must here suppose eight cylindrical vaults crossing one another from the opposite sides of the octagon; and it is clear that their intersecting lines will be the diagonals or lines joining the opposite angles of the octagon, which will coincide in position with the transverse ribs. The objection to this form of vaulting is the low proportion of the arches produced by these intersections, which, though more than twice and a half the width of the side arches, only rise to the same height, or about one-fifth of their span,—a defect which will be remedied by a development I shall presently have to describe.[40] Just as the half-dome (as seen in the chapel of the Tower of London)[41] forms a natural covering for an apsidal termination of a barrel vault, so a portion of a polygon, thus vaulted, would appear to be the correlative apsidal termination of a groined vault.[42] A difficulty, however, at once presents itself in the small height of the vault last described, which is not one-half of the height of the semicircular vault which it would have to meet. How, then, is this to be got over? How are the vaults proceeding from the narrow arches of the sides of the octagon to be brought to range in height with the wide vault which spans the whole space (Figs. 323 and 326)?

[Image unavailable.]

Fig. 322.

{163}

[Image unavailable.]

Fig. 323.

Fig. 324.

The solution of this difficulty will be better considered by means of a simple and more familiar case. The intersecting vault in its most normal form is plain enough in its application to a square compartment, but becomes difficult when applied to a space longer one way than the other; yet oblong spaces continually present themselves as requiring to be vaulted.

Mathematically this is readily met, and that with perfect accuracy, by making one of the intersecting vaults elliptical instead of circular in its curvature; making, for instance, the narrower arch a semi-ellipse with its longer semi-diameter vertical. This, however, is an unsightly form, and was always rejected, though the natural mode of effecting the object, and though it would give intersecting curves which would be complete and in vertical planes.

The Roman builders solved the problem at the sacrifice of mathematical accuracy, by what is called stilting the narrower arch; that is, raising its springing till its crown becomes level with that of the wider arch. This is a practical solution of the difficulty, but is not a very pleasing one, inasmuch as the line of intersection is most uncouthly twisted, and, in point of fact, begins at considerable height above the springing of the vault (Figs. 324, 325.)

[Image unavailable.]

Fig. 325.

To go back, however, to our previous case of the{164} apsidal termination of a vaulted space, it affords a very fair solution of the difficulty by which we were before encountered; for it is clear that the arches on the sides of the octagon may be lifted up till their crowns become level with that of the main vault; and, as the intersecting angles of a polygonal groined vault coincide with its transverse ribs, we have nothing to do but to raise from every angle a transverse rib similar, or very nearly similar, to those of the main vault, and to make the smaller vaults of the octagon to intersect upon them (Fig. 326). There will be a little geometrical inaccuracy in the forms of these cells of vaulting; but, as the angle ribs would assume correct lines, these inaccuracies would not seriously offend the eye.

[Image unavailable.]

Fig. 326.

There is, however, another method of meeting the difficulty; but before describing it, I will say a few words on the treatment of other difficulties resulting from the irregularities in form of spaces which have to be vaulted.

Let us, as an example, suppose an aisle or corridor passing round such a polygonal figure as we have been considering. It is manifest that its compartments will have a form enclosed by unequal sides, or, to say the least, one side will differ greatly in width from that opposite to it.

The stilting system before-mentioned is the most obvious method of getting over the difficulty. It may be, that three of the arches surrounding such a compartment may be about equal, and no great difficulty would occur as to their intersection; but the fourth,{165} being far narrower, would have to be stilted to raise its crown to the level of the others, and its lines of intersection will consequently be more or less disturbed.

[Image unavailable.]

Fig. 327.—St. John’s Chapel, Tower of London.

Fig. 328.—St. Bartholomew’s Church, Smithfield.

The difficulty is, in early specimens, increased through the apse being usually round instead of polygonal; though this does not very materially alter the case. We have in London two excellent examples of this apsidal aisle; that in the chapel of the Tower of London[43] (Fig. 327), and that in St. Bartholomew’s Church in Smithfield (Figs. 328, 329),—the former of an early, and the latter of a later type.

[Image unavailable.]

Fig. 329.—Plan of Apse, St. Bartholomew’s Church, Smithfield.

In both, the narrow arches are greatly stilted; and at first sight the two may appear to be similarly treated; but on closer exami{166}nation there will be found to be much difference between them. In the Tower Chapel the transverse ribs are made to increase prodigiously in width towards the outer wall, so as to reduce the want of parallelism of the groined compartments, a very unsightly expedient; and the capitals of the columns are square, which makes the backs of the arches they support nearly double the width they present in front: while at St. Bartholomew’s, the ribs are of uniform width, and the capitals, instead of being square, have their sides radiating from the centre of the apse, so as to share with their arches the spreading of their outer side. The difficulty is really increased in the later work, but is met by more skilful workmanship. Somewhat similar to the case of the aisle round a semicircular apse, is the case of vaulting a circular building with a central pillar. In each, the main surrounding vault, if uncut by others, would assume the form of a portion of an annulus or ring. In the aisle such a ring would be wide in the opening it surrounds, but in the circular building its opening would be reduced to the diameter of the central column or its capital.

This annulus, or curved vault, would become divided in plan into triangular portions by the transverse ribs which would meet on the central pillar and the cross vaults, proceeding from the surrounding arches, would intersect with only the outer portion of the vault, the inner portion which rests on the pillars being uncut by them, and assume the form of a concave conoid, something like the flower of the convolvulus.{167}

[Image unavailable.]

Fig. 330.—Chapter-house, Worcester Cathedral.

[Image unavailable.]

Fig. 331. Plan of Crypt, Worcester Cathedral.

This form of vault is well seen in two instances in the Cathedral at Worcester. The best known of these is the Chapter-house (Fig. 330), a circular building, between 50 ft. and 60 ft. in diameter, whose circumference is divided into ten parts, from which small ribs run across to the central pillar. The intersecting cells of groining are at present pointed, possibly the result of a subsequent alteration, and simply intersect with the surrounding vault. In this case the central conoid is broken into a polygonal form to give piquancy to its otherwise too unbroken surface. This may be considered the father of our beautiful polygonal chapter-houses, of which I shall have more to say as I proceed.

The other instance I have alluded to at Worcester is in the crypt (Figs. 331, 332). In this, the case in question occurs not in a distinct form, but in{168} combination with an apsidal aisle on the one side, and a vaulted span, with a central range of pillars, on the other; the last pillar forming the central point of the semicircular apse, is exactly parallel in position, and forms very similar groining to that of the Chapter-house.

[Image unavailable.]

Fig. 332.—View of Crypt, Worcester Cathedral.

The same problem, when applied to a polygon instead of a circle, is open to two different modes of solution. In the one, the main vault is always supposed to run from each side towards the central pillar; in the other, from each angle towards the pillar. I shall, however, have to go more minutely into this when I come to pointed-arch vaulting, to which the last-named system more especially applies.[44]

Having now briefly touched upon the most prominent forms of round-arched vaulting in its more normal form, as resulting from the barrel vault and its intersections, I will digress for a short time to consider some of the conditions which relate to what I in my last lecture stated to be the other most simple kind of vault—the dome. I do so, however, not with any idea of treating at large on a form which should be made the subject of a separate lecture, but merely to facilitate the explanation of certain indirect influences which it exercised upon ordinary vaulting.{169}

A dome in its most typical form stands upon a circular wall; this, however, is by no means a necessary condition. It may in reality cover a square or polygonal space just as well; for, suppose a square or a polygon inscribed within the base of a hemisphere, it is clear, from the properties of a sphere, that vertical planes erected on the sides of such square or polygon will cut the hemisphere in semicircles of the diameter of those sides (Fig. 333). It follows, therefore, that the walls of a square or polygonal building would intersect with a dome in the form of semicircular arches standing on each of its sides; and, consequently, that such a square or polygon will carry a hemispherical dome, or rather the remainder of it left after cutting the base into a square or polygon.

[Image unavailable.]

Fig. 333.

For our immediate purpose we will limit the case to that in which the inscribed figure is a square.

[Image unavailable.]

Fig. 334.

Fig. 335.

Now, a dome cut in this manner by four planes is not a very sightly form, and needs some embellishment (Fig. 334); but if a horizontal circle be drawn within it by means of a cornice resting on the crowns of the supporting arches, it assumes at once an agreeable form, and one which has been largely used both in By{170}zantine and in modern architecture (Fig. 335). My present purpose, however, suggests another mode of giving sightliness to the squared dome. The lines drawn on its surface may lie in vertical as easily as in horizontal planes, and by making such lines pass through the angles of the square, touching the dome throughout their length, and intersecting one another at its apex, we obtain a form not wholly unlike a square groined vault; the great differences being that the intersecting diagonals of a groined vault assume elliptical curves, whereas these are semicircles; that in the one they represent an actual angle, while in the other they are arbitrarily drawn on an unbroken surface; and that the ridges or crowns of the vault in one case are horizontal, while in the other they are raised and circular. This mode of vaulting, though frequent in some parts of France, is seldom found in this country.

[Image unavailable.]

Fig. 336.—Goring Church, Oxfordshire.

There is, however, an instance of it in the vaulting beneath the tower of Goring Church, Oxfordshire. (Fig. 336).

Though this is not really groining, but a disguised dome, there is a ready process by which it may be, and continually was, converted into genuine groining.

I have defined the barrel vault as the prolongation of an arch in a direct line at right angles to its plane.[45] But an arch may be prolonged in other than a straight{171} line. Let us, in the previous figure, suppose the arches which rise from the sides of the square to be prolonged, not horizontally, but in a curve rising as it proceeds, and so regulated that the semicircle as it moves forward retains its vertical position, and is guided in its motion by the diagonal lines drawn in the dome. This process at once generates a new form of vault (Fig. 337). For each of the triangular gores of the dome we now substitute a vault, of which every vertical section parallel to the side of the square is a portion of a circle of the same diameter with those raised on the sides, while the angles of the intersection of these newly generated vaults are themselves semicircles. It is a perfectly accurate geometrical figure, none of whose salient lines are other than portions of circles, though the ridge or crown lines now become elliptical. It is a most useful development, as being much stronger than the ordinary groined vault. Oddly enough, it has—so far as I am aware—no suitable name. It is usual to speak of such vaults as being “domed up,” but this is a very rough description. When adapted to the pointed arch, it has been called by Mr. Petit the Angevine vault. I know no better way of describing it than as round-arched vaulting with a raised ridge (Fig. 338).

[Image unavailable.]

Fig. 337.

[Image unavailable.]

Fig. 338.

Now, though less obvious at first sight, the very same processes are applicable either to an oblong, to a tapering four-sided figure, such as the bay of the aisle of an apse, or{172} even to one of the triangular compartments of the apse itself, or of a circle.

For, in either case, we have only to cut out the required slice from a hemispherical dome, to draw the diagonal lines from the angles of such form to the apex, and then to substitute for the gores of the dome the vault generated by the motion of the semicircle, produced by the plane of the sides of the figure parallel to itself, and rising under the guidance of the diagonal lines (Fig. 339). This process, it will at once be seen, is capable of solving all the problems of irregular figures which I have enumerated at an earlier stage in my lecture, without the aid of stilting, and without giving intersecting curves, which deviate from the vertical plane, while it avoids the use of the ellipse for any prominent line (Fig. 340).

[Image unavailable.]

Fig. 339.

Fig. 340.

Fig. 341.

The last case I have named—that of the triangular gore of an apse or circle (Fig. 341)—also solves the difficult case I mentioned at the beginning of this lecture as arising in the groining of a polygon, owing to the excessive lowness of the arch formed by the intersecting angles. These are now raised to the full height of a semicircle, while if half of such a polygonal vault be used for an apse, it agrees in height with the main vault without the use of stilting.

It may, however, be mentioned that, as stilting is sometimes most useful in making room for windows, it{173} was not superseded by this invention; the two systems continuing to be used at pleasure, and sometimes a union of the two, which, however, is so arbitrary as to defy definition. The form last described for a vaulted circle is often used as a variety of the dome by raising numerous small arches round its circumference, and giving a sort of fluted or shell-like surface to the dome.

I think I have now described the principal varieties of round-arched vaulting with two exceptions. The one is that in which the side vaults of oblong compartments cut the higher and main vault at a level lower than its crown. This is vulgarly known as “Welsh” groining, and though not quite pleasing in effect, it is a very legitimate mode of covering an oblong compartment. It is customary to obviate the unpleasing coal-scuttle shape of the true line of intersection (Fig. 342) (such as may be seen in St. Martin’s Church), by making them take the lines given by vertical planes, and throwing the irregular geometrical curve into the surfaces of the cells where it does not strike the eye, or perhaps generating them by the motion forward of the side arch (Fig. 343). This has been done in the Sistine Chapel, and Mr. Smirke has, I think, done the same in our Great Exhibition Room. In a ceiling to be decorated with painting, this form of vaulting possesses the great advantage of leaving the central range unbroken by diagonal lines.

[Image unavailable.]

Fig. 342.

Fig. 343.

St. Martin’s-in-the-Fields, London.

The other form I have omitted is the square or polygonal dome, or that generated by the intersection{174} of vaults running parallel to the sides of the base, instead of, as in the groined vault, running at right angles to them (Figs. 344, 345).

[Image unavailable.]

Fig. 344.

Fig. 344.

The square dome is, in fact, the exact correlation or complement to the square groined vault. Like it, it is generated by the intersection of two barrel vaults of the diameter of the sides of the square; but the parts of such vaults which are retained in the one, are precisely those which are omitted in the other. The angular lines are the same, though in the one case the angles project, and in the other they recede; and while the groined vault is reduced in its bearing to four points in the corners, the square dome demands for its support the whole line of the walls, which, however, it reduces in height to the level of the springing line; while the other allows them to rise in their centres to the full height of the vault. In some cases, as in the vaulting beneath the tower of Grantham Church, “Welsh” groins are united with the polygonal dome, a form quite applicable to the vaulting of an apse (Fig. 346).

[Image unavailable.]

Fig. 346.

There is another peculiar feature in the square {175}or other straight-sided dome, viz., that it may be cut by vertical planes, as is the case with the spherical dome. Thus, if we inscribe within the base of a square or triangular dome, another square or triangle whose corners bisect the sides of the original base, and erect upon the sides of this newly-formed figure vertical planes, these will intersect the dome in arched forms, and the parts left will give a new form of vaulting, rising from the angles of the figure, and terminating in an unaltered portion of the original dome. This form was not unfrequently used, especially in vaulting triangular spaces (Figs. 347, 348).

[Image unavailable.]

Figs. 347, 348.

I have now gone through all the normal varieties (of which I can think) of the round-arched vault, and it is time that I should allude to a great step which, after perhaps the first quarter of the twelfth century was introduced into their construction. I allude to the addition of a moulded rib beneath their intersecting angles. It is clear that these angular lines are both in reality and in effect, the weak points of plain groining. I have mentioned that the Romans fortified them in construction, by using in them stronger material than in the rest of the vault; and the early Norman builders made a feeble attempt to take off from the dulness of the intersection, where it approaches its apex, by artificially sharpening the edge in plastering it; for, without this, it becomes (in a vault where the courses of stone or brick are concealed) almost invisible.

The great step in advance which I have now to{176} mention provided both the constructive and the artistic strength which the line required.

It is also clear that any irregularity of form may render these lines shapeless and unpleasing, and it is an obvious gain from an artistic point of view, to adopt a system which will at once render them pronounced and regular. While, then, the introduction of the angular rib was in many cases a departure from geometrical accuracy, it was a vast gain both in strength and beauty.

In that form of vaulting, which I have defined as that with the raised ridges, no geometrical inaccuracy would arise, the angles of intersection being semicircular, and in vertical planes; but in the more ordinary form of vaulting, where these lines are elliptical, that curve being unpleasing, two courses offered themselves for choice: the use of segments of circles for the diagonal ribs, or the bringing down the springing to a lower level than that of the vault. In either case the true geometrical figure has to be departed from, and the error has to be thrown into the vaulting-surfaces—a course which subsequently became so thoroughly adopted as a principle, that it may be received as an axiom that in ribbed vaulting, where the ridges are not raised, the ribs are made of such forms as will satisfy the eye, and the vaulting surfaces made to fit themselves to them as best they may, apart from geometrical accuracy,—a principle which, though it may at first sight offend the mathematical mind, has proved in practice so wonderfully useful, and to offer so many facilities, as to be a sort of Magna Charta to the art of vaulting.{177}

This step once taken, round-arched vaulting seems to have completed its work. Square and oblong spaces were vaulted either with mathematical accuracy on the raised-ridge principle, or with deliberate departure from such accuracy on the level-ridge principle. Irregular spaces were covered over by expedients which satisfied the eye, and met practical conditions tolerably well, and many beautiful works were the results. The diagonal ribs, too, became a new source of decoration, not only by means of their own mouldings or enrichments, and through the bosses now sometimes placed at their point of intersection, but also because they were suggestive of additional colonnettes, and thus added more richness and intricacy to the piers; and sometimes they were carried upon sculptured corbels, as in the cathedral at Oxford. Among the richest specimens of this vaulting may be mentioned the gateway and the Chapter-house of Bristol Cathedral, the chancel of St. Peter’s Church at Oxford, etc.

We have now arrived at a stage of our investigation when we must pause for the sake of asking ourselves what need or requirement yet remained unsatisfied which was essential to the perfecting of our arcuated developments, and what means remained—hitherto unused—by which such need might be met.

We have followed out our arched construction, and the process by which it was rendered at once susceptible and productive of artistic beauty, till we might fancy it to need nothing but the gradual additions of refined art to render it a perfect style; and it would be both an interesting and a profitable field of speculation to take up the style at such a point, and to{178} study how best to clothe it with the charms of the highest art, irrespective of our knowledge of its historical destiny; how, in fact, to perfect our round-arched style to the highest and most refined artistic status; and I feel that any one who could fulfil such a task would be a benefactor to our art.

The semicircle is unquestionably the typical form for an arch, and one well suited to the majority of purposes and positions. I therefore wish well to him who will push a style which claims it as its leading element to its highest possible pitch of perfection. I should rejoice to see a round-arched style rendered as perfect, and its accompanying art as noble, as the Greeks did their trabeated architecture and its ever-glorious sister arts; nor do I see why such an end should not be attained, and God speed the man who worthily attempts it!

This task was, in fact, nobly though unconsciously approached by the artists of the twelfth century; nor can any one examine their works, particularly from the close of the first quarter of that century, without being filled with the warmest admiration at their determined strivings after refinement; their earnest aim to perfect every form, and to eliminate every footstep of barbaric element; to rid their work of all rudeness of execution; and in every way within their reach to raise the architecture they were developing into a really high art.

These earnest and restless strivings, however, had the effect of rendering apparent to them a defect, both structural and artistic, in the conditions prescribed by a round-arched style. They had freed themselves from the trammels of the arbitrary rules of proportion,{179} and might render their structures lofty or the reverse at pleasure: their columns might be as short and sturdy as the most archaic Doric, or might outdo the most elegant Corinthian in the lightness of their proportions; yet the arch they were condemned to carry was limited in height to one-half of its own diameter; or, if allowed to exceed this, by means of stilting, this was evidently but a clumsy expedient, and only suited to particular positions.

The whole tendency, too, of the onward movement of the art was towards increased height; and, while walls and pillars might avail themselves to the full of this upward striving, it was hard that the arch—the very essence of the style—should be condemned to unalterable stuntiness. Proportion evidently claimed that the arch should have its fair share in the increasing height of the buildings, yet the inexorable semicircle said, “Nay, my proportions are fixed. You may lengthen your straight lines as you please; but by no law of science can my height exceed one-half of my width.”

A geometrician might reply that the semicircle might be stretched upwards into a semi-ellipse with its major axis upright. I do not think that our Mediæval builders ever tried this dismal experiment, nor do I know that it was ever attempted, except by the barbarous Parthians, in a building you will find figured in Mr. Fergusson’s Handbook; and so hideous was the result that one may well suppose it to have been handed down as a warning to subsequent generations!

Nor was this craving after a loftier arch the result of taste alone. Constructive motives pointed in the same direction; for it was found that round arches,{180} when carrying great loads, as those sustaining towers, etc., were apt to overcome the resistance of their piers; and many failures were the result. The same was found to result from vaulting over wide spaces. True it is that the Romans, in the great halls of their baths, had vaulted over spans of double the width of the naves of our Norman cathedrals; but this had been effected at the expense of the utility of their aisles, which were cut up into short lengths by the ponderous abutments needed to sustain the tremendous pressure of the central vault. Besides which, the Mediæval builders aimed at raising the springing of these vaulted naves to a height out of the reach of the abutment of the aisles. An arch of less lateral pressure was therefore desired.

Another motive might have led to a similar aim. We have seen what difficulties and contrivances resulted from the exigencies of vaulting over irregular spaces where it was desirable that the crowns and springers of the surrounding arches should range on the same levels, though their spans might differ to any extent. It was clear, then, that an arch of more elastic proportions was the grand desideratum.

The claims, then, of proportion, of construction, and of geometrical convenience, all took the same direction, and demanded an arch of variable proportions.

This three-fold demand was met by the introduction of the Pointed arch.

To apply this to our main subject of vaulting, we at once see that, in addition to constructive advantages, the arch could now he proportioned in height to its supporting piers, and the unequal sides of the vaulted spaces could now be arched in such a manner as to{181} satisfy the exigencies of the vaulting without the necessity of resorting to awkward contrivances; so that an accession was obtained at once of strength, beauty, and facility of application.

I have called the use of diagonal ribs the Magna Charta of the art of vaulting; but it must share this honour with the Pointed arch. Let us now proceed to trace the progress of the art under this double charter of liberty.

The first introduction of the Pointed arch into vaulting seems to have been made without a full consciousness of its advantages, and rather with a view to strength and general beauty than to the convenience of covering irregular spaces, for in many early specimens—as originally in the Cathedral of Sens,[46] and in the work of William of Sens at Canterbury,[47]—the round arch continued to be used in the narrow bay against the walls, while the pointed arch was used for the wider spans. In nearly all English specimens, however, full advantage was at once taken of the newly-attained freedom: thus, at St. Joseph’s Chapel, at Glastonbury,—a work otherwise purely round-arched,—the groining assumes throughout the pointed form, the narrow bays being especially acute.[48] The same is the case at St. Cross, another very early transitional work,[49] and in the nave and transepts of St. David’s Cathedral[50] (erected about 1180), though the groining was never carried out, we have the preparations for it{182} with pointed wall-ribs in the sides, while the round arch is mainly used beneath. I shall, therefore, disregard this occasional inconsistency.

[Image unavailable.]

Fig. 349.

A. Transverse ribs.

B. Diagonal ribs.

C. Wall ribs.

D. Ridge ribs.

Before going further, I will, to prevent mistake, give the names of the parts of a groined compartment (Fig. 349). The main ribs from wall to wall are called by us transverse ribs; by the French, arcs doubleaux. Those which pass from angle to angle, intersecting in the middle, we call diagonal ribs; the French, arcs ogives. Those which adhere to the wall, we call wall ribs; the French, formerets. If there is a rib or moulding along the apex, we call it a ridge rib; the French, a lierne. The latter, however, does not exist in early examples. Other features appear as we proceed, but I limit my first list to the simpler forms of vaulting. The French names are found in the treatise of Philibert de l’Orme, a work of the sixteenth century; whether they have been traditionally kept up I do not know, but they are now universally adopted by French writers on the subject.

I will just go over our leading cases, already treated of, showing the changes effected in them by the use of the pointed arch.{183}

In the square groined space with level ridges there was no alteration excepting in the form of the arch, and in the more finished mouldings made use of. The diagonal ribs often took the form of a round arch, but this depended wholly on the proportions of the surrounding pointed arches.

As the diagonals were not formed by elliptical curves, it followed that the vaulting surfaces were not portions of cylinders, and that an error had to be thrown into them. In fact, they were filled in from rib to rib without any view to purely geometrical forms.

When the pointed arch is applied to an oblong compartment, or to the sides of a polygonal apse, its advantage becomes more manifest; for the power of making the narrow arches against the walls as high as we please wholly removes the difficulty which we encountered while limited to the round arch, and that without the necessity of stilting, though the convenience which the last-named method offered for the introduction of windows still led to its frequent use.

The irregular compartments of an apsidal aisle ceased now to present difficulties, as all their arches could be made of equal height.

It is curious that, while we have in London two specimens of such aisles in the round-arched style (those in the Tower of London and St. Bartholomew’s), so have we also two in the pointed arched style, and those very different indeed in their treatment. The aisle round the apse of Westminster Abbey has compartments enormously wider on one side than on the other, and this is met simply by the varied proportions of the arches (Fig. 350); while that surrounding the round portion of{184} the Temple Church[51] has double as many compartments as there are pillars in the arcade, and, consequently, behind every arch of the great arcade is a groined compartment which is nearly square, while behind every pillar is one of a triangular plan, vaulted in a peculiar manner from its corners without any ribs between the transverse ribs.

The vaulting of a polygon with a central pillar assumed now a form of exquisite beauty. Its two special types in its simpler form are the Chapter-houses at Salisbury and Westminster,—truly a par nobile fratrum,—and claiming special attention as showing the extraordinary beauty attained by the use of ribbed vaulting united with the pointed arch.

[Image unavailable.]

Fig. 350.—Westminster Abbey. Vaulting of Aisle round Apse.

[Image unavailable.]

Fig. 351.

Fig. 352.

I have already mentioned that in this form of vaulting

[Image unavailable.]

Fig. 353.—Interior of the Chapter-house, Westminster Abbey.

{185}

there is a choice between two methods of effecting it: either by supposing the main vault to span from wall to pillar or from angle to pillar (Figs. 351, 352).

The former is, on a primâ facie view, the more natural, but it has the disadvantages of breaking the chief side of the vaulting compartment which rises from the corners into a resalient angle, and also of rendering the main ribs from these angles across to the pillar, in one half of their length diagonal ribs, and in the other transverse; and of making one half represent a projecting and the other a receding angle, while the angle ribs of the outer half meet the transverse ribs of the inner half of the vault.

These objections are entirely removed by supposing the main vaults to run directly from the angle to the pillar. In either case the ridge which surrounds that half of the vault which springs from the pillar takes the form of an inner octagon.

In the first case, the sides of this are parallel to the walls, while in the second they take an intermediate direction; the angles of the inner octagon being opposite the centres of the sides of the outer one, and vice versâ.

The vaulting compartments which rise from the angles of the great octagon are precisely similar to the opposite ones which rise from the pillar, and the ribs which rise from the angles to the pillar are throughout transverse ribs, while the angle ribs from each side duly meet one another.

I exhibit a view of the interior of the Chapter-house, Westminster (Fig. 353), to show the beauty of this form of vaulting. Few forms, in fact, in any style{186} of architecture present such beauties as an octagon vaulted in this manner; and I am happy to think that our London specimen, which has been lost for the last century or more, will now very shortly be restored to its original form and condition.

I have already mentioned that in all these forms of vaulting,—that is to say, those with level ridges,—owing to a geometrical error resulting from the use of circular curves for all the ribs, the filling in of the vaulted spaces must be artificially shaped to fit those curves.

The use, however, of a form of vaulting analogous to that before described as having raised ridges would obviate this inaccuracy.

Suppose, for example, an oblong compartment with pointed arches of similar proportions on all its sides and on its diagonals, and the vaults of each cell generated by the motion of the curve of the surrounding arches towards the point of intersection, guided by the diagonals, we obtain at once a vault with pointed arches and raised ridges, the precise correlative of that before described with round arches and raised ridges, and one in which the filling of the vaulted spaces assumes a systematic and accurately geometrical form (Fig. 354).

[Image unavailable.]

Fig. 354.

The proportions of the arches are not essentials, but where the narrower arches approach the height of the wider ones, a curious effect is produced on the form of the ridge, which, always elliptical, becomes then so obviously so as to be unpleasing.

This form of vault was of very frequent use, though{187} the exact method of filling in the spaces was not rigidly adhered to. Its disadvantages are, that it either limits the height of the walls available for windows, or runs up so high into the roof as to interfere with its construction. It is in many cases, however, a very convenient, as it is a very sightly, form of vaulting.

Even the simple form of vaulting with level ridges is not always convenient for windows, particularly in clerestories, where they have often to fill the whole space. This led to the practice of stilting the wall-rib to such a degree, as to have the effect of twisting the groined surface of the cross vault to an extraordinary extent. This may be seen in the vaulting of the cells adjoining the clerestory at Westminster Abbey, and at St. Saviour’s, Southwark (Fig. 355). This twisting of the surface has received the very appropriate name of ploughshare vaulting.

[Image unavailable.]

Fig. 355.—St. Saviour’s, Southwark. Vaulting of cells adjoining the clerestory.

The liberty which was felt in dealing with the surfaces of vaulting-spaces, when once the salient lines became emphasised by ribs, led to the practice of the “doming up,” as it is called, of those spaces, whether the ridges were raised or level; that is to say, that each course of the filling-in stonework was often laid on a curve, so as to increase the strength of the work, by rendering every course a kind of arch from rib to rib.{188}

I must, however, reserve to my next lecture a description of many of the forms which the vaulting of this period assumed, and a number of practical facts relating to it; as well as the pursuit of the subject into its more advanced history; where, instead of limiting its features to such as originated in obvious and functional utility, others were added for purely decorative purposes. The subject is so extensive that I am compelled to divide my lecture upon it abruptly.

Let us, then, pause here and consider for a moment the artistic sentiment and character of the stage at which we have arrived. I will suggest, in passing, that this stage, in which no architectural features were introduced for mere purposes of decoration, and which consequently leaves wide vaulting-spaces, is peculiarly suited to the extensive introduction of the works of the sister arts of painting and mosaic, which may be used almost as freely here as in the Byzantine domes. The point to which, however, I desire to direct your attention is rather the purely architectural sentiment.

Small as is the difference of principle between the later Norman vaulting and that under consideration, the impression produced upon the mind is entirely changed. The one suggests weight and pressure systematically met and resisted; in the other those forces appear to have vanished; and the effect suggested is rather a shooting boldly upwards, like the growth of a tree, than any downward pressure towards the earth. True it is that, in the decorative treatment, a colonnette is placed under every rib or group of ribs as its artistic support; yet, in its effect upon the imagination, the action is reversed. It is not the column bearing the{189} weight of the arched ribs, but the latter springing vigorously upward from the column.

Who, while viewing a stately tree in the pride of its growth, ever thinks of its weight, or of the pressure of its boughs upon the stem? It is with its upward soaring that the mind becomes impressed; and just so it is with the interior of a Gothic cathedral. The perfection with which all physical forces are met has to the mind the effect, not merely of having annihilated, but of having actually reversed them. So that upward striving, stately growth, and heavenward aspiration are the ideas customarily suggested as illustrating the impressions produced. The lofty avenue, with its intersecting branches, has become the chosen similitude to which it is popularly likened, and it has been universally received as the form of architecture most expressive of the heavenward soarings of our religion.

No one who contemplates our glorious Abbey Church of Westminster, and lays his soul open to its inspiration, can fail to feel sentiments in harmony with those suggested by the cognisance of its saintly founder—selected as if in anticipation of its future glories—the symbol of our religion surrounded by martlets, whose feet are erased in token that they have lost all tendency to rest on earth, but, like the aspirations of Christian worship, ever mounting on the wing towards the supreme object of adoration, and

“Flying up to Heaven gate ascend,
Bear on their wings and in their notes His praise.”
{190}

LECTURE XV.

The Transition.

Certain practical points concerning vaulting—Ribs of early and late vaulting—Filling in of intermediate surfaces or cells—Methods adopted in France and England—Sexpartite vaulting—Crypt of Glasgow Cathedral—Choir at Lincoln—Chapter-house, Lichfield—Caudebec, Normandy—Octagonal kitchen of the Monastery, Durham—Lady Chapel, Salisbury—Segmental vaulting—Temple Church—Lady Chapel, St. Saviour’s, Southwark—Westminster Abbey—Intermediate ribs—Presbytery at Ely—Chapter-houses of Chester and Wells—Exeter Cathedral—Cloisters, Westminster—“Liernes”—Ely Cathedral—Chancel, Nantwich Church—Crosby Hall and Eltham Palace—Choir at Gloucester—Winchester Cathedral—Fan-vaulting—Cloisters at Gloucester—King’s College Chapel, Cambridge—Divinity Schools, Oxford—Roof of Henry VII.’s Chapel, Westminster—Ideal of its design.

MY last lecture brought the subject of vaulting to its full functional development,—that which contains all elements whose origin can be traced to the demands of utility, but none which have been introduced purely for decorative purposes. In my present lecture I must supplement what I then treated of with some cases of its application which I had not then time to detail, and then proceed to carry on my subject into its more distinctly decorative developments.

Before, however, I proceed further, it may be advantageous—though construction does not, perhaps, come within the range of lectures in this Academy, excepting so far as it exercises an influence upon form—to say a few words on certain practical points which{191} are necessary to the full understanding, even of the artistic portion of the subject we are considering.

In the earlier forms of vaulting, the entire strength lay in the continuous arched surface, which was constructed of brick or of stone, or of rubble bonded at intervals with brick or stone; the rubble or stone being often of the cellular material called tufa, which was much used by the early builders on account of its lightness as well as the tenacity with which it united itself to the cement.

Transverse ribs were next introduced at intervals to strengthen the wider spaces; and, at a later period, the angles were similarly fortified.

[Image unavailable.]

Fig. 356.

Fig. 357.

These ribs, in early examples, sprang distinctly as separate arches from the impost, the vaulting passing over them (sections, Fig. 356). At a later period—even in round-arched vaulting—we find the practice coming into vogue of uniting the ribs, and even the springers of the vaulting itself, by cutting them at the base out of the same blocks of stone. We see an early specimen of this in St. Bartholomew’s Church (Fig. 357).

When the ribs became more numerous, it often occurred that five or even eight of them had to spring from one group of capitals; and at times three at least (and subsequently more) from a single capital. It is clear that in such cases the three or more distinct forms could scarcely retain their separate existence, but that being united in their lower portions in a single block, their forms would, more or less, die one into{192} another. Though we can trace this process in Norman work, it was not completely established till some time later.

[Image unavailable.]

Fig. 358.

Fig. 359.

It will be better understood by means of Fig. 358, in which a transverse rib, two diagonal ribs, and two wall ribs meet at their common springing line, and so intersect and unite one with another as to produce a section at the base composed of portions of them all. Now, a drawing of this group of ribs will at once show that their combined and united form must extend to some considerable height above the springing; and so far as it reaches, which is often some 8 feet or 10 feet in height, they cannot possess an individual existence (Fig. 359). To this height, then, it is customary to build the group of ribs in horizontal courses, and only to commence the radiating arch-joints where the ribs clear themselves one from another, which usually occurs at one level, though in vaults of great irregularity one rib often clears itself at a lower level than another.

In setting out the relative position of the ribs upon the common springing level, great skill and judgment are requisite, or they will clear themselves one of another so irregularly as to cause great difficulty and needless twisting in the filling in of the vaulting surface. If you set out on plan the side lines of two ribs (Fig. 360), and lay down the true position of the mouldings of one of them, it is clear that, if the curvature{193}

Fig. 362.

[Image unavailable.]

Fig. 360.

Fig. 361.

of both were equal, the second rib should be set out with its back line at an equal distance from the points at which the plans of the adjoining lines would intersect; for, in following the curve, both would at a given height reach a point vertically over that intersection, and so the filling in would have a proper starting-point, which would not be the case if they reached that vertical line at different heights. As, however, the diagonal rib (where the ridges are level) has to travel farther to reach a given height, its springing section has to be set farther back to make it reach the vertical line over this point of intersection at an equal level with the transverse rib. The wall rib in a square vault would be similarly placed with the transverse rib; but in an oblong vault, as it would travel a less distance to reach a given level, its springing section must be placed forwarder than that of the transverse rib, and, of course, greatly forwarder than the diagonal. This is easily adjusted by drawing the curve of the back of the rib, whose position is first determined, drawing against it the vertical line of its intersection with the next rib, and then, from the apex point of the adjoining rib, to draw its curve through the point of intersection, which will give on the springing line the distance backward or forward at which the{194} springing section of that rib should be placed (Fig. 361).

The ribs of all vaulting of early date are square and flat at the back; the vaulting, which is often very thick, passing over and resting upon their backs. In later works the ribs were usually deeper from intrados to extrados, and were notched, or as it is technically called, “rebated,” to receive the vaulting, or at least the lower part of its thickness (Fig. 362); for where the surface was not intended to be plastered, the wrought stonework was often a thin casing covered over above by a thicker mass of rough work. The curvature of the courses of wrought stone enabled them to be set without the use of continuous timber centering, and this inner facing, once finished, would itself form a substantial centering for the outer rough vault.

At a later period this outer thickness was dispensed with as a superfluous load. In all cases the hollow space against the wall behind was filled in solid to a certain height to strengthen the haunches of the vault.

The ribs now became beautifully moulded, and sometimes decorated with carving. In early works, as at St. Cross;[52] St. Peter’s, Oxford; St. Joseph’s Chapel at Glastonbury;[53] and in the aisles at Canterbury, the old Norman chevron was continued in the ribs. The meetings and intersections of the ribs at their apex were usually ornamented with bosses, and beautifully carved. These bosses assumed many varieties of form—sometimes a small rosette, or a little tuft of foliage, merely to decorate the centre of the intersection without covering the mouldings; sometimes the mouldings{195} themselves return round a central opening, with or without foliage; sometimes a head of part of a figure was added to the last-named form in each angle, nearly at the plane of vaulting; sometimes beneath such moulded boss a disk was attached with or without foliage, as if to form a cover to the central opening; indeed, it was occasionally actually the moveable cover of such an opening. In England the usual form is a group of foliage covering the intersection, and frequently containing figure sculpture. Westminster Abbey furnishes admirable examples both of the foliated and sculptured bosses.

As regards the intermediate surfaces of the vaulting, a curious difference is found to obtain between the methods adopted in France and in England.

In France the courses of stone run parallel to the ridges, as would naturally suggest itself from the original intersecting vaults (Fig. 363); while in England they often take an irregular direction, as if suggested by placing them at right angles to an imaginary centre line of each triangular space, though really deviating much and irregularly from such a rule.

[Image unavailable.]

Fig. 363.

The French seem much offended by the appearance of the English system; and I remember feeling in the same way when I first saw the French method. The latter seems to throw undue pressure on the diagonal ribs, while the English mode appears to throw it more equally on all the ribs; throwing it, in fact, down into the direction of their meeting-point.[54] {196}

I will now describe a form of vaulting which, though it originated during the round-arched period, seems more properly to belong to that now under consideration. We have seen that the arches of churches were frequently arranged in pairs; the piers alternating in size and design. Supposing each arch to be about half the width of the nave, each pair of arches would form a square on the plan; and, though such a square space may be, and often was, divided into two oblongs in the vaulting, it is equally natural to vault it as a single square. As, however, this leaves the alternate piers unrepresented in the vaulting, it became frequent to carry across from this intermediate pier a single transverse rib crossing the diagonals at their point of intersection, and between it and those diagonals to introduce oblique vaulting cells, whose ridges strike from the centres of the half-bays to the point of intersection.

[Image unavailable.]

Fig. 364.

Fig. 365.

Fig. 366.

Dr. Whewell, followed by Professor Willis, has given this the name of “sexpartite” vaulting (Fig. 364), ordinary vaulting being quadripartite, as having four cells. It is obvious that, in a square building of two bays on each of its sides, this may be carried out on all four sides, and thus become an octopartite vault (Fig.{197} 365);[55] or, as in the aisles of Lincoln Cathedral, it may be adopted on one side only, and so be quinquepartite (Fig. 366).

These forms of vaulting were most frequent during the transitional period; that is to say, during the latter part of the twelfth century. Thus it is used in the work of William of Sens at Canterbury, and by Bishop Hugh at Lincoln, and preparations were made for it at St. David’s. It was, however, continued at Lincoln in the great transept, and in the aisles of the nave, which are of later date; and we have an instance of it at Westminster, as late as 1250, in the Chapel of St. Faith.[56]

The same principle was applied, in a varied form, at the east end of the Priory Church at Tynemouth, where, though the bays have ordinary vaulting, the eastern wall is divided into three parts, corresponding with the windows, over which cells of vaulting are formed, converging to the intersecting point of the compartment.[57] Curiously enough, we find the same arrangement repeated a century and a quarter later in the crypt of St. Stephen’s Chapel, in the Palace of Westminster.

[Image unavailable.]

Fig. 367.

In the Lady Chapel at Auxerre the same idea is carried out still farther, the vaulting, square in plan, having two of its sides divided into two cells each, as on the sexpartite principle, and the other two into three each, as those above referred to, making in all a decapartite vault (Fig. 367). If all sides had the threefold division, it would have become dodecapartite, or a vault of twelve cells.{198}

M. Viollet Le Duc gives a curious instance of sexpartite or septipartite vaulting united with another form (Fig. 368), for which I know no definite name, but which is itself a union of the groined vault with what I have elsewhere called the square dome.

[Image unavailable.]

Fig. 368.

I will describe the last-named vault by a comparison between those of two corresponding chapels near the west end of Lincoln Cathedral, to the right and left of the nave.

[Image unavailable.]

Fig. 371.

Fig. 369.

Fig. 372.

Fig. 370.

The two chapels are alike in plan (Figs. 369, 370),—an oblong, each side of which is divided into two arches. They only differ in that one has a central pillar and the other has none. The one is simply divided into four groined vaults on the most customary principle (Fig. 371). The other is similarly vaulted up to the line of the square, the angles of which would be represented by the four bosses of the first-named vaults; but from thence the diagonal ribs, instead of returning downwards on to a central pillar, continue to rise till they meet in the middle point of the chapel (Fig. 372). This upper portion, therefore, is the top of a square dome; and the whole vault may be described as a square dome penetrated on each side by{199} two Welsh groined cross vaults. This combination is common in the vaulting under central towers, as at Lincoln and York; though in these cases the central portion is bounded by a strongly-marked horizontal line defining the boundary of the half-groins below, and the square dome above. In the chapel I have been describing there is no such boundary-line, but the groining compartments continue till they meet in a point at the top. This system may be carried out with any number of bays; and we have in the Chapter-house at York an instance of its application to an octagon. The plan of the vaulting there is identical (or nearly so) with that of Westminster or Salisbury, but the portion enclosed within the inner octagon, instead of turning down to the central pillar, runs up to the point at which all the arched lines would meet in the centre (Fig. 373).

[Image unavailable.]

Fig. 373.—Chapter-house, York.

{200}

The relation between the vaulting of the Chapter-houses of York and Westminster is, in fact, the same as that between the two chapels at Lincoln just described. In each case we see how similar forms may be covered over with vaulting nearly identical in plan—with or without a central pillar at pleasure.

There is a parallel case in the crypt of Glasgow Cathedral, in which the compartment is divided on three of its sides into two, and on the other into three arches.

This crypt is a work in which the architect would appear to have revelled in self-sought perplexities, and to have solved them, one after another, with singular success.

[Image unavailable.]

Fig. 374.—Glasgow Cathedral. Plan of vaulting of the Crypt under the Choir.

The portion of the crypt which represents the choir overhead is really one of the most lively and amusing pieces of vaulting I know (Fig. 374). It consists of ten bays; and, as the east end is necessarily divided into two bays for the support of those above, nothing would have been more natural than to have placed an intermediate row of columns down the centre, dividing the whole into two ordinary ranges of vaulting. But{201} no, the architect would have lost his fun by any such commonplace scheme, and we should have lost a very pretty and instructive puzzle.

Beginning at the east end, he first cut off a space two bays long, then a second of three bays long, then a single bay, then another space of three bays, and finally a single bay at the west end; while to each of his groups of three bays, he gave a central column, and repeated the threefold division on its east and west sides. These square spaces, then, each of whose sides is divided into three, became the key-notes of his scheme, and most ingeniously and beautifully he vaulted them. The principle followed is really, however, nothing more than an adaptation of the ordinary mode of dividing a square into four smaller squares of groining, to a space whose sides are divided into three instead of two (A). The central square resting on the column remains unaltered, but the sides have each three cells, the transverse ribs from the central column being bifurcated at their apices, and instead of going across to an opposite pillar, spread right and left to the two pillars, while the main diagonal ribs remain unaltered. These are met at their apices by half-diagonals coming obliquely from the same pillars in the sides. The result is a star-like arrangement of an exceedingly pleasing, though at first sight, intricate character.

Adjoining one of these beautiful squares comes the compartment first alluded to (B). It is a very parallel case to that last described. On three sides it is the same as the Lincoln chapel, with a portion of a square dome instead of a central column (excepting only that{202} this has the boundary-line), while the fourth side, having three divisions instead of two, is dealt with precisely as has been described in the preceding case. Amongst these intricate compartments are alternated single bays, each divided transversely into three squares of ordinary groining; and the perplexity of the effect of the crypt arises not so much from the difficulty of any of the forms of vaulting, as from the constant change from one form to another, no two adjoining divisions being alike. The whole is carried out with excellent detail, and forms a most beautiful and interesting interior.

[Image unavailable.]

Fig. 375.—Choir, Lincoln Cathedral.

The subject of puzzles in vaulting suggests a notice of that of the choir at Lincoln, where the architect (De Noyes) seems to have put himself out of the way to make an easy matter difficult; for, instead of groining his oblong bays in the usual way, he has made each cell strike obliquely to points dividing the central ridge of the bay into three equal parts (Fig. 375); so that neither the cells nor the diagonal ribs from either side ever meet one another, but each cell is met by an intermediate or an oblique transverse rib from the opposite side. Professor Willis, in his peripatetic lecture there in 1848, called the architect “a crazy Frenchman,” it being then thought that he had been brought over by Bishop Hugh of Burgundy; but it has since been discovered that he was a member of a Norman family long settled in Lincolnshire; and the beauty of his work is such that we may well excuse{203} this freak of eccentricity, and wish that this form of craziness was more prevalent amongst ourselves!

A curious effect is produced by carrying vaulting out accurately in a circular aisle or corridor, where it gives the diagonal ribs a twisted line, bending them out of the vertical plane. This is well seen in the apsidal aisle in the Cathedral at Bourges, both in the church itself and the crypt.

I will only notice two or three more varieties of this stage of vaulting, and those of a miscellaneous character.

The Chapter-house at Lichfield is an elongated octagon (Fig. 376), one of its sides on either hand being double the length of the others, and divided into two bays. The vaulting is a curious elongation of that of the regular octagonal chapter-house: a cell on either hand being interpolated, and the ribs all converging obliquely to the central pillar.

[Image unavailable.]

Fig. 376. Chapter-house, Lichfield.

Fig. 377. Kitchen of the Monastery, Durham.

At Caudebec, in Normandy, we have, though of much later date, a hexagon vaulted much as our own chapter-houses, but with a pendant substituted for the central pillar, and ingeniously suspended by a long stone from a constructional vault above.

At Durham, in the octagonal kitchen of the monastery, we have a curious piece of vaulting planned with{204} a view to a central ventilating lantern (Fig. 377). The ribs run from every corner at right angles to the side of the octagon, and consequently meet the third angle from that from which they set out, and their intersections leave an octagonal opening equal in diameter to one side of the original octagon in the centre, and this is strong enough to support the required lantern or louvre.

The vaulting of the Lady Chapel at Salisbury is remarkable for the extraordinary slenderness of the columns which support it, being thin Purbeck marble shafts of great height, reducing the width of the chapel by cutting off a very narrow range of vaulting from either side. Somewhat similar in idea is the vaulting of the crypt beneath the Sainte Chapelle at Paris, where, to avoid the segmental vaulting which would be the natural result of its limited height, the span is reduced by a range on either side of small pillars;—in this case so near the wall as to necessitate a great amount of stilting, and the introduction of a kind of tracery beneath the transverse ribs to give abutment to the central vault.

I should, in passing, mention, that segmental vaulting is very frequent at this period, where the height is limited; and that, even where the main arches are not so, the diagonal ribs frequently assumed that form; indeed, it became necessary wherever the length of a diagonal exceeded double the height of its arch.

Taking this stage of the history of vaulting as a whole, we have peculiarly favourable opportunities of studying it here in London: possessing, as we do, excellent examples of all its most leading varieties.{205}

In the Temple Church we have the curious circular aisle already described, being a specimen of the earliest era of true pointed-arched vaulting; while in the eastern portion, dating some forty or fifty years later, we have the most typical specimen conceivable of vaulting, all springing from a given level, and with level ridges. It is rendered the more marked in character by the division of the three ranges of vaulting by means of the pier-arches, which, coming close under the vaulting, assume the character of enlarged ribs.

Very similar to the last-named is the vaulting of the Lady Chapel of St. Saviour (or St. Mary Overie), Southwark (Fig. 378). The only striking difference being the number of spans and the absence of pier-arches, so that it assumes the form of a space divided into twelve equal and square compartments, and carried by six similar columns.

[Image unavailable.]

Fig. 378. Lady Chapel, Southwark.

In the choir of the same church we have an excellent specimen of clerestory vaulting, with oblong compartments and stilted side-cells, worked in a manner somewhat different from the usual ploughshare system.

In the eastern half of Westminster Abbey, including the transepts, we have the vaulting of the oblong space (with ploughshare side cells), and of the square space, and of the four-sided space of all degrees of irregularity; we have apses of two dimensions, viz., the great apse of the Sanctuary and those of the radiating chapels, which are as beautiful specimens of the apse vault as can be found; we have, in the Chapter-house, the vaulted octagon, with central pillar carried{206} out in noble proportions and with excellent detail;[58] while in the crypt below is a repetition of the same vaulting, of depressed proportions, and carried out with the severest simplicity.

[Image unavailable.]

Fig. 379.—St. Faith’s Chapel, Westminster Abbey. View looking East.

We have in its inner vestibule two oblong vaults

{207}

[Image unavailable.]

St. Faith’s Chapel, Westminster Abbey. View looking west.

placed side by side, one apparently the square, and the other of the narrowest proportions; and in the outer vestibule beautiful miniature vaulting, on minute columns, and with the segmental arch; while in St. Faith’s Chapel, hard by, we have an excellent example of the sexpartite vault (Figs. 379, 380). Parts of the aisles, too, are remarkable for the subdivision of their bays by transverse arches of the double orders of mouldings, giving a great nobleness and strength to their effect; and all these varieties are carried out with admirable detail and studied art.

It would lead me into too great length if I were to go into the moulding of the ribs, their combinations where grouping and intersecting one another in the springers, and the mode in which the shafts are arranged for their support. My illustrations will, however, do much to explain this. I must not omit to mention that in French buildings, and frequently in the earlier English specimens, the plans of the abaci of these shafts assume both forms and positions indicating the general section and the directions of the ribs they carry,[59] and that this is even shared by the bases; showing that the vaulting was the very first thing thought of and designed; and that, from the very floor of the building, it influenced the general design. This was lost in England by the introduction of the circular abacus.

I have hitherto dwelt wholly upon vaulting which has none but what I have termed functional ribs; that is to say, such as have a specific utility, as transverse ribs to mark the boundaries of the bays, and to strengthen{208} the vault in its main span; diagonal ribs to fortify the angles of intersection; and wall-ribs to support the vaulting surfaces at their junction with the walls; and occasionally ridge ribs, though these more properly belong to the succeeding stage. The next stage in the history of vaulting is that in which other than merely functional ribs are made use of—intermediate ribs, in fact, to subdivide the spaces between those used during the previous period.

[Image unavailable.]

Fig. 381.

Fig. 382.

In square vaulting, one such additional rib is more usually introduced in each space (Fig. 381). In very oblong vaults two, and even three, were often introduced in the side spaces, though only one in the middle spaces (Fig. 382). It is clear that this addition necessitates the use of ridge ribs, as, without them, the point at which the intermediate ribs meet at their apex would want abutment. So reasonable, indeed, was this motive, that we often find the ridge rib to have been omitted between the intermediate ribs and the wall ribs, because there its use ceases.

One thing which followed the use of these additional ribs was the curious serrated plan of the filling in. The oblique position of these ribs would, if the plan of the filling in remained unaltered, cause the fillet or reveal of the rib nearly to vanish on one side, and to become very wide on the other. This led them to change the plan.{209}

On looking at the top surface of vaulting where the ribs are visible, it is at once seen that this was also necessitated by a structural cause, as without it the filling in would not rest well upon the ribs (Fig. 383).

[Image unavailable.]

Fig. 383.

[Image unavailable.]

Fig. 384.—Westminster Abbey. Vaulting west of the crossing.

No better specimen of this form of vaulting can be referred to than that of the presbytery at Ely, built about 1240 to 1250, and the four bays immediately to the west of the crossing in Westminster Abbey, erected by Edward I. about 1280 to 1300 (Fig. 384). The latter is the more perfect, as having level ridges;{210} the former, curiously enough, having ridges to the side cells which rise from the intersection towards the walls. I may mention that it is very common for vaulting with intermediate ribs to have ridges rising rapidly towards the central boss.

The use of these additional ribs became, from the latter part of the thirteenth century, rather the rule than the exception.

I may mention early specimens of it at Chester, both in the Chapter-house (Fig. 385) and in the Lady Chapel, the latter with raised ridges; but in each the addition being only in the side cells. The Chapter-house at Wells has the intermediate ribs added throughout to those of the more normal examples at Westminster and Salisbury, giving its vaulting a peculiarly full and rich, though rather crowded, effect. Bosses are usually introduced at all points of meeting, adding greatly to the richness of the whole.

[Image unavailable.]

Fig. 385.—Chapter-house, Chester Cathedral.

Though I have called these ribs non-functional, such is the case only in a limited sense, for, though not necessary, they nevertheless do their work: they divide{211} and strengthen the vaulting spaces, and tend to do away with the necessity (if such may be supposed to exist) for any great thickness of filling in. They form, in fact, a stone framework or centering, with frequent supports on which the vaulting permanently rests. Nearly the whole of Exeter Cathedral is groined in this manner, and excellent specimens, though of rather late date, may be seen in the west and south walks of the cloisters of Westminster Abbey, and in the two vestibules through which the cloister is approached. These have the advantage of close proximity to the eye, which enables one to study them with facility.

The next step in the history of vaulting may be said to be wholly decorative in its motive. It is the addition of short cross ribs between those already described, and arranged in patterns, such as stars, etc., round the central bosses, adding much to the complexity and ornamental character of the vault, and making a farther increase to the number of the bosses.

Wonderful skill is often evinced in the arrangement of these patterns, which, traversing the changing planes or surfaces of the vaulting, produce in the perspective an extraordinary diversity of effect. These ribs have received from Professor Willis the name of “Liernes,” a term given by Philibert de l’Orme to the ridge-ribs (perhaps in common with these), but, as we are short of an English name for these cross-ribs, it comes in conveniently to our aid. The term means, I believe, in carpentry, a short joist or rail, serving as a tie to steady other timbers, which is very appropriate to its use (real or apparent) in vaulting.

We have a few excellent specimens of this class of{212} vaulting in London; more particularly that of St. Stephen’s crypt, and of a bay of the cloisters opposite the entrance to the Chapter-house, both erected in the first half of the fourteenth century.

In the former, both the intermediate ribs and the liernes are very subservient in size to the main ribs; which gives an excellent effect: indeed, I know of no work more studious in design and detail than that piece of vaulting.

The vaulting of three bays of the eastern limb of Ely Cathedral, built by Alan de Walsingham at about the same period, is also of excellent design, as is that of the chancel of Nantwich Church in Cheshire.

I am imitating the last-named to a certain extent in timber in the vaulting of the nave of Chester Cathedral, where, though the springers exist, the vaulting has never been completed.

Liernes are not placed at right angles to the surface of the vaulting, but in a vertical plane; perhaps from the facility it affords for setting them out on the ground plan.

We find the same cause regulating the geometrical system adopted for setting out the stones forming the bosses, which had also to contain a short piece of the impinging ribs. Professor Willis, in his admirable papers on vaulting, gives in minute detail the method adopted, showing that, to facilitate the operation, they made the upper surface of the boss-stone horizontal, to serve as a sort of drawing-board on which to draw the plan of the intersecting ribs. I have tested this in several instances. In the western part of the nave at Westminster, there being no outer thickness of stone{213} vaulting, the boss-stones appear, and their surfaces are horizontal. On sweeping away the accumulation of dust and rubbish which covers them, I found, sure enough, the centre and side lines of all the ribs carefully drawn upon them.

In the lierne vaulting at Ely, though there has been an outer thickness of stonework, it was cleared away in the last century for the sake of lightness, so that the boss-stones, once concealed, are now visible. On clearing them from obstructions, I again found, as at Westminster, the lines of the ribs (here much more complex), carefully set out upon the top of the stones. Each of these little stone tables, in fact, has drawn out upon it the bit of the full-size plan of the vaulting which its surface would contain.

The lierne vaulting, though commencing as early as the first quarter of the fourteenth century, was so popular as to be continued throughout the remaining periods of Gothic architecture, used side by side, and often in union with other and later systems. The same was naturally the case with ordinary rib vaulting, so that in later times we have at least three systems used contemporaneously.

I know of no specimens of lierne vaulting more charming than what we see in the oriels of the halls of Crosby Hall (Fig. 386), and Eltham Palace (Fig. 387), two sister works, unquestionably the work of the same architect, in the reign of Edward IV. They are of different plans. The one consists of five sides of an octagon, the other of a double square. The latter is on the system I have mentioned as having its central compartment raised like a square dome, to allow of{214} the passage of the arch by which it opens into the hall. Both are carried out with the depressed arch belonging to their late period, and are treated with exquisite care and taste.

At Gloucester, in the choir, and Winchester, in the nave, this manner of vaulting assumes a very peculiar form; the side cells falling in at a low level, as what are called “Welsh” groins, leaving a width of barrel-vault above, which is richly decorated by surface ribs and liernes.

[Image unavailable.]

Fig. 386.—Oriel, Crosby Hall, London.

That at Gloucester is a work of extraordinary magnificence. Its great specialty lies in its having two sets of diagonal ribs (Fig. 388), the one on the ordinary system, the other comprising two bays each, and by their intersection defining the position of the “Welsh” groins. Thus the whole of the ordinary diagonal ribs, and half of the others, become mere ornamented mouldings on the surface of the barrel-vault,{215} while to them is added a vast network of liernes, cutting it into an infinity of panels, whose angles are marked by a perfect army of carved bosses. The same was imitated at a later period in the Lady Chapel.

[Image unavailable.]

Fig. 387.—Oriel, Eltham Palace, Kent.

[Image unavailable.]

Fig. 388.—Gloucester Cathedral. Choir Vaulting.

In many cases, as in the western portals at{216} Winchester, the upper portion of the groining assumes forms in which the lines of the true ribs seem almost forgotten. This is done to a very vicious extent in the choir at Wells. I may mention, as a late example of this manner of vaulting, an exquisitely beautiful chamber adjoining the cloister at Windsor.

During this period two practices crept into use, to which it is not easy to assign precise dates, but which worked great changes in the art of vaulting. The one is the use—especially at first for diagonal ribs—of a curve drawn from two centres, which gradually brought down the arches to excessively low proportions. The other practice was the use of portions of the same curve for several, or even all, of the ribs, either throughout their height, or at least for their lower part. The first-named custom was very natural in cases where the height of the vaults was limited by circumstances, as in St. Stephen’s crypt. The diagonal ribs here were struck from three centres to the double rib, and in the next ribs from two to each single rib, and were also slightly segmental; that is to say, that they made an angle with the vertical line. They may be said to be a sort of imitation of the ellipse, as also is the case with the diagonals in the vaulting of the south and west cloisters at Westminster.

The other practice (i.e. the repetition of the same curve for different ribs) is very curious and important in its results. It influenced in an extraordinary degree the plan of the vaulting at its intermediate heights. Professor Willis has called special attention to these half-height plans, as a matter of much importance to the effect.{217}

If vaulting were carried out on perfect theoretical principles, and with the level ridge, these plans would be rectangular. The mere substitution of circular curves, unless made a little segmental, softens the angle of the square, while any modification of these curves produces its effect, one way or another, on this half-height plan. Professor Willis has illustrated this in a very interesting manner from the variations found in the cloisters at Norwich; a work generally of uniform design, but which, having been carried out at several different periods, the habits of the masons had undergone changes which produced very curious effects in this respect.

I may mention that where the ribs are of the same curve the ridges cannot be level; but that the use of the two-centred curve enabled them to repeat the same curve, for the springers, but slightly to change it above by varying the position of the centre, from which the upper part of the curve is struck, so as to make the ridges level where it was desired.

This tendency to the repetition of the same curve led to the development of a most remarkable variety in vaulting, which especially characterised its later history in this country. I allude to that extraordinary form known as Fan vaulting.

It is self-evident that if a number of ribs of equal curvature spring at equal angles from a single pillar, the plan of the vault at any level will be a circle or a portion of a circle; and that they may be bounded at the level of their apex, or at any other level, by a circular moulding, forming the whole into a figure which I have had occasion to mention as having been generated at{218} a very different date and from another cause, in the Norman vaulting of the circular Chapter-house at Worcester,[60] a figure which I have defined as a concave-sided conoid, and likened to the flower of a convolvulus.

[Image unavailable.]

Fig. 389.

Fig. 390.

Now, the vaulting of any space, if set out in square compartments, and having ribs of similar curvature and at equal distances, may be formed into a number of portions of this figure by merely drawing semicircles and quadrants, as the case may be, from apex to apex of the surrounding arches (Fig. 389).

A remainder of the ordinary vaulting, with rising ridges, exists, however, above this extemporised fan, and the whole has to be dealt with artistically on a system suited to the new form.

The general idea of such treatment of a fan or conoid may be said to be parallel to that of a circular or rose window. The ribs are viewed as radiating mullions, and are made to multiply in number as the circle expands, and usually to terminate round the outer boundary with a series of tracery forms like the heads of two-light windows. A good rose-window of late date, if imagined to be elastic, and drawn out from its centre into a conoidal form, would make a good compartment of fan groining; or a groining fan compressed into a plane would make a good rose-window. The interstices between the fans are filled up in various ways; either by circles of somewhat similar design,{219} which sometimes drop down in little pendent fans, like stalactites from the roof of a cavern; or with a number of circles fitted together; or by continuing the diagonal ribs to their intersection with the ridges, and filling in the triangular spaces with tracery.

It is not, however, essential that the compartments so dealt with should be square in plan. If oblong, the semicircles or quadrants are drawn from the apex of the narrower and lower arches; and from the same centres portions of circles are drawn from the apex of the wider and higher arches, assuming the form of an additional or outer zone of a rose-window, and intersecting on the line of the cross ridges, and thus forming a portion cut out of a great fan (Fig. 390). Or the roof may be described as being formed of very large fans intersecting one another. Such is the famous roof of King’s College Chapel, at Cambridge, but the frustums of fans are there bisected by vast transverse ribs, which were, no doubt, required for strength, owing to the great scale of the vaulting (Fig. 391).

[Image unavailable.]

Fig. 391. King’s College, Cambridge.

The earliest instance which is known of fan vaulting is in the cloisters at Gloucester, dating from the beginning of the fifteenth century; indeed, Professor Willis thinks the invention due to a school of masons there. It, contrary to the usual practice, is formed with simple arches, instead of four centres. Each fan has but the transverse and wall ribs at its springing. At the next stage it forms the diagonal, then two intermediate ribs, and finally four more on{220} each side of the transverse rib, and ends in little two-light window-like heads, while the space above is filled with four large cusped arches, and as many pear-shaped figures (Fig. 392).

[Image unavailable.]

Fig. 392.—Cloisters, Gloucester Cathedral.

The limits of my lecture will not permit me to follow up this part of my subject as its importance demands; and my means of producing illustrations (for which I have heartily to thank several zealous and talented gentlemen engaged in my office, as well as one of my sons) have exhausted themselves before this laborious phase is reached.

I have already referred to the Gloucester cloisters and King’s College Chapel.

The central compartment or crossing of St. George’s, Windsor, is a most magnificent treatment of an oblong space. The aisles of the same chapel, with the smaller chapels adjoining, are charming examples, as are the aisles and small chapels of Henry VII.’s Chapel, and the cloisters of St. Stephen’s, Westminster. Bath Abbey and Sherborne Minster are thus vaulted, and a whole century later, appearing long after date, comes the beautiful ceiling of the staircase to the hall at{221} Christ Church, Oxford (Fig. 393), a square space groined on a central pillar (Fig. 394).

[Image unavailable.]

Fig. 393. Ceiling of the Staircase to the Hall, Christ Church, Oxford.

[Image unavailable.]

Fig. 394.

In the construction of the vaulting of these later periods, we have a curious instance of the manner in which extremes meet. In the earliest specimens of vaulting, all the strength lies in the vaulting surface itself. As time went on, ribs were introduced, one after another, to strengthen and support it, till at length they amounted to a permanent framework of stone, centering on which the vaulting surface lay.

Now, at length, time has its revenge, and the extreme multiplication of ribs led to the loss of their uses; the whole, or nearly the whole, being cut out of the same blocks with the panels; and thus the original system was reverted to; the vaulting surface becoming again the entire structure, and the ribs and panels simply cut as ornaments out of its substance.

The most remarkable production of the fan system of vaulting is the gorgeous central roof of Henry{222} VII.’s Chapel, a work in which ingenuity, perplexity, and beauty are united in the most wonderful manner which can be conceived.

Though it stands quite alone in point of intricacy and magnificence, it is not the first instance of the use of the peculiar system on which it is founded. How Fuller could have attributed its origin to the foreign studies of the King and Bishop Fox, it is difficult to conceive; for, not only is fan groining itself a purely English invention, but the special system of this roof has, so far as I know, only English prototypes.

The earliest of these is the vaulting of the Divinity School at Oxford,[61] finished about 1480. This was subsequently imitated, though with the loss of its leading principle, in the choir of the Cathedral (then the Church of St. Fridewide’s Convent in the same city), a work which, though popularly attributed to Wolsey, is probably of earlier date.

I have often looked in vain for the leading principle on which this wonderful work was designed. Its construction is plain enough; the difficulty is the ideal of its design. Like everything, however, which is founded on reason, its idea once perceived, it becomes perfectly simple, and one then only wonders where the difficulty lay.

It was simply as follows:—First imagine, for argument’s sake, that the architect had intended to divide his space into three spans—a wide and two narrow ones—like the Lady Chapel at Salisbury, or the crypt of the Sainte Chapelle at Paris, supporting the vaulting on ranges of thin pillars (Fig. 395). The setting out{223} of the divisions was about the following. The whole span being divided into five parts, two were given to the width of a bay, one to the imaginary aisle, and three to the central span. The vaulting of the aisles, then, would be in oblongs of double their width set lengthway of the building, and the central span in oblongs half as long again as their width set crossway to the building.

[Image unavailable.]

Fig. 395.

Let us apply to each the rule I have already laid down for the fan vaulting of oblongs. Beginning with the ideal aisles, from the pillars and responds and centres draw the lower circles of the fans reaching the apex of the narrower arches, and the upper circles reaching the apex of the wider arch (Fig. 396). This gives us an oblong fan vault in its most normal form.

[Image unavailable.]

Fig. 396.

Then do precisely the same with the wider or central span, and our space is covered with oblong fan vaulting of the most usual kind. Now, as the lower arch of the central span is identical with the higher arch of the side spans, it{224} follows that the fans in the sides (or aisles) are continued and completed in the central vault, the lower arch of the small vault being also continued round to complete the design. The decoration of the smaller fans then is in two stages, and that of the larger ones in three; but, the design of both being continuous, the one is only an extension of the other.

Had the architect stopped here, no system of vaulting, on the fan principle, or space so divided, could be more systematic or more simple in its ideal.

He had no thought, however, of stopping at so commonplace a stage, and his pillars were designed only to do their work on paper, and then to be erased. The columns were omitted, and their places supplied by pendants; but, as such a roof could not stand for a moment, something must be done to supply the support which the pillars would have afforded.

[Image unavailable.]

Fig. 397.—Henry VII’s Chapel, Westminster Abbey.

This was effected by the introduction of strong transverse arches crossing the whole chapel, and springing much lower than the vaulting (Fig. 397).{225} These crossed the narrower spans, striking arbitrarily into their fans, and uniting themselves with the central vaulting. The pendants are not to be looked upon as constructionally interfering with these transverse arches, as they become, in fact, part of them, and the arches may be supposed to pass through them in an imaginary line, so that, as in the case of the Lady Chapel at Caudebec, the pendant is in reality a voussoir, the greater portion of which hangs down below the face of the vaulting; the small arches upwards towards the wall help to strengthen and weight the transverse arches at their weakest part.

[Image unavailable.]

Fig. 398.—Divinity Schools, Oxford.

Begun 1445. Finished about 1480.

In the Divinity Schools (Fig. 398) these great arches show themselves throughout as the supports of the otherwise helpless vault; in Henry VII.’s Chapel they are visible only in the side vaults, which are strutted up from them with strong tracery, but their upper portions penetrate the central vault, and become concealed from view.

The same system is carried into the apse (Fig. 399),{226} and that with the most surprising skill. The apse is supposed to be a portion of an entire octagon, with an aisle supported by eight small columns, of which two are lost by its conjunction with the straight part of the chapel. These columns being converted into pendants, the structural arches supply, as before described, the support demanded, but in this case they converge to the central part of the octagon.

[Image unavailable.]

Fig. 399. Henry VII.’s Chapel, Westminster Abbey, Plan of Apse.

The treatment of this point in detail cannot intelligibly be described in words. It is, perhaps, the most consummately skilled piece of designing to be found in the whole range of Mediæval vaulting.

I have now completed my running (and all too rapid) sketch of the arched and vaulted systems of Mediæval architecture, though purposely leaving to another occasion the subject of domes. The limits of three lectures have only sufficed to give a somewhat cursory glance at its salient points, leaving the treasures of its detail to be searched out by the zealous student.

No subject in the whole history of architecture is so remarkable, or would more richly repay the investigator. I commend it to your individual study, and will only add that our own country is more rich in the variety of its vaulting than any other, and that London is especially well supplied with objects of study, containing, as it does, excellent examples of nearly every variety of vaulting, from the stern severity of the work of King Edward the Confessor in the substructures of{227} his monastic buildings at Westminster, to that gorgeous and astonishing work which I have just been describing, and of which we may boldly assert (whatever may be our individual preferences), that the world does not contain its equal.{228}

LECTURE XVI.

The Transition.

Non-existence of the Dome in our old English architecture—Highly developed forms in France, Germany, and Italy, contemporary with our great Mediæval edifices—Suggestions for its introduction into our revived and redeveloped Neo-mediæval style—So-called Tomb of Agamemnon at Mycenæ—The Pantheon—Temple of Minerva Medica—Torre dei Schiavi—Temples of Vesta at Rome and Tivoli—Temple of Jupiter in Diocletian’s Palace, Spalatro—Tomb of St. Constantia—Baptistery at Nocera—Baptistery at Ravenna—Important domical development—“Pendentive Domes”—Early specimens—Pendentive domes the special characteristic of the Byzantine style—How this originated—Further domical developments—Cathedral at Florence—Churches of SS. Sergius and Bacchus, the Apostles, and St. Sophia, Constantinople.

IT has been my lot to deliver my lectures from this chair in groups so very detached from one another, as to render it impossible for my hearers to follow them as a continuous series. In spite, however, of this disadvantage, I purpose to make my present lecture form a natural sequence to the last which I had the pleasure of delivering three years ago.

My last course was on arched construction, and my last lectures were on vaulting. My present one will carry on the same subject into its culminating development—The Dome.

Strongly as my tendencies towards our own Mediæval architecture draw me towards the modes of vaulting which prevail in our own ancient buildings, and which formed the subject of my later lectures, I am bound to{229} admit that the noblest of all forms by which a space can be covered is the dome; and, much more than this, that of all architectural forms it is the most sublime and the most poetic, and is susceptible of, and demands, the highest artistic treatment. I deplore, therefore, its non-existence in our old English architecture.

This regret, however, is diminished by the abundant evidence we possess that the dome, though absent from English buildings, was by no means held to be alien from the contemporary architecture of neighbouring countries, inasmuch as we possess it in highly developed forms over a large part of France, in Germany, and in Italy, erected at the same periods with many of our great Mediæval edifices.

If, then, I am departing from the line I had been taking in tracing out the history of old English architecture, I am not only supplying a hiatus in that history, but I trust that I may be able to offer suggestions for a more practical object—the supplying of that hiatus in our revived and redeveloped Neo-mediæval style.

In a former lecture, after defining a vault as the covering of a rectilinear space produced by the motion of an arch parallel to itself, I defined a dome as the covering of a circular space produced by the revolution of an arch round its central vertical axis. It follows that, if the arch so revolving is semicircular, the resulting dome is a hemisphere.

The revolving arch may, however, be of any form which an arch can assume. It may be elliptical, parabolic, hyperbolic, cycloidal; or it may be a pointed, a horse-shoe, or an ogee arch. Any one of these, or other forms of arch revolving on its centre, will gene{230}rate a dome of its own sectional form. The plan, too, in spite of my definition, need not be a circle; it may be an ellipse, or of other forms.

I will not at this stage admit of square-planned, polygonal, or other straight-sided domes, because it may be doubted whether they are genuine domes at all, or whether they are not figures resulting from the intersection of a certain number of ordinary vaults. Anyhow, these are not generated by the revolution of an arch, so that if they are domes, my definition is at fault.

Simple, however, as is the hemispherical dome, it does not appear to have been historically the primeval type; for, strange to say, the earliest known domes assume, in section, the form of a lofty pointed arch. I refer specially to that of the supposed tomb of Agamemnon at Mycenæ, and also to some portrayed on the Assyrian sculptures.

These would hardly come within the range of this lecture, were it not so curious a fact that the earliest form of the dome foreshadows the very use to which I would now especially desire to accommodate it.

It is easy to perceive why the pointed arch was adopted in these primeval domes. They were not built with radiating joints, but in overhanging courses; and it will readily be seen on comparing their sections, that for this mode of construction the pointed arch is much more favourable than the circular; while, as soon as ever the radiating system was adopted, the semicircle at once became the simplest and most obvious section.

It is, however, strange to observe how little has{231} come down to us of the history of domes. From the so-called tomb of Agamemnon—some eleven centuries before the Christian era—we have scarcely any certain evidences of their history till we arrive at the Pantheon, erected in the reign of Augustus, or, as Mr. Fergusson thinks, considerably later. Yet, as that dome is still the widest (built of solid materials) which exists, and as both in its construction and its architecture it is in a high degree artificial, and evinces a period of advanced development, it follows that it must be the representative of a long series of antecedent domes progressing from the crude idea onwards to this, the very highest developed form of the simple dome; for we shall presently see that there are other forms scarcely foreshadowed by even this magnificent structure.

[Image unavailable.]

Fig. 400.—Plan, Pantheon, Rome.

(From Fergusson.)

I may here remark that the dome, like the arch and the vault, having great outward pressure, requires either a vast amount of sustaining wall carried up considerably above the springing level, or, in the absence of this, a tie of metal at, or somewhat above, its springing, or perhaps several of such ties at different heights. Unlike, however, the arch and the vault, it is independent of a keystone, each circular course of its structure forming a horizontal{232} arch and keying itself. It may, consequently, be erected without the aid of centering, and may be discontinued at any level, leaving a central opening or eye.

The Pantheon is the great type of Roman domes (Fig. 400). It is a simple rotunda of 142 feet internal diameter, the wall being some 20 feet thick. The wall is about 72 feet high to the springing of the dome, and continues above that level about 28 feet more.

The dome is a semicircle, but has an open eye at its apex of nearly 30 feet in diameter (Fig. 401).

[Image unavailable.]

Fig. 401.

Half elevation of Exterior. Half section of Interior.

Pantheon, Rome. (From Fergusson.)

The dome, as viewed externally, is buried by the wall which rises above its springing to fully a third of its height, and above this rises a sort of attic crowned{233} by six gradenæ, burying nearly an equal height, so that the dome as an external feature is far from conspicuous, appearing as a mere flattened disc.

Internally, however, it forms a covering of the noblest character. Its internal surface is deeply coffered by panels of four orders, in depth dividing the circumference into twenty-eight parts, and its height, up to about two-thirds of the distance from the springing to the crown, into five parts, the upper portion being plain. These vast panels or coffers, the larger range of which exceed twelve feet in diameter, are curiously arranged as to their sectional recessing, so as to appear perfectly symmetrical to the eye of a spectator standing beneath the centre of the dome.

The wall, up to the springing of the dome, is beautifully decorated with rich architecture in marbles of varied colour, and it cannot be doubted that the cupola—the very soul of the design—was embellished in a manner fully proportioned to the beauty of its sustaining wall; indeed, it is thought to have been coated with gilded bronze.[62] When thus perfect, it must have formed an interior of surpassing beauty, lighted as it was solely through the central eye, and the light tempered by the linen veil stretched across its rich bronze cornice, which still remains round the opening, and retains vestiges of gilding. The Pantheon can scarcely be called a daring effort of construction, because its vast solidity seems to defy all doubts as to its duration. It would be, however, absurd to suppose it to have been an early effort; for it is, as I have already said,{234} so artificial in its construction, as clearly to prove it to be the result of long-continued practice.

The walls, which I have described as being 20 feet thick, are so only in theory, for practically they are hollowed into innumerable cells, some of them forming beautiful architectural recesses, and others merely constructional hollows.

The dome itself is constructed in a manner evincing long-continued practice; for it differs toto cælo from the normal mode of construction. It is shown differently by different authors; in fact, it has probably never been sufficiently exposed to obtain complete information as to its curiously complicated construction. As far, however, as I can ascertain, it seems to be in two thicknesses. The inner thickness consists of the framework of the coffers, which is of brick, and the filling-in of the coffers, which is of rubble or concrete. This would form the centering on which the outer shell was built, which is a curious tissue of arches, each rising from the crowns of those below it, and so disposed as to concentrate the pressure upon points in the wall which intervene between the cells. The spaces between these arches are filled in (so far as I can gather) with rubble or concrete. The whole was probably covered externally with plates of bronze or of marble.

The antique Roman dome of the so-called Temple of Minerva Medica—named from the discovery of a statue of that deity among its ruins, but now supposed by some to have been, like the Pantheon itself, the great hall of some public baths—greatly resembles the Pantheon in its general idea, but differs in this essential{235} particular, that its surrounding wall is not circular, but decagonal (Fig. 402).

At a later date, as we shall presently see, this peculiarity would have been seized upon as the suggestion of another type of dome, of which I shall have subsequently to treat. As a matter of fact, the transition from the polygonal prism below to the nearly hemispherical dome above, is got over by “rule of thumb,” rather than on any true system. The vertical sides of the wall do intersect the dome in arched forms; but neither are these forms the true sections of a plane with a sphere, nor have they been used as architectural features, as in later times; but have been afterwards, so far as I can judge, obliterated by the incrustation of the dome with plaster, so as to slur over a union of forms which the architect had fallen into accidentally without appreciating its true results.

[Image unavailable.]

Fig. 402.—Minerva Medica. Plan and Section.

The dome is surrounded by gradenæ much as in the Pantheon. It is not lighted by an eye, but by ten windows, surrounding what we should call the clerestory. Beneath these are ten arches piercing the surrounding wall; indeed, reducing it to small anglepiers. One of these was devoted to the entrance, the other nine to semicircular recesses, of which five seem to have contained basins for water, and four to have{236} opened by means of colonnades into exedræ or surrounding buildings.[63] It may be mentioned that this form was in after times extensively imitated. The span of this dome is about 80 feet. Its date is not known.

[Image unavailable.]

Fig. 403.—Diocletian’s Palace at Spalatro. (From Fergusson.)

A. Temple of Jupiter.

{237}

There are other domes not differing materially from those already described, but which it would extend my lecture unduly to dwell upon. One called the Torre dei Schiavi, in the Via Prænestina, is rather like the Pantheon on a very small scale, though lighted by round clerestory windows instead of a central eye. The Temples of Vesta, both at Rome and at Tivoli, consist of circular walls surrounded externally by a peristyle. The cell of each is supposed to have been covered by a dome, though roofed over. A parallel case, but in a more complex form, exists in what is called the Temple of Jupiter in Diocletian’s Palace at Spalatro (Fig. 403). In this case the exterior of the cell, with its peristyle, is octagonal, but the interior, with the dome, round. The latter has a complicated construction of fan-shaped arches throughout, scarcely any part being constructed of horizontal curves. Next, perhaps, in date, yet at once displaying similarity of idea with a significant change in the carrying out, is the tomb of St. Constantia, the daughter of Constantine (Fig. 404).

[Image unavailable.]

Fig. 404.—Tomb of St. Constantia, Rome. (From Fergusson.)

A Christian church, in its early form, has been familiarly described as the pagan temple turned inside out. To convert the ideal temple into the ideal church, the wall and the colonnade must change places. So completely is this the case that some of the earlier commentators on Vitruvius were completely puzzled between the wall of the temple and the peri{238}style. They assumed that the latter must be within the wall, as in their own churches, and based their remarks on this supposition.

The comparison between these almost contemporary works, the Temple of Jupiter in Diocletian’s Palace at Spalatro, and the tomb of St. Constantia at Rome, exactly illustrates this change. In the one the solid wall forms the circle and carries the dome, and the colonnade is external (See Fig. 403), in the other the colonnade forms the inner circle and carries the dome, while the wall becomes external, an aisle taking the place of the peristyle (See Fig. 404). The colonnade is doubled to support the massive clerestory whence the dome springs, and the whole assumes the type of one form of Christian church, which henceforth became of frequent occurrence. The dome, in this instance, ceases to be an external feature, being covered over by a conical roof. I may add that the peristyle is repeated in the old manner as an additional feature beyond the wall of the aisle. The baptistery at Nocera is similar in distribution to the tomb of St. Constantia, and may be of similar date. It is ruder, however, and loses much beauty by the omission of the clerestory, and the admission of light through the haunches of the dome. Among the innumerable remains of domes of the older type, I will only mention one more, before proceeding to the second branch of my subject, to which it, in fact, properly belongs. That to which I allude is the baptistery at Ravenna, erected, as it is supposed, about the year 450 (Fig. 405).

This is a very charming building, octagonal in form,{239} yet covered over by a hemispherical dome. Though having no surrounding aisle, the design of its sides seems derived from the aisle and clerestory: indeed, it has a clerestory, though the arcade below is rather rudimentary than real. The dome, like that last alluded to, is covered externally by a sloping roof.

The special feature, however, in this dome is that it rests upon an octagonal wall, or rather upon eight arches.

We shall presently see how this was effected in subsequent times, and I will not anticipate that subject, but will content myself with mentioning that this seems to anticipate the Byzantine domes of the succeeding century, as had been the case in two other instances to which I shall have to refer, and as had been nearly the case in the Temple of Minerva Medica.

[Image unavailable.]

Fig. 405.—Baptistery at Ravenna. Plan and Section.

The domes which we have hitherto considered are exclusively and of necessity carried by circular or other continuous walls. They are consequently supported uniformly throughout their entire circumference, and their use is necessarily limited to the coverings of circular or quasi-circular or polygonal buildings. Had no further development been attained, it would ever have been felt to be a sad deficiency in the scope of architectural facilities that the noblest form of covering{240} should be limited to the least usual and, for most purposes, the least convenient form of apartment. We are happily as far as possible from being left in this dilemma. A very simple application of geometrical thought opened a way by which almost any reasonable form of building may be covered by a dome, or by a series or group of domes.

I will endeavour, as simply as I am able, to explain this important development.

It is a property of the sphere that every possible plane section of it is a circle. It follows that every vertical section of a hemispherical or segmental dome assumes the form of a semicircular or segmental arch. If, therefore, a square be inscribed in the base of a dome, and walls be built on that square, and continued up till they meet the dome, they will intersect with it in four semicircles (Fig. 406). If, instead of walls, you build arches on the sides of that square, these arches will coincide with the curve of the dome where they meet it, and, if strong enough, will carry the portion of the dome remaining between them. If, again, instead of arches, you suppose the dome intersected on the lines of the inscribed square by vaults at right angles to those sides, the result will be the same.

[Image unavailable.]

Fig. 406.

In the first case we have a dome, or a portion of one, covering a square apartment; in the second we{241} have the same covering standing on arches open towards the exterior; in the third, we have a dome covering the intersection of two barrel-vaults, just as is more usually done by groining.

The process, however, is not limited to a square; it is equally applicable to the octagon or any other polygon—indeed, to any figure which can be inscribed in a circle.

The following diagrams (Figs. 407, 408, and 409) will tend better to explain this.

Nor is it necessary that the inscribed figure should be complete, for remnants of the circle may equally well be left between the arches or walls.

[Image unavailable.]

Fig. 407.

[Image unavailable.]

Fig. 408.

Thus, a circular space may be intersected by four vaults of less width than the sides of a square (Fig. 410), leaving portions of the circular walls remaining between them.

The dome, again, may as well be segmental in section as semicircular, in which case the arches supporting it will also be segmental (Fig. 411). Again, the figure inscribed need not be equilateral, so that oblong compartments, such as those customary in the nave of a church, may be domically vaulted.

In all the cases which I have enumerated, I have{242} supposed the result to be literally a portion of the original dome. As it happens, however, we have but few ancient examples of so strict an adherence to principle; though in modern works they are more frequent. The purest specimen I know (if I judge rightly from drawings) is the dome of the little church of SS. Nasario and Celso, at Ravenna, the Mausoleum of Galla Placidia, and of her two husbands, the Emperors Honorius and Valentinian II. This is a dome such as I described as standing between four walls, which intersect it in the form of arches.

[Image unavailable.]

Fig. 409.

[Image unavailable.]

Fig. 410.

[Image unavailable.]

Fig. 411.

The next step beyond this was a very important one as to beauty of effect. I refer to the practice of drawing the circle by means of a moulding on the surface of the dome, touching the crowns of the arches. This is not only ornamental, but it has the effect of emphasising the first completed course of stones, and perhaps even of strengthening it, and it has the further effect of defining the spherical triangles between the arches which, when thus gifted with a separate existence, receive the name of “pendentives,” whence this entire class of domes are called “pendentive domes.” The earliest specimen of this is probably the little{243} tomb in the Via Nomentana near Rome (Fig. 412), which, though probably of earlier date than the church of SS. Nasario and Celso, carries out the pendentive principle to its full development, just as we see it treated at a later period in the double gate (Fig. 413) and the golden gate of the Temple Area at Jerusalem, most probably erected under Justinian. All these domes are segmental in section.

[Image unavailable.]

Fig. 412. Tomb in the Via Nomentana, Rome.

[Image unavailable.]

Fig. 413.—Double Gate, Temple Area at Jerusalem.

The pure form, however, of a pendentive dome—that is to say, the form in which the pendentives and{244} the upper portion are really veritable parts of one and the same original dome, in the plan or base of which the rectilinear figure is inscribed—was not long adhered to. It was soon felt that the disc enclosed by the circular moulding looked flat and ineffective; and the idea early suggested itself of converting the circular moulding into a massive cornice, raising upon it a new dome of such proportions as should approve themselves to the eye, and allowing nought but the pendentives to remain of the original dome (Figs. 414, 415).

[Image unavailable.]

Fig. 414.

[Image unavailable.]

Fig. 415.

No bolder idea was ever introduced in constructive architecture; for now the dome, instead of being, as at the Pantheon, supported firmly by a solid wall throughout every portion of its circumference, finds its conditions absolutely reversed; for in no portion of its circumference has it now a solid support, but all floats upon vacuity, suggesting the poetical similitude to Procopius that the Dome of St. Sophia appeared as if suspended by a chain from heaven.

Pendentive domes, in neither of their typical forms, seem to have been frequently or customarily made use of in the more genuine Classic ages, though in modern times they have both been very wisely adopted into{245} the revived Classic styles. They were, in fact, the special characteristic and the great glory of the Byzantine style.

Mr. Freeman, on this subject, remarks:—“The offspring of the arch is the vault, of the vault the cupola; and this majestic ornament is the very life and soul of Byzantine architecture, to which every other feature is subordinate. Its use had hitherto been mainly confined to circular buildings. To make it the central point of a Christian temple was a grand and bold idea, and one which involved a complete revolution in the existing principles of architecture.... And not only did the grand cupola crown the whole pile, but the smaller portions are often covered with smaller domes and semi-domes.... The eye, habituated to the long naves ... of our own great churches, is totally bewildered with so huge a pile, with apses and semi-domes ‘sprouting out,’ to use the expression of Mr. Hope, in every direction, and all circling round the vast central cupola, like tributary rulers encircling an imperial throne.”

It is thought by some that the Byzantines borrowed the pendentive dome from Persia, but this seems insusceptible of proof; indeed, it exists of earlier age in Italy. It is more certain that having once discovered its wonderful utility, it was communicated by them to every region to which their influence extended, and that, having been learned from them by the Mahometans, it became the conspicuous feature of the architecture which extended continuously from the Bay of Bengal to the Atlantic.

The next development I will mention is the raising{246} of the dome proper upon a drum or circular wall, elevated upon the pendentives or corbels, so as to convert it into a species of tower. This seems to have been the first step by which, in later times, the dome came to be made a conspicuous external feature, though rather at the sacrifice of internal beauty (Figs. 416, 417).

[Image unavailable.]

Fig. 416.

[Image unavailable.]

Fig. 417.

It is, in fact, the weakest point in the dome, æsthetically considered, that the same dome cannot be made artistically perfect both within and without. If its height be limited to what looks thoroughly well from within, it is so low in its external aspect as to have little artistic value; while, if raised so high as to be an important external feature, it is only seen by a painful effort from within. This is manifest even in the rotunda, where the dome rises from a circular wall, as in the Pantheon and the Temple of Minerva Medica; but it becomes much more so in a pendentive dome, where the angles are externally encumbered with large masses of masonry. In the earlier Byzantine buildings we accordingly find the dome to have been viewed almost solely as an internal feature, and its exterior very much neglected, and in the case of St. Sophia itself no one would be prepared by its low, heavy, external aspect for the unrivalled glories of its interior. Many of the old architects, in fact, gave up{247} the external form altogether, covering over the dome, as at Parma, etc., by an ordinary sloping roof.

The change I have last chronicled,—the interposition of a circular wall between the pendentives and the dome,—though by no means in all cases leading to the result I am referring to, was unquestionably the origin of the treatment of the dome as an important external feature. It was, in fact, the elevation of the rotunda upon the top of the pendentives. Unhappily, however, it had at once the effect of lifting up the dome above the level favourable to its internal effect, while, if erected on four arches only, the weight became so serious as usually to limit its use to domes of very moderate sizes.

[Image unavailable.]

Fig. 418.

Fig. 419.

A large number of domes thus raised high above their pendentives or corbellings are really of a class whose claims to the name of dome are somewhat ambiguous. I refer to those whose horizontal section is not circular, but polygonal (Figs. 418, 419). Strictly speaking, this is a variety of groined vault; it is generated by the intersection of several barrel-vaults, springing from the horizontal tops of the surrounding walls. Now, my definition of a dome was a vault generated by the revolution of an arch on its vertical axis. If this were an exhaustive definition, it would follow that the vaults under consideration are no domes at all; yet they look so much like them, and as the number of the sides of the polygon increases, actually approach so closely to{248} the genuine dome, that it would be affectation to deny them the name. They may form the covering of any rectilinear figure at all approaching to regularity of form; as the triangle, the square, the canted square, polygons, either regular or elongated, oblongs or parallelograms of any kind; but the usual form is the octagon or other polygon, and for our general purpose it may be best to limit them to figures capable of being inscribed in a circle or an ellipse.

I have introduced this variety of dome as occurring in those which are raised high above their pendentives or corbels. They occur, however, in numerous positions. The greatest I know of is that of the Cathedral at Florence, of which I shall have to speak more in detail in my next lecture.

[Image unavailable.]

Fig. 420. Plan, SS. Sergius and Bacchus. (From Fergusson.)

Fig. 421. Section, SS. Sergius and Bacchus, Constantinople. (From Fergusson.)

But to return to the Pendentive Dome. The Pendentive Dome, though occasionally used at an earlier period, established itself as the leading feature of a style about the time of the Emperor Justinian, and its central seat was Constantinople. The earliest, or about the earliest, church now remaining in that city, seems to be that of SS. Sergius and Bacchus (Figs. 420, 421). Its dome is supported by{249} an octagon. It appears itself to be conchoidal in its horizontal section, and to be supported on sixteen small pendentives. It bears considerable resemblance to the Temple of Minerva Medica, but is really less developed than the baptistery at Ravenna, which dates full half a century earlier.

Contemporary with this was the Church of the Apostles, also erected by Justinian, but now destroyed. It showed, however, according to the description of it by Procopius, an immense advance upon that last named; for, while in one the dome was carried by an octagonal wall, thus showing no practical advance upon the antique form of dome, in the latter a vast cruciform building was covered by five domes, which is just the advantage which the pendentive system affords; for, when the base of a dome is cut into a square by four arches, those arches may aid in the support of other domes beyond, and thus any space may be covered over by a series or a group of domes. This last church, then, was the true type of advanced domical structure.

The great glory, however, of this age, and of domical structure of this class (for it has never again been equalled), is the Church of St. Sophia, or of Sacred Wisdom, erected by the same Emperor as the Metropolitan or Patriarchal Cathedral of the Eastern Church. The plan of this church differs in ideal, and yet more in fact, from the contemporary church last referred to.

The ideal of each is a cross with a central dome. The difference is that in the Church of the Apostles the limbs of the cross were each covered by a complete dome of equal dimensions with the central one (Fig.{250} 422), while those of St. Sophia are covered each by a semi-dome only of equal diameter with the arches carrying the central dome (Fig. 423); so that if we consider the latter to spring from the top of its pendentives, which it in effect does, its springing is on a level with the crown of the surrounding semi-domes.

[Image unavailable.]

Fig. 422. Church of the Apostles.

Fig. 423. St. Sophia.

In reality, however, this idea is not carried out to completion, as only two of the semi-domes have been erected, the other two arches of the central dome being filled in with an arcade in many storeys. This incompleteness, however, is greatly more than compensated—firstly, by the vastness of the scale—the central dome, if measured on the diagonal, being 150 feet in diameter—and, secondly, by other semi-domical projections branching out from the walls which support the great semi-domes, three from each, excepting that on the western side, one is devoted to the entrance, and is not domed. Even these secondary projections are mostly arcaded, so as to allow the eye to pass onward into a yet inner chamber (Fig. 424). So that, simple as is the primary ideal, the actual effect is one of great intricacy and of continuous gradation of parts, from the arcades last alluded to, up to the stupendous dome which hangs with little apparent support, like a vast bubble, over the centre, or, as Procopius, who witnessed its erec{251}tion, described it, “as if suspended by a chain from heaven.”

[Image unavailable.]

Fig. 424.—Plan, St. Sophia, Constantinople. (From Fergusson.)

The dome is lighted by forty small windows, which pierce it immediately above the cornice which crowns its pendentives, and which, by subdividing its lower{252} part into narrow piers, increases the feeling of its being supported by its own buoyancy.

The interior thus generated, covered almost wholly by domes, or portions of them, each rising in succession higher and higher towards this floating hemisphere in the centre, and so arranged that one shall open out the view towards the others, and that nearly the entire system of vaulting may be viewed at a single glance, appears to me to be, in some respects, the noblest which has ever been designed, as it was certainly the most daring which, up to that time at least, if not absolutely, had ever been constructed.

Its beauties are of a contrary kind to those of that noblest interior of antiquity—the Great Hall of Karnac—or to those of later ages—the Gothic cathedrals. Both of these gain beauty of effect and an increase of apparent extent through the endless intricacies of their perspective, and the changes of aspect at every step arising from the multitude of their columns, and from no possible view showing the whole interior at once. This, on the contrary, trusts to the very reverse of all this—the absence of interruptions and the studious distribution of parts, so that no one conceals another, but that the entire building shall be grasped at once by the eye (Fig. 425).

I have not seen St. Sophia’s, though I long to do so, if only to view a form of artistic treatment so different from what I delight in in our own cathedrals. The internal effect does not, however, trust exclusively to this panoptical theory. The contrary theory was too well known from the Christian basilicæ to be lost sight of in this, the greatest of Christian

[Image unavailable.]

Fig. 425.—Longitudinal Section, St. Sophia, Constantinople. (From Fergusson.)

{253}

temples. It was, in point of fact, added to the other by means of arcades, both in the sides of the nave and in its apsidal projections, opening out mysterious perspectives into the inner recesses of the temple. This union of the more palpable with the more mysterious, of the vast unbroken expanse with the intricately broken perspective, must, as it appears to me, and as I judge from representations, produce an impression more astounding than that of almost any other building; but, when we consider the whole as clothed with the richest beauties of surface; its piers encrusted with inlaid marbles of every hue, its arcades of marble gorgeously carved, its domes and vaultings resplendent with gold mosaic interspersed with solemn figures, and its wide-spreading floors, rich with marble tesselation, over which the buoyant dome floats, self-supported, and seems to sail over you as you move—I cannot conceive of anything more astonishing, more solemn, and more magnificent. Well might its Imperial founder exclaim, when, with pardonable exultation, he viewed the result of his costly aspirations—“Glory be to God, who hath thought me worthy to accomplish so great a work; I have vanquished thee, O Solomon!”

I have dwelt longer on my description of this wonderful building because it is facile princeps among structures on the pendentive domical principle, just as the Pantheon had been among those with the simple dome; and as, in after ages, was St. Peter’s among those whose domes soared upwards as lofty towers.

I must here close my lecture, leaving the continua{254}tion of my descriptive sketch of the history of the Cupola, and such remarks as I may have to offer on its uses, its practical application, and its future development, to be followed up in my next.{255}

LECTURE XVII.

The Transition.

St. Irene, Constantinople—Church of San Vitale, the type, three centuries later, of Charlemagne’s Church at Aix-la-Chapelle—Two influences at work leading to the introduction and adoption of the dome into Italy—From thence into the south-west of France—Baptisteries at Florence and Parma—Cathedral at Sienna—St. Mark’s, Venice—Santa Fosca near Venice—Domes having pointed arches for their support—St. Front and La Cité, Perigueux—Angoulême—Fontevrault—Auvergne—Ainay near Lyons—Pendentives in many French churches give place to corbels—The modern type of dome—Cathedral at Florence—St. Peter’s, Rome, and St. Paul’s, London.

IN my last lecture, after bringing down our consideration of domical construction to the period of the perfecting by the Byzantine architects of the system of what are known as “Pendentive Domes,” I was proceeding to describe a few of its most marked productions, but was stopped short when I had given a rapid sketch of the most wonderful of its creations—the Church of St. Sophia at Constantinople.

I will now proceed with my subject. After the Church of the Holy Wisdom, all subsequent domed churches of the Byzantine class seemed to shrink from a hopeless competition, and to content themselves with moderate dimensions.

Among those remaining at Constantinople, that of St. Irene (Fig. 426) perhaps comes next in date. Its central dome, like that of St. Sophia (Fig. 427), is flanked by arcaded aisles, which, however, do not ex{256}tend to the vaulting, but simply carry galleries. These wings, therefore, as well as the eastward extension, are covered by barrel vaults, the latter being terminated by a semi-domical apse—while westward is a second dome, like the central one in plan, excepting that, being less in dimension east and west, its base is an ellipse instead of a circle. The actual domes, however, differ much more widely; for, while the western one is a flat disc continuing the surface of its pendentives, the central dome is raised above them on a high drum pierced like a clerestory with many windows.

[Image unavailable.]

Fig. 426.—St. Irene.

[Image unavailable.]

Fig. 427.—St. Sophia.

{257}

The Church of the Holy Theotokos, or of the Mother of God, is of much later date. The church proper has but a single dome of any importance, though there are several others over the narthex (Fig. 428). This dome covers the intersection of two barrel-vaults, is supported simply on four columns, and rises high above its pendentives on a drum pierced by windows (Fig. 429). The architecture of this church is very elegant, differing in date, it is probable, but little from that at St. Mark’s at Venice. Others do not differ sufficiently from these types to make it worth while here to describe them. It may, however, be mentioned that in the later Greek churches the domes, or some of them, rose often so high as to become rather elegant towers, arcaded externally. This is the case with several of the churches at Athens.

[Image unavailable.]

Fig. 428.—Plan, Church of the Holy Theotokos.

[Image unavailable.]

Fig. 429.—Section, Church of the Holy Theotokos.

{258}

[Image unavailable.]

Fig. 430.—Plan and Section, St. Nicodemus, Athens.

Among the churches of that city we find one type of great elegance, the Church of St. Nicodemus (Fig. 430), in which the dome occupies the width of what we should call the nave and its aisles; each side of the square over which it stands being divided into three unequal arches, over which it rises on a lofty drum, and is carried on eight pendentives. This forms a most elegant interior, susceptible of many varieties; and, from the spacious central space which it affords, seems the most valuable type on which to found a domed design for a modern church.

It would, however, be endless to enumerate the varied forms of domed churches in the East, though, with all their varieties, they may usually be reduced to a few elementary types. If you desire to study them, I would recommend to you Salzenberg’s Old Christian Architecture at Constantinople, Couchaud’s Byzantine Churches in Greece, and Texier and Pullan’s Byzantine Architecture.

It is not, however, in the East alone, that the Byzantine dome is to be found, even in its earliest days{259}—those

[Image unavailable.]

Fig 431.—Plan, St. Vitale, Ravenna. (From Fergusson.)

[Image unavailable.]

Fig. 432.—Section, St. Vitale, Ravenna. (From Fergusson.)

of Justinian himself. It established itself equally at Ravenna; indeed, as we have seen in the baptistery there, as well as in the tomb of Galla Placidia, it, in an early form, preceded those at Constantinople itself. Its great effort, however, there, was the Church of San Vitale, erected by Justinian and Theodora (Fig. 431). This church was evidently imitated more or less from the Temple of Minerva Medica, though whether directly or through that of SS. Sergius and Bacchus at Constantinople can hardly be judged. It is a grand octagon, with a spacious surrounding aisle of double height (Fig. 432). Seven of its sides have the same circular niches projecting from them that we find in the temple (as well as in the Church of SS. Sergius and Bacchus), only they are arcaded and carried{260} out with purely Byzantine details. The aisles are of two storeys, united behind a lofty arcade. This is surmounted by a clerestory, encroaching to a certain degree upon the dome. This, however, is not pendentive. It is covered externally by a roof. It has undergone much modernisation, but retains its general form and a good deal of its ancient decorations, which show it to have been treated much as St. Sophia, with which it was contemporary. The church is the more interesting from having been the type followed three centuries later by Charlemagne in his famous church at Aix-la-Chapelle (Fig. 433).

The manner in which the dome was introduced and adopted in Italy during these ages, was so diverse in its results as to cause it to be very perplexing to chronicle it in any clear consecutive order. There were, in fact, two distinct influences, both occasionally leading to its adoption.

[Image unavailable.]

Plan and Section,

Fig. 433.—Church at Aix-la-Chapelle.

At Rome, and in places under Roman influence, such examples as the Pantheon could not fail to have their effect on the subsequent architecture, and we accordingly find there numerous scions of this primeval family, while, as we have just seen, the purely Byzantine form was simultaneously{261} introduced by way of Ravenna, and later on was planted at Venice.

Through this twofold influence the dome became very frequent throughout Italy. It was carried, as we have seen, by Charles the Great, from Ravenna to Aix-la-Chapelle, and, later on, was carried forward from Lombardy, under the first three Othos, across the Alps, down the valley of the Rhine, and far into the interior of Germany. Only a few years later it was conveyed from Venice into the interior of the south-west of France, whence it spread throughout an extensive district stretching eastward into Auvergne, and even as far as Lyons, and northward to the banks of the Loire, where, to this day, the effigies of our early Plantagenet kings lie beneath a series of pendentive domes almost as perfect as if at Constantinople.

I will not dwell at much length on the domes which were derived from purely Roman traditions, because they, for the most part, suggest no new type or development.

[Image unavailable.]

Fig. 434.—Plan, Baptistery at Florence.

The most magnificent, probably, is that of the Baptistery at Florence, a noble work of early, though unknown, date. It is clearly founded in a great degree upon the Pantheon, though of octagonal plan, and with a{262} dome of the same form (Fig. 434). Its sides are in two storeys—the first with deeply-recessed colonnades on each side—the upper stage a clerestory. One face, however, is occupied by the arch of the sanctuary (Fig. 435).

The dome had formerly an eye, like the Pantheon, but has now a lantern turret. It is encrusted with beautiful mosaic work, with an infinity of figures, the side over the sanctuary having a colossal figure of our Lord in Majesty in a vesica. The architecture is of marble, and the pavement is tesselated work. The whole internal effect is beautiful and impressive in the extreme.

[Image unavailable.]

Fig. 435.—Section, Baptistery at Florence.

A parallel work is the Baptistery at Parma, a work of the twelfth century. It is polygonal in plan, and greatly inferior to that of Florence (Figs. 436, 437). The church of San Tomaso in Limine, near Bejamo, is simply like an ordinary Templars’ church, with a hemispherical dome over its clerestory, and a turret rising from its apex. San Stephano, at Bologna, is in some degree on the same type.

{263}

The greater part of the Italian domes of these periods and of this class, simply cover the crossing or the central tower of a cruciform church, and exhibit no important development.

The most original, perhaps, is the dome of the cathedral at Sienna, which stands upon six piers, forming a hexagon, each side of which is equal in width to the nave and choir (Fig. 438). In the next stage, the angles are corbelled-out, so as to form in the upper storey a dodecagon, which form is followed out in the dome.

[Image unavailable.]

Fig. 437.—Section, Baptistery at Parma.

[Image unavailable.]

Fig. 436.—Plan of Baptistery at Parma.

The merit of this plan is that it unites itself, with little obstructiveness, with the church on all sides of it, and opens out in its centre a space of double the width of the nave. It is also pleasing and elegant in its effect. But it is time that we returned to the {264}Byzantine type, which you will remember that we left at Ravenna to follow out this digression.

We now adjourn from Ravenna to Venice.

The mercantile and perhaps political connections of the old Venetians were mainly Oriental. This probably accounts for their architecture, up to the twelfth century being Byzantine.

[Image unavailable.]

Fig. 438.—Plan, Cathedral at Sienna. (From Fergusson.)

The Church of St. Mark, or the Chapel of the Doge’s Palace, was founded in the ninth century, in honour and for the reception of the body of St. Mark, which had been procured from Alexandria, when the church in which it had been long deposited was destroyed by the Moslems. This church, however, perished in a popular tumult, late in the tenth century, whereupon the Venetians set about its reconstruction with a determination to render it one of the finest and most sumptuous in existence (Fig. 439). All the East, so far as accessible to their ships, was laid under contribution for columns and other architectural embellishments. The design is often spoken of as founded on that of St. Sophia. This was not the case. The Church of the Apostles at Constantinople would rather seem to have furnished{265} its model.[64] It consists of a group of five square spaces, covered each by its pendentive dome. Its peculiarity lies in the breadth of the strips of wagon-vault which support and separate these domes, which is so great that the vast piers which sustain them are pierced in two storeys, and divide each other into four piers, with a vaulted space between them. Each dome is consequently the centre of a cruciform space, the wings of which have wagon-vaults. The only exception is the east end, where an apse is substituted for this space, and out of this apse spring three minor ones, as at St. Sophia. Each dome is about hemispherical above its pendentives, and is pierced with windows, as at St. Sophia.

[Image unavailable.]

Fig. 439.—Plan, St. Mark’s, Venice.

The domes are now, and have been for many ages, covered over by lofty domical towers of timber, each surmounted by a sort of turret on its apex (Fig. 440). The wings which flanked each domed space, bounded as they were by the perforated piers, were so suggestive of side aisles that the builders, familiar, no doubt, with aisled churches, added arcades from pier to pier, both in the nave and transepts. These, however, are{266} merely decorative, supporting no galleries, as is frequent in the East, and only serving as narrow communications, equivalent to triforium passages, between the upper chambers in the great piers.

[Image unavailable.]

Fig. 440.—Cross Section, St. Mark’s, Venice.

The entire church is internally encrusted with richly-coloured marbles and gold mosaic, with figures, just as at St. Sophia’s;[65] and the floor is of marble and porphyry tesselation, varying in scale from the most vast slabs to the finest mosaic work.

The interior was, no doubt, a joint imitation of St. Sophia’s and the Apostles’ Church, rivalling the former in its sumptuous decoration, and imitating the latter in its plan.

To those who have not visited the East, this interior gives a very faithful idea of the splendour of a Byzantine church, and I must say that I have myself seen nothing more impressive (Fig. 441).

I will only further (before proceeding to another branch of my subject) notice one other church—the little church of Santa Fosca (Fig. 442), on the island of Torcello, close to Venice. This church is not domed, or has only a wooden dome, but was clearly planned for a proper domical covering. Its plan is like that of St. Nicodemus, at Athens,[66] already alluded{267} to, and is perhaps one of the most beautiful in existence, and one best adapted of all domical arrangements to modern use. Before I proceed farther I must call your attention to a fresh step in advance.

[Image unavailable.]

Fig. 441.—Longitudinal Section, St. Mark’s, Venice. (From Fergusson.)

The next step in the development of domes is the adoption of pointed arches for their support, often accompanied by an increase in the height of their own section beyond that of a semicircle.

The fact that the pendentive dome is, as it were, suspended in mid-air, so that a perpendicular line dropped from any part of its circumference passes through empty space, renders it imperative that the arches which sustain it in this airy position should be extremely strong, and should have as little outward thrust as possible; and it is equally desirable that the courses of stone forming the pendentives should not{268} form very acute angles with the haunches of these arches. These considerations seem to have led the Mahometan architects soon to substitute pointed arches for round as the supports of their domes; a step in which they were followed at a later period by the greater part of those Western European architects who adopted the pendentive dome. There can be no doubt that this was a very advantageous change. Mr. Fergusson says: “A little reflection ... will show how difficult it is to adapt the curves of a pendentive dome to a circular arch, and how weak the arrangement is when done.... With a pointed arch, however, even when the pendentives follow its lines, there is some thickness in every part, and no curve need slope forward at a greater angle than 45 degrees.”

[Image unavailable.]

Fig. 442.—Plan, Santa Fosca, Torcello.

On the other hand, the change was attended with the loss of geometrical accuracy. Hitherto we have dealt with none but perfectly correct geometrical figures; but the moment the pointed arch is introduced, the pendentives lose this exactitude, and have to be adapted by what is vulgarly called “rule of{269} thumb” to conditions not precisely suited to their forms. A pendentive between pointed arches has, it is true, a geometrical form of its own, but this is so awkward in its sections that it has only to be seen to be rejected; for, instead of its central section being a regular arched curve, suited to a domical surface, it is a curve of double flexure, its lower part concave (as seen from within), and its upper part convex—in short, an ogee. This being inadmissible, the curve has to be accommodated the best way we can, so as to avoid this weak and unpleasing form. We have, in fact, to determine, according to the best of our judgment, what shall be the vertical section of the pendentive, and adopt such horizontal curves for the courses of masonry as will make it reach the extrados of the supporting arches in the easiest manner we are able. This was really done so successfully by the French architects, whose works I shall shortly have to describe, that, for myself, I must say I never found out the difficulty from seeing them, and was unaware of it till I worked out the profiles geometrically.

After all, however, it is only parallel to what we have to do in filling in the spaces between the ribs of Gothic vaulting.

The pointed arch, though beautiful and practically excellent, is no regular geometrical figure, but the union of portions of two; its use, consequently, induces irregularities which would be at once avoided by the substitution of an ellipse. But then our geometrical accuracy would be purchased by the sacrifice of beauty.

All the sections of a sphere being circles, the supporting arches of a true pendentive hemispherical{270} dome are semicircular arches, and in the same manner those of an elliptical spheroidal dome would be semi-ellipses; but there is no regular solid figure, more than one of whose sections are pointed arches, so it is natural that when they are used some part should have to be accommodated to fit them.

It may, however, be as well at this point to mention that pendentives, after all, had become mere rudiments of a form which had lost its original intent. Ever since the dome ceased to have the same curvature with its pendentives, and to be a continuation of their surface, the latter had become a mere form of corbel, for which any other variety might at convenience be substituted. This fact was amply acknowledged in every region where the dome was made use of; so that from the pillars of Hercules to the Bay of Bengal, and among those who occasionally adopted and developed upon Byzantine ideas in Western Europe, we find all forms of corbelling used in addition to the typical pendentive. I shall presently have to show you some of these varieties, and will only now remark that, though they are perfectly legitimate means of support, the pendentive has still the advantage of them in its simplicity and in its superior adaptation to coloured decoration.

About the beginning of the eleventh century, the Byzantine style, in all its integrity (excepting only in its richer decorations), was conveyed into Aquitaine, as it is supposed, by Venetian merchants, who at that time had extensive commercial establishments in that part of France.

{271}

The earliest work carried out under this semi-Byzantine influence was, so far as we know, the church of St. Front, at Perigueux (Fig. 443), a building obviously copied from St. Mark’s, at Venice.[67] The two churches are, in fact, nearly identical in their plans and sections, the one being an almost unadorned copy of the other, showing us what St. Mark’s would be if stripped of its marble encrustations and its mosaics.

[Image unavailable.]

Fig. 443.—Plan, St. Front, Perigueux.

There is, however, one important difference, and one which bears directly upon the foregoing observations:—The domes at St. Front, as well as the great arches which support them, are pointed instead of round, though all the minor arches retain the older form (Figs. 444, 445). This agrees with what I have{272} stated in my earlier lectures, that the pointed arch was introduced, not so much as a matter of taste as of construction. Thus, in the buildings in which it first appears, we usually find it in the arches carrying towers, in the wider vaulting, and in other positions where great weight had to be sustained, before it made its appearance in minor features.

[Image unavailable.]

Fig. 444.—Section, St. Front, Perigueux.

[Image unavailable.]

Fig. 445.—St. Front, Perigueux.

Here, at St. Front, we have it appearing at a date a century and a half earlier than in our own country, and used solely in the parts where the constructive necessities were the most urgent.

The style, once transplanted into this region, widely separated though it was from all its previous seats, seems to have seized powerfully upon the public mind, and to have become, within a{273} century, the nucleus of a new form of architecture, of very great beauty and interest, uniting the domical construction of the East with the Romanesque and the Early Pointed architecture of the West.

The entire district, some 200 miles in extent, adopted the dome as its acknowledged form of vaulting, nearly always supported it by the pointed arch, and also employed it as the section of the cupola itself.

At Souillac we find a nave, apparently nearly as early as St. Front, covered by a series of pointed domes supported by massive transverse pointed arches, and terminated by a semi-domical apse, all carried out with scarcely an attempt at architectural detail.

At the church of St. Stephen, at Perigueux, commonly called La Cité, we have an imperfect early nave of simple character, with one of its domes remaining, but to the east of it stands a later compartment, in which the same construction is carried out with very fine architecture, agreeing in character with our own Transitional style (Fig. 446).

[Image unavailable.]

Fig. 446.—La Cité, Perigueux.

This brings us to the new development, for the style now ceases to be Byzantine. It is very noble Gothic, united with domical construction.

The sketches of this and St. Front serve to show the greatness of the change,—the one a rude transcript of St. Mark’s without its decorations,—the other a{274} noble interior of the Transitional style, but with a pendentive dome; and it will be seen that this addition in no degree clashes with the style into which it is adopted.

At Angoulême we find this development carried out fully (Fig. 447). We have a complete cruciform church, precisely in the style of the work last named, the bays of the nave almost exactly like it, but the crossing rising to a far greater height, with a sort of drum forming a clerestory over the arches, and imperfect pendentives bearing the dome aloft (Fig. 448).

[Image unavailable.]

Fig. 447.—Plan, Angoulême.

Fig. 448.—Angoulême.

I may mention that this dome is not circular in plan, but that the middle of each side is flattened.

A very parallel arrangement exists in a church far{275} more to the north, on the banks of the Loire, and one in which we, as Englishmen, are specially interested, as being the burial-place of our earlier Plantagenets. I refer to the Abbey Church of Fontevrault (Fig. 449).

[Image unavailable.]

Fig. 449.—Plan, Fontevrault.

This church has four domical bays to the nave almost identical with those at Angoulême. The church is now a prison, and in some obscure portion lie the beautiful effigies of King Henry II. of England and of Eleanor of Guienne, his queen; of Richard Cœur de Lion; and of Isabel of Angoulême, the queen of King John, and mother to the rebuilder of Westminster Abbey.

There are in this district of France fully forty domed churches, which I need not particularise, my main object being to show how perfectly compatible is the cupola with Gothic architecture.

The influence, however, of the dome extended, in{276} France, far beyond the district in question; for we find it spreading eastward into Auvergne, and beyond that again to Lyons.

[Image unavailable.]

Fig. 450. Nôtre-Dame du Pont, Clermont.

In Auvergne it usually covers the intersection of cross churches beneath the tower; at Le Puy it is used in a very unusual form to cover, not only this central space, but the bays of the vaulting.

The nave is divided into oblong bays by transverse arches, and the intervals are reduced to elongated octagons by corbels, doing duty for pendentives, and these octagons are domed over on the angular system. The same form of covering exists at Ainay, near Lyons.[68]

I may mention that the pendentives in many of these French churches give place to corbels of varied design, as at Monthron, near Angoulême, Nôtre Dame des Dons at Avignon, and very many others. The last named dome rises into a beautiful tower, and I may mention that small lantern turrets are common upon the Aquitanian domes.

I will not dwell upon the German domes, because they do not illustrate any special development. They seem to have been the offspring of those Italian domes which followed Roman traditions. They mostly cover intersections of cross churches beneath central towers. Those at Aix-la-Chapelle and Nimègue are of the{277} ordinary type of domes covering octagonal buildings. That at Worms covers a square, but is by corbels brought out to an octagon, and then domed in that form.

In our own country I know of no nearer Mediæval approach to the cupola than the semi-dome covering the apse of the chapel in the Tower of London.[69]

The last form of dome which I will allude to is what may be called the modern type. It does not differ in essentials from what may be found among those of earlier periods, but is distinguished from them by several of the elements which it possesses in common with some of these, being developed on a larger scale and becoming more pronounced and more essentially characteristic.

This type of dome is:—1. Raised high in the manner of a tower; 2. The dome becomes an important external feature; 3. It is crowned by a smaller tower rising out of the dome; 4. It usually assumes internally the form of a lantern, with a range of windows beneath the dome; 5. In some instances the external and internal domes are independent structures, the former acting as a roof to the latter, with, perhaps, an intermediate structure to carry the culminating tower on its apex. Now, every one of these features is to be found in earlier domes.

The raising of a dome upon a drum or tower is common both in the East and West. In many instances, and especially in Mahometan buildings, the dome becomes an important external feature. The crowning of the dome by a small tower or lantern on{278} its apex is frequent among the early domes of Northern Italy, and is seen on the five domes of St. Front at Perigueux, and, in a different form, on its prototype at Venice. The internal range of windows beneath the dome is found both in the true Byzantine districts, in Italy, in France, and in Germany; and finally, the independence of the external and the internal domes,—the former becoming the roof to the latter, with even the intermediate structure to support the culminating turret or lantern,—is found in its full integrity in St. Mark’s, at Venice, where its early date is proved by its being represented in the most ancient of the external mosaics.

Why, then, if all its essential characteristics are to be found in ancient examples, do we call this form of dome “modern”? I would reply that, though its elementary ideas were old, their systematic combination, and the vast scale on which they were worked out, is due to the architects of the Renaissance. It is, in my opinion, their greatest achievement, being the union of the Classic with the Byzantine and the Mediæval ideals, and the working them into a feature which no previous style had produced in so complete a manner or on so noble a scale. In saying this, however, I do not intend to praise this as being as an internal feature superior to the true Byzantine dome; on the contrary, I think it a less reasonable and an even less beautiful covering, because it is raised to so vast an elevation as not to be visible at any natural angle of vision, nor to become a part of the general internal view of the building. It must, however, be confessed that, when seen, it is of wonderful and almost{279} magical aspect; while externally it produces a nobler form of tower than is to be found in any previous development. I do not think it in any degree belongs essentially to the Renaissance, though it chanced to be developed under its influence. On the contrary, the first complete type of this form of dome (though happening not to be pendentive) was designed as the completion of a Gothic structure, and its only serious fault is that it was not carried out with more perfectly Gothic detail. I refer of course to that of the Cathedral at Florence (Fig. 451).

[Image unavailable.]

Fig. 451.—Cathedral at Florence.

The Cathedral at Florence had been carried out during the fourteenth century—all but its cupola—from the design of Arnolpho and his successors. A dome equal in space to that now existing was prepared for, but various causes delayed for a century its actual erection, so that, when it was at length undertaken, the prevailing style had changed. It is probable that Arnolpho intended to have sprung his dome at a far{280} lower level, and to have made it like that of the adjoining baptistery; perhaps not exhibiting externally its domical form. Brunelleschi raised the drum to a considerable height, exhibited his dome as a vast external feature, and crowned it with a culminating lantern, thus giving us at once the leading features—and that on a scale never since exceeded—of what I have called the modern type of dome. Had he made its details more accurately to harmonise with those of Arnolpho’s structure, his work would have been perfect. Not only is his dome erected on Gothic walls and arches, but its own section is a pointed arch, so that in all but its decorative features—and in these in some degree—it is essentially a Gothic dome. It is not, however, pendentive, nor is it circular in plan; and, though opening by arches into the arms of the cross, it is after all merely the covering of an octagonal chamber, so that its claims rest more on its size, its height, and its external beauty, than any novelty of development.

Of its successors the name is legion. It would be useless for me to attempt to enumerate even the most successful of them. I will therefore content myself with a brief description of the two most typical—those of St. Peter’s, at Rome, and of our own St. Paul’s.

I am not aware of any dome of great scale erected in the interval between Brunelleschi’s dome at Florence and that of Michael Angelo at Rome. The latter, however, was the crowning result of the efforts of successive architects, especially of Bramante and Sangallo. In one sense it does, and the other it does not, show evidence of this lengthened period of development.

[Image unavailable.]

Fig. 452.—Section looking North, St. Peter’s, Rome. (From Fergusson).

{281}

Its unity of design would bespeak it as the work of one master-mind, while its perfection may mark it as the result of oft-repeated trials.

Though founded in idea on the dome at Florence, that of St. Peter’s differs from it in many most important and essential particulars (Fig. 452). In the first place,—while that at Florence is supported from the very floor upon an octagonal wall merely pierced by comparatively narrow arches, that at St. Peter’s is essentially a pendentive dome, rising from four colossal piers which give it a square base, and united with the four arms of the church by arches, or rather vaults of vast span. These arches, it is true, are not so wide as to reduce the pendentives which rise from between them to triangular forms, but are set so far apart as to leave a portion of the ideal circle between them, and to give the pendentives a horizontal base.

This was necessary to give strength to the piers for the support of so gigantic a structure, but in no degree interferes with the pendentive character of the dome.

Again, at Florence the octagonal wall rises to the very base of the dome, while at Rome the drum, from the pendentives upwards, is circular. At Florence it is pierced only by rather ungainly circular windows, while at Rome it is colonnaded within and without, and beautifully decorated within. At Florence the dome is of that doubtful kind which has straight sides, carrying up the octagonal form to the very top, while at Rome the dome is circular and perfect. Both are in some degree alike in construction, being double, with a space between, not two domes, as at our St. Paul’s,{282} but one dome formed of two shells partially connected; a mode of construction well suited to the support of the crowning lantern.

Both domes are founded in their section on the pointed arch. Their internal span is nearly the same, but their proportions differ greatly; for while that at Florence is internally only two of its diameters in height, that at Rome is two and a half; and while the former is externally one and three quarters of its diameter in height, the latter is two diameters—each irrespective of the lantern. Strangely enough, however, the great external defect of the dome of St. Peter’s is its want of height. It is so encumbered by the surrounding building that its height, from near points of view, is greatly lost. Like the mountain—which seems to be its prototype—though towering nobly in the distant view, it becomes as you approach it entangled among the nearer though smaller heights. This is obviated at Florence—at least from the eastern points of view—by the more favourable distribution of the subordinate buildings.

The boast attributed to Michael Angelo—that he would raise the Pantheon upon the top of the Temple of Peace—has more meaning than at first appears. The Temple of Peace (so called), now known to have been the Basilica of Maxentius, consists of a vast nave with aisles. The nave is divided into three square bays of between 80 and 90 feet in width, and these bays are groined. Had the pendentive dome been then known, each bay might have been covered by such a dome as that which spans the central bay of St. Sophia, and in such a case the dome of the Pantheon might, in

[Image unavailable.]

Fig. 453.—Half Elevation and Half Section looking East, St. Paul’s, London. (From Fergusson.)

{283}

loose language, have been said to be placed upon four piers and four arches of the Temple of Peace. But Michael Angelo aimed at much more than this. It was not the dome only, but the whole structure of the Pantheon, which (in a figure of speech) he thus intended to raise upon a square substructure open on all sides to view from other parts of the interior. Thus he raised upon his pendentives what he compared to the circular wall of the Pantheon, and on that he raised its dome. This was not, however, the whole of his task, for over the eye of the dome (as of the Pantheon) he erected again another structure—a domed rotunda—into which the eye reaches from below, and through whose windows the light penetrates into the dome. And, more than all this, instead of allowing his dome, as in the Pantheon, to be half buried within the walls of the building, he made it rise boldly from their upper surface, and gave it such a proportion as to render it an august and beautiful object from every reasonably distant point from which it is visible.

The task was indeed one of which the greatest genius might fairly boast!

Nearly every subsequent dome of any magnitude seems to have been founded, more or less, upon St. Peter’s; and, so far as I can judge, our own St. Paul’s is the noblest of them all.

The dome of St. Paul’s is clearly founded on that of St. Peter’s, though subject to extensive changes (Fig. 453). The object of these changes seems to have been threefold: 1. to render it more conspicuous externally, especially from near points of view; 2. to avoid disproportionate internal height, which was the{284} more desirable from the smaller size of the openings through which the interior is viewed; and 3. a desire to substitute eight arches and pendentives for the four at St. Peter’s. Thhe two former motives acting together led to the greatest peculiarity which this dome possesses, viz.—it being in fact, two domes, one to be seen internally, and the other externally, with the consequent necessity for providing some independent means for the support of the culminating lantern. In this case, the proportions of the interior and exterior are alike, each having two of its own diameters from the base to the top of the dome. The external height is consequently equal in proportion to that of St. Peter’s, while its internal height is half a diameter less.

We have seen at Florence and St. Peter’s that the domes consist of a double shell, connected at intervals by ribs—a very excellent method of supporting a lantern when necessity demands so difficult a piece of construction as its direct support by the dome itself. The space, however, which Sir Christopher Wren left between his external and internal domes rendered this constructional effort needless. He accordingly provided for the load on the apex by a mere cone of brick intervening between his domes, giving it a threefold structure—a dome proper within forming the covering of the church below; a cone of brick above this, carrying the lantern; and a dome of timber over that, to give comeliness to the exterior, and to serve as its roof.

This expedient (certainly rather complicated), has been very differently dealt with by critics; some have extolled it as an original effort of genius, while others have decried it as artificial and false. Neither party{285} have, as I think, full justice on their side. In the first place, it is not original, the same principle having been, centuries before, acted on at St. Mark’s, Venice. It is true that, in that case, not the external dome alone, but the lantern with its supports, are all of timber. This does not, however, alter the principle in the least; for we have the threefold structure—the dome proper, the supports of the lantern, and the external dome—just as at St. Paul’s, as a glance at the sections of the two will at once prove.[70] In more recent structures, iron supports for the lantern have been substituted for the brick cone, bringing it still more nearly to the type given by St. Mark’s. In the second place, I hardly think, with this Mediæval precedent before us, we need be so squeamish about the expedient being artificial. We constantly find double coverings to our ancient churches—the vault to be seen within and the roof without—and if we desire to place a flèche riding upon the roof, we support it by constructions concealed between the two. This is precisely what Wren has done. The only difference against him is, that his roof is domical, and suggests to the thoughtless observer that it is the same which he sees within—a mere peccadillo, after all—and amply atoned by the fact that you gain by it the power of giving due height both within and without, and avoid the difficulty and danger of supporting a massive structure of stone, as large as some church steeples, upon the apex of a dome. Anyhow, public opinion has decided in favour of the expedient, for a majority of subsequent domes are constructed on the same principle; while I almost defy an architect{286} now designing a dome and experiencing these two difficulties—(1.) the artistic difficulty of making the same dome look well from within and without; and (2.) the constructive difficulty of balancing a steeple on the top of his dome—to resist the temptation presented by this simple expedient; and the more so when conscious of having for it a Mediæval precedent.

[Image unavailable.]

Fig. 454.—Ground Plan, St. Paul’s, London.

[Image unavailable.]

Fig. 455.—Ground Plan, St. Peter’s, Rome. The shaded portions indicate the Crypt.

{287}

The dome of St. Paul’s is, externally, perhaps more successful than any other. Internally, it is good from the supporting arches upwards, excepting that it is damaged by the unreasonable system on which its painted decorations have been designed.

The arches below are, however, an exception to its claims on our praise.

The scheme on which the plan of the dome and its accompaniments is set out in St. Paul’s is totally different from that in St. Peter’s (Figs. 454, 455). In the latter the space beneath the dome is penetrated by the nave and transept alone, irrespective of their aisles, which stop dead against the piers of the dome. In the former the same space is penetrated both by the nave and transept, and their aisles. To take another view. In St. Peter’s, the square occupied by the dome and its piers is surrounded on all sides by an aisle, low in the angles and lofty in the centres of the sides; or, in other words, the aisles failing to penetrate the dome, branch round its angles, while those of Sir Christopher Wren pierce directly through it.

St. Paul’s has, externally, the advantage of the great corner piers rising from the ground, unencumbered by surrounding buildings; but internally, grandeur is sadly lost through the reduced span of the large supporting arches, by the want of bold simplicity in the piers, the meanness and irregularity of the smaller arches, and the confusion caused by the mode in which the portion above them is arranged.

Externally, however, the outline of this dome is perhaps unequalled; and, even internally, if you look at general effect, and close your eyes to defects in{288} detail, the impression produced is grand in the extreme.

I have used up all the time at my disposal without having even reached one of the greatest classes of domical structures—those of the different Mahometan nations, from Morocco and Southern Spain, by Egypt and Turkey, to Persia and India.

I the less regret this because I leave it wholly untouched for some one better acquainted with it than myself to take up: I will only offer two remarks upon it. The first is, that it is wholly an offshoot of the Byzantine style which was first adopted, and then developed by the infidel conquerors. The second is, that it is throughout, or nearly so, carried out with the pointed arch, and most usually with corbels instead of pendentives, giving in these two directions an extension to the developments which took place in Western Europe. I may also mention that, in splendour of decoration, it is impossible to conceive anything to go beyond it; though it is a style which seems alien to our Western and Christian prepossessions.

We have seen that the cupola—the noblest of all architectural features—belonged by right to Roman architecture; was continued in the same style when it became Christian; was wonderfully developed in the Eastern and Christian Roman Empire; was continued in the Middle Ages in Italy, and transplanted into Germany and France; that it was taken up during the early days of the Renaissance from the unfinished Gothic cathedral at Florence and, through that semi-Mediæval, semi-Renaissance graft, was thoroughly adopted into the revived Classic styles. What I now want

[Image unavailable.]

PREMIATED DESIGN: Perspective Section Through Dome. New Parliament House Berlin

J. LEITCH & Cos PHOTO GRAVURE

Sir Geo. Gilbert Scott R.A. Architect

{289}

to press upon you is, that it should be equally welcomed into our revived Gothic architecture. That revival needs but such a welcoming of all that is good and noble to render it complete, and no feature possesses these qualities in a higher degree than the cupola. Let us, therefore, make it our own.

I have myself made some few attempts at this, which I venture to submit to you.[71]

The dome, however, without its appropriate decorations, is but the body without the soul. It is the sister art of painting which breathes life into the otherwise breathless form. This painting must, however, be adapted to its position with skill, knowledge, and study. I have not time left to dilate on this subject, but commend it to the students of that art, only begging them to remember that, while exercising their art upon an object like the dome, which has an essential form on which its very stability, real or apparent, depends, they must keep it in such subordination as not to disturb that essential, but rather to bring out and emphasise it; otherwise, what I am urging will not prove a loving union, but a hostile collision, of the two sister arts.{290}

LECTURE XVIII.

The Transition.

Sculpture and Painting arise directly from artistic aspirations, Architecture from practical necessities beautified—Architecture, as distinguished from mere building, is the decoration of construction—The History of Architecture has never been viewed as an object of study previous to our own day—Phases of the study—Dangers to be avoided—History of Architecture is the history of civilisation—Western distinct from Eastern civilisation, and to be studied separately—Source of our branch—Its development and progressive stages—The Gothic Renaissance—Advice to the architectural student.

I AM now about to close the very fitful and non-continuous series of lectures which I have from time to time, during the last fourteen years, had the honour of delivering from this chair.

I have to express my regret that it has never been in my power, owing to the press of other engagements, to give the full complement of six lectures in each season; and that in some years I have been prevented by circumstances—wholly beyond my own control—from lecturing at all. I may further mention that my earlier lectures were only pro-professorial, and were coupled with a parallel course on Classic Architecture by Mr. Smirke, who subsequently, on being appointed professor, took for five years the whole duty upon himself; so that, as I said before, my own lectures have been but fitful and non-continuous.{291}

I have further to confess that these lectures have been for the most part limited to the particular phase of our art in which I am myself most deeply interested; for I do not see much utility in artificially forcing myself to appear as a teacher in a phase which is not that which I view as my special mission.

I trust, however, that on my own special subject I may have been useful; anyhow, I believe I have done more than has been done before, and I am sure that I have at least taken an infinity of pains.

My lectures have been non-continuous, not only as to their periods of delivery, but as to their subjects. I think, however, they will be found to contain a fairly clear account of the rise and development of our Mediæval architecture, with some useful digressions extending somewhat beyond this range.

I have not continued this history of Mediæval architecture beyond the period of its perfect development; because, beautiful though are its late phases, their history does not maintain the same interest with that of the noble enthusiasm which urged on its earlier growth.

On now closing my lectures I think I may become, for once, rather more discursive, and may venture a little to the right and left, and in other directions, in search of matters bearing generally upon architectural art as viewed in reference to the past, the present, and the future, and (which concerns yourselves more nearly) in reference to your own individual studies.

Our art, as has so often been remarked, differs from the sister arts of painting and sculpture in this, that whereas they arise directly from the artistic{292} aspirations of our nature, apart from practical necessities and utility, ours arises first from these necessities, and then from the desire to clothe the results with beauty. It may be said that the yearning after abstract beauty unlinked with utility is the higher and more spiritual sentiment; but, on the other hand, if we look around us throughout the creations of nature, we are prompted to reply that, in linking beauty with utility, we are more directly imitating Him who made man in His own image, and in whose works this union of the useful and the beautiful is one of the most universal characteristics.

Architecture, then, as distinguished from mere building, is the decoration of construction. If I were lecturing on architecture, in the broadest form of the expression, I must treat throughout of construction, and of its decoration, pari passu, as the latter has but little meaning if severed from the former, which is its groundwork. And, even in lectures from this chair, where architecture is viewed specially in its character as a Fine Art, it is still impossible—as indeed it would be undesirable—wholly to sever that higher characteristic from the more practical phase to which it owes its origin.

Now, the history of this concurrence of art with construction is the History of Architecture; and, to an architectural historian who is capable of taking at once an artistic, a philosophical, a political, and a religious view of the facts which he chronicles, nothing can be more interesting than to follow out from the earliest ages to which we can carry back our researches, firstly, the practical changes in building, arising{293} from the exigencies of climate, the stage of civilisation, the traditions of race, and the varied influences of political and religious circumstances; and to connect with these the changes, the progress, and perhaps the decline and degradation of the art made use of in the decoration of their buildings; and to trace out the causes which led to these changes.

Let us not, however, suppose that a knowledge, however intimate or accurate, of architectural history, is of necessity a part of the study of architecture itself. On the contrary, at no period when a genuine, unborrowed style of architecture has prevailed, has any knowledge whatever existed of the history of art; nor at any period previous to our own has the history of architecture—beyond a very limited knowledge of that of Greece and Rome—been viewed as an object of study.

From the dawn of civilisation to what is known as “the revival of letters,” the leading nations of the world possessed each a genuine architecture of their own; all growing, by a natural growth, from an original stem—unborrowed and unimitated—and practised by artists highly skilled in their art, but ignorant of its history.

The “revival of letters” was followed by a revival also of the architecture of those races whose literature was resuscitated; and with this revival came a certain, though scanty, knowledge of its history; but the investigation of the entire history of architectural art, and the constituting it into a branch of our literature, has been reserved for a period which possesses no architectural style of its own, excepting as the result of revival or imitation.{294}

Is, then, this study to be viewed as a thing to be avoided? Certainly not. Our predecessors worked honestly, and with perfect success, in accordance with the conditions of their times; those of our times are wholly different, though, I fear, the reverse of favourable; but, nevertheless, they are the conditions to which we have succeeded in the due course of events which we could but little control. It may be that this historical and archæological tendency of our time is the saving clause in our position, which, in its absence, might have been an utter blank. Let us not, then, throw away that which, for aught we know, may be our solitary birthright, in the vain hope of recovering conditions long since passed out of our reach. It is ours rather to use well and wisely what we possess, regulating, controlling, and guiding it; striving earnestly after better things by whatever means; but without rejecting those suggested by the circumstances of our period.

Nevertheless, let it ever be remembered that art history is not art, nor architectural history architecture. They may, like the syren’s song, lead us wide of our mark, though they may, perhaps, if rightly used, be made to guide or aid us in a right path.

The study, however, of architectural history has many and wholly differing phases. It may, for example, be followed purely from an historical and archæological point of view, or it may be pursued mainly with an artistic sentiment. Both are interesting, but, I need hardly say, the latter is the spirit in which our studies as artists should be followed up.

It may, again, even if artistic in its purpose, be{295} followed up generally, and through the whole course of the history of the art; or it may, while not neglecting the main line of history, be concentrated and intensified upon those styles, or that style, which we desire to be the guide and foundation of our own artistic productions. I need not say that here, again, the latter is the course most profitable to ourselves.

The great danger of the study is the dissipation and unfocussing of our own artistic thoughts; just as the great strength of the days when this study was unknown, was the absolute concentration of all architectural thought upon the matter actually in hand; an advantage which in our day is absolutely, and, I fear, irrecoverably lost.

Be this, however, as it may, it has become a part of the necessary education of a gentleman to know something of the past history of our great art; and, a fortiori, it is necessary to an architect, if only as a matter of literary culture. We must, however, take care that our thoughts and tastes are not led away by it into a state of objectless dissipation, having no concentration on any one guiding form of art, but viewing all forms of beauty with equal pleasure, and free from any strong and healthy preference.

The most natural course for the student of architectural history is to limit himself mainly and firstly (though not eventually, perhaps) to those styles from which our own architecture, whether native or borrowed, whether living or revived, is lineally descended—“to look to the rock whence we were hewn.” And truly it is a right glorious genealogy which we can boast.{296}

The history of architecture is the history of civilisation, for architecture unites and embraces the sister arts, and art is the visible exponent of civilisation.

Our more Western civilisation is distinct from that of the far East; and, without disparagement to the latter, its study may be viewed as separate from it.

Our own branch of civilisation and art may be said to have arisen on the banks of the Euphrates, of the Tigris, and of the Nile, and to have moved westward with a quiet course along the genial shores of the Mediterranean; while the Eastern branch took a contrary direction by India and China, reaching Japan, and perhaps the opposite continent of America. Let us, however, confine our attention to our own branch.

Though the banks of the Euphrates and the Tigris were the nursery of our traditions, and though recent discovery has made us in some degree familiar with their architectural monuments, we, nevertheless, fail to trace them back to a period which will compare with the antiquity of the remains on the banks of the Nile. In studying the one we long for relics carrying us back to a date even approaching that of the known history of the inhabitants, while in the other we are perplexed to find chronological room for works stretching back into such unknown regions of the past.

Egypt must, we may fear, ever remain a land of mystery. Its chronology seems inscrutable; its painting, its sculpture, and its architecture alike wonderful and mysterious. One flash of historical light shines upon its early days—like the lightning upon the midnight landscape—in the Scriptural history of those three centuries during which the people of Israel{297} sojourned there, and helped in their slavery to prepare materials for its structures. After this it seems again involved in indistinctness till the period of its decline. Its monuments seem continuous through all these ages, and even onwards to the days of the Roman Empire; but how early they commenced no antiquary has yet been able to show; while the earliest and latest monuments—those preceding Greek architecture by, perhaps, fifteen hundred years, and those erected when that art was in decay—as clearly belong to one and the same style as do the earlier and later of our own Mediæval buildings.

Their character may be said to be threefold. The imitation almost of mountains in the pyramids, the rock-cut tombs, and the architecture proper, which is columnar in its most stupendous form, and whose greatest remaining monument is the mighty Hall of Karnac, with its hundred and thirty columns, perhaps the most impressive of all the works of antiquity. All these were accompanied by painting and sculpture of a highly mythic but most marked and characteristic kind.

An art like this, existing in full perfection in its ancient monuments, and also as a still living art, side by side with the rise of Grecian architecture, could not fail to exercise some influence upon it; yet the evidences of that influence are far from being clear. The genius of the two peoples was absolutely distinct, and Egypt was already a conquered nation while Greece was making its early strides towards fame. They were, too, of wholly different races, so that, though the young nation—during those brilliant strivings which{298} led to its surpassing all races of men in its culture—was familiar with Egypt, and must have looked with wonder at its almost appalling structures, it is, after all, but little that we can trace of actual imitation, and that, strangely enough, not of the productions of its living art, but of a phase which had been extinct fully a thousand years. The inner and earliest sanctuaries at Karnac, and an obscure rock-cut tomb at Beni Hassan, contain pillars to which we trace some resemblance in the Grecian Doric, but whether that resemblance was intentional or accidental no one can say. Curiously, the tomb at Beni Hassan evinces proof of the imitation of timber construction, which gives it an additional alliance with the Doric; but can we conceive of a new art, founded on wood construction, being imitated from an art of a thousand years back, which chanced to evince the same conditions? As reasonable would it be for timber constructors in our own colonies to make pilgrimages to Anglo-Saxon churches which happen to suggest a timber prototype, in search of types for their new structures.

More reasonable, however, it may be to suppose that the latest type of Greek art, the Corinthian capital, may have been suggested by the foliated and bellshaped capitals of Egyptian columns.

Passing, for a moment, from the Nile to the Tigris, we find buried under the Assyrian mounds an architecture as different as possible from the Greek, yet containing a few almost accidental foreshadowings of some of its details. This architecture seems, however, to have influenced firstly that of Babylon (now almost wholly lost), and subsequently that of the Persian{299} monarchy, which brings us again in contact with the Greeks.

Here we find, at last, a direct similarity in taste; for, different as are their capitals, no one can look at drawings of the columns of the Chehil Minar—the great hall or temple built by Xerxes at Persepolis—without being convinced that there was a near relationship in their style to that of Greece. This resemblance, however, is not to the earliest phase of Greek—the Doric—which was its contemporary, but to its second phase—the Ionic—which, putting aside the chronological difficulty, need not be wondered at, as the Ionian cities had long lain within the Persian monarchy. Yet it goes to prove that the influence of Persian architecture was unconnected with the origin of that of Greece, and only affected its more advanced stage.

I view Greek architecture, then, in the main, as an art of spontaneous growth. Its first form, the Doric, as strictly and absolutely Greek; the second, the Ionic, as Greek in the main, but with a few suggestions from the land of the Great King; and the third, the Corinthian, as equally Greek, but with one single suggestion, perhaps from Egypt; the whole as the spontaneous creation of that most wonderful, in intellectual power, of all the races of man—that race, inspired as it would almost seem, of God, to be our instructors in literature and art, and our initiators in science, just as was another people to be the teachers of His holy religion.

The actual origin of Greek architecture is buried in impenetrable obscurity. If the building called the{300} Treasury of Atreus, or the Tomb of Agamemnon, was really of that period, it would distinctly prove that what we now know as Grecian architecture was unknown to the heroes in the “Iliad,” inasmuch as over its entrance remains a little piece of highly-decorative columnar work, bearing no resemblance to the subsequent architecture of Greece, and going far to prove that these early inhabitants of Greece had a style of building which did not evince a timber but a stone original. Of these early structures, including the Cyclopean walls of the Pelasgian cities, Mr. Freeman eloquently remarks:—“These awful remains of the world’s youth stand before us as the relics of unrecorded days, of the dim times of poetic legend, enveloped as they were in religious mystery for ages before a line of what we deem ancient history was penned. The historians and philosophers of the days of Pericles knew no more of the authors of these gigantic fragments than ourselves; all that survived, even to them, were the shadows of fallen greatness, the feeble echoes of a voice long since hushed in death. Our ancients had to explore the remains of these far earlier days by the same faint glimmerings of legend and tradition as ourselves ... and to us, whose early youth is spent among the immortal lays, whose living substance is called up by even the pictured resemblance of these massive piles—monuments, as we would fain believe, of the days of Achilles and the Atridæ, and the old time before them—to us every rugged stone seems vocal with some old heroic legend. Each gateway may have seen the marshalling of heroes arrayed to man the thousand ships of Argos, and to wait upon{301} their chariot-wheels, to whom Zeus had consigned her twofold throne and sceptre.”

The difficulty is to explain how, in a country where a distinctly stone architecture (stone not only in fact but in idea) had for ages existed, it could be suddenly changed for an architecture evidently based upon a timber ideal. Were it only the Cyclopian walls of the old cities which remained, the perplexity would be less. Such walls exist also in Etruria; yet we gather from Vitruvius that the Etruscan temples had a construction founded upon timber. It is that little scrap of actual columnar architecture at Mycenæ which defies explanation, but which is thought to point to an Assyrian original.

The Dorians, however, were a different (how different is not known) and an invading race. It may be that their former seat had been in a specially timber country, and their former architecture actually of wood; and that, on migrating into a stone country, they translated their architecture into its prevailing material.

The intrinsic marvel, however, is their power to invest an art, so homely in its origin and so simple in its character, with such sublimity of aspect and such refined beauty of detail. But why should we wonder at this? Look for a moment at their figure-sculpture even in its first archaic simplicity, and we need not wonder at what such men could do. But, oh! look at it again, after the desolating Persian had been driven from their shores, when the shattered institutions of Greece had been re-established, and her ruined temples restored; when national glory, self-gratulation, and thankfulness had given a new and generous impulse to every feeling{302} of the great mind and soul of Greece; and see then what art they produced (you know it right well in the Elgin-room at our own museum), and you need not wonder at any other miracles of art that they performed!

I am not going to drag you through all the changes in ancient architecture: you will see for yourselves how the majesty of the Doric Temple was succeeded by the greater refinement and elegance of the Ionic, and the richness of the Corinthian, though their developments were not exclusive of one another like those of Mediæval art, but cumulative and practised side by side.

I confess that, so far as capitals are concerned, I agree with Mr. Ruskin in thinking the first and the last each more reasonable than the second. The moulded capital and the foliated capital are things of all time. The voluted capital was an accidental introduction from the East, and has no permanent meaning, wonderful though it be.

The special features, however, for artistic study in Grecian architecture, of whatever order, are the exquisiteness of its proportions, the purity of its lines, the refinement of its mouldings and enrichments, and the superhuman instinct it evinces for delicacy and almost spirituality in the refinement and perfection of every line; but above all these is the manner in which it welcomes, indeed presses, into its service—or rather devotes itself to the service of—the all-glorious sculpture of which it was at once the dutiful handmaid and the loving mistress. Nor need we doubt that it treated the painter’s art one whit less lovingly.

As a style, the sentiment of Greek architecture{303} may be said to be a quiet, calm solidity and repose, free from all question as to its stability, because it admits of no pressure but what is vertical. This quality, however, it shares with the Egyptian; but the Greek unites with it the most studied symmetry of proportion, the greatest purity of line, the most refined detail, and the noblest allied art.

When the Greek orders were adopted by the Romans—a most natural alliance, seeing that the Greeks built within a comparatively short distance from Rome on the south, and that the Etruscans in the north borrowed Greek decorative art—we find that they united with it an element in itself discordant with the simple static principle which gave such calm dignity to the Greek. It is, as I have heard, a saying among the Moslem builders in India that the arch “never sleeps;” it is always night and day pushing outward. Thus, purely trabeated architecture sleeps in safety, while arcuated architecture never ceases to exert force. The one is a static, the other a dynamic style—only becoming static when its abutments are of undoubted sufficiency. Thus, repose belongs of a right to one, but has to be purposely secured in the other.

We know next to nothing of the early architecture of the Romans. Recent excavations show the walls of the time of the kings to have been pretty much like those of Etruscan cities; and it is probable that, like the Etruscans, they early introduced the arch as a leading principle of construction. When they superadded to their own architecture (whatever it was) that of Greece, the latter became in many cases an artistic{304} veil, concealing more or less the actual construction; and even where the artistic effect was purely trabeated, we find arches used behind it to aid the apparent construction. The two systems were thus used together and side by side, gradually uniting themselves into one. In purely engineering works the arch became boldly predominant. In purely architectural works it was often wholly concealed; while in works of an intermediate kind the two were used together, naturally and with perfect freedom. Nor were these or the purely arcuated structures open to the objection of presenting any apparent instability, for their massiveness was such as to defy all suspicion of want of strength.

It is true that the Romans, from a want of that delicacy of taste and eye which characterised the Greeks, failed to treat their details with the same refinement, though this was not always the case; but, in spite of this defect, the Roman style greatly amplified and extended the capabilities of classic architecture, rendering it capable of meeting every possible emergency and demand, whether of material or of construction, and giving it a cosmopolitan character suited to a people which had conquered the world, and which, if itself a race of iron, united under its world-wide sway the brass, the silver, and the gold of the older rulers of mankind.

Of Egyptian architecture we have little but of vast tombs and colossal temples; of Assyrian and Persian structures much the same may be said. Of Greek we have little but the temples, and a few public works of a monumental character; while of Roman architecture we have works of every possible description, meeting{305} every demand, necessity, or wish. Such works must have existed during older periods, but were probably on an inferior scale and of ephemeral construction; but those of Rome were marked and permanent in their structure, and have thus been handed down to our own day, so that we may say that the whole range of their architecture is perfectly known to us; and, so far as we are concerned, it is the first of ancient styles which can be called complete.

As time went on, we find the arch, the vault, and the dome asserting, ever more and more, their supremacy. The influence of the Christian Church followed this on in the most marked manner; and, when the seat of empire was removed to a new, an Eastern and Christian metropolis, where no great monuments of older or Pagan art existed, this change would appear to have gone on with yet increased rapidity.

We have of late years become better acquainted with the course of this change through the discovery of the ancient cities of Central Syria, and their illustration by the Count de Vogüé, which show us what the late Roman and early Byzantine buildings of every class were on a scale suited to provincial towns, though influenced by the local tendency to megalithic construction which pervades the old architectures of Syria. I have not time to dwell upon these most instructive remains, which, beginning in Pagan and going on into Christian times, culminate in the vast and splendid dome erected over the pillar of St. Simeon Stylites. I, however, commend De Vogüé’s work to your attention.

In my lectures on the Dome I have said almost as much on Byzantine architecture as is perhaps needful{306} for the purpose of this rapid sketch. I may add, however, that it was a purely or almost purely arcuated style, though yet more pre-eminently a domed style, and most of all a purely Christian style; that it rejoiced in surface decoration, in painting and mosaic, and in marble incrustation and inlay, though, from religious scruples, it discouraged sculpture. It delighted in every form of Oriental splendour, and the representation which its mosaics afford us of its secular buildings, when in full perfection, shows us that, though splendid solemnity characterised its churches, gaiety was a marked element in its more ordinary architecture. It is true that the gradual decay of the Empire caused a decline in the artistic quality of its buildings; yet we must admit its architecture to be one of the boldest and most original of developments; and we owe to Byzantium a heavy debt of gratitude for having kept alight the lamp of art during the long and dreary ages when Western Europe was trampled down by barbarian hordes, its arts destroyed, and its civilisation well-nigh forgotten.

It was from this still glimmering lamp that Charlemagne nobly attempted, though almost in vain, to rekindle that of the Western Empire. It was from the same that the three first Othos made a second and more successful effort; it was from thence that the revived art was further aided at the time of the Crusades; and to this source we, in a large degree, owe our modern civilisation. All thanks and honour, then, be to the unfortunate Eastern Empire, which, having performed its work, has now so long been trodden under foot of the Gentiles!{307}

As architectural art recovered itself, after the ages of darkness, the later works of old Christian Rome, the still living architecture of Byzantium, and the half-living architecture of the day in Rome itself, formed together the groundwork of the revival. This architecture was all mainly arcuated; and the increased difficulty of obtaining and transporting large blocks of stone tended to render this the necessary element in the reviving style. We know the style which thus rose in Italy. I do not believe myself that much of this is so old as the time of the Lombard kings, but that it was in a much greater degree the work of the Othos—emperors at once of Italy and of Germany—and thus extending the same style from the south of the Alps, across into Germany, and onwards almost to the Baltic. I cannot, in this short lecture, follow up the details of this early Romanesque style; but I beg you to do so for yourselves, and at the same time to make yourselves acquainted with the contemporary architecture of France, in which, subject to many variations, the same feeling will be found to prevail.

I have, in my last lecture, mentioned the introduction of purely Byzantine architecture at Venice, as especially illustrated in St. Mark’s and the churches at Torcello, etc., and, I may add, in secular buildings. I mentioned also its transference, apparently by the Venetians, into the south-west of France, where and whence it exercised a very decided influence on the subsequent architecture, and I have, in one of my early lectures, shown the extension of that influence at a later date—in the form of architectural sculpture—into the north of France, and thence into our own{308} country. I will here add that parallel, though not exactly similar, evidences of Byzantine influence pervade the Romanesque of Germany, whose rulers were in constant communication with the Eastern Empire—an influence greatly promoted in decorative art by the importation of woven fabrics, metal-work, jewellery, and illuminations from the East into the West.

From such united influences, added to and aiding the earnest strivings after refined and improved art, arose the Romanesque architecture of the eleventh and twelfth centuries, becoming at length a perfectly original, consistent, and artistic development of arcuated architecture.

I have, in my previous lectures, gone much into detail in recording and explaining the history of the development of this Romanesque into the subsequent pointed-arch style. It is, perhaps, mockery to refer you back to lectures which probably no one now present heard; but time will not allow me to do more, and should they be published, you may perhaps think it worth your while to refer to them.

As the Byzantine was the Christian architecture of the East, so was the Pointed style the culminating Christian architecture of our own group of nations in the West; and, while the former had the disadvantage of being developed during ages of gradually declining civilisation, the young and vigorous shoot which grew from it in the West had the immense advantage of developing itself during the vigorous upstriving of a new and better civilisation.

To ourselves it is incomparably more interesting, inasmuch as it became the architecture, par excellence,{309} of our own and immediately neighbouring countries. It grew up in this country with our institutions; it is of the same age with our constitution and our system of laws, and in many respects with our ecclesiastical polity. It adapted itself to our climate, our materials, and our scenery. In this style are the monuments of our kings and of our forefathers; and, above all, in its original and identical temples do we still celebrate the offices of our holy religion. Well, then, may we say—in common with each nation of Western Europe—that this is our own, our natural and our national style!

And well may we glory in this assertion, for look at the monuments of that style! I have not been stinting or cold-hearted in my eulogy of the architecture of ancient Greece and Rome, so I may call you to witness that I am not narrow or one-sided if I give way to a generous enthusiasm now I come to speak of that which we may proudly call our own.

The architecture which produced our glorious cathedrals and abbeys; our churches of every scale, from these down to that of the humblest hamlet; which produced the colleges of our universities, with their noble chapels and halls; which produced the stately municipal buildings of the great manufacturing cities of Mediæval Europe; with every form of structure needed, for whatever purpose; and united true and appropriate art with every form of building, from the humblest to the most stately. An architecture, too, which decorated its edifices with such a form of art as our ancient painted glass; and which carried on its influences over metal-work, jewellery, painted decorations, and every collateral art in the same spirit of{310} exquisite and original taste, may well claim to stand side by side with the most glorious productions of antiquity; but to ourselves, as the inhabitants of the countries where it prevailed, and the descendants of the artists who produced it, it has pre-eminent claims to our most loving and enthusiastic admiration; while the more closely, constantly, and carefully we study its remains, the more entirely shall we be convinced that our love and admiration cannot exceed what is due to its intrinsic excellencies.

This architecture, though a lineal descendant of those of the old world, was, when in the fulness of its development, so absolutely diverse from them that they can in no way be compared by likeness, but only by contrariety. It was an absolutely new phase of art, bearing no kind of resemblance to its early progenitors. Where their characteristics were horizontality of line, directly downward pressure, a clinging closely to mother-earth, and an imperturbable repose,—we may almost say an eternal sleep,—those of this new creation were an upward soaring, an apparent inversion of gravitation into a striving towards heaven, and a vivacious wakefulness in every feature. Constructively, instead of the mere support of dead weight, its principle is the systematic balancing of an infinity of diagonal pressures; yet this, though a constructive fact, is not an artistic characteristic, for in its more spiritual effects, weight and thrust seem to be annihilated, and converted into upward striving, so that the archivolt, the flying buttress, and the ribs of the vaulted roofs, seem rather the medium of upward than of downward pressure. In elegance and expressiveness{311} of detail, no previous style had surpassed it; in endless variety of imagination or in spirituality of sentiment, none had ever approached it. It was the greatest marvel that architectural art had produced, and it united all these magic qualities with a gravity and solemnity in the temple, a stern solidity in the castle, an asceticism in the monastery, a quiet, retiring sentiment in the seat of learning, a cheerfulness in its civic and domestic structures, and a deeply touching expression in its sepulchral monuments, which no style could possibly go beyond, and none have yet equalled.

It presented, too, during its course, a beautiful series of variations. Its earliest phase stern and precise, with details rivalling the Greek in the studiousness of their contour; in its second, lighter and less severe; in its third, branching off into an infinity of charming lines, suggestive almost of vegetable growth; and in its last, while returning rather to earlier rigidity, indulging in new developments scarcely foreshadowed by its earlier forms. Thus, at Glastonbury, at Salisbury, in the choir of Westminster, in the naves of York and Winchester, and in the Chapels of King’s College and of Henry VII. we have a series of works, all belonging to the same general type of architecture, yet presenting diversities the most marked and beauties the most varied.

Nor was it alone in its successive periods that varied phases were produced. Each country in which it flourished had its own series of national and provincial types. Thus, in France, in England, in Germany, in Spain, and in Italy, and even in far-off{312} Scandinavia, we find it adopting ever-changeful forms, though all belonging to the same great stem.

Mr. Fergusson, though an opponent of its revival, thus speaks of Gothic architecture:—“Not even the great Pharaonic era in Egypt, the age of Pericles in Greece, nor the great period of the Roman empire, will bear comparison with the thirteenth century in Europe, whether we look to the extent of the buildings executed, their wonderful variety and constructive elegance, the daring imagination that conceived them, or the power of poetry and lofty religious feeling that is expressed in every feature and in every part of them.”

And again, while speaking of its sculpture, which is not usually considered as its strongest point, he remarks:—“The great cathedrals of Chartres and Rheims even now retain some 5000 figures scattered about or grouped together in various parts, beginning with the history of the creation of the world and all the wondrous incidents of the first chapter of Genesis, and then continuing the history through the whole of the Old Testament. In these sculptures the story of the redemption of mankind is told, as set forth in the New, with a distinctness and at the same time with an earnestness almost impossible to surpass. On the other hand, ranges of statues of kings of France and other popular potentates, carry on the thread of profane history to the period of the erection of the cathedral itself. Besides these, we have, interspersed with them, the whole system of moral philosophy, as illustrated by the virtues and vices, each represented with an appropriate symbol, and the reward or punish{313}ment its invariable accompaniment. In other parts are shown all the arts of peace, every process of husbandry in its appropriate season, and each manufacture or handicraft in all its principal forms. Over all these are seen the heavenly hosts, with saints, angels, and archangels. All this is so harmoniously contrived and so beautifully expressed, that it becomes a question even now whether the sculpture of these cathedrals does not excel the architecture.”

Noble and exquisite, however, as it was, it at length ran its course; and, by some uncontrollable movement of the human mind, it gave way to what the world had, till then, never witnessed—a resuscitated style.

I will not attempt to philosophise on this new phenomenon in art. It seems to have originated in a double cause; firstly, the very natural pride felt by the Italians in the antique monuments of their own land and their own race; and, secondly, in the appreciation of these antique monuments which was engendered and fostered by the revived love of classical literature.

It is not difficult to understand how this tended to the revival in Italy of old Roman art; and, once revived there, the centre of ecclesiastical and, in a great degree, of literary influence, the centre, too, of the revival of painting in its highest form, it need not be wondered that it spread itself as a fashion into more northern countries where the same literary tastes had taken root. However this may be, the fact is undoubted, that from this time forward original art ceased, and borrowed or resuscitated art took its place.

My predecessor, Mr. Smirke, in one of his lectures,{314} gave a highly interesting description of the noble enthusiasm which inspired the early architects of the Renaissance in Italy; and I can quite appreciate this feeling in a land where the Mediæval styles were less deeply rooted, where classical traditions had never been extinct, and where the reminiscences of ancient Rome were a subject of national exultation. The revival of the noble literature of their mighty ancestors could scarcely fail, in such a country, to prompt a wish to revive their arts; and I am convinced that such a revival became a spontaneous and irresistible movement, wholly unconnected with any premeditated plan.

Anyhow, whether for good or for ill, the revival was a great and potent fact; and its results have now lasted as long as the whole period of the ascendancy of Pointed architecture, and have extended their sway to all parts of the globe where European influence is felt; nor can its opponents deny that, on its native soil especially, its productions were often of the most masterly description and exquisite beauty; enriched as they are by decorative painting which has never been excelled; by sculpture of which antique artists would not have been ashamed; and by other arts of proportionate merit. In other lands, it has produced works of which no one would venture to dispute the value; and, though a borrowed style, it has developed anew many marked chronological and national varieties, and has produced, as we have seen in my last lecture, works and types scarcely even foreshadowed by its antique originals.

Nevertheless, in the opinion at least of many, it had, by the close of the last century or early in the{315} present, so far run its course, at least in this country, as to have lost its old artistic power. Art had become enfeebled, while art-history had risen more prominently into view; and the decay of the one was promoted by the distraction of thought occasioned by the other.

The revived knowledge of the architecture of Greece rudely disturbed the vernacular style derived from Rome, so that by about the year 1830 the old state of things seemed almost hopelessly damaged; and every architect, instead of working on the traditions handed down to him by his predecessors, seemed to do just what was right in his own eyes, though with a special rage for not very practicable reproductions of Greek, coupled with a conviction that Roman and its derivatives were little short of barbarous.

All the traditions of the past appeared to be broken up. Our every-day architecture, as exhibited in ordinary houses, had become mean and contemptible in the extreme; and, though things have since greatly mended, it has been from a purely eclectic, and not in the least degree from a traditional, point of view; while the untutored house-builder, left to himself, even now disports himself in reminiscences of these first decades of our century—the halcyon days of Gower Street and Tavistock Place.

It was just at this strange juncture that, by some occult influence, the public mind was brought back to view—first with interest, and then with admiration and love—the long-neglected architecture of our own country and our own race (or group of kindred races). At first this was with no intention or thought of{316} revival; it was only interest, admiration, and love. Writers on this subject, whether friendly or hostile, affect to systematise the movement; but it was wholly unsystematic. It arose from the inmost feelings of the heart, and in no degree from premeditation or plan.

It is now the fashion to speak contemptuously of revivals; and truly they do seem strange and inconsistent after following the more natural history of art from the dawn of civilisation to the Renaissance. Yet I cannot but agree with Mr. Smirke that the Classic revival was, in the land, at least, of its rise, a natural, spontaneous, and unpremeditated movement of the human mind. That the Gothic Renaissance was so too, I know, for it was my own happy lot to be a humble agent in it, and I am old enough to have watched it, I may say practically, if not literally, from its commencement.

People talk of Horace Walpole, of Sir Walter Scott, or of any one else they like, as the early promoters of the feeling which led to the revival. I do not know how it may have been with others, but, for myself, I know that my love for Gothic architecture was absolutely spontaneous, and that I had no kind of incentive for following up its study other than the delight I took in it, before I knew a word about other architecture, or was acquainted even with the published works on our own, and that, without a thought of its study ever becoming practically useful to me. I am convinced that the revived love for our old buildings, followed as it was subsequently by a desire to imitate their architecture, was as spontaneous and as irresistible{317} a movement of the human mind as those which had originated either Classic or Mediæval art, or that which, two thousand years after its first rise, had led to the revival of the former. It is true that its results have not yet been so all-pervading as those of the Classic Renaissance, yet they have been very great; out and away the most marked feature in modern architectural history, inasmuch as it, almost alone, has resulted from ardent and genuine enthusiasm, and from the inmost recesses of the heart.

As one of the survivors from among the more active of the earlier agents in this great movement, I may claim a right to dilate a little on my reminiscences of it.

In writing respecting it, nearly nineteen years ago, when my memories were more fresh, I made the following remarks:—

I described the movement as “being the development of a new and vigorous style upon the foundation of the glorious architecture of our own country and of our own forefathers, in the place of one at once alien to our race and our religion.

“This,” I went on to say, “I need hardly tell you is a mighty and most arduous undertaking—so mighty indeed, and so arduous, that I doubt whether, if it had been in the first instance fully appreciated, any body of men could have been found with sufficient daring to set about it. The strength, however, of the movement lies in the fact that it was not deliberate nor preconcerted, but was the involuntary working out of a deeply-seated mental revolution. It was not that a body of men deliberately banded themselves together{318} to carry out and propagate particular tastes or opinions; such would have been but a feeble, or at best an ephemeral and merely local movement; it was rather that a number of persons, in different neighbourhoods and countries, and without any concert, had been led by their own unbiassed and unguided instincts to an appreciation of the long-neglected beauties of our own indigenous architecture. This” (with other feelings), I proceeded to say, “had led them first to study, then to imitate, and ultimately to attempt the revival of the style which had thus involuntarily approved itself to their natural perceptions of what is right and beautiful.

“There is here no conspiracy, no organised movement, no preconcerted effort. Not one of those engaged in it ever thought of its being a movement at all; few of them knew in the first instance that others were affected by the same feelings with themselves, nor perhaps were conscious of any external causes which had given rise to such sentiments in themselves. Yet all, from some internal impulse, seem severally to have been impelled in one and the same direction; and, having at a later period discovered the concurrence of their feelings, their efforts have since assumed the form of a united movement, though originating from the individual and unbiassed feeling of persons wholly unknown to each other.”

In the same paper I spoke in the following terms of the greatest of the early promoters, and in fact the great hero and Coryphæus of our revival, and of the societies which were formed throughout the country for the furthering of the study of our ancient architecture:—“About the time I am referring to, an immense{319} impulse was given to the reformation of architecture by the earlier publications of Pugin. His Contrasts, published in 1836,”—an architectural jeu d’esprit, placing side by side in somewhat burlesqued contrast, selections from Mediæval and modern works,—“while it enraged the majority of our architects, excited others most strongly to press forward toward better things. His True Principles of Pointed or Christian Architecture, which appeared in 1841, was a gigantic step in advance. It grappled at once with all the fallacies which had corrupted modern architecture, and established a code of rules, founded upon common sense, utility, and truth; while his Apology which came out a little later, showed the necessity of falling back upon our national style, and its ready applicability to every requirement of our day. In the meantime the success of his own personal labours was truly astonishing. Not only were the advances he made in the revival of Pointed architecture most rapid, showing genius in every touch,—this was, in fact, the smallest of his achievements,—he actually revived by his own personal exertions nearly every one of its subsidiary arts: architectural carving and sculpture, stained glass, decorative painting, metal-work,—whether in brass or wrought iron,—gold and silver work, enamelling, embroidery, woven textures, paperhangings, encaustic tiles, the manufacture of furniture, and even of ordinary household crockery-ware,—all felt the impress of his hand and of his genius.

“Shortly after Pugin became publicly known, the same course began to be vigorously taken up in our own Church. The societies formed in connection with{320} both Universities were followed up by others in all parts of the country. That vigorous periodical, the Ecclesiologist ... did immense service in exposing the desecration and degradation to which our old churches were subjected, and in promulgating correct principles of ecclesiastical architecture and arrangement.

“A noble feeling for the subject rapidly spread itself among all classes. The zeal for church building and restoration greatly outran the increased knowledge, acts of individual munificence multiplied on all hands, and an entirely new state of things came about.”

Two more decades have nearly passed over our revival since I thus chronicled its progress; and, if it has had (as has been my own painful experience) reverses to deplore, it has had a continued series of successes to rejoice over; and if its early ardour has at all sobered down, this has served, for the most part, to give steadiness and maturity to its efforts; and anyhow, it now possesses architects and other artists of distinguished talent to carry on the work, and, while it has long held absolute possession of the ecclesiastical architecture of the day, it now adds to this many of the most important of our secular buildings.

Its success has been indeed enormous; yet its failures and drawbacks have been in proportion to it. Its artistic merit has been limited to those who have followed it up with an earnest and generous enthusiasm, for it has unhappily been practically followed up by a mixed multitude who view it as a fashion of the day, by which professional practice is to be obtained; but are devoid of all ardour and love for what they are{321} engaged upon. The consequence is that, while we have a certain proportion of new churches and other buildings which need not shrink from comparison with those of the Middle Ages, we have a swarm of others—mere cold-blooded, heartless travesties—a disgrace to our age, and a disfigurement to our towns; but, worse still, while a minority (as I fear) of our ancient churches have been repaired or restored by men who treat them with a loving care, and with studious and intelligent reverence, a large proportion are left to the tender mercies of the mere pretenders,—often not architects at all,—who have no knowledge of, or reverence for, the treasures committed to their unworthy hands; and who have done and are doing their best to rob our country of one of its richest inheritances—its genuine and indigenous architecture.

Nor is this the only drawback to the Gothic revival.

It suffers also from a degree of capriciousness even among its abler and more art-loving followers, who, jealous, perhaps, or contemptuous of others, refuse to co-operate in any steady purpose, and who, morbidly keen in their perceptions of beauty, are apt to follow momentary fancies—now favouring one type, and now another, and, perhaps, reviving styles little allied to their purpose, as if the object of the age were to revive just for revival’s sake, rather than to gather in these extraneous beauties to enrich the resources and to widen the capabilities of one received style. This tendency seems to threaten the noble movement with premature decay, though I do trust that there remain earnestness and steadiness of heart enough to avert{322} this danger, and to guide these artistic strivings into a healthy channel, and cause them to add new life to the general movement.

It is, in truth, as yet unsettled whether we should concentrate our revival on one phase of the old style, or whether, as the ancients did with their orders, we should use them ad libitum. The one seems somewhat artificial, the other somewhat too eclectic; but solvitur ambulando, and perhaps this discursiveness I have been regretting may promote that solution.

I have found, as I went on, that the scheme of my lecture was much too extensive for the time at my command. I had intended to say something of the application of the sister arts to architecture, as well as on the subordinate and allied arts. I must omit this; nor do I much regret it, as I trust I shall be succeeded by men better qualified to deal with the subject.

I will close my lecture,—itself the last of my long but disjected series,—with a few words of advice to architectural students.

First of all, I would repeat what I once heard from that accomplished artist who formerly graced this chair,—Professor Cockerell,—that the first rule for success in art is the same which the wise man laid down with reference to morals, “Keep thy heart with all diligence, for out of it are the issues of life.” If the inmost heart of the student is purely and earnestly devoted, with generous ardour and enthusiasm, to his work, you may make pretty sure of his success; but if he follows it up in a cold perfunctory spirit; from a sense of duty or self-interest rather than of earnest love; whatever may be his success in a merely pro{323}fessional point of view, he will never do any good in a higher and an artistic sense. The first thing, then, to encourage is a loving zeal for the art you have chosen.

The next aim is self-culture, and that of a twofold kind—the cultivation at once of an intimate knowledge of the form of art which you select as your groundwork, and of a personal artistic power to work in it.

In these days of miscellaneous distraction, it is difficult to give advice as to the choice of a groundwork of study. Having no actual style belonging to our age, you must choose between the two Renaissances,—the Classic and the Gothic,—as best you may.

It was my own lot, arising from the period at which I commenced, to have been trained in one (at its deadest period), and to have, from the love of it, trained myself in the other; but I will suppose, for simplicity’s sake, a single and simple choice. Nor is it for me to dictate, were it in my power to do so, what that choice should be.

What I have to say is that, your choice being made, you must study with all diligence, and with the most assiduous attention, the best and purest examples of the style you have chosen; making yourself thoroughly acquainted with it from its very root to its minutest details, and using every endeavour to catch the true artistic spirit of the style in its best phases.

If Classic architecture (whether antique or as revived) be your aim, you are at some disadvantage from not having within your reach its most authentic examples. Books and the works of our own best architects must supply the need till you have opportunity to study it in its native land.{324}

If Gothic architecture is that on which your loving choice has fallen, you are more happily situated. Then you are not studying an imported art, but that of your own country; you have not to travel widely from home to study its noblest productions, for they are at your very doors; you have not to go through a long course of book-study, treating of examples of art which you have no means of seeing and studying with your own eyes; but, though not rejecting books, you may go from them to the originals and judge of them for yourselves. Even if kept pretty closely in London or its vicinity, you do not want opportunity for the study from its noblest productions of the art of your choice. The glorious fane of St. Peter at Westminster supplies an inexhaustible fund for study, while the history of Mediæval art may be followed up by the aid of such examples as the Chapel in the Tower, St. Bartholemew’s Priory Church, the Temple Church, St. Saviour’s, Westminster Hall, Crosby and Eltham Halls, and other minor examples; while an hour’s run will take you to the stupendous church of England’s proto-martyr, which equals its sister abbey as a fund of artistic study and information. The advice, then, I give to the student of Mediæval art is, lose no opportunity of studying and carefully sketching from old examples, wherever they may be found; nor, I would add, should you neglect the aid afforded by collections of objects of study such as our museums contain;[72] but study not only the mere facts, but the spirit and sentiment of the style you are learning.{325}

This, however, alone is but the skeleton. You must clothe it with muscles, and breathe into it the breath of life, by the direct culture of your own individual artistic powers. Make yourselves artists,—not so much artists in the lower sense of being able to make your ideas look well on paper, as in the incomparably more important sense of making your works really noble works of art in reality and in execution. It is of very little importance to any but yourselves whether your drawings look well; but it is of infinite importance that your works, when carried out, should be really worthy of admiration, and should produce the impression on the mind which they ought to produce.

Make yourselves, then, artists, not alone in respect of mere architecture itself, but in respect also of its allied arts; in respect of architectural sculpture, in respect of painted decoration, in respect of figure sculpture and of figure-painting in forms suited to architecture; of painted glass, mosaic work, metal work, and all the subordinate arts. I do not say that you should really practise these arts yourselves, but by training yourselves in them you will become fitted to direct, guide, and check those whom you employ, or who are made your art colleagues.

Few, indeed, of us have as yet come up to this standard,—very few have even approached it. I address you as the rising generation of architects, and urge you to do what your immediate predecessors have, for the most part, failed of having the means of doing. Let your new generation go far beyond its predecessor. It is not for us moderns to be content{326} with a standard of our own degenerate age. To “measure ourselves by ourselves, and to compare ourselves with ourselves,” is never the part of wisdom. Set, rather, before yourselves a standard of glorious days of old; and, remembering always the right noble Catæna Patrum, whose successors you hope to be, make it your first endeavour to raise yourselves to a level worthy of your parentage, and then to press ardently onwards, if Providence shall permit, to ever new and higher attainments.{327}

INDEX.

A, B, C, D, E, F, G, H, I, J, K, L, M, N, O, P, Q, R, S, T, V, W, X, Y, Z

A
Abacus, circular, i. 113, 247;
square, 121, 126, 143, 144, 303;
plan of, 155;
comparative merits of round and square, 156, 158;
cruciform, 226;
in French work, 247, 354;
in Norman work, ii. 78, 85;
square, round, octagonal, 78;
of the Corinthian capital, 94, 140.
Abbots’ houses in early Irish remains, ii. 19.
Abstract beauty, i. 17.
Abutment of the round arch, i. 233.
Academy, Royal, i. 339;
library, 315;
students, 357.
Acanthus, Greek and Roman, i. 81;
the Greek type largely used in French transitional work, 82, 100; ii. 131.
Additions to old churches, i. 364.
Ædnoth, the architect of Romsey Abbey in the time of Dunstan, ii. 33.
Agamemnon, tomb of, at Mycenæ, ii. 230, 231, 300.
Aidan, ancient diocese of, ii. 130.
Aidan, St., missionary from Iona, ii. 30.
Ainay, near Lyons, domical church at, ii. 276.
Aisles, walls of, strengthened to resist thrust of vaulting, i. 53;
apsidal, ii. 93, 110, 162, 165, 183, 203.
Aix-la-Chapelle, treasuries at, i. 328;
Charlemagne’s church, ii. 260, 276.
Alaric, invasion of, ii. 13.
Alban, St., shrine of, i. 187; ii. 95, 100.
Alban’s, St., Cathedral, i. 31, 184, 314;
ii. 94, 118, 122;
western portals, i. 126, 144, 167;
shrine of the proto-martyr, 187;
ii. 95, 100.
Trumpington’s work, i. 286;
eastern parts of, 286, 343;
Roman brick, ii. 75;
piers, 78;
transepts, aisles of, 90;
plan, 96, 115;
choir, 101;
tower, 103;
Abbot Paul’s work, 104;
central tower, 107, 118, 135.
Alexandria, ii. 264.
Alfred, King, ii. 32, 58, 59.
Alphege, ii. 59.
Altar-coverings, i. 329.
Altenburg cloisters, i. 129.
Amiens Cathedral, i. 18, 95, 129, 141, 174, 326;
façade, 165;
western portals, 258.
Amphibalus, St., shrine of, i. 185.
Andernach, western façade, i. 129, 140.
Angels, carved in arch mouldings, i. 80;
in spandrils of transepts, Westminster Abbey, 312.
Angevine, district of, i. 326.
Angles invaded Britain, ii. 9.
Anglo-Saxon, characteristics of, ii. 14, 36, 46, 134, 298;
details of early Irish remains compared with, 22;
churches, plans of, 38;
pillars, columns, etc., 39;
towers at Brixworth, 40;
church at Bradford, Wilts, 46;
chancel, Jarrow-on-the-Tyne, 36, 47;
church at Worth, 44;
church at Dover, 41;
churches, Monk Wearmouth and Deerhurst, 36;
church at Stow, 50;
bell-towers, 52;
crosses, 57;
duration of, and classification into divisions, 58;
post-conquestal, 59, 72;
doorways compared with Norman, 76;
Gloucester, 121.
Angoulême, domical architecture, i. 99;
ii. 274, 275.
Angoumois, domical churches, i. 76.
Anjou, i. 75.
Annulus, in vaulting, i. 57.
Antiquarianism, i. 334, 345.
Antiquaries, their works, i. 27.
Apostles, church of the, at Constantinople, ii. 249, 264-266.
{328}Apse, in early British churches, ii. 20;
at Winchester, 34;
Worth church, 45;
Jarrow-on-the-Tyne, 47;
in Norman, 89;
at Caen, 96;
groining to an, 172, 183;
at Westminster, 205.
Apsidal termination, unknown in the early churches of Ireland, ii. 17;
to Lanfranc’s Cathedral at Canterbury, 28, 29;
at Brixworth, 32, 40;
at Wing, 51;
chapel, Tower of London, 93, 162, 277;
St. Alban’s, 96, 118;
Ely, 110, 113;
Norwich, 118;
Gloucester, 122.
Aqueducts, Roman, ii. 73, 138.
Aquitaine, churches of, i. 152, 337;
ii. 276.
Arcades, miniature, in parapets, i. 258;
ii. 139, 140.
Arch, transitional mouldings, i. 125;
ribs, 53, 146;
outward pressure of round, 233;
system of mouldings, 248;
orders, tracery of windows always viewed as, 284.
Arch decoration, Romanesque, i. 225;
ii. 76, 120, 139, 141.
Archæological portions of our studies, i. 335.
Archaic art, ii. 4.
Arched construction, i. 45, 46, 47;
ii. 177.
Arches, i. 19;
subordination of, 48;
ii. 75, 78, 303, 305;
semicircular or segmental, i. 49, 244;
in rims or orders, 224;
of windows, their filling in, 253;
suggest a higher pitch of roof than trabeated construction, 255;
as to form, 354;
to windows in Anglo-Saxon work, ii. 37;
in form rather than construction, 52;
most obvious form of, 73, 178;
development of, 74, 136;
decoration by mouldings, etc., 76, 120, 139, 141;
orders of, 76, 78, 86, 142, 143, 146, 151;
semicircular, 178, 179;
semi-elliptical, 179;
introduced by the Romans into their architecture, 303, 305.
Architects, English, duties of, i. 352;
Royal Institute of British, 364;
ii. 66;
to direct their primary attention to the study of English architecture, 3;
past history of our art essential to, 295.
Architecture, love for, i. 1;
native, 2;
study of, 2, 16;
ii. 295, 322-326;
latest original style of, i. 6;
of the Western Empire, 12;
of the Eastern Empire, ii. 4, 6, 7;
new phase of, under Rollo, i. 44;
purely arcuated, 47;
secular, of Italian cities, 206;
rationale of, 271;
conditions to be demanded of our future, 273;
unites all arts in one, 340;
necessity to master the whole range of, 341;
development in, 361;
early, in Great Britain, ii. i;
French, 2;
English, 3;
two great divisions of mediæval, 5;
Anglo-Saxon, 36;
early Norman, 58;
at the close of the 11th century, 134;
differs in its origin from the sister arts of sculpture and painting, 291;
definition of, as distinguished from mere building, 292;
history of, reserved for our own age, 293.
Architraves, i. 46, 227.
Archivolts, transitional, i. 124.
Arcs doubleaux, i. 56;
ii. 182.
Arcs ogives, or diagonal ribs, ii. 182.
Arcuated architecture, i. 18, 47, 72, 274;
ii. 5;
system of, 6, 73, 136, 138, 303, 306, 308.
Ardoilen, island of, ii. 20.
Argos, ii. 300.
Arles, cloisters at St. Trophimus, i. 99, 229.
Arnolpho, architect of the cathedral at Florence, ii. 279, 280.
Arran, island of, ii. 15.
Arris vaulting, of the Roman and Romanesque builders, i. 238;
substitution of the rib for, 239.
Art, its growth, i. 4, 143;
primitive, 5;
under the later Pagan emperors, 10;
study of, 27;
its reawakening in the 10th century, 38;
ancient, 142;
decoration, ii. 60;
of architecture, 61.
Art workmen, i. 25.
Arthur, King, ii. 14.
Artists, training as, i. 339;
ii. 325.
Assisi, church of St. Francis at, i. 134.
Assyria, art of, i. 5, 13;
ii. 298.
Assyrian sculptures, ii. 230;
structures, 304.
Athelstan, ii. 59.
Athelwold, Bishop of Winchester, ii. 33, 104.
Athens, churches at, ii. 257;
St. Nicodemus at, 258.
Atreus, treasury of, or the tomb of Agamemnon at Mycenæ, ii. 300.
Atridæ, days of the, ii. 300.
Attic base, i. 150.
Augustan age, i. 10, 142.
Augustine, St., ii. 26, 32, 58;
{329}founder
of the church of St. Martin, Canterbury, 27, 65.
Augustus, reign of, ii. 231.
Aungre, ii. 55.
Autun, Romanesque vaults of, i. 63.
Auvergne, coloured stones in the buildings at, i. 277;
domical churches of, ii. 94, 276.
Auxerre, i. 326;
Lady Chapel, ii. 197.
Aveline, tomb of Countess, i. 180, 184, 311.
Avignon, Nôtre Dame des Dons, church of, ii. 276.

B
Baalbec, i. 220.
Babylon, architecture of, ii. 298.
Baiæ, piscina at, ii. 156.
Ball-flowers, i. 248.
Baluster columns, ii. 37, 38, 41, 46;
of Caen stone at Dover, 43, 102;
at Jarrow, 47, 102;
at Monk Wearmouth, 49, 143;
sculptured on a stone in miniature at Jarrow, 50;
mid-wall at St. Benet’s, Cambridge, 52;
at Trinity Church, Colchester, 52;
St. Alban’s, 102;
Worcester, 123.
Bamberg, cathedral at, i. 43.
Baptistery at Nocera, ii. 238;
Ravenna, 238, 239, 249, 259;
Florence, 262, 280;
Parma, 260, 263.
Barfreston, windows at, i. 161.
Barnach Tower, ii. 53.
Barns, thirteenth century, i. 203;
mediæval, 262.
Barrel vaults, i. 49, 51;
ii. 153, 170, 214, 247;
converted into groined vaults, i. 55;
main arches of, changed to pointed arches, 58;
half-barrel vaults, St. Stephen’s, Caen, ii. 67;
twin or parallel, 154.
Bartholomew’s, St., Priory Church, Smithfield, i. 313;
ii, 324.
Barton-upon-Humber, ii. 53;
western porch, 24, 53.
Barton, Earl’s, tower, ii. 52.
Base mouldings, sections of, i. 150;
of buildings, 164, 249;
to piers, ii. 80;
of a wall, 84;
Norman, 85.
Bases, i. 146, 150.
Basilica, Christianised Roman, i. 39, 51, 337;
converted into a vaulted structure, 71;
Roman, 48;
windows of, 54;
St. Peter’s, Rome, ii. 28, 29;
secular, 20;
at Ripon, built by St. Wilfrid, 32.
Basilica Jovis, i. 338.
Basilican style, i. 41;
early, in southern Italy, 337.
Bath Abbey, ii. 220.
Battle Abbey, gateway at, i. 343.
Battle Abbey, roll of, ii. 124.
Bay-windows, i. 265.
Bays, oblong, i. 57, 62;
square, ii. 163, 177, 205.
Beaudon, Bishop, i. 88.
Beauvais, old church at, i. 41, 129, 326;
basse-œuvres, ii. 12.
Beddington Hall, i. 314.
Bede’s description of early Irish remains, ii. 13, 21, 30, 59.
Belfries, windows of, i. 161;
towers of, 258.
Bell-towers, i. 147;
Anglo-Saxon, ii. 52.
Benedictine order, ii. 33, 58.
Benet’s, St., Cambridge, bell-tower, ii. 52.
Beni Hassan, rock-cut tombs at, ii. 298.
Bernasconi, i. 189.
Bernay, Duchess Judith’s church at, ii. 14;
abbey church at, 65.
Bernward, Bishop, i. 43.
Bertha, Queen, ii. 27.
Beverley Minster, i. 200.
Birinus, St., ii. 33, 104.
Biscop, Benedict, works of, ii. 30, 48.
Blois, St. Nicolas at, i. 196.
Blois, Henry de, brother to King Stephen, founder of St. Cross, near Winchester, i. 111, 120.
Bloxam’s “Principles of Gothic Architecture,” ii. 56.
Bonnet-arched windows, i. 278;
ii. 37, 54.
Books, how to be studied from, i. 334;
historical knowledge from, 334.
Bosses, ii. 177, 194;
in England, 195, 210.
Boss-stones having the plan of the intersecting ribs drawn on them, ii. 212.
Bouet, M., of Caen, history of St. Stephen’s, Caen, ii. 64.
Bourges Cathedral, i. 18, 93, 141;
enclosing arches at, 161;
vaulting to the apsidal aisle, ii. 203.
Boxgrove Priory, i. 202.
Bradford, Wilts, church at, ii. 46.
Bramante, ii. 280.
Brass-work, i. 20, 22, 345.
Brecon Priory, choir of chancel and windows in, i. 286.
Brick, use of, i. 20;
houses, 21;
{330}architecture of the north, 328.
Bridlington Priory, transitional capital from, i. 122;
cloisters at, 230.
Britain, prehistoric, ii. 3.
British, ancient, churches, ii. 18;
square ended churches, ibid.
Britton’s “Antiquities,” ii. 56.
Brixworth Church, ii. 19, 32, 36, 39, 58;
towers at, 40.
Broughton Church, Oxfordshire, i. 283.
Bruges, market halls at, i. 266.
Brunelleschi, ii. 280.
Brunswick, timber street fronts at, i. 21;
treasuries at, 328.
Buddhist architecture, i. 8.
Buildwas Abbey, i. 105.
Burges, Mr., on metal work, i. 345.
Burgh, Norfolk, chancel of, i. 279.
Bury St. Edmund’s, i. 343;
ii. 54, 112, 114, 121.
Buttress, i. 19, 64, 147, 236, 256, 258;
pilaster-like, 49;
arched, 53;
flying, 59;
continuous arched, 53;
angle, Norwich, ii. 118.
Byzantine architecture, i. 336;
earliest Christian style, 10, 11, 39;
ii. 306, 308;
decoration of, i. 49;
pointed arch used in, 66;
as practised in Syria, 337;
ii. 306;
manner of building in, 5, 6, 7;
domes, 188, 245, 258, 260, 288;
early buildings in, 305, 306;
at Perigueux, 271.
Byzantine foliage, i. 321; ii. 7;
route by which it may have reached the north of France, i. 82;
carving in north-west portal of Lincoln Cathedral, 85;
carving at St. Denis, 98;
capitals, 145;
architecture, 336;
domes, ii. 188, 245-258, 260, 288;
introduced by way of Ravenna into Venice, 261;
details of, 260;
at St. Front, Perigueux, 271.
Byzantines, Corinthian capitals foreshadowed in works of the, i. 133.
Byzantinesque foliage, i. 320.

C
Cadwallader, ii. 14.
Caen, St. Stephen’s, ii. 64, 92, 94;
gallery across transepts, 66;
apsidal chapel at the triforium level, ibid.;
western towers, ibid.;
piers, ibid.;
nave vaulting, 67;
bases, 72;
plan, 96;
transepts doubly aisled, 105;
capitals, 120;
crypt, 157.
Cambridge, Jesus Chapel, i. 189;
belltower of St. Benet’s, ii. 52;
King’s College, 219, 311.
Campanile, i. 20;
freedom in use of the, 274.
Canterbury, St. Augustine’s Abbey, i. 276, 308;
gateway, 343;
church of St. Martin, ii. 27, 65;
church of St. John the Baptist, 27, 29;
two columns brought from Reculver at, 39.
Canterbury Cathedral, ii. 27;
early vaulting, i. 62;
work of William of Sens, 85, 308;
Trinity Chapel, 94, 112, 114;
French work, 103;
choir, 112;
cloisters, 139;
crypt under Trinity Chapel, 155, 157;
early Norman of Lanfranc, later Norman of Conrad, 307;
work of William the Englishman, 308;
Peckham’s tomb, St. Anselm’s Chapel, 276, 308;
Cathedral modelled on the basilica of St. Peter’s at Rome, ii. 28;
altar to St. Mary, ibid.;
Chapel of the Virgin, ibid.;
crypt, 29, 65, 158;
rebuilding by Lanfranc, 65, 67, 92, 104;
use of the pointed arch in the vaulting of the wider spans, 181;
Norman chevron in the ribs of the aisle vaulting, 194.
Canute, ii. 34, 58;
Northmen in the days of, 63;
revived impulse in architecture under, ibid.
Capitals, at St. Denis, i. 7, 9, 98;
at Nôtre Dame, 100;
from apse at St. Leu, near Creil, 101;
“à crochet,” 102, 103, 114;
Norman cushion, 117;
ii. 94, 120, 130;
water-leaf form, i. 120;
varied patterns of, 232;
Corinthianesque, 80, 152;
at St. Mark’s, Venice, 82;
Coliseum, ibid.;
St. Front, Perigueux, 83;
column of Marcion, Constantinople, 84;
St. Germain des Près, 85, 92;
north-west portal of Lincoln Cathedral, 85;
Chartres, 87;
Noyon, 88, 102;
Sens, 97, 102;
Sainte Chapelle, 103;
St. Remi, Rheims, ibid.;
Oakham Castle, 114;
characteristic differences between French and English 13th century, 155;
moulded unfoliated, 157;
pilaster, 224;
ii. 140;
impost added to Corinthian, i. 227;
ii. 141;
Norman, 78;
carving of, resembling Greek foliage, 131;
in orders, 78;
primary idea of, 84;
in the Confessor’s buildings at Westminster, and crypt at Winchester, 85;
St. Etienne, Caen, 64;
Lincoln, ibid.;
{331}as imposts, Carileph, St., ii. 125.
Carlisle Cathedral, choir aisles, i. 286.
Carlovingian monarchs, i. 45.
Carnarvon Castle, i. 21.
Carpentry, modern, respecting roofs, i. 255.
Cartmel church, i. 122.
Carving in French churches from early in the 12th century to the end of the 13th century, i. 80, 100, 323.
Cashel, St. Cormac’s chapel, ii. 23.
Castles, i. 21, 147.
Cathedrals, English and French, 13th century, compared, i. 167.
Ceilings, i. 265;
level, ii. 136.
Cella, John de, i. 184.
Cella, William de, i. 126.
Cells, early Irish, ii. 14, 19.
Celtic tribes, ii. 5;
inhabitants of Ireland and Scotland, 60.
Chancel arches in early Irish remains, ii. 22;
in Anglo-Saxon, 38, 41, 45, 54;
in Norman, 89.
Charlemagne, i. 39, 140;
his efforts to revive art, 40, 42;
ii. 305.
Charles the Great, ii. 261.
Chartres Cathedral, i. 18, 325;
portals and west front, 77, 80, 86, 93, 166;
enclosing arches in the aisles, 161;
sculpture, ii. 313.
Chechil Minar, columns of the, ii. 299.
Chester Cathedral, chapter-house, ii. 210;
Lady Chapel, ibid.
Chichester Cathedral, i. 120, 308;
ii. 123;
Lady Chapel, i. 276, 343;
side chapels of nave, 354.
Christchurch, Hants, ii. 108, 130;
window from north transept, i. 283;
triforium and stair-turret to the north transept, ii. 131.
Christian, architecture, early, i. 8, 48;
ii. 4;
churches in Britain about the 5th century, 14.
Churches, old, affection for, i. 2;
Christian, influence of, on our architecture, ii. 305.
Cills, i. 249.
Citè, La, church of, at Perigueux, ii. 273.
Civilisation, its growth, i. 4, 143;
influence on architecture, 5;
ii. 293, 296.
Clapham church, Bedfordshire, bonnet-headed windows, i. 278;
ii. 54.
Clark, Dr. Edward Daniel, description of early Irish remains, ii. 15.
Classic, antiquity, appreciation of, i. 2, 3, 336;
relinquishment of proportion, 49;
form of capital in French transitional work, 81;
mouldings, 249;
modern mouldings, ibid.;
architecture, study of, 294;
ii. 7;
revived, the dome adopted by, 245, 288;
capitals, 302.
Classification of mediæval styles, i. 138.
Clerestory windows, i. 57;
elevation of, 58.
Clermont, Nôtre Dame du Pont, i. 91;
ii. 89, 276.
Cloisters, St. Paul Without the Walls, and St. John Lateran, Rome, ii. 146.
Cluny, Hôtel, i. 324.
Cockerell, Professor, ii. 1, 322.
Coffered panels, ii. 138.
Colchester, Holy Trinity church, bonnet-headed windows, i. 278;
ii. 52.
Coliseum, i. 18;
capitals at, 82;
galleries at, ii. 154, 156.
Cologne Cathedral, i. 18, 175.
Cologne, treasuries at, i. 328;
St. Martin, St. Gereon, 129;
St. Pantaleon’s church, 279;
ii. 12, 25.
Colonnades, ii. 139.
Colonnettes, i. 49;
ii. 143;
at the mosque of Touloun, Cairo, 144;
in Norman work, 146;
their arrangement and development, 147-149;
in vaulting, 156;
suggested by diagonal ribs, 177.
Colouring, lessons in, i. 339.
Columba, St., ii. 16, 19.
Columns, i. 46, 49, 274;
at Noyon, 102;
differences between classic and Gothic, 148;
clustered, 225;
ii. 142-144;
double, in arcades, i. 230;
decorative and functional, 231;
baluster, ii. 37, 38, 41, 43, 46, 47, 50, 52;
decorative or shafts, 76, 77;
in Norman work, 78, 79, 158;
proportional to load rather than height, 83;
purely decorative, 83;
substituted for piers in arcades, 140, 146;
detached at St. Mark’s, Venice, 144;
marble, ibid.
Complete Gothic, i. 347, 351.
Confessor, Edward the, ii. 67;
re-founder of the abbey of Westminster, 68;
work of, Westminster, 108.
Conisborough Castle, i. 265.
Connemara, ii. 21.
Constantine, Emperor, churches in Britain prior to, ii. 20;
St. Constantia, daughter of, 237, 238.
Constantinople, ii. 6;
Byzantine domes of, 259;
{332}St. Sophia, 244, 246, 249,
253, 260, 264-266, 282;
church of the Apostles, 249;
church of the Holy Wisdom, 255;
church of St. Irene, ibid.
Constantinople, government and art removed to, i. 11.
Construction, decorating, i. 19;
of timber roofs, 255, 345;
to be learnedfrom old examples, 344;
arcuated or trabeated, 274;
fireproof, etc., 362;
ii. 137.
Conventional foliage, i. 25, 355.
Corbels, sculptured, carrying diagonal ribs, ii. 177.
Corinthian, ii. 299;
temples, 302.
Corinthian capital, foreshadowed in works of the Egyptians, i. 133;
ii. 298;
reminiscences of, in Norman, 85, 94;
in early arched styles, 140;
with an added impost, 141;
latest type of, in Grecian architecture, 298.
Corinthianesque, type of foliage in Romanesque, i. 77;
capitals from St. Denis, 79;
carving, 80, 84;
capitals, 132.
Cormac, St., at Cashel, chapel of, ii. 23.
Cornices, i. 165, 256.
Cornwall, ii. 13.
Corona at Hildesheim, i. 43.
Corridors in early vaulting, ii. 154, 155.
Couchaud’s “Byzantine Churches in Greece,” ii. 258.
Coucy, Château de, i. 326.
Coutance, i. 141.
Coventry, timber street fronts, i. 21.
Creil, St. Evremont, i. 97, 326.
Crockets, i. 153.
Crosby Hall, tracery, i. 277;
oriel, ii. 213.
Cross, St., near Winchester, i. 111, 308;
round-topped windows used with the pointed arch in aisle vaulting, 66;
ii. 181;
triforium, i. 120;
compared with Sens, 125;
moulded vaulting ribs, ii. 194.
Crosses, Irish, ii. 22, 25, 26;
Anglo-Saxon, 57.
Crouchback, tomb of, i. 140, 311.
Crowland Abbey, i. 194.
Croydon Palace, i. 314.
Croyland, ii. 33.
Crusaders, i. 142;
buildings in the East, ii. 7.
Crusades, i. 67, 204.
Crypt, at St. Denis, i. 80, 91;
at Trinity Chapel, Canterbury, 155, 157;
overground at St. Etheldreda’s, Holborn, 182;
at Canterbury, ii. 29, 65, 158;
York, 29;
Lastingham, 30, 51;
Hexham, 31;
Ripon, 32;
Winchester, 34, 107;
Brixworth, 40;
Wing, 50;
Repton, 51;
Gloucester, 121;
Worcester, 122;
Caen, 157;
Durham, 159;
St. Stephen’s, Westminster, 197, 212;
Glasgow, 200;
Bourges, 203.
Cubicula or oratories at Brixworth, ii. 40.
Cuthbert, St., ii. 21, 28, 123.
Cyclopean walls, ii. 9.

D
Danes, ravages of, ii. 3, 26, 33, 50, 58.
Darlington Church, i. 107.
David’s, St., Cathedral, i. 116, 117;
capitals, 118;
pointed groining in the transitional work, ii. 181.
Decorated style, i. 343, 347.
Decoration, to subdivided arches, i. 48;
a system of, 49;
painted, 203, 361;
constructive parts, sources of, 259;
wall, 327;
Italian, 353.
Deerhurst, remains of Anglo-Saxon work, ii. 36, 58.
Denis, St., i. 77, 88, 105, 319;
eastern part rebuilt by Sugar, 78;
apsidal chapels, 79;
north transept, 80;
compared with St. Germain des Près, 91;
Byzantine carving, 98;
crypt, 80.
Diagonal ribs a source of decoration, ii. 171.
Diocletian, Baths of, i. 52, 234, 273;
persecution, ii. 95.
Doge’s palace, chapel of the;
see St. Mark’s, Venice.
Dome, the, in the Eastern Empire, i. 47, 49;
ii. 153, 168, 169, 171, 172, 174, 228-289;
contemporary with our mediæval structures in neighbouring countries, 229;
the earliest known assumes in section the pointed arch, 230;
the great outward pressure requires abutment or ties of metal, 231;
independent of a keystone, ibid.;
can be erected without the aid of centering, 232;
any reasonable form of building may be covered by the, 240;
development explained, ibid.;
segmental as well as semicircular in section, 241;
pendentive, 242, 273;
as a central point of Christian temples, 245;
{333}introduction of the, throughout Italy, thence to the south-west of France, 261;
derived from purely Roman traditions, 261, 276;
covered by lofty domical towers of timber surmounted by turrets at the apex, 265;
introduction of pointed arches for its support, 267-269, 271;
ceases to be Byzantine and becomes Gothic, 273;
the modern type of, 277-289;
early, of northern Italy, 278;
threefold structure of, at St. Paul’s, 285;
artistic difficulty of making the same dome look well from within and without, 246, 286;
constructive difficulty of balancing a steeple on the top of, ibid.;
scheme of plan for dome of St. Paul’s and St. Peter’s, 287;
in Italy during the Middle Ages, 288.
Domed, architecture at Angoulême, i. 99;
construction, ii. 6, 153;
aisles at the Abbey Church, Bernay, 65.
“Domed-up” vaults, ii. 171, 187.
Domestic work, i. 340, 350.
Doorways, at Chartres, i. 87;
at Jedburgh, 108;
sculpture of, 147;
French and English, 165;
system of constructing, 228, 257;
ii. 136, 149;
in early Irish remains, 22;
in round towers, 25;
in Anglo-Saxon work, 37, 42, 43, 47, 48;
in Norman work, 76, 77;
in all good Gothic, 77, 142.
Dorchester Abbey, choir, i. 287.
Doric, ii, 299;
race, 301;
temples, 302;
Grecian, some resemblance to the rock-cut tombs of Beni Hassan, 298.
Dormer windows, i. 265.
Dover, church on the Castle-hill, ii. 41;
splayed windows, i. 278;
ii. 42;
doorways, ibid.; tower and ancient Roman Pharos, 43;
tower arches, ibid.
Dover Castle, i. 114, 308.
Drawing, lessons in, i. 339.
Drip-stone, or label, i. 225, 249.
Dryburgh Abbey, i. 122, 249.
Dunstable Priory Church, i. 188.
Dunstan, St., ii. 33, 58.
Durham, refectory, Anglo-Saxon crosses found in, ii. 57;
kitchen of the monastery, 203;
castle at, 150.
Durham Cathedral, ii. 120, 124, 126-129, 135;
galilee, i. 106;
chapter-house, 107;
chapel of the Nine Altars, 140, 201, 286;
groining to the central space, ii. 88, 128;
transept aisles, 89;
coupled bays, 124;
Carileph’s design, 126, 127;
gabled roofing to the aisles, 129;
crypt, 159.

E
Eadbald, the son of Ethelbert, ii. 44.
Eadmer, the writings of, ii. 27, 28.
Earls Barton tower, ii. 52, 58.
Early French windows, i. 159.
Early Pointed, fully developed, i. 139, 341, 346;
windows, fully developed, 159, 160;
cathedral bay, 243.
Eastbury House, i. 314.
Eastern civilisation, ii. 305;
distinct from Western, 296;
its probable course, ibid.
Eastern Empire, arts of the, ii. 4, 6, 7;
Byzantine domes in the, 258.
Eaves-courses at Worth Church, ii. 45.
Eddington, his work at Winchester, ii. 108.
Edgar, King, ii. 33.
Edmund, King of East Anglia, ii. 54.
Edwin, King of Northumbria, ii. 29.
Egypt, ruins of, i. 5;
ii. 4;
its architecture and arts, 296, 297;
one of the earliest seats of mental culture, i. 4, 5;
link in the history of architecture, 6;
influence of religion on the architecture of, 9, 13.
Egyptian, construction, i. 219;
bellshaped capitals, ii. 297;
architecture, 304.
Egyptians, pointed arch foreshadowed in works of the, i. 66;
germ of the Corinthian capital found in the works of the, 133.
Eleanor crosses, i. 140, 314.
Eleanor of Guienne, tomb of, ii. 275.
Eleanor, queen of Louis VII., i. 92.
Eleanor, Queen, tomb of, and iron grille over, i. 180, 311.
Eleventh century works in England, i. 40.
Elgin Cathedral, i. 201.
Elizabethan balusters, ii. 37.
Ellipse in vaulting, i. 241;
ii. 163, 172.
Elphege, St., Bishop of Winchester, ii. 34, 104.
Eltham Hall, i. 31;
ii. 324;
tracery, i. 277, 314;
oriel, ii. 213.
Ely Cathedral, ii. 33, 108;
western tower, erected by Bishop  Ridel, i. 111;
{334}galilee,  126,  127,  139,  144, 167, 189;
ii. 151;
east end windows, i. 160;
eastern bays and front, 190;
transepts, double aisles, ii. 89, 105, 110;
Abbot Symeon’s work, 108;
transept piers, 111;
nave piers, ibid.;
triforium piers, 112;
transept at the west end, ibid.;
central tower, ibid.;
vaulting of the presbytery, 209;
lierne vaulting, 213.
Ely, monastery at, ii. 33.
Ely Place Chapel (St. Etheldreda’s), Holborn, i. 140, 181, 276, 287, 314.
Embroidery, i. 22, 34, 203, 329;
ii. 21, 59, 60.
Enamel work, i. 20, 22, 34, 203, 271.
Enclosing arches, i. 161.
English style, ii. 134.
Englishman, William the, i. 112, 113, 155.
Engraving, seal, i. 204.
Entablature, portion of, retained between column and springing of arch, i. 227.
Epée, Guillaume Longue, i. 45.
Estrias, D’, work at Canterbury, i. 276.
Ethelred and Emma, parents of King Edward the Confessor, ii. 67, 114.
Etheldreda, St., Ely Place, Holborn, chapel of, i. 140, 181, 276, 287, 314.
Etruria, buildings of ancient, ii. 9;
walls of, 301.
Euphrates, banks of the, part source of our civilisation and art, ii. 296.
Eustacious, Bishop, i. 127.
Evremont, St., at Creil, i. 97.
Exeter Cathedral, Decorated work at, i. 289.

F
Fan-vaulting, square on plan, ii. 217;
oblong on plan, 219;
King’s College Chapel, ibid.;
cloisters, Gloucester, ibid.;
St. George’s, Windsor, 220;
Henry VII.’s chapel,  Westminster, 220, 222;
Sherborne Minster, Bath Abbey,    220;
Christ  Church,  Oxford, 221;
construction of, compared with the earliest specimens of vaulting, ibid.
Farne, island of, ii. 21.
Fechin, St., monastery in the island of Ardoilen, ii. 20.
Fergusson, Mr., definition of the Norman style, etc., ii. 73;
as to date of the Pantheon, 231;
on the dome, 268.
Ferrers, Walkelin de, i. 114, 120.
Ferry, Mr., in reference to Christchurch, ii. 130.
Fifteenth century, i. 64.
Figure sculpture, i. 22, 50;
ii. 312;
Westminster Abbey, i. 177;
Chartres, 325;
ii. 312;
Greek, 301.
Fillets or keels to edges of mouldings, ii. 148.
Finan, ancient diocese of, ii. 130.
Finan, St., missionary from Iona, ii. 30.
Fireplace, the, i. 265.
First Pointed, i. 247.
Flambard, Ralph, Bishop of Durham, ii. 126-130;
his church at Christchurch, Hants, 130.
Flanders, town-halls of, i. 21, 260.
Flint, use of, i. 20;
and stone structures of the eastern counties, 270.
Flixton, Suffolk, tower at, ii. 53.
Florence, baptistery at, ii. 261, 262, 280.
Florence, cathedral at, ii. 248, 297, 281, 282, 284.
Foliated bands, i. 165, 248.
Foliated sculpture, i. 25, 50, 323;
at Nôtre Dame, 100;
natural and conventional, 153;
Westminster Abbey, 177;
stalks of, in capitals in reference to ribs, 247.
Fontevrault, Abbey of, ii. 275.
Foreign travel, i. 345;
architecture, study of, 316.
Formerets, or wall-ribs, ii. 182.
Fortifications, Gothic, i. 260.
Fosca, Santa, Torcello, church of, ii. 266.
Fountains Abbey, nave, i. 104, 106.
Four-leaved flowers, i. 248.
Fourteenth century, i. 6;
system of vaulting churches, 64;
close of the first quarter in France, 323.
Frampton tower and spire, i. 194.
France, foreign study to commence with, i. 33;
ii. 3;
the great centre of mediæval art, i. 33;
early work in north, 41; transition in, 70, 73;
13th century domestic architecture in, 206;
modern houses in, 259;
architects of, 353;
introduction of domical architecture into, ii. 7;
12th century work in, 8;
A.D. 1000 in, 62;
Romanesque of, 63;
central, development in, 74, 83;
domical structures of, 288.
Francis, St., church of, Assisi, i. 134.
Frankish kings, i. 42;
monarchy, 45.
Frederick, Abbot, ii. 59.
Freeman, Mr., ii. 5, 57, 59, 245, 300;
{335}on Gothic architecture, 312, 313.
French, work in England, i. 113;
work of the 12th and 13th centuries, 247, 349;
architecture, study of, 317.
Fresco-painting, i. 213, 271.
Frond, St., at Perigueux, see St. Front.
Front, St., at Perigueux, i. 82, 83;
ii. 271-273, 278.
Functional plane of windows, ii. 152.
Furness Abbey, i. 122;
capital,  123;
13th century choir, etc., 140, 200.

G
Gall, St., monastery of, ii. 28.
Galla Placidia, tomb of, at Ravenna, ii. 242, 259.
Galilee at Ely, i. 126, 127, 139, 144, 167;
ii. 151;
at Durham, i. 106.
Galleries over aisles, i. 54, 56;
ii. 88.
Gallerus, St., oratory of, ii. 16.
Gates at St. Michael’s, Hildesheim, i. 43.
Gelnhaussen Church, i. 129.
Geneva Cathedral, i. 97.
Genoa Cathedral, ii. 147.
Geometrical system of window tracery at Westminster Abbey, Newstead Abbey, and the “Angel Choir” at Lincoln, 276.
Gereon, St., Cologne, i. 129;
cloisters at, ibid.
Germain des Près, St., i. 62, 319;
triforium and clerestory, 118;
choir and vaulting, 65, 92;
western doorway, 87, 92;
description of church, 91;
sculpture and capitals, 92.
Germanic nations, i. 6;
their consolidation under the first three Othos, 41.
Germany, i. 33, 41;
architectural movements in, 44;
the transition in, 70, 72, 328;
early roofs in, 254;
modern houses in, 259;
halls and feudal castles of, 260;
domestic brick architecture, 271;
tour in, 327;
Romanesque buildings of, ii. 7, 83;
western apse common to early churches of, 28;
early churches of, 36, 74;
domical churches of, 276, 288;
Romanesque of, Byzantine influence upon, 308.
Gilles, St., near Nismes, i. 99.
Glasgow Cathedral, i. 202;
crypt under, 240;
ii. 200-202.
Glass, painted, i. 22, 34, 203, 297, 357;
in secular work, 361.
Glass-plane, i. 276.
Glastonbury, church at, probably the first erected in Great Britain, ii. 19.
Glastonbury, St. Joseph’s Chapel, i. 66, 114;
ii. 181, 194, 311.
Glastonbury Abbey, i. 114, 117, 308.
Glazing, mode of, for spaces of moderate width, i. 252;
iron-work supporting, 297.
Glendalough, St. Kevin at, abbots’ houses, ii. 19.
Gloucester Cathedral, ii. 121, 135;
choir, i. 90;
ii. 214;
nave, i. 155;
vaulting to the gallery over the aisles, ii. 88;
apsidal chapels, 122;
Lady Chapel, 215;
cloisters, 219.
Goring Church, Oxfordshire, vaulting beneath the tower, ii. 170.
Gothic architecture, claims upon our study, i. 6, 16;
abstract beauty of, 18;
adaptability to varied climates and buildings, 20, 21;
its freedom in ornamentation, 25;
southern examples, 34;
distinctive characteristics, 70;
timber roofs, 255;
developments founded upon practical considerations, 261;
honesty of treatment in, 266;
unites the conditions necessary for our future architecture, 274, 292;
complete Gothic, 347, 351;
study of old examples, 293;
imaginary excursion for the study of, 295;
study of, in London, 309;
its revival, 346;
arch-mouldings, ii. 142;
revived, acceptance of the dome into, 288;
details of, in its earliest phase rivalling those of Greece, 311;
an absolutely new phase of art, 310;
its development and progressive stages, 309-313;
its study, 324-326.
Gothic, conquerors of Rome, i. 5;
invasions, 47;
Italian, 134.
Gothic Renaissance, the, Sir Gilbert Scott’s personal reminiscences, 317.
Goths, incursions of the, i. 11.
Gower Street, a specimen of the untutored house-builder, ii. 315.
Gradenæ surrounding domes, ii. 233, 235.
Grantham steeple, i. 194;
vaulting beneath the tower, ii. 174.
Greece, civilisation and art of, i. 5, 6;
influence of religion on the architecture of, 9, 13;
windows of ancient, 250;
trabeated style of, ii. 5, 137;
buildings of ancient, 9, 299;
special features in, for our study, 302, 303;
{336}architecture of, revived into our own country, 315.
Greek churches, domes of the later, ii. 257.
Greek, orders, as found in the early architecture of Rome, i. 45;
element merely decorative during the later Roman period, 47;
construction, 219;
resemblance of Gothic mouldings to Greek, 249;
Greek art the parent of Gothic sculpture, 336;
sculpture, 356;
vases, 360;
remains, ii. 6;
figure-sculpture, 301, 302.
Greensted, Essex, chapel at, ii. 56.
Greenwell, Canon, ii. 57.
Groined vaults, i. 49, 52, 56, 238, 327;
ii. 79, 80, 87, 149, 155-160, 162, 172, 247;
square, with semicircular arches, i. 240;
with pointed arches, 241;
ii. 180;
oblong, i. 241;
names of the parts of, ii. 182.
Groin-ribs, i. 59, 238.
Grostete, Bishop, of Lincoln, i. 196.
Gundulph, monk of the abbey of Bec, ii. 116.
Gurth, ii. 59.

H
Halberstadt, western façade, i. 129;
treasury, 329.
Hamburg, church at, i. 99.
Hampton Court, i. 31, 314.
Harold’s, Earl, church at Waltham, ii. 68.
Harold, King, ii. 59, 124.
Headingham Keep, ii. 135.
Henry II., i. 92;
tomb of, ii. 275.
Henry III., effigy of, i. 180.
Henry VII.’s chapel, Westminster Abbey, i. 312;
ii. 220-227, 311.
Heptarchy, the, ii. 3.
Heraldry, study of, i. 335.
Hereford Cathedral, i. 202; ii. 123;
capitals in eastern chapel, i. 118.
Hereward, ii. 59.
Hexham Abbey, i. 122, 201;
ii. 31.
Hildesheim, schools of art and science at, i. 42;
St. Michael’s, 43;
ii. 100;
treasuries at, i. 328.
Hindoo architecture, i. 8.
Holy Land, ii. 8.
Holyrood Chapel, i. 201.
Honorius, Emperor, ii. 13.
Hood-moulds, ii. 140.
Hôtel Dieu;
see St. Julien le Pauvre, Paris.
Howden, cornices at, i. 165.
Hugh, Bishop, i. 126, 195, 196;
work of, at Lincoln, 303.
Huns, incursions of, i. 11, 40.
Hythe church, i. 201.

I
Illuminated, manuscripts, i. 34, 43;
ii. 21, 59;
books, Saxon, 36;
painting, 60, 308.
Imposts, i. 224;
ii. 76, 77, 80, 84, 102, 156;
added to Corinthian capitals, i. 227;
moulded, ii. 139;
to capitals, 140;
to piers, 142.
Ina, ii. 59.
India, architecture of, i. 13.
Inlaying, i. 205.
Iona, monastery at, ii. 21;
crosses, 26.
Ionic, ii. 299;
temples, 302.
Ireland, ii. 12-14;
early remains in, 14, 16;
early churches of, 17, 20.
Irene, St., at Constantinople, ii. 255.
Irish crosses, ii. 22, 25, 26.
Iron-work, i. 20, 22;
of west doors at Nôtre Dame, 322;
study of, 345, 362.
Isabel of Angoulême, tomb of, 275.
Issoire, Nôtre Dame du Pont, Clermont, i. 91.
Italy, i. 33, 142;
architecture in south, 48;
street palaces of, 148, 205;
early churches of, ii. 36;
campaniles of, 38;
lessons from, used by the Anglo-Saxons, 60;
pendentive domes in, 245.
Ivory carving, i. 22, 34, 203.

J
Jambs, of windows, 251;
of doorways in Anglo-Saxon work, ii. 37, 42;
of chancel arch at Worth, 38;
monolith, at Monk Wearmouth, 48;
receding orders of, 142;
development of, 143, 150.
Jarrow, church at, ii. 30, 36, 47, 48;
sculptured stone, representing a long row of balusters, 50;
crosses, 57.
Jean, St., church of, Poictiers, ii. 12.
Jedburgh Abbey, i. 108, 117, 122.
Jerusalem, Temple area at, double and golden gates, ii. 243.
Jewelled covers of books, i. 329.
Jewellery, i. 22, 34, 203, 327, 345;
ii. 21, 59, 60, 308.
John, St., the Baptist, i. 50.
John, St., the Evangelist, i. 50.
Joseph, St., of Arimathea, Glastonbury, i. 66, 114;
ii. 181, 194.
Julien, St., le Pauvre, at Paris, i. 97, 320.
Jumièges, Church of St. Pierre, i. 45;
chapter-house, ii. 63;
{337}Abbey Church, 65.
Jupiter, temple of, in Diocletian’s palace, Spalatro, ii. 237, 238.
Justinian, ii. 243, 248, 249, 259;
and Theodora, 259.
Justus, Bishop, ii. 29, 116.

K
Karnac, Hall at, i. 18;
ii. 252, 297, 298.
Keels to edges of mouldings, ii. 148.
Kells, St. Columba at, abbots’ houses, ii. 19.
Kelso Abbey, i. 122.
Kensington, South, Library of the Department of Art at, i. 315;
museum, ibid.
Ketton Tower, i. 194.
Kilda, St., island of, ii. 15.
King’s College, Cambridge, chapel of, ii. 219, 311.
Kirkdale Church, ii. 57.
Kirkham Abbey, i. 201, 286, 289.
Kirkstall Abbey, i. 105, 106.

L
Labels, as dripstones, i. 225;
in Norman work, ii. 84.
Lambeth Palace, chapel at, 174;
hall at, 314.
Lancaster, Edmund Earl of, tomb of, i. 180, 184.
Lanfranc, Church of St. John Baptist, Canterbury, rebuilt by, ii. 28;
first abbot of St. Stephen’s at Caen and first metropolitan of England, 65, 92, 104, 116.
Laodicea, battle of, i. 92.
Laon Cathedral, i. 326; capital at, 102.
Lastingham, Yorkshire, church at, ii. 30.
Le Puy, domical church at, ii. 276.
Lead work, i. 345.
Leofwine, ii. 59.
Libraries, public, i. 34;
in London, 315.
Lichfield Cathedral, i. 202;
capitals in choir, 118;
cornices, 165;
nave, 343, 351;
grouped colonettes at, ii. 148, 151;
chapter-house, 203.
Liernes, or ridge-ribs, ii. 182, 211, 214, 215.
Limburg on the Lahn, church at, i. 129.
Lincoln, towers of two churches in the lower city, i. 302;
Paulinus’s church at, ii. 30;
St. Mary’s and St. Peter’s at Gowts, churches of, 72;
castle at, ibid.
Lincoln Cathedral, i. 18, 194, 286, 288;
ii. 72;
Byzantine carving in north-west portal, i. 85;
choir and eastern transepts, 126, 139, 144;
eastern windows, 163;
south entrance to eastern part, 167;
“Angel Choir,” 276;
eastern arm, 343, 351;
study of, 302;
work of Remigius, 303;
ii. 94;
Easter sepulchre, i. 304;
foliage, figure sculpture, and wood-carving, 306;
wall-painting and stained glass, 307;
capitals from, ii. 120;
two chapels near the west end, 198;
vaulting under central tower, 199;
vaulting of the choir, 202.
Lindisfarne, groining to the central space, ii. 88, 129;
bays at, 126.
Lindisfarne, island of, ii. 30.
Lindsey, bishops of, ii. 50.
Lintels, wooden, ii. 43.
Llandaff Cathedral, i. 202;
west windows, 160.
Lombard cities, i. 21.
Lombardic traditions in Italian pointed architecture, i. 142.
Lombardy, architecture of, i. 40, 41, 45, 337;
ii. 306;
domestic brick architecture of, 271.
London, study of architecture in, i. 30;
cathedral of, ii. 27, 29, 114, 280-289.
London, Tower of, chapel in the, i. 313;
ii. 88, 93, 116, 120, 130, 135, 162, 324;
apsidal aisle, 165, 183;
semi-dome of apse, 277.
Long and short work, ii. 36, 44, 45, 49, 52.
Lorsch, church at, ii. 12.
Losinga, Bishop Herbert de, ii. 116.
Louis VII. of France, i. 92.
Louis, St., works of, i. 141.
Lubeck brick houses, i. 21.
Luc, St. d’Esserent, abbey church of, i. 326.
Lucy, Bishop de, i. 127, 128.
Luda, Bishop de, tomb of, i. 140, 184;
chapel built by, 181.
Lyminge, church at, ii. 44 (footnote).
Lyons Cathedral, i. 98.
Lysicrates, Choragic monument to, i. 81;
ii. 7.

M
Magdeburg, east end, i. 129.
Mahometan, architecture, i. 8, 337;
invasions, 11;
ii. 7;
{338}conquest of Syria,
i. 336;
styles, ii. 8;
domical structures, 268, 277, 288.
Maine, i. 75.
Malcolm, King of Scotland, ii. 125.
Malling, Keep of St. Leonard’s, near, ii. 116.
Malmesbury, William of, account of King Edward’s church at Westminster, ii. 68, 115.
Malmesbury Abbey, doorways at, ii. 149.
Malton, Old, church at, i. 109.
Manor-houses, i. 21.
Mans, Le, i. 141;
tracery at, 162, 326.
Manuscripts, illuminated, i. 203, 327.
Marathon, plain of, ii. 22.
Marbles, Italian, i. 142.
Marburg, treasuries at, i. 329.
Margaret, Queen of Malcolm, King of Scotland, ii. 125.
Mark, St., ii. 264.
Mark’s, St., Venice, i. 44, 82, 180, 337;
ii. 144, 257, 264, 271, 273, 278, 285, 306.
Martin’s, St., in the Fields, London, Welsh groins, ii. 173.
Martin’s, St., Cologne, i. 120.
Martin, St., church of, at Canterbury, founded by St. Augustine, ii. 27, 65;
gallery across transepts, 66;
apsidal chapel, ibid.
Mary’s, St., Abbey, York, i. 108, 140, 164, 200, 288;
square abacus, 303, 343;
ii. 147.
Mary’s, St., at Gowts, Lincoln, church of, ii. 72.
Maurice, Bishop, ii. 114.
Maxentius, basilica of, i. 52;
ii. 282.
Mayence Cathedral, i. 43;
ii. 144.
Mediæval, architecture, equally classic with the architecture, of the ancient world, i. 3;
its study, 3, 34, 50;
its claims, 4;
the termination of the history of original and genuine architecture, 8;
in France, Germany, and Italy, 33, 204;
not produced by chance, 64;
in Italy, 205;
classification of styles, 138;
art, ii. 7, 302;
buildings, early and late, 297.
Mellitus, ii. 29;
founder of St. Paul’s, London, 114.
Merlin, ii. 14.
Merton Chapel, Oxford, i. 287.
Mesopotamia, one of the earliest seats of mental culture, i. 5.
Metal work, i. 20, 22, 34, 43, 203, 271;
ii. 308, 325.
Michael Angelo, ii. 280, 282, 283.
Middle Pointed, i. 347.
Middlesex, churches of, i. 315.
Minerva Medica, Temple of, ii. 234-236, 239, 246, 249, 259.
Modelling, lessons in, i. 339.
Monasteries, early, in Ireland, ii. 16, 20;
of Iona, 21;
of St. Gall, 28;
at Peterborough, 32, 33.
Monks, domestic buildings of the, in early Irish remains, ii. 14.
Monk Wearmouth, western porch at, ii. 24;
monastic church of, 30, 36;
another church at, built by Benedict Biscop, 48;
baluster shafts, 49, 144.
Monthron, near Angoulême, church at, ii. 276.
Montmartre, capitals at, i. 102, 319.
Mosaic, glass, i. 20, 43, 143, 271;
Italian, at Westminster Abbey, 178, 313;
in Italy, 205, 213;
introduction of, into vaulting spaces, ii. 188;
study of, 325;
in Byzantine architecture, 262, 305.
Moulded, bands, i. 150;
capitals,  157.
Mouldings, i. 26, 148;
system of, 48, 248, 250;
base, 150;
enriched, 249;
of the Gothic, Antique, and Romanesque builders, 249;
in Anglo-Saxon work, ii. 37;
in Norman, 101;
of arches, 139.
Moulds of bases of buildings, i. 164.
Mullions, i. 160, 163, 252.
Museums, i. 34, 315;
Architectural Museum, 339;
ii. 324.

N
Naitan, king of the Picts, ii. 30.
Nantwich Church, chancel of, ii. 212.
Natural foliage, i. 153, 355.
Needlework, i. 271.
Nesario and Celso, SS., little church of, at Ravenna, ii. 242, 243.
Nether Hall, i. 314.
Netley Abbey, east window, i. 163, 342.
Nevers, St. Stephen’s at, ii. 89.
Neuss, near Dusseldorf, church at, i. 129.
Neustria, Romanesque of, previous to the ravages of the Northmen, ii. 63.
Newark, fortress at, ii. 135.
Newcastle, fortress at, ii. 135.
Newstead Abbey, west front and carving, i. 199;
tracery, 276;
the study of, 343, 351.
Nicodemus, St., at Athens, ii. 266.
{339}Nile, banks of the, part source of our civilisation and art, ii. 296, 298.
Nimèque, church at, ii. 276.
Nimroud, palace of, ii. 4.
Nocera, baptistery at, ii. 238.
Norfolk, domestic brick architecture of, i. 271;
woodwork of, 300.
Norman, refined, with or without pointed arches, i. 106;
ornaments, 113;
cathedral increased in height in the ratio of one-third, 243;
as a style, 347, 353;
ii. 62, 73, 74, 82;
pre-Norman English churches, 19, 26, 35;
period in Irish work, 22, 23;
earlier, in England, 58;
pre-conquestal, 3, 59, 72-89;
pre-Norman sculpture, 60;
originality of, 63;
mode of building introduced by, ibid.;
early, 64, 105, 108;
late, at St. Stephen’s at Caen, 67;
first Anglo-Norman church, 71;
castle at Lincoln, 72;
cathedral at Lincoln, ibid.;
doorways, compared with Anglo-Saxon, 76;
windows, 80, 81;
base-courses, impost, and labels, 84;
capitals, ibid.;
mouldings, 86;
figure sculpture, ibid.;
surface ornaments, ibid.;
ideal nave or choir of a church, 87;
ideal church, 90;
perfect typical Norman church, 101;
chosen for King Edward’s church at Westminster, 68;
outline at Norwich, St. Alban’s, and Tewkesbury, 122;
church at Worcester, 123;
cathedral at Selsey, ibid.;
cathedral, Durham, 125;
colonnettes solid with the piers, 146;
vaulting, 79, 149, 153, 157-160;
at Rochester, 116.
Normans, architectural ambition of, ii. 26;
new manner of building introduced by, 62, 63, 68, 136.
Normandy, i. 33, 45;
architecture of, 318;
ii. 63; early works in, 64.
Normandy, William of, ii. 26.
Northampton, church of St. Peter, ii. 57.
Northern Europe, nations of, ii. 4.
Northmen, incursions of the, i. 40.
Northwold, Bishop, i. 190.
Norwich Castle, Keep of, ii. 135.
Norwich Cathedral, ii. 116, 122, 123, 126;
transept aisle, 90;
central tower, 107, 118;
plan, 118;
apse, apsidal chapel, nave, etc., ibid.;
cloisters, 217.
Nôtre Dame, Paris, i. 97, 321;
foliage of nave, 100;
capital “à crochet,” 102;
western portals, 126, 144, 166, 321;
west façade, 141.
Noyon Cathedral, i. 62, 326;
description of, 88;
apsidal chapels, 89;
portals to transepts, 91;
columns, 102.
Nuremberg, stone houses, i. 21;
western façade of St. Sibald, 129;
warehouses, 262.

O
Oak effigies, i. 299.
Oakham Castle, capitals in hall, i. 114.
Odo, Archbishop, ii. 27, 29.
Odorico, Italian mosaic worker, i. 178.
Offa, king of Mercia, i. 184;
ii. 95;
his church at St. Alban’s, 102.
Omer, St., round abacus at, i. 155.
Ongar, chapel at Greensted, near, ii. 56.
Oratories, in early Irish remains, ii. 14, 16;
at Hexham, 31;
Brixworth, 40.
Order, or rib, in arch-moulding, i. 248.
Orders, development into, in early Irish remains, ii. 22;
in Norman, 75-77;
sub-orders, 78;
divided, 101.
Oriel windows, i. 265;
ii. 213.
Orme, Philibert de l’, treatise on vaulting, ii. 182.
Ornamentation, of useful features, i. 147.
Oswald, who completed King Edward’s church at York, ii. 29.
Otho III., i. 43;
ii. 261, 306.
Othos, the first three, i. 41;
ii. 74.
Ourscamp, monastery at, i. 326.
Oxford, chapter-house at, i. 286;
Merton Chapel, 287;
St. Peter’s, moulded vaulting ribs, ii. 194;
staircase to the hall, Christ Church, 221;
Divinity schools, 222, 225.

P
Pagan origin of pointed architecture, i. 9, 10.
Pagan tribes, ii. 5;
in Britain, 9, 14.
Painted decoration, i. 34, 203.
Painted glass, i. 22, 34, 147, 203, 297, 357;
in secular work, 361.
Painting, i. 142;
fresco, 213, 271;
figure, 357;
introduction of, into vaulting surfaces, ii. 188;
art of, its origin, 291;
in Egypt, 297.
Palermo, architecture of, ii. 8.
Paley, Mr., ii. 57.
{340}Palgrave, Sir Francis, ii. 125, 130.
Panels of vaulting, i. 60.
Pantaleon, St., Cologne, i. 278, 279;
ii. 12, 25.
Pantheon, i. 271;
ii. 231-234, 237, 244, 246, 253, 260-262, 282, 283.
Parapets, i. 256, 258.
Paris, district round, i. 33;
Nôtre Dame, 97, 100, 102, 126, 141, 144, 166, 321;
St Germain des Près, 62, 65, 85, 92;
Montmartre, 102, 319;
the focus of the transition, 73;
Sainte Chapelle, 103, 183, 324;
architecture of, 318;
Hôtel Cluny, 324;
St. Julien le Pauvre, 97, 320.
Paris, Matthew, account of King Edward’s church at Westminster, ii. 68.
Parker’s, Mr., “Glossary,” ii. 56;
paper on St. Stephen’s at Caen, 66.
Parliament Houses, London, difficulty of finding suitable stone for, i. 222.
Parthenon, i. 18.
Parthians who used the semi-elliptical arch, ii. 179.
Patricus or St. Patrick, ii. 13.
Paul, monk of St. Stephen’s at Caen, ii. 95;
rebuilt St. Alban’s, 96, 99, 104.
Paulinus, Roman missionary, ii. 29, 30, 50.
Paul’s, St., London, bar-tracery at, i. 163;
ii. 114, 280-299;
section of dome founded on the pointed arch, 282;
scheme of the plan, 287.
Peace, Temple of, ii. 282, 283.
Peckham, Archbishop, tomb of, i. 140, 184, 308.
Pedestals, of doorways, i. 87;
fluted, 93.
Pedestrian tours, i. 31.
Pelasgi, pointed arch foreshadowed in works of the, i. 66;
Cyclopean walls of the, ii. 300.
Pendentives, ii. 242-257, 281, 282;
give place to corbels in many French churches, 276.
Penshurst, halls at, i. 276, 343.
Pericles, period of, ii. 4;
historians and philosophers of the days of, 300, 312.
Perigord, domical churches of, i. 76.
Perigueux, St. Front at, ii. 271-273, 278.
Persepolis, Hall of Xerxes, ii. 299.
Pershore, church at, i. 90;
ii. 122.
Persia, succeeded Egypt and Assyria in art and dominion, i. 5;
ii. 298, 299, 301;
structures of, 245, 304.
Persians, incursions of the, i. 11;
Romanesque builders and ornaments of the, 134.
Peterborough, monastery at, ii, 32, 33;
abbots of, who erected the church at Brixworth, 40.
Peterborough Cathedral, i. 191;
ii. 33, 99;
transept aisles, 90;
eastern end, 113.
Peter’s, St., Rome, ii. 115, 253, 280-289;
section of dome founded on the pointed arch, 282;
scheme of the plan, 287.
Peter’s, St., at Gowts, Lincoln, ii. 72.
Petit, Mr., definition of the Norman style, ii. 73.
Petrie, Mr., on early Irish remains, ii. 15, 17.
Pharos, Roman, on the Castle-hill, Dover, ii. 43.
Phidias, period of, ii. 4.
Philibert de l’Orme, his treatise on vaulting, ii. 182.
Philip Augustus, i. 140.
Picts, devastations of the, ii. 13.
Piers, ii. 76;
subdivision of, i. 48;
and arches, 225;
decorated shafts substituted for, ii. 76;
orders, 76, 78;
clustered, 78, 146-148, 151;
in vaulting, 79, 158;
development of, 80, 143;
of Roman brick, 97;
pilaster capitals to, 140.
Pietro, Italian mosaic-worker, i. 179.
Pilasters, in Anglo-Saxon work, ii. 36-38, 42, 45, 51, 52, 58, 76;
in Norman vaulting, 80, 156, 158;
used asbuttresses in Norman, 82, 102, 103;
capitals to, 140;
jambs of arcades converted into, ibid.;
to doorways, 149.
Pillars, forms determined by vaulting, i. 63;
constructional and decorative, 146;
varieties of, 149;
moulded bands to, 150;
bases, ibid.;
their development, ii. 143, 146.
Pinnacles, i. 147, 237.
Pisa Cathedral, i. 44.
Pisan architecture, i. 84.
Planning, freedom of, i. 266, 274.
Plantagenet kings, our early, lie buried, and effigies of, at the abbey church of Fontevrault, ii. 261, 275.
Plate-tracery, i. 161;
ii. 152.
Plinths, i. 151;
square, octagonal, and round, 152.
Poictiers, St. Jean at, ii. 12.
{341}Pointed arch, connection with Saracenic
architecture, i. 13;
advantages of, 19;
early use of, in south of France, 54;
in vaulting, 52, 71;
theory as to the introduction of, 57, 65;
ii. 108, 181;
adoption magical, i. 68;
systematic introduction into France,;
at St. Denis, 79;
at Noyon, 88;
adopted from structural and mechanical necessity, 235;
æsthetical reasons for the, 242.
Pointed architecture, claims of, i. 4, 14, 17;
love for, 3;
said by some to be the property of the Roman Church, 8;
Christian style, 9;
originally Pagan, 9;
essentially our own style, 14;
intrinsic claims, 17;
beauty of external outline, 26;
in Germany, 33, 141;
English revival, 36;
Italian, 142;
a more advanced stage of Romanesque, 50, 144, 145;
English, 112, 341;
leading characteristics of, 146;
ii. 2, 5;
doorways in, 77;
transition of Norman into, 131;
the culminating Christian architecture of our group of nations in the West, 308.
Poole, Mr. Ayliffe, ii. 57.
Porch, at Ely, i. 126, 139, 144, 167, 189;
ii. 151;
Anglo-Saxon, at Bradford, Wilts, 46;
western, at Barton-upon-Humber, 53;
gabled, at Monk Wearmouth, 49.
Portals, French and English, i. 166.
Practical study of Gothic architecture, i. 331, 344.
Prague, precious stones used in building chapel at, i. 271.
Pre-Norman English churches, ii. 19, 26, 35, 39, 44;
sculpture, 60;
buildings, 61.
Près, St. Germain des, i. 62, 319;
choir vaulting, 65, 92;
western doorway, 87, 92;
description of church, 91;
capitals, 92;
triforium and clerestory, 118.
Pretenders in the study of Gothic architecture, who practise as architects, i. 350.
Primitive art, i. 5.
Procopius, ii. 244, 249.
Proportion, in columns, etc., i. 49;
rejection of fixed rules in, 230;
arbitrary rules of, ii. 178.
Provence, architecture of, i. 44, 45.
Pudsey, Bishop, i. 106, 120.
Pugin, his “Contrasts,” “True Principles of Pointed or Christian Architecture,” and “Apology,” ii. 319.
Puy, Le, architecture at, i. 99.
Pyramids, ii. 4, 297.

Q
Quenqueville, church of, Normandy, ii. 12.
Quentin, St., angular abacus at, i. 156.
Quoins in Anglo-Saxon work, ii. 36, 43.

R
Ramsey Abbey, ii. 33.
Ravenna, Byzantine, i. 40;
ii. 259, 261;
baptistery at, 238, 239, 249, 259;
church of SS. Nesario and Celso, 242.
Recessed orders, ii. 37, 75-77, 101.
Regulus, St., at St. Andrews, church of, ii. 24.
Religion, influence of, on architecture, i. 9, 49.
Remigius, work of, at Lincoln, i. 303;
ii. 94.
Renaissance, the, ii. 279;
completion of the dome of the cathedral at Florence during the, 288;
early architects of the, 314.
Renaissance, Gothic, i. 347;
ii. 317-328.
Repair of ancient buildings, i. 363.
Rere-arches, i. 281 et seq.
Reredos, Westminster Abbey, i. 181.
Restoration of ancient buildings, i. 363-365;
in the days of Canute, ii. 35.
“Revival of Letters,” ii. 293.
Revival, works of the, merit of, i. 2;
of mediæval architecture, 3;
of styles, 208, 340, 346;
traditional phase in the, 346;
to be distinctly English, 351.
Rheims, St. Remi, i. 103.
Rheims Cathedral, i. 18, 21, 141, 326;
apsidal columns, 155;
sculpture at, ii. 312.
Rhineland, i. 45.
Ribs, groin, i. 59, 238, 246, 274, 344;
introduction of diagonal, 239.
Ribs in vaulting, ii. 80, 177, 191-193, 207-209, 192, 193, 207, 216, 217.
Richard Cœur de Lion, tomb of, ii. 275.
Richard le Bon, ii. 67.
Ridel, Bishop, i. 111.
Rims; see Orders.
Ripon Cathedral, i. 200;
Roger’s Choir, 109;
capitals, 123;
St. Wilfrid’s church at, ii. 31;
{342}crypt, 32.
Rivaulx Abbey, i. 122, 201, 286.
Roche Abbey, i. 109.
Rochester Cathedral, ii. 27, 29, 116;
triforium of, 66;
Gundulph, bishop of, 116;
Castle, 116;
Keep at, 135.
Roger, Bishop, i. 108, 109, 120.
Rollo, i. 44.
Roman brick, ii. 37, 40, 41, 44, 52;
at St. Alban’s, 75;
from Verulam, 97;
and tiles, 102.
Roman, construction, i. 219;
old, manner of building, ii. 5, 9, 35;
vaulting, 156;
baths, 180;
in Britain,  13;
Pharos, Castle-hill, Dover, 43;
architecture, 137, 138, 145.
Romane; see Romanesque.
Romanesque, i. 13;
in France and Germany, 15,  33;
ii.  7;
cathedrals of Germany, i.  43;
refined variety of, 44;
leading characteristics, 48;
religious to  the  utmost  extreme,  49;
ornamentation,    70,    81;
Pointed Gothic but an advanced stage of, 50;
vaulted churches, 51;
refinement of, 70;
Corinthianesque style of foliage, 77;
crypt at St.  Denis, 80;
transepts at Tournay, 90;
English, 104, 337;
transition from, 123;
windows, 159,  161;
builders, 221;
cathedral bay, 243;
of Southern Europe, 254, 337;
in Normandy, 327;
manner of building, ii. 6;
primitive, 11;
of the North of France, 62, 63, 64;
style, 73,  75;
elements of,  75;
perfect varieties,  82;
abacus,    94;
arch-mouldings, 142;
early,  306;
of the eleventh and twelfth centuries, 308.
Romano-British reminiscences, ii. 60.
Romans, vaulting used by the, i. 52, 57;
their pointed arch, 66;
ii. 304;
architecture of the, i. 336;
ii. 303, 304;
want of refinement in the details of, 304;
greatly extended the capabilities of classic architecture, ibid.;
late buildings of the, in Syria, 305.
Rome, her arts and literature, i. 5;
early architecture of, 45;
early windows of, 250;
empire of, ii. 4, 297;
architecture of, 6;
St. Peter’s, 115, 253, 280-289;
St. Paul without the Walls, and St. John Lateran,  146;
Pantheon, i. 271;
ii. 231-234, 237, 244, 246, 253, 260, 262, 282, 283;
Temple of Minerva Medica, 234-236, 239, 246, 249,  259;
Temple of Vesta,  237;
Tomb of St. Constantia, 237, 238.
Romsey Minster, ii. 108.
Roof-plate, stone, i. 258.
Roofs, i. 19, 254, 274, 327;
timber of early basilicas, 51;
high pitch, 255;
timber, ii. 136.
Rosette, the, i. 248.
Rose-windows, ii. 218.
Rouen, i. 141;
doorways, western façade, 87.
Round arch, outward pressure of, i. 233.
Round-arched Gothic, i. 70;
ii.  5, 8, 134,  178;
vaulting,  153-168,  191;
vaulting of oblong bays, 163;
vaulting with raised ridges, 171.
Rufus, King, ii. 107, 113, 117, 127.
Ruins, i. 31;
their decay, 32.
Runic ornamentation, i. 41.
Ruskin, Mr., i. 349;
on classic capitals, ii. 302.
Rye House, i. 314.

S
Sainte Chapelle, i. 183, 324;
capitals “à crochet,” 103;
vaulting of the crypt, ii. 204, 222.
Salisbury Cathedral, i. 18, 140;
ii. 311;
north porch, i. 167;
space between rere-arch and glass plane groined in some windows at, 283;
rere-arch windows, 286;
chapter-house, 288, 343;
ii. 184, 210;
cloisters, i. 343;
Lady Chapel, ii. 204, 222.
Salzenberg’s “Old Christian Architecture at Constantinople,” ii. 258.
Sangallo, drawings of, preserved in the Barberini library, ii. 236, 280.
Saracenic, traces of, in pointed architecture, i. 8, 9, 13, 133;
ornament used by Romanesque builders, 134.
Saracens, incursions, i. 40;
pointed arch of the, 67, 133;
Corinthian capital foreshadowed in works of the, 133.
Sassanians, Corinthian capital foreshadowed in works of the, i. 133.
Saxon, structures in England not unlike those of northern France, i. 41;
Switzerland, ibid.;
architecture, 42, 44.
Saxons, Pagan, ii. 3;
early efforts of the, 7;
invasion of the, into Britain, 9.
Saxony, i. 42.
Scandinavia, ii. 11, 62.
Schatzzimmer or treasury, valuables found in German churches, i. 328.
{343}Science, modern, in works, i. 271.
Scind, European engineers in, i. 237.
Scotia, i. 152.
Scotland, the transition in, i. 341;
early buildings in, ii. 12, 13, 21, 24.
Scott, Sir Gilbert, his love of Gothic architecture absolutely spontaneous, ii. 316;
some account of personal reminiscences of the Gothic renaissance, 317-328.
Scott, Sir Walter, ii. 316.
Sculpture, i. 34, 50, 142, 148, 274;
ii. 291, 297, 325;
figure, i. 22, 327;
foliated, 25, 339;
in doorways, 258;
Greek, 336, 356;
drawing from, 339;
animal, 357;
pre-Norman, ii. 60.
Sebert, King of Essex, ii. 114.
Selby Abbey, i. 109;
ii. 126;
choir aisles, i. 287.
Selsey, ancient see of, ii. 123.
Senlis, Cathedral and Church at, i. 326.
Sens, William of, i. 85, 112, 113, 117.
Sens Cathedral, i. 95, 326;
description of, 96;
capitals, 97, 102, 113;
compared with St. Cross, 125;
use of the pointed arch in the vaulting, ii. 181.
Sergius and Bacchus, SS., at Constantinople, ii. 248, 259.
Seventeenth century domestic work, i. 340.
Sexpartite vaulting, i. 63;
ii. 196.
Shafts, use of, i. 49;
full-length figures attached to, 80, 87;
subsidiary, 149.
Sherborne Minster, ii. 220.
Shingle, i. 256.
Shoreham, i. 202.
Shrines, i. 327;
jewelled, at Marburg, 329.
Sibald, St., at Nuremburg, western façade, i. 129.
Sicily, Corinthianesque type in the capitals of the Moors in, i. 84;
architecture of, ii. 8.
Sienna, cathedral at, ii. 263.
Silver-work, i. 345.
Sistine Chapel, ii. 173.
Sixteenth century domestic work, i. 340.
Skelton, chapel at, i. 21.
Skelton Church, i. 200.
Sketching, i. 31, 32, 339;
advice for, 301, 318, 329, 330, 333, 345.
Smirke, Mr., ii. 1, 290, 314;
on the classic revival, 316.
Soissons, i. 326.
Sompting, Essex, tower at, ii. 53.
Sophia, St., Constantinople, i. 273;
ii. 244, 246, 260, 264-266, 282.
Souillac, pointed domes at, ii. 273.
Southwark, St. Saviour’s, i. 171, 314;
ii. 324;
clerestory vaulting, 187;
Lady Chapel, 205;
choir, ibid.
Southwell, choir and chapter house, i. 199, 343.
Spain, ii. 8.
Spalatro, Diocletian’s palace at, ii. 237.
Spanish architecture, i. 330.
Spire Cathedral, i. 43.
Stained glass, i. 34, 147, 251, 297, 327, 357;
ii. 325.
Stair-turrets, octagonal, at Ely, ii. 113;
Norman, at Christchurch, 131.
Stalls, chancel, i. 327.
Stamford, St. Leonard’s Priory, ii. 151.
Stamford, St. Mary’s and All Saints, i. 194.
Steeples, typical, on the Rhine, ii. 53.
Stephano, San, at Bologna, ii. 262.
Stephen’s, St., at Caen, ii. 64;
first abbot of, 65;
gallery to transepts, 66;
apsidal chapel on the triforium level, ibid.;
choir, ibid.;
western towers, ibid.;
piers, ibid.;
vaulting to the nave, 67;
bases, 72;
plan, 96;
transepts doubly aisled, 105;
capitals, 120;
crypt, 157.
Stephen’s, St., at Nevers, ii. 89.
Stephen’s, St., at Perigueux, ii. 273.
Stephen’s, St., Westminster, i. 183, 343;
crypt, ii 212, 216;
cloisters, 220.
Stilting, in vaulting, i. 57;
ii. 163-165, 172;
to narrow arches of oblong groining, i. 65, 242;
to semicircles, ii. 179.
Stone church near Gravesend, i. 188, 314;
windows, 283.
Stone, houses, i. 21;
carving, 22;
slate, 256.
Stonehenge, ii. 9.
Stow, Lincolnshire, church at, ii. 50.
Strasbourg Cathedral, i. 18.
String-courses, Anglo-Saxon, ii. 38, 45, 52.
Styles, choice of, or preference for, different mediæval, i. 340, 346.
Stylites, St. Simeon, dome erected over the pillar of, ii. 305.
Sugar, Abbot, of St. Denis, i. 77, 105, 128, 129.
Sweyn, King, destructions of, ii. 28, 34, 54, 58, 67, 114.
{344}Symeon, Abbot, his work at Ely, ii. 108.
Syria, Central, ruined cities of, i. 336;
Byzantine remains in, ii. 141, 305.
Syria, old architecture of, ii. 305.

T
Tapestry, i. 22, 204, 271, 329.
Tavistock Place, specimen of the untutored house-builder, ii. 315.
Temple area at Jerusalem, double gate and golden gate of, ii. 243.
Temple Balsal, i. 183, 287.
Temple Church, London, i. 119, 174, 202, 286;
ii. 324;
circular aisle, 184, 205.
Temples, sources of nearly all forms of architecture, i. 9;
character of interiors, 26;
our own form of church the direct inheritance from the earliest, 338;
ii. 237, 238;
the dome as the central point of Christian temples, 245.
Tenth century, i. 47.
Tesselated pavements at Florence, ii. 262.
Teutonic tribes, ii. 5.
Tewkesbury Abbey, i. 90; ii. 122;
central tower, 107, 122, 135.
Texier and Pullans “Byzantine Architecture,” ii. 258.
Thatch, i. 256.
Thebaid, deserts of, ii. 20.
Theodoric, structures erected by, i. 39.
Theotokos, church of the Holy, Constantinople, ii. 257.
Thirteenth century, i. 6, 47;
rigour of the system of vaulting in the, 64;
magnificent capitals in French work of the, 85, 137;
work in England, 139;
work in France, 140, 204, 322, 323, 349;
work in Germany, 141, 204;
principles of design with reference to ultimate intention strongly marked in French works of the, 247.
Through-arch windows, i. 282.
Tigris, banks of the, part source of our civilisation and art, ii. 296, 298.
Tiles, plain, i. 256.
Timber, street fronts, i. 21;
roofs, 22, 55;
work, 345;
roofs, seating, and screens of Norfolk and Suffolk, 300;
building of the Pagan tribes in Britain, ii. 9;
in pre-Norman England, 26;
temporary church of, at York, 29;
imitation construction in Anglo-Saxon work, 36, 38, 58;
chapel at Greensted, Essex, 56.
Tintern Abbey, i. 140, 164, 286, 433;
chapter-house, 285.
Tithe-barns, i. 21.
Tivoli, Temple of Vesta at, ii. 237.
Tomaso, San, at Lymine, near Bajamo, ii. 262.
Tombs, rock-cut, of Egypt, ii. 297;
at Beni Hassan, 298.
Toothed ornament, i. 248;
ii. 151.
Torcello, church at, ii. 306.
Torre dei Schiavi, dome of the, ii. 237.
Torrigiano, work of, at Westminster, i. 312.
Torus, i. 151.
Touloun, mosque of, at Cairo, ii. 144.
Tournay, transepts at, i. 90.
Tours, tracery at, i. 162.
Tower of London, chapel of St. John, i. 313;
ii. 88, 93, 116, 120, 130, 135, 162, 324;
semi-dome of, 277;
apsidal aisle, 165, 183.
Towers and spires of Lincolnshire and Northamptonshire, i. 300.
Towers, round, of Ireland, ii. 25;
in Anglo-Saxon work, 37, 38, 40-49, 58;
between Lincoln and the Humber, 72.
Town-halls, i. 21, 260.
Trabeated architecture, i. 18, 45, 46, 274;
ii. 5, 73, 136, 138, 140, 303;
difficulty of carrying out, on a large scale, i. 222;
in its truest form, 263.
Tracery, plate, i. 161;
bar, 162;
in parapets, 258;
window, 276, 282, 342, 353;
ii. 142.
Transitional style, i. 69;
first developed in the Royal domain of France, 73;
English, 70, 75, 103, 134, 247, 337, 341;
German, 75, 128, 134;
Italian, 75;
French, 75-103, 134;
characteristics of English and French works of the, compared, 123, 127;
in Wales and Scotland, 341;
a second English, 342;
its study, ibid.;
early, 347;
at Ely, ii. 113;
Canterbury, 197;
Lincoln, ibid.;
St. David’s, ibid.;
church of La Citè at Perigueux agreeing with our own, 273.
Transverse, ribs, ii. 182, 191;
arches, Henry VII.’s Chapel, 224.
Treasures, at Cologne, i. 328;
at Marburg, 329.
Triangular heads to doors and windows in Anglo-Saxon work, ii. 37.
Triforium, i. 56, 90;
openings in the, 161;
at St. Stephen’s, Caen, ii. 66;
in Norman work, 87;
{345}at Norwich, 118;
Gloucester, 121;
gallery of churches, 152.
Trophimus, St., at Arles, i. 99, 229.
Trumpington, Abbot William de, i. 185.
Tudor style of window tracery, i. 277.
Tufa used in early vaulting for the continuous arched surface, ii. 191.
Tuille, Limosin, church at, i. 123.
Turgot, Prior, ii. 126.
Tuscan order, ii. 10.
Twelfth century, efforts to correct construction and refine decoration in the, i. 233; ii. 8;
principles of design with reference to the ultimate intention strongly marked in French works of the, i. 247;
St. Cormac’s Chapel at Cashel erected in the, ii. 23;
artists of the, 178.
Tympanum at Amiens, i. 166.
Tynemouth Abbey, i. 120;
eastern part, 284;
ii. 197.

V
Valence, William de, effigy of, i. 180, 311.
Vandalism, modern, i. 35.
Vaulting, groined, i. 46;
ii. 79, 136, 149, 153, 157, 160, 228;
where avoided, i. 47;
thickness of wall to resist thrust of, 49;
endeavour to perfect the system of, 51;
comprising two bays of nave, common in German round-arched churches, 62;
sexpartite, ibid.;
ii. 196;
introduction of the pointed arch into, i. 64, 76, 77;
ii. 180;
perfected, i. 147;
ribbed, rationale of, 238, 246, 274, 344;
to the nave of St. Stephen’s, Caen, ii. 67;
Norman, 79, 87;
round-arched, 153, 168, 171, 191;
of the polygon, 162, 172;
of oblong spaces, 163, 177, 205;
of aisles passing round a polygonal figure, 164;
a circular building with a central pillar, 166, 184;
a polygon with a central pillar, 168;
stilting, 163-165, 172, 183, 205;
moulded ribs to the intersections of, 175;
with raised ridges, 171, 176, 186, 218;
with level ridges, 177, 183, 186, 209;
the dome, 168-170;
new form of, 171;
over wide spaces, 180;
triangular spaces, 175;
irregular spaces, ibid.;
stilting the wall-ribs in, 187;
spaces, surfaces of, 187, 195, 269;
octopartite, 196;
quinquepartite, 197;
decapartite, ibid.;
dodecapartite, ibid.;
of two chapels near the west end, Lincoln, 198;
of the crypt, Glasgow, 200;
choir, Lincoln, 202;
chapter-house, Lichfield, 203;
octagonal kitchen, Durham, ibid.;
Caudebec, Lady Chapel, hexagon with pendant, ibid.;
Lady Chapel, Salisbury, 204;
presbytery, Ely, 209,
bays, west of the crossing, Westminster Abbey, ibid.;
chapter-house and Lady Chapel, Chester, 210;
chapter-house, Wells, ibid.;
Exeter Cathedral, 211;
cloisters, Westminster Abbey, ibid.;
Liernes, 182, 211-213;
Ely Cathedral, 212;
Nantwich Church, ibid.;
nave, Westminster, ibid.;
Crosby Hall and Eltham Palace, 213;
choir, Gloucester, 214;
nave, Winchester, ibid.;
half-height plans of, 216;
fan, see Fan-vaulting.
Vaulting-ribs, development of, ii. 191-193, 209;
to set out, 192, 193;
determining the plans of abaci, 207;
repetition of the same curve for the, 216;
a curve of two centres for, ibid.;
in fan-vaulting, 217.
Vaults, i. 19, 47;
barrel, 51;
ii. 153;
groined, i. 49, 52, 53, 58, 238, 240, 241;
ii. 79, 149, 153, 157-160, 305;
square groined, i. 240;
in early Irish remains, ii. 14, 21;
wagon, 87, 89, 93;
over wide spaces, 180;
irregular spaces, ibid.;
demi-vaults at Gloucester, 121;
rendered ornamental, 138;
Angevine, 171;
“domed up,” 187.
Venice, St. Mark’s, i. 44, 82, 180, 337;
western portals at, ii. 144, 257, 264, 271, 273, 278, 285, 306.
Venice, Ducal palace, i. 266.
Verona, church of St. Zeno, i. 44.
Verulam, i. 184;
ii. 95;
stones and tiles from, 96;
Roman tiles from, 97.
Vesta, temple of, at Rome and Tivoli, ii. 237.
Vezelay, Romanesque vaulting of, i. 63;
abbey of, 327.
Via Nomentana, Rome, tomb in the, ii. 243.
Via Prænestina, Torre dei Schiavi in the, ii. 237.
Viollet le Duc, ii. 198.
Vitale, San, church of, ii. 259.
Vitruvius, ii. 10, 237;
respecting the Etruscan temples, 301.
Vogüé, Count de, i. 336;
ii. 7, 305.
Voluted capital, ii. 302.
{346}Vortigern, ii. 13.

W
Wagon-head vaults, i. 238;
ii. 87;
at St. Stephen’s, Nevers, 89;
Tower Chapel, 93.
Wales, the transition in, i. 341.
Walkelin de Ferres, i. 14, 120.
Walkelyn, Bishop, ii. 104.
Walpole, Horace, ii. 316.
Walsingham, Alan de, work of, i. 276.
Waltham Abbey, i. 31, 314;
roof of, ii. 100, 120, 124, 126.
Waltham Cross, i. 189, 314.
Waltheof, ii. 59.
Walton, West, detached tower, i. 194.
Warehouses of Germany, i. 21.
Warmington Church, i. 193.
Wells Cathedral, i. 22, 140;
sculpture at, 202;
façade, 165, 187;
north porch, 167;
bishop’s palace, 287;
group of colonnettes at, ii. 148;
choir, 216;
chapter-house, 210.
Welsh groins, ii. 173, 199, 214.
Western Empire, architecture of, i. 11;
civilisation and arts, ii. 6, 296.
Western Europe, churches of, i. 51;
thirteenth century work in, 137;
buildings of, in the twelfth century, ii. 7;
carved ornamentation of, 8;
architecture of, in A.D. 1000, 62.
Westminster Abbey, i. 31, 140, 174, 273, 286, 351;
ii. 35, 189, 311;
bar-tracery, i. 163;
geometrical system of tracery, 276;
window-glazing, 252;
soffit of rere-arch richly panelled, 283;
eastern portions, 343;
chapter-house, 177, 287;
work of Edward the Confessor, 209;
St. Catharine’s Chapel, 310;
study of, ibid.;
works of Henry III. and Edward I. ibid.;
sculpture, 311;
Henry VII.’s Chapel, Torrigiano’s work, 312;
enamel and mosaic work, retabulum of the altar, iron and bronze work, 312;
church refounded by King Edward, ii. 68;
description of, by contemporary writers, ibid., 69;
by a writer in the thirteenth century, 70;
bases found under the altar space of Edward the Confessor’s church, 72;
capitals in the Confessor’s buildings, 85;
aisle of apse, 183;
chapter-house vaulting, 184, 185, 200, 205;
clerestory vaulting, 187;
bosses, 195;
Chapel of St. Faith, 197, 207;
vaulting of the eastern part of, 205;
bayswest of the crossing, 209;
cloisters, 211, 216;
Henry VII.’s Chapel, 220-227, 311.
Westminster Hall, i. 314; ii. 324.
Whitby Abbey, i. 201;
rere-arch windows, 286.
Wilfrid, St., ii. 31, 99.
Willis, Professor, on vaulting, i. 344;
ii. 156, 202, 217, 219;
history of Canterbury Cathedral, 28, 66;
St. Stephen’s at Caen, 66;
York, 103.
Winchelsea, choir at, i. 343.
Winchester Cathedral, i. 202;
ii. 103, 115, 128;
eastern chapels, i. 127, 144, 286;
as rebuilt in the reign of Edgar, ii. 33;
gallery across transepts, 66;
capitals in the crypt, 85;
transepts, aisles of, 89, 105;
piers of transepts, 105;
capitals, arch-orders, windows, etc., 106;
triforium piers, ibid.;
central tower, 107;
crypt, ibid.;
nave, 108, 214;
western portals, 216.
Window-glass, i. 19.
Windows, i. 19, 256, 257, 274, 276;
ii. 136;
clerestory, i. 51;
determined by vaulting, 63;
pointed arch used for, 66;
leading architectural features, 147, 158;
traceried and mullioned, 160, 162;
circular, 161;
Italian, French, and German, 206;
system of constructing, 228, 250, 277;
in secular buildings, 263;
reason why so little used in Romanesque work, 250;
so much used in developed Gothic, 251;
Early English, grouping of, in domestic buildings, 251;
introduction of mullions into, 252;
arches of, their filling in, 253;
arched form not binding, ibid.;
splayed inside and out, 278;
splay mainly internal, 278, 282;
in Norman transitional work and Early English, 279;
rere-arch, 281;
in early Irish remains, ii. 22;
in round towers, 25;
in Anglo-Saxon work, 37, 42, 43, 47;
belfry, 38, 52;
wooden lintels to, 43;
development of, 80, 81, 151;
in church on the Castle-hill, Dover, 81;
domestic, ibid.;
at St. Alban’s, 102;
traceried, 142, 152.
Windsor, St. George’s Chapel, ii. 220.
Wolstan, St., ii. 59, 122.
Wolstan, Winchester Cathedral described by, ii. 34.
Wood-carving, i. 22, 299.
Worcester, lost hall at, i. 343.
Worcester Cathedral, i. 202;
ii. 122;
{347}crypt and chapter-house, 122, 167, 218.
World, coming to an end of, in A.D. 1000, ii. 62.
Worms, domical church at, ii. 277.
Worth, church at, Sussex, ii. 19, 38, 44.
Wren, Sir Christopher, ii. 284, 285.
Wykeham, work of, i. 277;
at Winchester, ii. 108.

X
Xanten, western façade at, i. 129.
Xerxes, hall of, i. 18.

Y
York Cathedral, i. 18, 21, 139, 288;
ii. 99;
north transept windows, i. 160;
cornices, 165;
transept, 200, 286;
crypt under choir, 231;
chapter-house, 343;
ii. 199;
vaulting under central tower, 199.
York, Archbishop’s Palace, i. 109.
York, St. Mary’s Abbey, i. 108, 140, 164, 200, 288;
ii. 147;
square abacus, i. 303, 343.
Yprès, hall at, i. 26, 262, 266.

Z
Zeno, St., church of, at Verona, i. 44.
Zeus, ii. 301.
Zinzig, church at, i. 129.

THE END.

Printed by R. & R. Clark, Edinburgh.

FOOTNOTES:

[1] For an illustration, see Lecture IX. vol. i. p. 336, Fig. 192.

[2] I beg again to refer to the admirable article on this phase of architecture, which Mr. Freeman terms Primitive Romanesque, in the fifth volume of his Norman Conquest. (G. G. S. 1878.)

[3] For illustration see “Digression concerning Windows,” inserted between Lectures VII. and VIII. Fig. 157.

[4] I must apologise for this term. I know the best judges pronounce it wrong; but I really am ignorant as to what other will express the same meaning. (G. G. S. 1878.)

[5] See Worth Church, p. 44, Figs. 216, 217.

[6] See “Digression concerning Windows,” inserted between Lectures VII. and VIII., vol. i., fig. 156.

[7] The original church at Lyminge, which is said to have been built by the sister of Eadbald, is known only by its foundations. It seems to have had three eastern and one western apse. It is well worthy of careful attention. It seems to have been erected on the site of a large Roman Villa. (G. G. S. 1878.)

[8] This tower has since been removed, which I cannot but regret, and a stone one added east of the transept. During the repairs very curious windows have been discovered at a high level, divided into separate lights by a massive baluster roughly wrought instead of being turned. (G. G. S. 1878.)

[9] These are now in the Architectural Museum.

[10] A considerable diversity of opinion has existed as to the date of this church, some thinking it to be of the tenth century, but others, including Mr. Freeman, identifying it with one mentioned by William of Malmesbury of a far earlier date. (G. G. S. 1878.)

[11] This, like that at Monk Wearmouth, has been proved to be a Saxon addition to a Saxon church. (G. G. S. 1878).

[12] This tower has been found to have beneath its floor a stratum of ashes, the relics of Sweyn’s incendiarism. (G. G. S. 1878).

[13] Throughout the north they are very frequent; five of them are built into the walls of Kirkdale church. I have found very many; and Canon Greenwell has collected many in the old Refectory at Durham, among numerous other remarkable relics of the same periods. (G. G. S. 1878).

[14] I have already mentioned one specimen I know; that in the ancient chapter-house at Jumièges. (G. G. S. 1878.)

[15] For plan, see Lecture XII., page 98, Fig. 250.

[16] This was founded by Judith, the grandmother of the Conqueror, and its most remarkable feature is the use of domical vaulting in its aisles. (G. G. S. 1878.)

[17] The word translated “aisle” is, in the life of the Confessor as published by the Master of the Rolls given as “abitus;” but, on examining the original in the British Museum with the aid of the experts there, I find a mark of abbreviation making it really “ambitus.” (G. G. S. 1878.)

[18] See Lecture II., vol. i. page 48.

[19] e.g. Such windows as those of the Church on the Castle-hill at Dover, where the glass was nearly in the middle of the thickness of the wall, both sides being splayed at an angle of 45 degrees. (G. G. S. 1878).

[20] See Italian, French, German, and English domestic windows, Lecture V., vol. i., pages 206-209.

[21] See capitals from Caen and Lincoln, Lecture XII. p. 96, Figs. 248, 249.

[22] See Lecture XII., page 108, Fig. 257.

[23] For illustration, see Lecture X. page 23, Figs. 201, 202.

[24] For illustration, see Lecture XII. Figs. 242, 243, 244.

[25] This seems to be the general opinion, but is by some doubted; and I do not know that it is capable of proof. (G. G. S. 1878.)

[26] For illustrations, see Lecture X., Figs. 213, 220.

[27] The lower storey of a tower towards the north-east and some parts of the crypt are exceptions. (G. G. S. 1878.)

[28] He built also the small keep of St. Leonard near Mailing. (G. G. S. 1878.)

[29] See Lecture XIV., pp. 167, 168, Figs. 331, 332.

[30] See Lecture XIV., p. 167, Fig. 330.

[31] I have, in a paper recently read before the Archæological Institute, shown that it is improbable that any part of the work of Losinga of Hereford now exists, and that the work there is by his successors. (G. G. S. 1878).

[32] My lectures were suspended during the next session owing to the removal of the academy to Burlington House, and this course was relinquished. (G. G. S. 1878.)

[33] I mean “British Architecture” in the sense of the architecture of the British Isles. (G. G. S. 1878).

[34] See Lecture X. page 49, Fig. 221.

[35] St. Mary’s Abbey, York, see Lecture III. vol. i. page 108.

[36] The same is the case with the south doorway of St. Joseph’s Chapel, (so called) at Glastonbury. (G. G. S. 1878.) See Lecture III., p. 115, Fig. 74.

[37] See view of Nave, Durham, Lecture XII. page 128, Fig. 170.

[38] See Crypt, Winchester, Lecture XII. page 108, Fig. 257.

[39] See views of Norwich and Durham, Lecture XII. pages 119, 128, Figs. 265, 270.

[40] See page 172.

[41] See Lecture XII., page 93.

[42] This seems to be missing one step. The exact parallel is between a barrel vault with semicircular apse and a barrel vault with polygonal apse. (G. G. S. 1878.)

[43] For plan and other illustrations of the Tower chapel, see Lecture XII., page 92.

[44] See page 185, Figs. 351, 352.

[45] See Lecture XIII., page 153, Fig. 313.

[46] Sens. Lecture III., page 94, Fig. 39.

[47] Canterbury. Lecture III., page 112, Fig. 69.

[48] St. Joseph’s Chapel, Glastonbury. Lecture III., page 116, Fig. 75.

[49] St. Cross. Lecture III., page 124, Fig. 86.

[50] St. David’s. Lecture III., page 117, Fig. 76.

[51] Temple Church, Circular Aisle. See Lecture III. page 119, Fig. 79.

[52] See Lecture III., page 124, Fig. 86.

[53] See Lecture III., page 116, Fig. 75.

[54] The English system is not constant, even in early examples, and was discontinued at later dates. (G. G. S. 1878.)

[55] There is a fine example of this in the Treasury of Canterbury Cathedral. (G. G. S. 1878.)

[56] See page 206, Figs. 379, 380.

[57] See Lecture III., Fig. 81.

[58] See Lecture XIV., page 184, Fig. 353.

[59] For illustration, see Lecture IV., Fig. 97.

[60] See Lecture XIV., p. 167, Fig. 330.

[62] This, I think, is known to have been the case, and that it was taken down for the sake of reusing the material in St. Peter’s. (G. G. S. 1878).

[63] These excrescent structures are now obliterated, and are chiefly known by drawings of the fifteenth century by Sangallo, preserved in the Barberéni Library. (G. G. S. 1878.)

[65] A large part of these were renewed in the fifteenth or sixteenth century. (G. G. S. 1878.)

[68] See a very interesting paper by Mr. Street, R.A., in the Transactions of the Institute of British Architects. (G. G. S. 1878.)

[69] See Lecture XII., page 93, Fig. 243.

[70] See Figs. 441 and 453.

[71] See Design for Central Hall, Law Courts, London (Frontispiece), and Design for Central Dome, Houses of Parliament, Berlin.

[72] I need hardly say that the Architectural Museum affords unrivalled facilities for the study of Mediæval carved work. (G. G. S. 1878.)