THE DWELLING HOUSE
By the same Author.
Second Edition. With 6 Illustrations. Crown 8vo. 6s. 6d.
ESSAYS ON RURAL HYGIENE.
'A highly important book. The whole book is an education in itself. It is a volume to be read and re-read equally by householders and by professional sanitarians. Our only regret is that amid the flood of hygienic literature which is year by year turned loose upon the world, there are so few books of this type—fearless, honest, and scientific criticisms of existing errors, and full, likewise, of recommendations whereby these errors may be rectified.'—Glasgow Herald.
LONGMANS, GREEN, & CO., 39 Paternoster Row, London
New York and Bombay.
THE DWELLING HOUSE
BY GEORGE VIVIAN POORE, M.D., F.R.C.P.
Physician to University College Hospital
Fellow of the Sanitary Institute
Member of the Permanent Committee of the International Congress of Hygiene
and Demography
Honorary Member of the Hungarian Society of Public Health, &c.
Author of 'Essays on Rural Hygiene'
WITH THIRTY-SIX ILLUSTRATIONS
LONGMANS, GREEN, AND CO.
39 PATERNOSTER ROW, LONDON
NEW YORK AND BOMBAY
1897
All rights reserved
PREFACE
This work is intended not merely to point out certain common defects in the Dwelling House, and to show how evils more or less necessary in towns may be avoided in the country, but to call attention to the fact that our modern methods of sanitation, and the heavy taxation of the dwelling, inevitably increase overcrowding, and the moral and physical ills which follow in its train.
An attempt is made to review the great subject of the disposal of house refuse in its political and scientific aspects, rather than from the point of view of the tradesman or patentee.
The greater part of the ensuing chapters has been previously published. Addresses delivered before the Royal Institution of Great Britain, the London Institution, the Sanitary Institute, and the Medico-Chirurgical Society of Nottingham, together with short papers communicated to the British Medical Association, the British Institute of Public Health, and the 'Practitioner,' have been incorporated with the text.
The author is greatly indebted to his friend, Mr. Thomas W. Cutler, F.R.I.B.A., for much valuable advice and assistance in the preparation of some of the illustrations; and he is similarly indebted to Mr. Arthur Blomfield-Jackson and the editors of the 'Lancet' and 'Practitioner.'
For permission to use the diagram illustrating the Model By-Laws of the Local Government Board (p. 109) the thanks of the author are due to Messrs. Knight & Co.
From Mr. George Pernet, B.A., M.R.C.S. &c., the author has received much assistance and many valuable suggestions during the passage of the work through the press.
32 Wimpole Street,
July 1897
CONTENTS
| CHAPTER | PAGE | |
| I. | Defects in Planning | 1 |
| II. | The Sanitation of the Isolated Dwelling | 32 |
| III. | Slop-water | 69 |
| IV. | Overcrowding: Its Causes and Effects | 90 |
| V. | The Circulation of Organic Matter | 125 |
| VI. | The Soil in its Relation to Disease and Sanitation | 152 |
LIST OF ILLUSTRATIONS
| FIG. | PAGE | ||
| 1. | } | ||
| 2. | } | Typical London House | 4, 5 |
| 3. | } | ||
| 4. | } | Combined Staircase and Ventilated Lobby | 10, 11 |
| 5. | } | ||
| 6. | House with Staircase forming Ventilated Cut-off from Kitchen and Lavatory, &c. | 12 | |
| 7. | Bungalow facing South | 14 | |
| 8. | Convalescent Home | 16 | |
| 9. | Stove with Air-inlet Underneath | 17 | |
| 10. | Ventilating Panel in Door | 17 | |
| 11. | Bedroom Window | 22 | |
| 12. | } | Cellar Window | 29 |
| 13. | } | ||
| 14. | Andover Houses and Garden | 35 | |
| 15. | Garden at Andover | 38 | |
| 16. | Section of 'Dry-Catch' Privy | 40 | |
| 17. | Earth-closet with Ventilated Lobby | 46 | |
| 18. | Section through Earth-closet and Dry Catch | 47 | |
| 19. | Section of Dry Closet Pan | 48 | |
| 20. | Urine Filter | 51 | |
| 21. | Dry Urinal | 57[x] | |
| 22. | Plan of Well, showing its relation to Paths and Hedge | 65 | |
| 23. | Section of Well, showing Concrete Lining and position of Pump | 65 | |
| 24. | Rustic Arch | 77 | |
| 25. | Use of Arch for getting Waste Water clear of House | 77 | |
| 26. | Filtration Gutter | 79 | |
| 27. | Filtration Gutter on Bank | 80 | |
| 28. | Kitchen Sink with Duplicated Outside Filter | 82 | |
| 29. | Arrangement for Small Tenements | 87 | |
| 30. | Section of Small Tenements | 88 | |
| 31. | Building Estate | 92 | |
| 32. | } | ||
| 33. | } | Illustrations of 'Model' By-Laws for Regulation of Buildings | 109 |
| 34. | } | ||
| 35. | Curves of Unmanured and Manured Barley Plots | 139 | |
| 36. | Map to Illustrate Marylebone Small-pox Outbreak | 145 |
THE DWELLING HOUSE
CHAPTER I
DEFECTS IN PLANNING
It is doubtful if there be anything which more affects the health of the individual than the house in which he lives.
Modern advances in bacteriology, and the certain knowledge of the way in which many diseases are carried through the air, have given additional importance to methods of house construction. The danger, for persons who are not immune, of being under the same roof with a case of whooping cough, measles, scarlatina, diphtheria, typhus, or smallpox has long been recognised; but it is only recently that our eyes have been opened as to similar dangers in relation to tuberculosis and pneumonia. Pneumonia has now for some years been occasionally spoken of as a 'house disease,' and the same term has recently—but whether on sufficient evidence is doubtful—been applied to cancer.
A careful study of the epidemic of influenza, which is showing singular vigour in the seventh year of its reappearance amongst us, has clearly shown that it is communicable through the air. And the way in which whole households go down with it when once it gains a footing in [2]a house, is an additional reason for reconsidering our methods of house-construction.
The main object to be kept in view in building a house is the supply of fresh air. Too much care cannot be taken to insure that all the channels of internal communication—hall, passages, staircases—have independent ventilation of their own. Unless there be the means of getting these internal channels blown out by through draughts, the house cannot be wholesome; and in the event of any of the air-borne contagia getting a footing in the house, the liability to spread is enormously increased.
Not only must these internal channels have air, but they must have light also. The dark passage, ending in a close cul-de-sac of bedroom doors, is one of the commonest features of the modern house, and is, of course, absolutely to be condemned.
When we encounter the smell of the kitchen in the corridors, this may be taken as sure evidence that the house is unwholesome, and that the internal channels of communication are as insufficiently ventilated as is the kitchen. The smell of fried bacon which oozes through the keyhole of your bedroom may be accompanied by all the infective potentialities of all the inmates of the house. This test, as applied to corridors, is analogous to the smoke test or oil of peppermint test as applied to drains, and is quite as important.
If the house be of several storeys, the ventilation of the staircase has an importance which bears a direct proportion to the height of the house. As a rule, in second-class, and, indeed, in many first-class houses, the ventilation and illumination of the staircase never trouble the mind of the builder or his architect. Starting from the front passage, the only light of which is from a closed fan-light over the door, the staircase oscillates between water-closet doors [3]and bedroom doors, getting darker and darker as it ascends. In the houses of artizans, every doctor must be familiar with the rancid whiff that comes up the absolutely dark stairs leading to the basement; the cold, damp smell of mildew and soot in the sacred front parlour, where the 'register' is closed and the blinds are drawn; and the variety of odours which assault his nose until he arrives at the carbolic sheet protecting the door of the room containing the case of infectious illness he has possibly come to see. Such houses are almost always let in lodgings, and contain several families; and if air-borne contagia ever gain admission to them, it can be no matter for surprise that they are difficult to dislodge.
The same defect of construction is seen in a very large number of London houses, even the smartest. The defect may be shortly spoken of as this:—'that the internal channels of communication, instead of serving for the supply of fresh air, merely facilitate the exchange of foul air.' This defect of construction is dangerous in proportion to the size of the building and the number of persons it contains.
The shafts for lifts necessarily require independent ventilation as much as the staircases. The monster hotels or towers of flats, from inattention to these details, are liable to be most unwholesome residences, and to be really dangerous if air-borne contagia gain access to them.
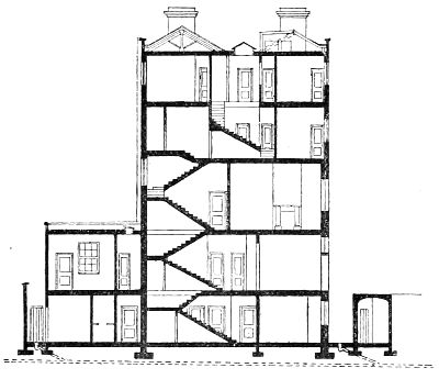
The Typical London House
Let us look at the ordinary London house of the better class. I have borrowed the plans which were given in the 'Lancet' for July 4, 1896. Figs. 1 and 2 show the plans of all the floors of the same house before (1) and after (2) certain alterations in the plumbing arrangements.[4] Fig. 3 is a section of the same house, kindly made for me by Mr. Thomas W. Cutler, F.R.I.B.A.
I have taken these plans for the sake of showing what are the common defects of the average better-class London house.
I do not wish to be understood as saying that these defects are, in London at least, remediable. That unfortunately is not the case. That they are defects which ought [5]to be avoided in places where land is less costly than in London is very evident.
1. The main defect is due to the fact that the cubic capacity of the house is far too great for the area upon which it is built. The house is, in fact, a tower of five storeys, 60 feet high from basement to roof, and containing 37,000 cubic feet, standing on an area of 1,512 square feet. A house of this shape entails enormous labour upon servants. It has been said, that in raising the body vertically we do an amount of work equal to moving the body twenty times the distance horizontally. The climb from basement to the top storey is therefore equal to walking 1,000 or 1,200 feet along the level, and when a footman weighing 11 stone, and carrying 28 pounds weight of coals, climbs from the coal-cellar to one of the top rooms, the work done is rather more than four foot-tons. I do not know when high-service water supplies became general in London houses, but it is evident that when the only water-supply was in the basement, the [6]inconvenience of these high houses must have been very great. Gas-pipes, hydraulic lifts, electric wires, speaking-tubes, and high water supply have so lessened the personal service required in these domestic towers, that they have become popular, and by increasing the overcrowding in our cities they now constitute a very serious sanitary danger. In America the houses with steel frames have been run up to a height of 250 feet and over, and have converted the streets into sunless, draughty cañons, in which locomotion is a matter of great difficulty, because the width of the street bears no due proportion to the cubic contents (and population) of the houses flanking it.
2. The house being flanked on either side by other houses, the front and back walls are alone available for admitting light and air, and the depth of the house is unduly great in proportion to its width. The noise of the neighbours is not always a trivial drawback.
3. One storey, and the largest, is below the street level, an arrangement which, from a sanitary point of view, is unjustifiable, and ought never to be imitated in the country.
4. There is no back door, which is a very serious defect in a house. The result is that the coals have to be got in, and the ashes and garbage to be got out, under the dining-room windows, and that while these tedious processes are in doing the traffic in the main street is very much impeded.
It is said that eels get used to skinning, and so the Londoner becomes very blind to the failings of the house which he inhabits.
The house of which the plan and sections are shown in the figures is not, be it observed, one of the dwellings of the poor, of which we hear so much, but one of the dwellings of the well-to-do, or even rich, fetching probably 350l. [7]a year rent. It would need four servants, one of whom would sleep below ground level in the pantry; and in addition to the servants, eight persons might squeeze into such a house.
The basement below ground level is really a cellar dwelling, against which we inveigh, when we find it in Whitechapel. It is very dark, and requires artificial light nearly every day in the year. A butler sleeps in a dingy 'pantry' among the tea-cups and other gear, which he possibly sorts upon his unmade bed before he lays the cloth for breakfast.
This basement (Fig. 2) contains four sinks and two closets, each with its trap, and in each of the three areas are trapped gullies so placed that any gases which escape from them are more likely than not to find their way into the house.
The only way into the kitchen is through the scullery. The scullery sink is turned away from the window, and the smell of cooking and of cabbage water must inevitably find its way into the basement. A water-closet has been wedged into the back area between the windows of the kitchen and the servants' hall; and the larder, while it is without adequate light or ventilation, has a trapped gully at its door to serve as a seed-bed for mould fungi which will infect the food.
There is only one staircase, and this must serve as a shaft for the culinary and other fumes of the basement to rise in. It is entirely without independent ventilation until the half-landing above the drawing-room is reached. In fig. 1 there is another staircase window on the second floor, but this, be it observed, has been blocked by a water-closet in the house, as altered by the plumbers. This is a very serious thing to have done, and, in my judgment, is not in any way compensated by the changes recommended. [8]The staircase has a skylight at the top, but skylights, being never opened in London because of 'the blacks,' are of very little use for ventilation. On the ground floor a water-closet abuts on the morning-room windows, while in the area beneath these windows is another water-closet, previously mentioned.
The first floor contains two fine drawing-rooms and a staircase window, and being without 'sanitary apparatus' is wholesome, except for the fumes which may ascend or descend the well-staircase. On this floor the light and decoration will render one oblivious of the basement. On the second floor the staircase window has been blocked, and there is an impossible bath-room, without adequate light or ventilation, which nothing can make wholesome, and which ought to be abolished absolutely. On the top floor the staircase ends in an unventilated cul-de-sac formed by four bedrooms, a dark 'box-room,' and a water-closet which is wedged in between two bedrooms.
This house has, if one may say so, been over-plumbered. There are five closets, five sinks, and a bath-waste (eleven trapped waste-pipes) for a maximum of twelve people. The closet on the second floor, and the one in the basement between the servants' hall and kitchen, should be abolished, and the fixed bath on the second floor should be removed. A bath-room wants light and air, and should always be against an outside wall. Persons should never take houses with extemporised bath-rooms poked in 'anywhere.'
In order to be fairly wholesome this house wants a fan-light over, or a glazed panel in, the front door, to serve the purpose of a window and ventilator, and a window over the W.C. between morning-room and study. In this way there will be the possibility of a through draught at the foot of the stairs. The staircase window on the second floor [9]should be re-opened, and a window put above the W.C. on the top floor (the W.C. need not be more than 7 feet 6 inches in height). In this way the main channel of internal communication will be ventilated, and should any of the sanitary fittings 'go wrong,' the emanations will be diluted, perhaps to safety point.
Now we may assume that the house we have been considering, with three rooms on the ground floor, would let for about 350l. per annum, and would be rated at 300l. The alterations in the plumbing arrangements, as shown in fig. 2, are estimated by the 'Lancet' experts to cost 618l., or, let us say, a sum equal to twice the rateable value, and which adds (calculating 10 per cent, for wear and tear) at least 60l. per annum to the cost of the house. The local rates for this house would amount to over 90l. per annum, and if we assume that one-third of this is for sewerage, we may say that the sanitation of the house costs 90l. per annum, a sum sufficient to pay for the transmission by Parcel Post of 1,800 packets, weighing 11 lbs. each. Leaving the question of the waste of fertilising material out of consideration, it is clear that sanitation by water is as extravagant as it is dangerous.
Ventilation of Corridors
In the suggestions which the Medical Committee has drawn up for the guidance of the architect in making plans for the extension and ultimate complete rebuilding of University College Hospital, the thorough ventilation of the staircases and corridors is insisted upon; and the building is to be so constructed that it will be impossible for air to drift from one floor to another, or from one ward to another, without first mixing with the outside air. [10]Builders of mansions and hotels would do well to keep the same principles of construction in view.
Another suggestion which has been made is to place the secondary staircases between the wards and the sanitary offices, so that the staircase-well forms a cut-off, with cross-ventilation between the ward on one side and the various sinks, closets, and baths on the other side. These secondary staircases are absolutely necessary in case of fire; and, by making them serve a double purpose, a considerable saving of space is effected. This arrangement is shown both in plan and section in figs. 4 and 5. It is very usual to place some of the ward offices on either side of the ward-approach, and others at the end of the ward. This is, in fact, the common arrangement; but, when adopted, it has the effect of making the ward-approach dark and gloomy, and of placing the ward between a double set of sanitary pipes, with the dangers inseparable [11]from them. It is, I believe, a sound principle of construction for private houses, as well as for hospitals, to place the sanitary and culinary offices of all kinds on one side of the staircase, and the living rooms on the other. If the staircase-well be properly ventilated, the risk of living and sleeping in an atmosphere of sewer air is thereby diminished.
Fig. 6 is a ground plan of an ordinary country or suburban dwelling house which offers a suggestion in this direction. It is the principle only which I wish to illustrate. If the principle be sound, the method of carrying it out will certainly be improved by the experience and cunning of the trained architect.
This figure shows the 'offices' to the left and the living-rooms to the right of the staircase. The staircase has through-and-through ventilation of its own. The passage leading to the sitting-rooms has also illumination and ventilation independent of the sitting-rooms. The W.C. has a lobby with independent ventilation, and the door leading to this lobby from the hall should be a spring door. It will be observed that the 'pantry' (the workroom of the man or maid whose duty it is to answer the door) is placed as near the door as possible, and that this pantry intervenes, so to say, between the kitchen and the entrance [12]hall. If the door between the pantry and hall, and the door between kitchen and pantry, be made to open in opposite directions and close with springs, no smell of cooking will be likely at any time to pervade the living-rooms.
Only the ground floor of this house is shown, so that it may be as well to state that, as regards the upper floor, all the bedrooms would be to the right of the staircase, while to the left, above the kitchen, &c., would be a second W.C., bath-room, housemaid's closet, and box-room. The principle of construction which it is wished to inculcate is this—that the culinary and sanitary offices should be quite distinct from the living-rooms, and be placed in an annex which should be separated from the living-house by a well-ventilated staircase. The living-house itself should not under any circumstances contain either water-tap or waste-pipe of any kind.
Aspect
In building a house, the point which requires more attention than any other is the aspect. This is too often neglected. In a climate like ours one may say that a house should receive its maximum amount of sun. If a house be well exposed to the sun there can be no doubt that the expense of keeping it warm will be considerably lessened. The best aspect for a house is generally conceded to be that which allows its chief rooms to look to the south-east. In this way the morning sun is enjoyed, and the rooms do not get the glare of the afternoon sun, which in July is apt to be intolerable. It may be advisable to build a house in the form of a veritable sun-trap. And it is quite possible so to build a modest residence that those who live in it may enjoy a maximum amount of sunshine and fresh air without exposure to cold winds.
The ground plan for such a house would have to be that of a right-angled triangle, with the apex pointing to the north (see fig. 7). The sun, even on the shortest day, would, if visible, shine into the angle for over seven hours continuously. In this re-entrant angle there would be complete protection from northerly and easterly winds; and if provided with a glass-covered verandah, it would be possible for even the most delicate invalids to enjoy in it a maximum amount of fresh air.
As only the truncated apex of the triangle faces due north, it is obvious that every side of this house would be bathed in sunlight for a considerable time every day.
The problem in such a house would be, not how to keep warm in the winter, but rather how to keep cool in July.
There are a few points in the ground plan of this 'bungalow facing south' which may be alluded to. Such a bungalow, if placed on the south side of a public road [14]running east and west, would require no long carriage-drive of its own. The front door might be quite close to the road (and there are many advantages on the score of economy, safety, and convenience, of such a position) without the privacy of the south side being lessened in any appreciable degree.
The absence of stairs means less fatigue for invalids and old people, and less danger for children. Provided the cost of land be reasonable, is there any advantage in having more than one storey to a house? The sanitary advantage of a large area for a house is very great indeed. In hospitals we now recognise that infinitely the most important element of the 'cubic space per bed' is the floor area, and that a deficient floor space is not to be compensated by giving great height to the wards. The same reasoning is applicable to a house; and there is this further advantage in giving a large area to a country house, that the greater the area of the roof, the greater is the amount [15]of rain-water which can be collected. Such a bungalow in our climate would certainly provide enough rain-water for all the needs of the inmates.
The shape of this house, with a minimum exposure to the north, is such that every room in it would receive a very thorough exposure to the sun.
A reference to the ground plan will show that on either side of the front door is a window, and that at the end of both the long passages is a big window, so that the channels of internal communication receive an ample supply of light and air, and can be swept by a through draught. The closets (and these should be 'dry-closets,' and not water-closets) are cut off from the main structure by a lobby having cross ventilation.
The pantry, the occupant of which usually does duty as hall-porter, is placed immediately between the front door and the side door, so that both doors can be guarded, so to say, at the same time and by the same person.
The kitchen is shut off by two doors, and both of these should be spring-doors, in order to make perfectly sure that the house shall not be invaded by a smell of cooking. The kitchen, nevertheless, is quite close to the dining-room.
The triangular space enclosed by the two sides would, there can be no doubt, need planting with a few deciduous trees and creepers, in order that the shade afforded may undergo a progressive increase as the heat of summer reaches its maximum.
The disposition of the rooms shown is not intended to be more than tentative, and in practice it would certainly be found advisable to have at least one sitting-room with a northerly aspect.
The verandah, it is observed, is big and serviceable, the object of it being, not merely ornament, but to enable even a delicate person to live practically in the open air. The [16]rooms opening on to such a verandah must have big casement windows with low bottom sills, in order that chairs and tables may be lifted in and out with ease.
The size of the bungalow is greater than most families would require, but as the plan is merely intended to illustrate a principle this is of no consequence.
Fig. 8 shows an adaptation of the above plan, by Mr. Thomas W. Cutler, for a Convalescent Home in Epping Forest.
Warming
Fig. 9 represents an economical and wholesome way of warming the passages of a house. It is intended to represent a stove (any slow-combustion stove) with a fresh-air pipe of large calibre opening immediately beneath it. When the stove is lighted there is necessarily a large influx of fresh air, and the result is that the air in the passage is never 'close' or 'burnt.' It is important that the fresh-air pipe should be big, and that its gratings should be easily removable for cleaning.
If the hall and passages be warmed in this way it becomes possible to ventilate the rooms from the passages in the depth of winter. Fig. 10 represents one of the top panels of a door converted into a louvre ventilator, with the object of ventilating a room from the passages. A ventilator of this kind, if provided with side-pieces, delivers its air nearly vertically, and admits a large volume of air without causing draught.
Draughts may be defined as currents of air rushing in at the wrong place through channels which have insufficient area. The only way to cure draughts is to place inlets of sufficient area in proper positions. When building a house one might, of course, place louvre ventilators in the walls between room and passage at a height of 6 ft. 6 in. above the floor. The alteration of a door panel into a ventilator costs only a shilling or two. In the writer's experience it is a most excellent way of ventilating a room, always provided that the air of the passages be wholesome.
Living-rooms
A few words may be said as to living-rooms. Most living-rooms in better-class houses are too high. This is probably due to the bad example of London. In London the height of a house is the only dimension in which there is, so to say, the least elasticity, and London architects have attempted to compensate by height for absolutely inadequate area.
The rooms of some of the learned societies at Burlington House, with a space of several feet between the top of the window and the ceiling, afford excellent illustrations of the point which is to be avoided. Windows should extend to within a few inches of the ceiling, and should open at the top. This is universally admitted. If the room be 12 feet or 13 feet high, and the windows go to the top, then the window becomes unmanageable from its weight, and the opening of the top, although theoretically possible, is seldom put in practice. The wholesomeness of a room depends very much upon the rapidity with which the air in it can be renewed—the facility, in short, with which one can give it a blow out. This depends upon the relation of window area to cubic capacity. Windows, again, should be so constructed that they can be easily manipulated by a child. The louvre window ventilator, such as is common in churches, will be found very valuable for the admission of a constant but relatively small supply of air. These ventilators were introduced by the late Professor John Marshall into his wards at University College Hospital, and with the very best results.
Relatively low rooms, with big mullioned windows going to within a few inches of the ceiling, are far more wholesome than lofty rooms in which the tops of the walls [19]are inaccessible to the housemaid, and the window sashes too weighty for her to move without difficulty.
For wholesomeness and comfort I believe a height of 10 feet is sufficient for any domestic living-room, and 9 feet for a bedroom. Provided the windows go to the top, and can be easily opened, it is very doubtful if there is any object, from the purely sanitary point of view, in having rooms more than 9 feet high. In rooms of such a height the cornice of the ceiling can be easily reached by a housemaid standing on a set of hand-steps, and the practical advantage of this is very great.
Our health is more in the hands of the housemaid than most of us are aware. Facility for cleaning should be ever in the mind of both builder and furnisher. The modern boudoir, hung with dabs of mediæval rags, and stuffed with furniture and nicknacks till it looks like a transplanted bit of Wardour Street, is often not very cleanly; and when the daylight is excluded to a maximum extent, lest fading should take place, and the sun's rays never have a chance of disinfecting the dust upon and behind the curios, it cannot be wholesome.
It may be remarked that some of the curtain hangings and chintzes which are now, or were lately, in vogue are dressed or printed with a material which gives them a peculiar 'fusty' smell, something like inferior hay. No room in which they are used can ever smell 'fresh,' and it must be remembered that the smell of 'freshness' due to the free admission of light and air is the best practical criterion of wholesomeness.
Hotel Bedrooms
For discomfort and unwholesomeness the average hotel bedroom is hard to beat. I have occupied, in a very smart [20]hotel, a bedroom which was 18 feet long, 13 feet high, and had a varying width from 10 feet at the window end to 8 feet at the door end (the room was wedge-shaped, owing to its being at the turn of a building which had a fine circular front facing towards two thoroughfares). The top of the window was at least 3 feet from the ceiling. The window was huge and unmanageable, and access to it blocked by a big dressing-table carrying a large looking-glass, which, in company with a once white (but now dingy yellow) roller-blind (which would not stop up) and absurdly heavy and costly (and dusty) valance and curtains, succeeded in keeping out most of the light which might otherwise have succeeded in getting through the murky atmosphere of a manufacturing town. The cubic capacity of this room was considerable (2,080 feet), but the 160 feet of floor-space was so occupied by bed, dressing-table, writing-table, wardrobe, chest of drawers, sponge-bath, fender, portmanteau stand, besides pedestal, two chairs and armchair, bidet, coal-scuttle, and boot-jack, that after having extinguished the light, which was at the farthest point from the bed, it was no easy matter to thread one's way back.
The planning and fitting of a room to serve in the best way possible the purpose for which it is intended is a problem to which architects have paid as yet but little attention. The house-builder might very well take a few hints from the ship-builder. On board ship space is economised to the utmost, and it is a matter of interest and wonder to observe how many luxuries one can have on board a well-planned ship, mainly by reason of the cleverly-designed fittings which economise space; and it is, further, a matter of interest to observe how the principle of 'a place for everything and everything in its place' lends itself to cleanliness and wholesomeness. The besetting sin of modern hospital architects is the giving of an extravagant excess of space [21]in places where it is not needed. Because one gives, let us say, 120 feet of floor-space to every patient, it does not follow that any sanitary object is gained by giving a single square inch more than is absolutely necessary for ward offices. On the contrary, ward offices should be kept as small as possible, so that the 'place for everything' doctrine must necessarily be followed. I have seen 'ward kitchens' for twenty patients, in which the only cooking done is the heating of a little milk or beef-tea over a gas-jet, which have been about three times as big as a P. & O. galley, in which a succession of banquets are daily prepared for one or two hundred persons. If ward offices be carefully planned, and be merely 'big enough,' with no excess of cubic capacity, not only will initial cost in construction be saved, but cleanliness will be facilitated and cost of maintenance and repair lessened.
So it is with hotel bedrooms. One lives in hopes of some day seeing a competition among hotels in making the rooms occupied by travellers as convenient and wholesome as possible. There can be no doubt that a 'single' bedroom 12 feet square and 9 feet high, containing 1,296 cubic feet, if properly planned, fitted, lighted, and ventilated, would be far more wholesome and convenient than the wedge-shaped apartment containing 2,080 cubic feet to which allusion has been made. Without entering into the whole question of bedroom fittings, one may say a few words as to that very necessary article of daily use, the looking-glass. The swing looking-glass, which continues to hold its own, and which, in spite of 'curses not loud but deep,' refuses to stop at any angle, surely ought to be abandoned now that looking-glass plate has become so inexpensive. Fig. 11 represents a bedroom window comprising a thoroughly illuminated long mirror, so that for toilet purposes the face and figure are easily inspected. The looking-glass is surrounded [22]by window, and the window itself is easily accessible, and is opened and shut with ease. All bedroom windows in tourists' hotels ought to have a balcony, in order that dusty clothing may be shaken in the open air. In hotels all heavy draperies, hangings, and carpets should be tabooed, and every effort should be made to give an appearance of elegance and luxury with a minimum amount of dust-retaining decoration. Hotels are like hospitals in this respect, that guests know nothing of the previous occupants [23]of their room, and it must often be that such ignorance is blissful. Convenience for the guests and facility in cleaning are the objects to be attained by designers and fitters of hotels.
Putrescible Fluids
Although I do not propose to enter into the details of the plumbing and sewerage arrangements, it is nevertheless necessary to touch upon certain broad questions. Wherever organic refuse is mixed with water putrefaction results, and certain gases are given off from putrefying liquids which are poisonous and hurtful to mankind. Every cook and housemaid is familiar with the fact that all vessels which serve as receptacles for putrescible liquids require the most careful cleansing, and need to be scrubbed and scoured, washed with hot water and soap and soda, and wiped dry. If this is not done they become foul, and rapidly cause the decomposition of any liquid containing organic matter which may be subsequently added.
The modern house drains into a sewer, which is necessarily always foul and filled with the gases of putrefaction. These gases are the result of microbial action. The sewage water is full of microbes, the gases of putrefaction are the gaseous 'toxins' (CO2, H2S, CH4, NH3, &c.) which result from their growth. The air of the sewer is necessarily harmful in itself, and the presence or absence of microbes in the sewer air is a matter of practically small importance. The house drains are necessarily foul as well as the sewers. We hear a great deal about 'self-cleansing' sewers, which shows how ignorant are the surveyors and others who use such terms. A glazed pipe, with a good gradient, may be less foul than a rough sewer with insufficient gradient, but you can no more have a 'self-cleansing' sewer than you can have a self-cleansing saucepan or chamber-vessel.
The foulest place in a house is the kitchen sink, with its vegetable and animal débris, such as cabbage-water, grease, &c. Sanitary engineers are trying to cleanse these places by automatic flushing with cold water, which, to say the least, is enterprising. A few years ago 'fat traps' were fashionable, but were soon found to be intolerable from their inexpressible foulness.
It must be remembered that wherever along a line of drainage you get stagnation there must be putrefaction, and it must be borne in mind that every 'trap' which is a contrivance for ensuring stagnation is necessarily a place where putrefaction is liable to take place. Traps may keep back the smell of the street sewer in house pipes, but it must never be forgotten that they are undesirable evils in themselves.
The efforts of modern sanitary engineers are directed towards ensuring that the gases which inevitably result from putrefaction in sewers and house-drains should be as much as possible diluted with external air before we breathe them. The sewer gratings in the streets give off foul gases at the pavement level, especially in the summer. The ventilating pipes give off foul gases at the roof level, close to the water cisterns. The traps beneath every W.C. and sink are all spots where putrefaction may and often does take place. The gullies in the front and back areas of the house are also liable to be foul. Here I would insist that every gully on the ground level should, when possible, be freely exposed to the air, so that the wind may blow over it. This, in London, is impossible, as these gullies are necessarily surrounded by the walls of the area, and in still, muggy weather these areas must contain a large amount of gaseous toxins.
I insist upon this point because I see the town architect making the mistake in the country of enclosing the kitchen [25]and pantry gullies by walls (to form a kitchen yard), so that any emanations which arise from them are liable to be drawn into the house through the open windows. Such an arrangement ought, when possible, to be carefully avoided.
Traps and trapped gullies are evils which are only to be tolerated for the prevention of greater evils. I visited not long ago a convalescent home built on the slopes of a decidedly steep hill. The building was a fine one, and (why I do not know) was three storeys high. The builder had brought the rain-water pipes from the roof, and had made them terminate in trapped gullies close to the front wall of the house. In these collections of stagnant water, dead leaves, &c., would certainly decay, and every trap would inevitably become a cultivating chamber for the growth of mildew and moulds of various kinds. These trapped gullies communicated with an underground drain, where the same growth of mildew, &c., would inevitably go forward. In such a situation the rain-water, without the interference of the builder and architect, would have got clean away into the valley below, and have left the house perfectly dry. All that was needed was an open gutter. Great expense had been incurred to make the walls of this building dry, and still greater expense had been incurred to ensure precisely those evils which come from damp walls, viz., the growth of mildew.
In the autumn of 1896 I was stopping in an hotel which had no less than 42 trapped gullies touching its walls; there was one beneath almost every window and by the side of almost every door. Here, again, a little contrivance and common sense would have obviated all this mischievous expense.
The constant inhalation of the gases of putrefaction is a great danger to health, otherwise sanitarians would not [26]lead us to imply that we ought to spend enormous sums to ensure their dilution before we inhale them. If these gases be concentrated, they are capable of killing strong men in a few minutes. The constant inhalation of these gases in a more diluted form leads to malnutrition, and one must suppose that the pasty-faced and undersized Cockney is made in this way. We have little certain knowledge of the diseases caused by sewer air. Personally, I should say that anæmia and malnutrition are the chief resulting evils, and that these conditions make us very vulnerable to infections. Sore-throat is certainly a drain disease, and thus a vulnerability to diphtheria is probably engendered. Puerperal disease of various kinds and rheumatic fever are among the diseases which have been attributed to sewer air, and it is probable that chronic enlargement of the tonsils and the surprising increase of adenoid growths in the pharynx and naso-pharynx are not without similar relationships.
Dr. Letheby and Dr. Haldane, who both investigated cases of acute poisoning by air in sewers, came to the conclusion that sulphuretted hydrogen was the fatal ingredient.
Dr. Haldane is of opinion that the source of the sulphuretted hydrogen is the kitchen refuse in the fat traps and grease boxes. He states that ·07 per cent. (or a mixture containing 7 parts of sulphuretted hydrogen with 9,993 parts of air) is poisonous.
It is probable that the constant inhalation of very small quantities indeed would be prejudicial to health.
Damp Houses
There is a very general consensus of opinion that damp houses are unwholesome.
Why are they unwholesome? It is very doubtful if the [27]constant inhalation of watery vapour is prejudicial to health. I am not aware that sailors and millers, and boatmen who spend their lives on the water, are a short-lived class, or that they are liable to diseases which are special to them as a class.
The probable cause of the unwholesomeness of a damp house is its liability to grow moulds and mildews and allied organisms. The growth of putrefactive and pathogenic organisms is checked by dryness and encouraged by dampness, and it is probable that it is in this direction that we are to look for the causes of the unwholesomeness of damp houses. A friend built a house some eighteen months since on an eminence in a park having a stiff clay soil. His architect advised him to have cellars under the house 'for the sake of dryness,' and such advice is very general. Let us look at the question a little more closely. Suppose you build a house having an area of 50 feet by 50 feet = 2,500 square feet. If you have no cellar this 2,500 square feet of your house rests upon the soil, and six inches of concrete will effectually stop back the moisture. Suppose you have a cellar beneath the house, say 8 feet high, then you have to excavate 2,500 feet by 8 = 20,000 cubic feet of earth; and in addition to the floor of your cellar you have four sides, each 50 feet by 8 = 400 square feet, or 1,600 extra square feet in all, in contact with the damp earth. With a cellar you have 4,100 square feet ready to imbibe moisture from the soil, and without it you have 2,500 feet only.
A big cellarage used for pantries, larders, beer, wine, coals, &c., &c., which is not artificially warmed, makes a house very cold; and if the cellarage communicate directly with the ground floor, there is a constant draught of cold air from the vaults beneath to the living-rooms above.
Supposing such a cellarage to have walls and floor [28]impermeable to moisture, it is inevitable that whenever the wind shifts from a cold dry quarter to a warm muggy quarter (say from N.E. to S.W.), condensation will take place, and the walls of your 'dry cellar' will stream with moisture.
A cold damp cellar, which comes only occasionally under the surveillance of the master and mistress, and in which all sorts of odds and ends are poked away to accumulate dust and mildew, is an undoubted disadvantage to a house.
Such a cellar should never be 'drained,' i.e., it must on no account have a gully in it for the purpose of 'swilling down.' When such a cellar is cleansed, it must be scrubbed and wiped dry precisely like a living-room. The trap of a gully is sure to grow moulds and mildews, and if, as is not unlikely, it becomes unsealed by evaporation, then the gases from the sewer or cesspool will inevitably find their way into the cellarage and the house above it.
An inhabited basement, such as is universal in London, regarded in relation to the house above it, is a very different thing from an uninhabited cellarage.
A place where food is stored, be it larder or dairy, must be cool, and clean, and dry, and must on no account have a gully either in it or near it. Food, and milk, and cream are cultivating media for organisms of all kinds, and food, especially cold gelatinous food, may become most dangerously poisonous if stored in an unwholesome place.
I will invite attention to fig. 12, which represents a cellarage window constructed quite recently. The window is entirely below the level of the ground, and is surrounded by an 'area' for giving light and air to the window. The area is protected by a horizontal grating on the ground level, securely and permanently fastened down, and the area is drained through a gully, this being necessary[29] because of the rain which falls into it. The gully leads to an underground drain, which, in this particular case, did not run directly to a cesspool, but to an open gutter on the side of a hill at a lower level. Into this area dead leaves are blown, and worms and slugs and snails inevitably find their way, and are washed by the rain into the stagnant gully, which becomes a place for putrefaction and the cultivation of mildew, the spores of which are necessarily blown into the house to infect the food which is stored there. Not only is the area closed by a fixed grating above, but the window is securely and permanently barred, so that this dry area (?), with its mildew trap, cannot possibly be cleaned without pulling the house to pieces.
Fig. 13 is a suggestion for the improvement of this area. A glazed shutter has been placed (to prevent the access of rain) over a fixed grating, which admits air at the sides. The gully has been removed, the front wall of the [30]area has (at the suggestion of Mr. William White, F.S.A.) been sloped forward so as to reflect the light into the room, and the window bars have been taken away, in order that this area may be cleaned as thoroughly as the room which it serves.
Larders
In view of recent discoveries as to the liability of food to become poisonous when stored in an unwholesome place, the construction of the larder is an important matter.
The place where cooked and uncooked food is stored—the larder—must be wholesome, and to this end great care must be used in its construction. The following appear to me to be the points which demand attention in the larder, an apartment which may influence the health of a household to a very great extent:—
1. The larder must be dry. Both walls and floor should be above suspicion as to dampness. Any mould or mildew growing on the floor or walls is very apt to infect the food. The floor should be of concrete, without seams or joints. The walls should be limewashed every year, and the shelves (if expense be no object) should be of some non-absorbent material, such as marble, slate, glazed earthenware, or glass. It is better to have a larder above the ground level than below it, because in the latter situation dampness is very difficult to prevent.
2. A larder must be cool. If it have no rooms above it, the roof must be so constructed as to keep out the heat of the sun. It is essential that its windows and ventilators should face the north. The temperature which is most favourable for the growth of microbes is one which approaches to blood-heat, and, speaking generally, one may say that the higher the temperature, the more likely is the 'cultivation' of microbes to go forward. It is important [31]that the flue of the kitchen fire, or any other flue, should not touch the wall of the larder.
3. Good ventilation is essential. The windows should be big, and should be protected on the outside with wire gauze, so as to prevent the access of flies or other insects.
4. On no account must there be a gully communicating with any underground drain or sewer either inside or, indeed, near to any place where food is stored. In short, we must bear in mind that sewer-poisoning may be indirect through the food, as well as direct from the sewer itself. When the shelves and floor of a larder are washed, they should be wiped dry, and such washing should be carried out in dry weather, so that the drying process may be complete.
We all know how sensitive food is to unwholesome contaminations, and one may well have a doubt as to the sanitary condition of show dairies, where a cool, plashing fountain plays in the centre, because such fountain must have a waste-pipe, and one must fear that such waste-pipe communicates with a drain. A dairy, equally with a larder, should be kept cool and dry, and should offer no facilities for the ingress of putrefactive products from a sewer.
I have already pointed out that it is no protection to have waste-pipes trapped, because in every form of trap one must have stagnation, and wherever stagnation occurs there must be putrefaction. A very small quantity of food-refuse or milk is enough to set up putrefaction in a trap. If any outlet for water is thought desirable in a larder, it should be in the form of an open gutter which can be thoroughly cleaned and dried, and which should pass directly through the wall on the floor-level, the opening in the wall to be closed by a sliding trap-door when the gutter is not being used. No bacteriologist needs to be reminded that a water-trap is necessarily a cultivating chamber.
CHAPTER II
THE SANITATION OF THE ISOLATED DWELLING
We are now in a position to consider the sanitation of the isolated dwelling. Having dwelt upon the evils of putrefaction, it is to be expected that methods which involve no putrefaction will be recommended. Further, it must be remembered that there are many situations which are otherwise suitable for a dwelling, but are rendered unsuitable by the lack of water; and in these days we have become so absolutely dependent upon water, that no site for a dwelling where water is scarce is acceptable.
Dry Methods
We have come to think that there can be no cleanliness without soap and water, and it may be necessary to remind the reader that the nomad Arab cleanses himself with the sand of the desert; that polished floors redolent of beeswax and turpentine are at least as wholesome as those that are scrubbed and have their crevices filled with a soapy slime; and that one of the best ways of washing a flannel shirt is said to be to hang it in the sun and beat it thoroughly with a stick. Necessity is the mother of invention, and were there a water-famine to-morrow, I have no doubt that those who were minded to be cleanly would somehow manage to be so.
There is no denying that dry methods of sanitation are in this country, where water is plentiful, far from popular. Dwellers in cities want to be rid of matters which have no value for them as individuals, and the luxury of having a scavenger 'laid on,' who can be set at work by merely turning a tap, and who, albeit that we pay handsomely for his services, does not hang about to be 'tipped,' are undeniable. Then, again, our scavenger is a very strict teetotaller and never strikes, although occasionally he is 'frozen out.' Many of us during a severe frost have, so to say, been the victims of dry methods and of 'water' closets, so called, on the principle of Lucus a non lucendo.
If dry methods of sanitation are to be successfully carried out, it is necessary to bear in mind the principles which underlie them.
Humification
The change which is produced in excrement when mixed with earth whereby the excrement is humified—i.e., changed to something which is indistinguishable by our senses from ordinary garden mould, or humus, is due to the action of fungoid organisms. Some of these belong to the 'mould' fungi, such as penicillium and saccharomyces, while others are allied to the schizomycetes, otherwise known as bacteria, bacilli, and micrococci.
A very important organism, or class of organisms, in this connection are those which bring about the nitrification of nitrogenous matters, whereby they are oxidised and made soluble, so as to be readily absorbed by the roots of growing plants. I prefer, however, to use the word humification in place of nitrification, because it is not likely that nitrification is the sole change which takes place, and it is at least highly probable that many of the fungi which grow in nitrogenous matter play a very important part in [34]producing fertility and in feeding higher plants. The intestines of animals swarm with bacteria and allied bodies, and it may be assumed, in the absence of evidence to the contrary, that excrements carry with them, so to say, in the form of moulds and bacteria, bodies which help in their subsequent humification.
Which of us has not noticed the excrement of a dog, evenly covered with exquisitely graceful stalks of fungus as with a crop of erect white hairs. The greatest of all human observers must have seen this, for he makes the Queen say to Hamlet:
Ordinary humus contains such organisms in countless numbers, and it is probable that when excreta are mixed with sterile bodies, such as ashes, the necessary organisms are in part supplied by the excreta themselves, or possibly gain access from the air around.
In order that humification may take place two things are necessary:—
- 1. The matter must be tolerably dry—absolute dryness checks the process, so does excess of moisture. It is stated that about 33 per cent. of moisture is the amount with which the humifying change is most rapid.
- 2. The access of air is necessary, because the organisms which produce humification are aërobic, and, as much of the change consists of oxidation, it is evident that the free access of air is essential.
Actual Practice
It may be well to refer here to what is actually done in my garden at Andover, in Hampshire.
It should be stated that the garden is close to the [35]centre of the town of Andover, the chief town in West Hants (a purely agricultural district), with about 6,000 inhabitants.
The garden abuts on a street and lies very low, being only two or three feet at most above the average level of the river Anton, which forms one of its boundaries.
The interest of the garden lies in the fact that it has been manured for the last ten years with the excreta and other refuse of some twenty cottages, the only stable dung which has been used having been sufficient to make a hotbed in the spring, and no more.
Fig. 14.
A, cottages; B, house and garden (let for a girls' school); C, C, garden ground used for sanitary purposes, measuring (exclusive of grass and paths) about 1¼ acre; W, well, D, D, D, D, D, small stream, supplied partly by springs and partly from river.
The plan (fig. 14) shows the position of the cottages, which form a cul-de-sac running from the street to the river, and also the position of the garden ground. This ground, which is on both sides of the cottages, measures, exclusive of paths and turf, about one and a quarter acre. Nearly an acre of the ground has, together with a house, [36]been let for a girls' school, and in the cultivation of this piece the writer has no authority.
The cottages are fitted with 'pail closets,' with the exception of one only, which has a 'dry catch,' which is much superior from every point of view to a pail closet, and in course of time it is hoped that all the closets will be converted into 'dry catches,' of which more will be said hereafter. The contents of the pails are removed every morning, and are superficially buried in a furrow such as a gardener makes when turning up the ground with a spade. One must insist that the covering of the excreta cannot be too light, as it is essential for the due humification of the organic refuse that the air have access to the pores of the soil; and one may add that when the pores of the soil are sealed up by drenching rains, as was the case in the autumn of 1894, the process of humification is delayed, and certainly the excreta are not (owing to their sticky, glutinous nature) washed out of the soil by the heaviest rains experienced in this country. The method of superficial burial has this further advantage, that the tillage of the soil and the burying of the excreta are carried on by a single operation. As the cottages are close to the garden, the process of removing and burying the contents of the pails is done in less than an hour. Directly this has been accomplished, in the early hours of the morning, there is an end of anything which can offend either the eyes or the nose.
After the excreta have been superficially buried plants of the cabbage tribe are dibbled in as soon as may be. This is often done within three days, and the cabbages are sure to flourish. Seeds do not flourish with any certainty, and, although I have seen fair crops of turnips, peas, onions, &c., when the weather has been favourable, such crops are liable to fail, while cabbage as a first crop is [37]practically sure to succeed. I can call to mind a spot in the Andover garden which had been sown with turnips and radishes as a first crop after manuring. The produce was Brobdingnagian, but worthless except to dig into the ground. The development of green head was very great, the roots were huge and woolly. When the plan of operations which has been described (daily superficial burial followed by cabbage planting) was commenced, some ten years ago, many were the prophecies of failure. The practical men shook their heads and said I never should succeed that way, but that I was 'bound to store the stuff in a heap to allow it to ripen before being put on the land.' As a sanitarian one was naturally anxious to get the excreta below the surface of the ground as soon as possible, and I now feel confident in stating that the plan I recommend is the best from the sanitary, agricultural, and financial points of view. Sanitarily it is the best because there is no delay in the safe bestowal of the excreta; agriculturally it is best because no ammonia or other volatile body is given to the air, but all goes to enrich the land; and financially it is best because it involves moving the dung once only instead of twice; the same operation that tills the land serves to cover the dung, and while the excreta are 'ripening' for other crops the farmer gets a crop of cabbage. After the cabbage crop the ground is still very rich and will grow everything or anything, to which the soil and situation are suited, in high perfection.
The garden is in great contrast to an ordinary sewage farm. It is used as a pleasaunce, and its luxurious herbage and bright colouring are very beautiful. The ordinary garden crops show great exuberance of growth, and the summer fruit trees (apples, pears, peaches, and nectarines) are usually hung with a very bountiful crop of fruit.
The illustration (fig. 15) shows the central green path of [38]the garden, and although the rich colouring of the tritomas, gladioli, stocks, phloxes, asters, lobelias, calceolarias, roses, and dahlias, cannot be reproduced, the illustration will serve to give some idea of the general luxuriance. The writer claims to have proved (all chemical analyses [39]to the contrary notwithstanding) that human excreta have a very high manurial value, and this will be borne out by the picture.
The 'Dry Catch'
Seeing that moderate dryness and free access of air are essential for humification, it becomes necessary so to construct our receptacle that these ends may be attained.
This end is not attained in an ordinary pail, because all the urine is retained; there is an excess of moisture, and the mixture becomes putrid and sloppy, unmanageable and offensive.
The best method of treating excreta is to allow them to be deposited in the 'dry catch,' suggested by Mr. Richardson, of Clifton (see fig. 16). In this arrangement the seat is raised on two or three steps, and the excreta are caught on a slightly sloping concrete floor; the excreta are freely exposed to the air, and the urine flows away down the slight slope and is caught by an absorbent material, of which the best is garden humus.
With this arrangement no putrefaction takes place. It is not a matter of much practical moment whether or not earth be thrown into the dry catch after the excreta, because the arrangement ensures that offensiveness is reduced to a minimum.
If earth be used this humification will go on in the catch itself, and the longer such a catch is used the better it will act, always provided that moderate dryness and free access of air are ensured.
I speak with great confidence as to the success of this arrangement, and with an experience of some years' standing. With a dry catch of this kind used, let us suppose, for the lowest class of property and with daily removal of the excreta, the bulk and weight of the excreta are reduced [40]to a minimum; there is no sloppiness or putrefaction. Collection and transport are easy, and the work is, with suitable tools, not repulsive. If we adopt the estimate of Parkes, that the solid excreta average for both sexes and all ages not more than 2½ ounces per diem, then the household of five persons would provide considerably less than 1 lb. weight per diem.
Now a dry catch may in country places be used with the addition of dry earth, and where the householder has a garden he can have no difficulty in managing everything for himself, and must be little better than an idiot if he allows any sanitary authority to rob him of the finest manure the world produces, the excreta of the 'paragon of animals,' and withal the most highly fed.
Where the sanitary authority is responsible for the disposal of excrement, I believe it will be found more economical to carry the excreta to the earth than to take the earth to the excreta.
If there be cultivable land at hand, and the nearer such land is to the houses the better, I believe the best course to pursue is to bury the excreta daily in superficial furrows, as recommended above.
If there be no cultivable land at hand, then the excreta would have to be taken to a rough shed (sufficient to keep off the rain) and mixed with earth. The process of humification would be completed in three months, and the humus thus formed might be used over and over and over again ad infinitum. The great advantage which follows from the scientific use of 'dry methods' is the continuity of the process. Nature turns all the excrement to humus, and humus is acknowledged to be the very best purifier of offensive nitrogenous matter which the world affords. The dark humus which is found everywhere, and which provides for all our needs, is nothing but excrement which has suffered a natural transformation brought about by a process which is purely biological. The oftener such humus is used the better it acts, and, further, it slowly increases in bulk. There can be no doubt as to its horticultural value, and if the authority cannot use it, the neighbouring farmers and gardeners will gladly do so. One of the difficulties connected with the dry-earth system is the procuring of earth, but from what I have said it is evident that an initial store of earth sufficient for six months' use, if judiciously, carefully, and scientifically used, would for ever take away the necessity of providing a fresh store.
This continuity of action is a most important matter, and one which has been hitherto almost wholly unappreciated. This arises from the fact that those who have not [42]carefully studied these dry methods are unable to believe that what I have stated is really true. That it is absolutely true I have no doubt whatever. Every sanitary authority should have a garden of its own for the purpose of practically demonstrating the excellent results obtained by using this 'dry' material as a manure. Such a garden, if properly cultivated, could not fail to be both beautiful and productive, and, if managed on the profit-sharing principle, would yield at least enough to pay wages. Such a garden should not have the customary notice, 'No admittance except on business,' but it should be the business of everybody to walk by it or through it while going to and from their daily work, and in so doing receive an object-lesson which would do more to enhance the health and prosperity of the country than any number of Board Schools and Free Libraries. In the last edition of 'Rural Hygiene' I have given some statements as to the financial results of my garden at Andover, which, I think, will be regarded as satisfactory. My experiments point to the fact that 600 square yards are enough for the disposal of the excreta of about 100 persons per annum.
The 'Pail' System
The causes of the ill-success of the pail system appear to me to be in large measure due to the great weight of the pails, and, in consequence of the exceeding foulness of the material, the great distances which they have to be carried.
By the adoption of the 'dry catch' the weight of material would be enormously decreased and its daily transference by means of a proper shovel and travelling receptacle would be found both easy and economical.
If the material removed be buried superficially every [43]day with a view to cultivation and production, the land to which it is removed cannot be too near to the houses. This may seem a strong assertion, but I make it without any hesitation whatever. Should the necessity ever arise, I feel sure that all the parks and square gardens might be used in the manner I have indicated for sanitary purposes, not only without offence, but with a certain great increase in the productiveness of the ground, always provided that the atmosphere be not too foul (as is the case in central London) to permit of horticulture or agriculture in any form.
If the dry catch be used the material is not sloppy and liable to spill, and thus the great hindrance to its transport is removed.
Finally, the initial expenses and repairs of pails would no longer fall on the sanitary authority, and the huge cost of lugging about these absurdly clumsy putrefaction boxes would be at an end.
We have three specimens of municipal pails in the Parkes Museum, and these vary in weight from 40 lbs. to 50 lbs. The 50-lb. pail, which is 18 inches in diameter and 15 inches deep, weighs, when filled with water, 187¼ lbs.
If, by the help of two men, a horse, and a lorry, one has to take, in addition to the excreta, fifty pounds weight of galvanised iron, or wood and iron, a mile each way, the expense becomes huge, and anything like a daily removal is impracticable; but if one has to transport a pound of solid excrement a few hundred yards only, then the problem is a very different one.
Any sanitary authority which adopts 'dry method' should endeavour to arrange for a daily removal. I am no advocate of 'conservancy,' but would rather see the immediate utilisation of the excreta. It is only by immediate burial that one gets the full manurial value of them.
The burial must be done with a view to the cultivation of the land. It must be superficial. The excreta must be merely covered with the earth, no more. Furrows half a spit deep are ample. It is in this way only that one insures the oxidation of the excrement and the protection of the wells.
It is the almost universal custom to bury night soil deeply, and I could quote many instances in which excreta have been buried three or four feet deep, and have been exhumed some months later unchanged and still foul. If they be buried deeply, the farmer or gardener gets no benefit and the wells are endangered. The farmer, be it remembered, spreads his dung on the surface of the ground, with a maximum exposure to light and air and then ploughs it in; nothing could be more truly scientific.
We hear that in India, in spite of the earth system, typhoid is rife, and the opinion is very general there that typhoid spreads through the air. I have never been in India, and am not competent to express any opinion, but I have heard that in some places in India the excreta are deeply buried, and if this be the case, it appears to me that if the ground gets deeply fissured during drought, the torrential rains which follow may very well wash this too deeply buried and unchanged excreta into the water sources.
If excreta are to be used for agricultural purposes, no chemical antiseptics must on any account whatever be mixed with them. Antiseptics are a source of serious danger to the agriculturist. The best antiseptic for such a purpose is earth.
In-Door Earth Closet.
It has been supposed that the method of excrement disposal which I advocate necessitates the compelling of [45]delicate persons to go out of doors in all weathers. I do not believe that it is necessary to ask delicate persons to run the risk of exposure in houses where dry methods of excrement disposal are employed. If a very small amount of the ingenuity which has been lavished upon water carriage had been devoted to overcoming the difficulties which attend the safe and decent management of dry methods, these difficulties would, I believe, have long since disappeared. If architects and builders can be impressed with the necessity, on scientific, moral, sanitary, and economic grounds, of overcoming these difficulties, the thing is done.
The house which I own at Andover (see fig. 14, B) becoming vacant, I tried the experiment of giving it a dry privy, which should be of such a kind that no lady would object to use it.
Now I hold that every closet, whether a dry closet or a water closet, should be sequestered from the main structure of a house, and should be approached by a lobby having cross ventilation. Those who in the present day put closets and waste-pipes within the four walls which enclose the living-rooms are not abreast of modern civilisation. The simplest plan for effecting my object in the present case seemed to be to throw an arch across the entrance to the stable yard, to place the ventilated passage on the top of the arch, and the closet on the far side of it, on a level with the first floor, and with a capacious vault or 'catch' beneath it. (See figs. 17 and 18.) The catch, though larger, is exactly on the same principle as that which has been described, and it has been provided with eight large air bricks, three of which are just below the level of the closet seat, three near the ground level, and two intermediate in position. The bottom of the door of the catch is about an inch above the ground level, and in addition there is an [46]opening for a dust-shoot, protected by a fine grating, so as to insure that only dust and ashes and not cinders or clinkers are thrown into it. There can be no doubt that plenty of fresh air will get access to this receptacle.
Without special precautions such a closet would be cold and draughty, and I have endeavoured to overcome this difficulty by a specially constructed pan, closed at the bottom by a hinged flap, which opens and shuts automatically by means of a counterpoise. (See fig. 19.)
By means of this specially-devised pan all up-draught is prevented; the stuff drops out of sight, and the urine, owing to the obliquity of the bottom of the pan, runs away instantly. When the closet has been used, some earth is thrown in, and this has the effect of carrying away any paper which may lodge, and of deodorising any soiling of the pan which may have taken place. There are some points connected with this closet-pan and seat which require to be mentioned:—
1. The seat and accessories are made of the best [47]polished mahogany, because I am very strongly of opinion that smartness leads to cleanliness.
2. The seat is only 14 inches above the ground, which is some 4 inches less than is customary. Closet seats are, as a rule, too high, and the low seat, with the position it necessitates, has certain physiological advantages, among [48]which may be mentioned the fact that the dejecta fall vertically downwards. It has one disadvantage, viz., that elderly people find a difficulty in rising; but this objection is easily overcome by fixing a handle in the wall, so that the arms may assist the feeble legs in the act of resuming the erect position.
It will be observed that the back part of the pan is 3 inches beyond the rim of the seat and is nearly vertical, while the front part is set only 1 inch beyond the rim of the seat, and runs obliquely from above down and from before back. [49]The object of this is to still further lessen the chance of the soiling of the back of the pan. The lower opening is slightly oblique, so that urine shall flow away instantly.
The supply of earth for this closet is kept in a box alongside the seat, and this box is filled from the outside by means of a hopper so arranged that the man who brings a fresh supply of earth cannot see or be seen by any chance occupant of the closet. The supply of earth is very large, being sufficient for a month or more, and there is no traffic through the house either with earth or excrement. This, again, is an important trifle.
The pans hitherto constructed on this pattern have been made of japanned iron. They have not to bear any weight or strain, and may be made very light. Enamelled iron or copper seem to me to be the best materials, but I have no doubt they could be effectually contrived in earthenware. The pans have been made for me by Messrs. Righton, 376 Euston Road. The pattern is registered.
Dry Method of Treating Urine
Most of us must have remarked, either in London or some other centre of population, how little annoyance arises from cabstands. One must know of cab ranks where dozens of horses stand for hours daily from year's end to year's end, and where tons of dung and thousands of gallons of urine are spilled upon the same spot and practically without annoyance. I do not mean to say that occasionally one may not get a strongly ammoniacal whiff from such a spot when the weather is hot and muggy, but it is notorious that they are seldom foul, and that on passing them we are never prompted to hold the nose and quicken our pace.
The condition of a cabstand is in strong contrast with [50]the average urinal with an ordinary water supply. Such places are always pervaded with a sickening odour, and the mere addition of practically an unlimited amount of water is insufficient to keep this smell of decomposing urine (than which nothing is more offensive) in abeyance.
It is hardly too much to say that water urinals are always offensive, and that even in clubs and similar smart places the tablet of camphor, which is intended to assert itself over the head of the other smells, is not always successful.
It may, I think, be said that water urinals are never sweet except in those rare instances in which they are constantly wiped perfectly clean by an attendant. The decomposition of urine is due to micro-organisms, and it is well-known that if urine be passed into an impure vessel, its decomposition takes place with great rapidity, especially if the temperature be moderately high. All vessels intended for the reception of urine require a thorough washing and cleansing every day. The form of 'bottle' which is habitually used for bed-ridden patients is most difficult to clean, and is a very undesirable apparatus. If water urinals be provided with 'traps' in which urine, or urine and water, is allowed to stagnate, such traps must be permanently foul and become a source of annoyance if not of danger.
If urine be allowed to filter through absorbent material, the effect produced upon it is as remarkable as it is interesting. I have experimented with a variety of absorbent materials during the last six years, and now propose to shortly set forth the results, some of which have been previously published in 'Essays on Rural Hygiene' (2nd ed.: Longmans, 1894). The vessels used have been of conical form, tapering from one foot in diameter at the upper and wider end to an opening large enough to admit a big quill at the lower end (fig. 20.) The length of these vessels is 30 inches, and they are supported on a metal tripod.
Some of the vessels have been made of metal—galvanised iron—and others have been made of flannel.
The first experiments were made with ordinary garden earth, and they were conducted for me by Dr. Wells, of Brondesbury. These, and nearly all the subsequent experiments, were made in the same way, viz., by adding day by day what may be called a natural chance quantity of urine, varying in amount from about a quarter of a pint to two pints in the day. In these experiments, when fresh earth was used, the filtrate was always of lower specific gravity than the urine added, notwithstanding the considerable evaporation which must have taken place from the surface of the filter. The total solids of the urine averaged 4·44 per cent., of which 3·45 were organic and 0·99 inorganic, while the total solids of the filtrate were 1·78 per cent., of which 1·07 were organic and 0·71 inorganic. How much of the organic and inorganic matters in the filtrate came from the mould it is not possible to say. The urea was probably all reduced, as the hypobromite method gave a percentage of only 0·15 in the filtrate, a quantity which may be disregarded in the face of the fact that the hypobromite method acts upon nitrogenous bodies other than urea. [52]The filtrate was rather deeply pigmented, but the pigment was submitted to spectroscopic examination by Dr. McMunn, of Wolverhampton, and pronounced by him to be not of urinary origin. Further—and this is most important—the filtrate could be evaporated to dryness without offensive odour, and showed no tendency whatever to putrefy when left for months in an ordinary bottle.
In short, the filtrate, although derived from urine, had none of the qualities of that fluid. The earth in the filter when stirred was distinctly ammoniacal, so that the presence of ammonia could be detected by the nose when held quite close to it, but at no time was there any foulness.
When the same earth, after some months of rest, was used a second time for the filtration of urine, the same results were obtained, with the exception that the filtrate was of higher specific gravity than the urine added, and the mineral residue of the filtrate was double that of the urine. This was caused by the solution of nitrates and other soluble salts which were formed in the earth from the residue of the first instalment of urine, but the filtrate had not the properties of urine. It contained no urea, could be evaporated to dryness without offence, and showed no tendency to putrefy.
In the same way, I have used deal sawdust instead of earth, and the following is the result of an analysis made for me by Dr. Kenwood in the Hygienic Laboratory at University College.
July 25, 1895.
Parts per 1,000.
| Reaction | S.G. | Solids | Urea | SO3 | P2O5 | Cl |
| [1]Faintly acid | 1·020 | 44·20 | 23·8 | 1·38 | 2·39 | 4·08 |
| [2]Alkaline | 1·034 | 127·9 | Nil (all reduced) | 8·30 | 13·41 | 38·00 |
[1] (1) Fresh urine.
[2] (2) Urine after filtration through sawdust.
'Physical Characters.—(1) Pale yellow, clear, with a slight opaque zone from mucus, normal urine odour.
'(2) Dark mahogany-brown colour—markedly opaque and somewhat turbid. A peculiar woody (resinous) odour, faintly ammoniacal.
'The "two ammonias" cannot be estimated by Wanklyn's process in the fresh urine, where there is so much urea, but in the filtrate they amount to—
| 0·032 | Free and saline | } | per 1,000 |
| 0·0016 | Organic | } |
I have kept two test-tubes half filled with (1) and (2), tightly corked, in the warm cupboard of the laboratory for the past three weeks; the sample of fresh urine has become offensive, but that of the filtered urine is perfectly sweet, and rather pleasant to smell.'
The filtrates from sawdust were a very dark brown colour, like 'stout' or 'porter,' and these have been evaporated to dryness without offence, and have shown no tendency to putrefy.
Experiments conducted in the same way with peat have yielded a filtrate almost identical in appearance to the sawdust filtrate, inoffensive on evaporation and not putrescible. The filtrates from peat and sawdust were always of $1m> than the urine added.
In order to ascertain how much urine could be got rid of by evaporation, I tried the experiment of using a flannel bag filled with sawdust or peat, and I found that with regard to one of these experiments (the bag being hung under a shed in the open between June 15 and July 20, 1895), only 81 ounces of filtrate having the qualities above given were obtained from 729 ounces of urine added to the filter. In this case 648 ounces of urine (over 40 lbs. weight) disappeared. In another experiment carried on in [54]my room at University College I added (between May 9 and July 26) 626 ounces of urine, and obtained only 54 ounces of filtrate, so that in this case 572 ounces (nearly 36 lbs. weight) of urine had disappeared.
As far as my experiments have as yet gone, I have not discovered the limit of sawdust for dealing satisfactorily with urine. Thus in 1894 I filtered during May, June, and July, 39 lbs. weight of urine through 6 lbs. of sawdust in a flannel bag, and neither filtrate nor sawdust was in the least offensive. In the same months in 1895 I passed an additional 41 lbs. weight of urine through the same sawdust in the same bag, and practically with the same result. In 1896 I added over 30 lbs. weight of urine to the same sawdust, but as the flannel bag had become too rotten to hold together, I was obliged to have recourse to the metal filter-vessel. The early filtrate obtained in 1896 had a specific gravity of 1·061, but, like its predecessors, could be evaporated to dryness without offence, and the sawdust was not in the least malodorous, although it was distinctly (as it always has been in these experiments) ammoniacal.
One of the most interesting experiments was that in which the filtering material consisted of crumpled paper in a flannel bag. The paper used was such as is familiar to every one, and was derived from old Bradshaw's Guides, the leaves of which were torn out and crumpled up in the hand before being put into the bag. This paper, like most paper used for printing, is sized and not very absorbent. At the end of a week a considerable quantity of filtrate had been obtained, and both filter and filtrate became excessively foul and malodorous, so that it was unpleasantly obtrusive, even when one stood several yards from it. The foul filtrate was returned to the filter, and no fresh urine was added for a time. This was done on October 15, and [55]on October 21 all had become sweet, and four ounces of a perfectly sweet and faintly acid filtrate were obtained! The filter never became foul after this date. Between October 21 and November 25, 1894, 434 ounces of urine were added, and 54¼ ounces of filtrate were obtained. Between November 25, 1894, and January 6, 1895, the filter rested; then, between January 6 and March 31 urine was added only occasionally, so that the total only amounted to 560 ounces (35 lbs. weight). Three and a half pounds weight of filtrate were obtained. The filtrate was more ammoniacal than that obtained from sawdust, earth, or peat, but it never has shown any tendency to putrefy. The paper became blackish, and was riddled with fungi, and ultimately was scarcely distinguishable from garden mould.
Thus I have shown that these absorbent materials exercise a strangely purifying power upon urine, and its behaviour with these bodies is very different to what is observed when urine is mixed with water.
Now for the practical application. I am not going to advocate that all houses in cities should be fitted with absorbent urinals, but it will occur to many that there are circumstances when such urinals may be very useful.
They are admirably suited for use on race-courses, cricket and football grounds, and other places where people congregate occasionally. On my advice they have been placed on two cricket grounds near London, and have given great satisfaction; they have been used also in the engineers' yard attached to the Twickenham Station of the London and South-Western Railway, which is visited by a large number of men (averaging perhaps 150) every day, and the South-Western Railway have fitted them up at one of their country stations.
Again, in country houses a urinal for gentlemen placed in some accessible but secluded spot, and formed of a [56]basket or barrel of convenient height, filled with peat or sawdust, will be found both economical and inoffensive. In the garden of a little cottage I have such a urinal, consisting of a small barrel filled with peat, which has been in use for nearly eighteen months, and which has never been changed, and is yet perfectly free from offensive odour. It is only when the top layers are removed that the nose perceives an ammoniacal odour, and then only when placed almost in contact with the peat.
I am accustomed to advise that such urinals for public use should be in the form of troughs made of basket-work or hurdling, or of wood panelled with perforated zinc, the trough to be triangular in section, with apex downwards, 3 feet 6 inches wide at the upper part, and 2 feet 4 inches in depth.
The shape of the trough and the material of which it is made facilitate evaporation. Such a trough should be under cover to prevent the access of rain, and it is obvious that with a width of 3 feet 6 inches it might be used from either side, provided a match-board screen were placed vertically along the centre (see fig. 21).
Allowing 2 feet of length for every 'place,' it follows, there being a 'place' on either side, that each foot of length would afford one place.
It might be necessary to allow the wicker-work trough to have an open gutter beneath it, but it is only exceptionally that any effluent would be afforded.
If such a trough is in constant use the sawdust must be turned over and stirred occasionally, and if this be done it will never be foul, and the sawdust can be used for surprisingly long periods of time without emptying.
If sufficient sawdust, or peat, or dry earth be provided for a double charge, so that one charge may be drying in a [57]shed while the other is in use, my belief is that this might be used for indefinite periods.
A final question, and one of very great importance, is the ultimate destination of the absorbent material.
Sawdust has a very bad reputation with agriculturists, who assert that when used in large quantities it grows fungi and poisons the land. If fresh sawdust be used, and if it be employed in relatively large quantities, and especially if it be buried too deeply, I can well understand that it would prove prejudicial to crops.
I can positively assert, however, that deal sawdust or peat, after being soaked with urine, shows no disposition whatever to become mouldy. I have never seen mould upon deal sawdust, but I have seen it upon oak sawdust.
My experiments further show that when sawdust or peat has been used as a top-dressing good crops have followed, whether on grass or garden ground. The cricket clubs which have, in accordance with my advice, put up dry catch closets and dry urinals have used the products as a top-[58]dressing at the end of the season, and with the result that their wicket pitches have been the envy of their neighbours.
Chemists tell us that urine is of high manurial value because of the large amount of nitrogen which it contains. This is doubtless true, but we all know that the immediate effect of pure urine is fatal to herbage. Whether this be due to the heat of the fresh urine or the salts, I do not know, but I fancy the latter. In the same way we know that a sprinkling of salt, or salt and water, kills weeds; but we are told that salt is a bad weed killer, because it ultimately acts as a manure, and causes increased growth. Now urine does the same thing.
The farmer who uses the urine and dung of his animals mixed with absorbent material (generally straw), and ultimately places it on the land as a top-dressing, gets nothing but good from it.
The practices I advocate are exactly analogous to those which have been used by agriculturists in every age, and with the best results. I am merely advocating a return to customs which have been tried again and again and have never been found wanting.
In the 'Journal of the Royal Agricultural Society' (vol. vii., part iv., December 1896) I find a statement (p. 631), that in the delta of the Nile a compost of earth and cattle urine is generally used as a manure.
'Owing to the lack of wood, the people are compelled, as in India, to use the solid droppings of their cattle as fuel, but they conserve the urine on a very ingenious system. Loose earth, shifted and renewed from time to time, is used as a covering for the stable floor, and earth is so much in demand for this purpose that the irrigation officers can hardly prevent the people from carrying away the canal banks.' Analyses show from 1·25 to 2·5 per cent. in equivalent of nitrate of soda. It is obvious, however, that [59]a chemical analysis gives but a poor idea of the value of the compost. It is applied at the rate of eight tons to the acre for growing sugar and maize.
Housing of Animals
In country places and in connection with country houses provision has to be made for the proper housing of animals.
Speaking broadly, there can be no doubt that the more fresh air we give our animals (the more they are in the open and the less they are under cover) the better.
Sheep are rarely housed, unless it be with a view to their getting prizes for being in a condition of diseased obesity.
On Mr. Stephens's farm at Cholderton one may see not only sheep, but herds of cattle and numerous brood mares and foals, all in the rudest health, notwithstanding that they never go within doors from year's end to year's end.
It is the same with poultry. If they are to be kept healthy they must be confined indoors as little as possible. 'Who,' says Cobbett, 'can get up as early as the birds?' and it must be remembered that birds are out nearly an hour before sunrise all the year round. If poultry be locked up, with a view to forcing egg-production by keeping them warm, it is probable that they will become tuberculous.
Sir Frederick Fitzwygram, in his exhaustive treatise on the Horse, is very careful to insist on the perfect ventilation of stables, and tells us of certain London cab stables where the health of the horses became excellent after the doors and windows were removed.
In the construction of stables, Sir Frederick Fitzwygram insists on the danger of underground drains, and advises that the drainage of a stable shall be by open gutters only, and that these gutters shall lead to gullies removed many yards from the stable door. This is rational common [60]sense, and must be applied not only to stables, but to human habitations also.
Trapped gullies are only miniature cesspools, and the presence of such contrivances within stables or cow-houses means that the animals are breathing the gases of putrefaction whenever they are within doors.
It is a question whether, in such places, we do not often go to a huge expense in order to do things wrongly.
I call to mind three cow-houses which I visited in the autumn of 1895. One was at a very old-fashioned manor-house near Alresford, Hants, and was a high-pitched, thatched, barn-like building, which had been used for cows 'time out of mind.' There was an open door at either end; the floor of the stalls was of beaten earth, and the middle passage between the stalls was of flint pitching. The stalls had a very slight slope from head to tail, and there was no drain of any kind, and no water-tap for the adulteration of the milk or the 'swilling down' of the building. The dung was removed every morning with shovel and besom, and, if necessary, some earth was thrown upon the floor of the stalls. This house was fragrant, and filled with the sweet breath of kine and the aroma of good upland hay. There was no suggestion or suspicion of foulness. The urine in this case must have soaked away to a great extent into the earth and between the pitching, and had done so in this place, perhaps, for centuries.
The other two cow-houses were of a different order. One was at an establishment devoted to giving technical instruction in dairying, and the other belonged to a milkman in a country town. Both had cost much money, with impermeable bricked floors, water-taps for swilling down, and drains within the building for carrying away the valuable dung and urine. They both were damp, with water [61]lying between and in the grooves of the bricks, and both had a sickening smell of putrefaction. Neither of these two last cow-houses were desirable places in which to collect milk. I have little doubt that the Bacterium coli, which lives in water, was very abundant in both of them.
Water (unless it be boiling hot and used with abundance of soap and a scrubbing-brush) is entirely out of place in cow-houses, dairies, and butchers' shops.
Putrefaction is easily attained by swilling with cold water. Real cleanliness is unattainable in this way.
The dung and urine of all domestic animals is invaluable for the farm and garden, and it all ought to be carefully preserved. I feel that the best way of doing so would be to allow the stalls of stables, cow-houses, piggeries, &c., to have a very gentle slope to a gutter or trough filled with absorbent material, such as earth or peat moss, and protected by a grating. This trough would be cleaned out whenever it became in the least offensive, and thus the whole of the urine would be saved for the farm.
I have not given a special figure, but a reference to figs. 29 and 30, on pp. 87, 88, will show the reader what is meant.
It needs hardly to be said that all animal houses must be kept scrupulously clean. There must be no accumulations of dung, and all such ordure must be removed daily. The besom and shovel and wheelbarrow are the only proper tools for doing this.
If 'water-carried sewage' be introduced on the farm the ruin of the farmer is more certain than it is at present.
Construction of Wells
It is admitted that humus is one of the best filtering materials for water, and that water from a river full of living organisms is to a large extent freed from them by [62]filtering through a few feet of the humus on its banks. In the past few years Professor E. Frankland has shown that water of singular microbial purity has been obtained from the gravel beds which in places flank the Thames. Such water, one must suppose, is obtained from ground water which has fallen upon the earth, has filtered through it, and is slowly flowing towards the river. The purifying agent in these cases is mainly the living humus which lies upon the surface, although the subsoil cannot be without some effect. These facts must alter our attitude towards surface wells, and must teach us what to a great extent has been admitted—that the purity of surface wells must depend more upon the mode of construction and the surroundings of the well than upon its depth. Wells are polluted by foulness which has reached the subsoil without being subjected to the purifying influence of the humus; and there are many facts which go to show that if foul water gets to the under side of the humus without going through it its purification in the subsoil is far from certain. The Lausen epidemic, the Worthing epidemic, and the pollution of the deep well sunk in the sandstone at Liverpool, seem to show us that percolation through a mile of underground strata entails no certain purification, and that wells 80 ft. or 400 ft. deep are not safe if fissures allow the contents of cesspools, leaking under pressure, to trickle into them. The almost universal condemnation of surface wells and their frequent pollution are mainly due to the fact that we take our filthy and dangerous liquids through the humus in pipes, and thus ensure at great expense that they cannot be subjected to purification by it. If these underground pipes leak, the mischief caused by pollution of wells may be very far-reaching. It is very probable that foul water continuously thrown on the same spot of ground may in time work its way to a well and thus pollute it. Such [63]ground, which is constantly soaked, be it remembered, is never tilled, because tillage is impossible. For ground to be tillable it is essential that reasonable breathing-time should be allowed. I am not altogether sure (although I hardly dare utter such a heresy) that a properly constructed surface well in a selected situation may not prove to be one of the safest sources for water, because it can be inspected with perfect ease, and the fact of accidental leakage into it would become apparent. In this connection it may be well to describe in full detail the well which I have sunk in my garden at Andover, a garden which is rather handsomely manured with human excreta. The well is placed in the very centre of the garden (see fig. 14, p. 35, W) at the intersection of two paths—a broad green path and a narrow asphalted path. This situation was chosen for two reasons: (1) that it was as far as possible removed from any accidental pollution from the sewer in the street; and (2) that in the centre of the garden it would theoretically run the greatest chance of fæcal contamination from the manure used. As the well was sunk solely for experimental purposes this was essential. The garden is on a river-bank and very slightly raised above the level of the water. The well is only some 5 ft. deep, and the water stands at a level (which varies very slightly) of about 3 ft. 6 in. from the bottom. The well is lined throughout from the very bottom to a point some 15 in. above the ground with large concrete sewer-pipes 2 ft. 3 in. in diameter, and these pipes have been carefully cemented at their junctions. Outside the pipes a circle of cement concrete about 4 in. thick has been run in. It will thus be evident, the sides being perfectly protected, that no water can possibly enter this well except through the bottom, all contamination by lateral soakage through the walls being rendered impossible. The well is surrounded by an asphalte [64]path about 3 ft. wide and slightly sloping away from it, and it is encircled by a clipped privet hedge about 5 ft. high, except at those points where the circle of privet is cut by the paths. There is a closely fitting cover of oak, which has an outer casing of lead, and thus all contamination from above is prevented. The water is drawn off through a 2-in. leaden pipe which passes through the outer concrete and the concrete lining pipe, the cut passage for the pipe being carefully closed with cement. The pump is behind the privet hedge, and is provided with a sink and waste pipe which takes the overflow some twenty or thirty yards to a neighbouring stream. In this way the constant dripping of water in the neighbourhood of the well is prevented; for I am very much alive to the dangers attending a constant water-drip, which might be able in time to worm its way through soil and concrete into the well itself. I regard this question of the overflow as one of great importance which is too often neglected. Figs. 22 and 23 show this well in section and plan. The nearest point to the well upon which any manurial deposit of excreta is likely to be made is on the far side of the privet hedge, and the distance of this point from the bottom of the well is 7 ft. All water which finds its way into the well must have passed through at least 6 ft. or 7 ft. of earth, and, of course, the great bulk of the water has passed through a far greater length. Three chemical analyses of this water, one by Professor Frankland and two by Dr. Kenwood, testify to its organic purity, and three bacteriological investigations have given similar indications of purity. A bacteriological examination of the water from the river Anton and the well water, made on April 11, 1895, gave 1,133 growths per cubic centimetre for the river and only 7·5 for the well. Of course there may be a dangerous microbe among this small number, but, on the whole, I think the best guarantee of the purity of the [65]water is the condition of the well, which after four years is as clean on the bottom and sides as it was the day it was made. There has been no appreciable increase of sediment on the bottom, and the pebbles are as plainly visible as they ever were. The well is for experimental purposes mainly, but water for garden use is drawn from it, and during the severe frost of 1895-6 my gardener and some of his neighbours were entirely dependent upon it for household purposes. I seldom go into my garden without drinking some of the water, which is clear and delicious, and my visitors seldom escape without drinking some also. I think the well is a very safe one. It must be mentioned, however, that after very excessive amounts of rain, such as occur occasionally, when the water comes down in a [66]perfect deluge and lies for hours in big pools upon the ground, the water in the well becomes turbid. My belief is that under these circumstances the fine sediment on the bottom is driven upwards by the suddenly increased pressure of the water outside; and I have no reason to think that after these storms there has been any actual increase of sediment, the stones at the bottom remaining as visible as ever. I have never been able to make a bacteriological examination after one of these floods, but hope to be able to do so.
The question whether such a very shallow well becomes dangerous after a flood is a most important one. It is clearly understood that with my well there is no possibility of flood water entering at any point except through the bottom. It must be recognised that in times of flood with a drowned humus the power of purification may be lessened. On the other hand, my experience leads me to say that it is very difficult (if it be possible at all) to wash fæces out of well-tilled humus by any rain which we get in this country. In the autumn of 1894, in the south of England, we had very severe floods, and I was able to note that the humification of fæces in my garden was, as a consequence, very much delayed. Fæcal matter was visible on turning up the soil for nearly three months after it had been deposited, and the masses of fæcal matter were enclosed in crusts of humus which had been rendered airless and clay-like by the excessive amount of water. This naked-eye test seemed to show that the well had not been endangered, for there were the fæces, and most certainly they had not been washed downwards. When the pores of the soil had been opened by frost the humification of the fæcal matter went forward as usual. This experience seems to enforce what I have said before—that a drowned humus cannot deal with dung. That floods may be dangerous to surface wells we all know, [67]but it will be recognised that the conditions and circumstances of my well at Andover are distinctly different from those of the wells mentioned in the following extract, which were filled with flood water by leakage through their tops and sides.
In the Twenty-third Annual Report of the Local Government Board (1893-94) reference is made by Dr. Thorne Thorne to certain investigations on outbreaks of typhoid fever in certain riverside populations in Yorkshire and Lincolnshire. These investigations by Dr. Bruce Low seem to prove conclusively that the fæcally polluted water of the Rye and the Trent had infected with typhoid fever a certain proportion of the inhabitants who consumed the raw river water. Dr. Thorne Thorne goes on to say: 'Incidentally it transpired during the course of this inquiry that the town of Malton had an altogether exceptional history in so far as enteric fever and diarrhœa in fatal form are concerned. Situated on the Derwent, four miles below the confluence of the Rye with that river, Malton was found to derive its water-supply from the Lady Well, sunk to a depth of 14 feet in the middle oolite rock, and occupying some low-lying land close to the river bank. Into this well river-water gained access as soon as the Derwent rose above a given point, the amount of river-water reaching the well varying from mere leakage through holes and crevices in the banks to complete submersion of the Lady Well by the swollen stream. Gradually it had come to be noted that the outbreaks of fever and of diarrhœa followed on seasons of flood in the Derwent, a river which was referred to locally in 1890 as containing "the sewage of all the towns and villages situated near the Rye and its numerous tributaries.'"
In country places where surface wells are the only [68]available source of water, I strongly recommend that they be made on the pattern which I have been describing.
It is the top of the soil which can break up and assimilate organic matter; the subsoil has no such power. It is a common mistake to bury deeply any organic matter which seems to us to be particularly offensive. In this way we ensure its preservation and endanger the wells. The safety of our wells is directly proportionate to the thickness of the humus, and to place organic matter below the humus is like throwing the dog's bone beneath the kennel instead of into it. The inefficiency of deep burial hardly requires to be mentioned. Bodies buried deep in the subsoil last for years, while those which are placed in the living humus are rapidly destroyed.
I should like to mention that when my well was dug there was found beneath a turf path and about three feet below the surface a large quantity of dead leaves which had probably been deposited in a pit at some long antecedent date. They had undergone scarcely any decomposition although they had been in that position very many years. Again, when engaged in pulling down a cottage my man unearthed an old privy some four feet below the surface. In this privy unmistakable fæcal matter was recognisable. Neither he nor I nor any of the neighbours had any knowledge of any such privy having been in use of late years, and my belief is that these recognisable excreta had been deposited at least half a century ago. Who shall say that these excreta did not still contain spores of all the ills that flesh is heir to? Under natural conditions all dead organic matter falls upon the surface of the ground, and nature is a very sure guide.
CHAPTER III
SLOP-WATER
It is often stated that to deal with excremental matters separately from the slop-water is no advantage either from a pecuniary or sanitary point of view, because:
- 1. Slop-water is as foul as sewage composed of excrement and slops.
- 2. A system of sewers is necessary for the slop-water, and it is not easier to treat slop-water alone than it is to treat a mixture of slops and excrement.
The following tables, from the 'Report of the Royal Commission on Rivers Pollution in 1868,' are given by most sanitarians to show that the difference in degrees of impurity between a water-closeted town and a non-water-closeted town is very slight.
Average Composition of Sewage
In Parts per 100,000
| Description | Total Solid Matters in Solution | Organic Carbon | Organic Nitrogen | Ammonia | Total Combined Nitrogen | Chlorine | Suspended Matters | ||
| Mineral | Organic | Total | |||||||
| Midden Towns | 82·4 | 4·181 | 1·975 | 5·435 | 6·451 | 11·54 | 17·81 | 21·30 | 39·11 |
| Water-Closet Towns | 72·2 | 4·696 | 2·205 | 6·703 | 7·728 | 10·66 | 24·18 | 20·51 | 44·69 |
| In Grains per Gallon | |||||||||
| Midden Towns | 57·68 | 2·926 | 1·382 | 3·804 | 4·515 | 8·078 | 12·467 | 14·910 | 27·377 |
| Water-Closet Towns | 50·54 | 3·287 | 1·543 | 4·692 | 5·410 | 7·462 | 16·926 | 14·357 | 31·283 |
| Description | Midden Towns | Water-Closet Towns |
| Total Solid Matters in Solution | 82·4 | 72·2 |
| Organic Carbon | 4·181 | 4·696 |
| Organic Nitrogen | 1·975 | 2·205 |
| Ammonia | 5·435 | 6·703 |
| Total Combined Nitrogen | 6·451 | 7·728 |
| Chlorine | 11·54 | 10·66 |
| Suspended Matters | ||
| Mineral | 17·81 | 24·18 |
| Organic | 21·30 | 20·51 |
| Total | 39·11 | 44·69 |
| In Grains per Gallon | ||
| Total Solid Matters in Solution | 57·68 | 50·54 |
| Organic Carbon | 2·926 | 3·287 |
| Organic Nitrogen | 1·382 | 1·543 |
| Ammonia | 3·804 | 4·692 |
| Total Combined Nitrogen | 4·515 | 5·410 |
| Chlorine | 8·078 | 7·462 |
| Suspended Matters | ||
| Mineral | 12·467 | 16·926 |
| Organic | 14·910 | 14·357 |
| Total | 27·377 | 31·283 |
This table being not unfrequently quoted in support of the contention that slops alone = slops + excrement, I may be excused if I examine it somewhat critically.
I will take the table in grains per gallon and simplify it somewhat.
Grains per Gallon
| Description | Total Solids in Solution | Suspended Matter | Total Solids in Solution and Suspension | Organic Carbon | Ammonia | Total Combined Nitrogen | Chlorine | |
| Mineral | Organic | |||||||
| Midden Towns | 57·68 | 12·467 | 14·910 | 85·057 | 2·926 | 3·804 | 4·515 | 8·078 |
| Water-Closet Towns | 50·54 | 16·936 | 14·357 | 81·823 | 3·287 | 4·692 | 5·410 | 7·462 |
| Description | Midden Towns | Water-Closet Towns |
| Total Solids in Solution | 57·68 | 50·54 |
| Suspended Matters | ||
| Mineral | 12·467 | 16·926 |
| Organic | 14·910 | 14·357 |
| Total Solids in Solution and Suspension | 85·057 | 81·823 |
| Organic Carbon | 2·926 | 3·287 |
| Ammonia | 3·804 | 4·692 |
| Total Combined Nitrogen | 4·515 | 5·410 |
| Chlorine | 8·078 | 7·462 |
We shall all of us be ready to grant that the addition of excremental matters must be something extra added to the sewage, and that such extra matter must be either in suspension or solution. The fact, therefore, that the total solid and suspended matters is less by 3½ grains in the water-closet towns than in the midden towns can only be accounted for by the enormous dilutions of the excremental matters in the sewage. Notwithstanding this dilution we find that the water-closet town sewage contains 20 per cent. more combined nitrogen than midden town sewage, 23 per cent. more ammonia, and, what is very remarkable, 35 per cent. more suspended mineral matter.
This excess of mineral matter in suspension could only be caused by the precipitation of mineral matters by the ammonia and sulphuretted hydrogen formed by decomposition of the albuminous and other organic matter. This excess of mineral matter in suspension must therefore be taken as a measure of the enormously increased putrefaction in water-closet sewage, a putrefaction probably to a great extent brought about by the millions of microbes [71]which are provided from the human intestines with the excrement, and we must therefore assume that the increase of mineral matter in suspension is an indication that a large quantity of foul putrefactive gases has been given off into the streets and houses of water-closet towns.
This table, therefore, seems to me to conclusively demonstrate that the sewage of water-closet towns is far more bulky and far more filthy and dangerous than the sewage of midden towns.
Sewage is not to be regarded too absolutely from its chemical side. We must use our senses, inclusive of our common sense, in coming to a conclusion, and we must not pin our faith on analyses alone. When I am told that it is of little use to deal with solid excreta, because the liquid household slops alone are as foul and difficult to treat as the complete mixture, I confess I am incredulous.
When I see the housemaid's pail filled with three gallons of soapy water and perhaps a pint of urine, am I to believe that the addition thereto of five ounces of solid excrement, a second half pint of urine, and a square foot of paper, will make no difference to its foulness and cause no increase of difficulty in its purification? Credat Judæus Apella! Such a statement is manifestly absurd.
Again, we must remember that it is the solid excreta which constitute not only the foulest but the most dangerous ingredient of sewage, the only one which has caused widespread epidemics again and again, the one which has hung a load of debt round the neck of every municipality in the country.
The other ingredients of household slops, unlike the fæces, are little liable to contain pathogenic microbes. The urine of a healthy man is, as we all know, sterile when passed. In diseased conditions it may occasionally possess infective power, but this is a speculation rather [72]than a practical fact acknowledged by the sanitarian. A large proportion of cooking-water has been boiled, and is therefore sterile, and the same may be said of the water in which our linen has been washed. Household slops, therefore, are not liable to be really infective.
They are nitrogenous, and consequently, if allowed to stagnate by mismanagement, they become very foul from decomposition, but that they are capable of producing epidemics has not yet been proved. Between excrement and slop-water there is this difference, that solid excreta are foul-smelling ab initio, but slop-water (if we except the smell of water in which cabbage has been boiled) only becomes foul if it is mismanaged.
In places which are not overcrowded a great deal has been done when the wholesome treatment of the solid excreta has been arranged for, and I feel that to neglect the doctrine that 'half a loaf is better than no bread,' and to discourage people from dealing with solid excreta, because they do not see their way quite clearly for the disposal of slops, is most dangerous.
One thing is certain, viz., that if the solid excreta are dealt with by dry methods the liquid sewage will be 25 per cent. less bulky than otherwise would be the case.
I feel sure that if, in our anxiety to prevent the pollution of rivers, we fail to appreciate the biological differences between excrement and slop-water we shall make a mistake, which in the end will be no real advantage to the streams. If, therefore, villages and places where the population is sparse make serious efforts to deal with excreta, they should have at least some breathing-time allowed before the fish in their streams are deprived of the luxuries which they doubtless obtain from kitchen slops.
When fæcal matters are mixed with the slops, the mixture is so offensive that we are compelled to place it at [73]once beyond the reach of the nose or eye, and the presence of sticky fæces and large quantities of paper makes any attempt at filtration practically impossible. Domestic slop-water when fresh is not offensive, and is very rarely dangerous; and by attention to certain details it can be easily dealt with.
Domestic slop-water consists of:
- 1. The waste from kitchen and pantry sinks, which often contains dissolved albuminous matter, food particles, dissolved and suspended fat, a considerable amount of coffee grounds and tea leaves, and sundry odds and ends, the result of house-cleaning, such as fluff, bits of string, little scraps of paper and rags, fibres from brooms and brushes, &c. These materials are very apt to accumulate, and to block drains; and if this form of slop-water is to be effectually dealt with, it is essential that the suspended matter be strained out. The purposes which the kitchen and pantry sinks subserve require, according to Notter and Firth, about 3·75 gallons of water per head per diem; and allowing for evaporation, the slop-water must be less in quantity, so that if we say that these slops average 24 gallons per diem for a household of 7 persons, we shall be not far from right.
- 2. Bedroom slops, consisting of soapy water and urine. Allowing for a daily sponge bath, these amount to about five gallons per head per diem, or thirty-five gallons for a household of seven persons. The suspended matters in these slops (soapsuds chiefly) are in such a fine state of division that they easily filter. They may contain waste matches, a few hairs, a small amount of fluff from towels, and an occasional bit of paper.
- 3. The water from fixed baths amounts to about thirty gallons per bath per diem, and in a household of seven would not probably amount to more than sixty gallons a day. It is so clean that it ought not to occasion any trouble.
Assuming the clothes-washing is not done at home we should have fifty-nine gallons per household of seven per diem without fixed baths, and 119 gallons with fixed baths; and if the washing be done at home, then three gallons per head per diem must be added, or twenty-one gallons for a household of seven, giving a maximum of 140 gallons per diem for a household of seven.
Fifty-nine gallons per diem would put upon an acre of land the equivalent of an inch of rain (22,624 gallons) in 384 days, and the equivalent of an inch of rain on a quarter of an acre in 96 days.
One hundred and forty gallons per diem would be the equivalent of an extra inch of rain on an acre in 162 days.
These amounts are trivial, and if the water be supplied from a private well in the grounds it is evident that, allowing for evaporation, we should pump from the subsoil rather more than we return to the surface. Again, it must be remembered that the house with the greatest amount of slops has, as a rule, the largest curtilage. A mansion containing twenty persons with unlimited baths, laundry, and stables would not probably give more than 40 gallons per head, or 800 gallons a day, which is a trivial amount when considered in connection with a park of 20 or perhaps 200 and more acres.
It is necessary to insist that the amount of slop-water to be dealt with in isolated houses is usually trivial in proportion to the land available for its purification. Tidy was of opinion that, employing intermittent downward filtration for the purification of previously precipitated crude sewage, an acre might be sufficient for 7,000 persons. This would give 1/1000 acre, or about 44 square feet, for a household of seven. At this rate my consulting room in [75]London, which measures 24 × 18 = 432 square feet, would be an area large enough for nearly 70 persons. I think the estimate is too small; but even if one multiplies it by ten it is evident that the amount of land necessary for treating the domestic slop-water of a house is much smaller than might be supposed.
In places where unlimited water is obtained by merely turning a tap these estimates are very liable to be exceeded, especially when those who turn a tap on are too forgetful or lazy to turn it off.
I feel certain that anyone who experiments on this matter as I have done will be simply astounded at the small amount of ground which is necessary.
Critics of the plans which I have advocated, and am now about to advocate, sometimes hint that the whole curtilage of one's house must be unwholesomely sloppy.
Such a statement shows a complete ignorance of the whole subject.
Few, if any, of the writers of hygienic text-books seem to have really studied the life-history of slop-water, and it is matter for regret that in some of these books the chapters devoted to domestic hygiene deal more with patents than with principles, and are illustrated more by woodcuts culled from tradesmen's catalogues than by any practical knowledge possessed by the writer.
Principles of Slop-Drainage
If domestic slop water is to be dealt with successfully it is necessary—
1. That all waste pipes terminate well above the level of the ground.
This is a point too much neglected by architects, who are very prone to carefully put all waste pipes below [76]ground level, so that any purification of slops without pumping is impossible.
Allowing a fall of, say, 1 in 10, it is evident that for every foot above ground at which a waste pipe terminates it is possible to deliver the waste on to the surface of the ground at 10 feet from the house. Thus the bedroom sink waste at a height of 10 feet above ground level might be made, if so desired, to deliver its waste 100 feet from the house. It is often necessary to take the waste pipes from the first floor over the path surrounding the house. This is easily accomplished without causing any unsightliness by placing an arch over the path. Such arches may be of galvanised iron for a cottage, or of masonry for a mansion, and are soon hidden by creepers.
Figs. 24 and 25 illustrate how this principle may be carried out; in the one case by a rustic arch costing a few shillings, and in the other case by a porch and arcading of a more ambitious description. Fig. 24 is from a photograph of an arch in actual use. Fig. 25 has been furnished by Mr. Cutler.
When pipes are provided with a rapid fall there is little tendency for water to freeze in them, but in severe climates it might be necessary to pack the pipes.
The waste pipes of kitchen and pantry sinks are, in London, almost always below ground level, it being the custom to place the kitchen and offices in an underground basement; and I have known London architects who have provided country houses with similar abominations, so that the sewage of a basement has to be lifted before it can be properly treated. If this evil is to be avoided, it is essential that the waste pipes of kitchen and pantry sinks terminate at least two feet above ground level. This is a minimum, and if a greater fall can be obtained, so much the better. Kitchen and pantry waste is full of dissolved and [77]suspended matter, and a careless cook will throw down the sink enough food to keep a pig or a dozen fowls. This waste is very prone to become offensive, and it is advisable that it be thoroughly strained before flowing away. Not only should the waste pipe have a fixed and immovable strainer below the plug, but a sink basket should be used, [78]and the waste should be still further strained in a manner to be presently described.
2. No stagnation must anywhere be permitted along the line of slop-drainage.
Experimenting upon this point, I have found that stagnant slops become, as a rule, offensive within 24 hours, even when exposed to the air. Thus I tried the experiment of filtering bedroom slops through a trough filled with stones and provided in the middle of its length with a diaphragm reaching from the top to within an inch of the bottom, and having the outlet only an inch or so below the level of the inlet. This caused stagnation and great foulness, which disappeared immediately the outlet was placed at the lowest level, and stagnation became impossible. Soapy water mixed with urine soon becomes foul if allowed to stagnate in traps, but it has never in my experience been foul if poured upon the earth and allowed to soak away. With a good fall and with the outlets of pipes freely exposed to the air, traps are not necessary, and as all forms of traps are but miniature cesspools, this is a great gain. A trap is never possible in an outside metal pipe because of the fear of frost. The abolition of traps is not only necessary, but a very great gain indeed.
3. Slop-water should run in open gutters, and when it has reached a certain distance from the house it should be allowed to soak away as it runs, and take the line of natural drainage of the locality.
This may be effected by means of
Filtration Gutters
The gutters which I have used, and which have been found to answer in a manner which has far exceeded my expectations, are constructed as follows:—
A trench 2 feet deep and 18 inches wide, and of a length varying with the circumstances, is dug, and filled up with porous material, such as builders' rubbish, old crockery, and tins, stones, &c., &c., to within a few inches of the surface, and upon this rubbish, previously rammed, walls of concrete or honeycomb brickwork are formed, provided with a ledge sufficiently wide to support a perforated tile, the perforations being big enough to admit a large sized knitting-needle, say ⅛ in. in diameter. The porous rubbish reaches to within an inch of the under surface of the tile, and the sides are planted. The gutter may, if necessary, be protected by a grating.
Or the gutter may with great advantage be placed upon a bank with gradually sloping sides.
In both cases the sides of the gutter should be planted with quick-growing shrubs, and it will soon become ornamental. Such a slop-gutter on a raised and planted bank would form a most excellent boundary fence. These gutters are shown in figs. 26 and 27. The perforated tile which forms the floor of this gutter is a most important part of it, because it allows the gutter to be cleared of dead leaves and other rubbish, which inevitably fall into it, and it protects the porous material from getting clogged. It breaks the force of the water and prevents the downpour from the pipes from ploughing up the rubble, which is a most important matter. I have used various things for forming the floors of these gutters, and have found nothing better than the perforated tiles which are used for forming [80]the floors of malt kilns. I have no doubt that the gutter could be made perfectly well in galvanised iron. What lengths of such gutters should be provided? To answer this question I can only give my own experiences.
Two years ago I constructed such a gutter for a girls' school where there are between 30 and 40 day scholars and boarders. I dug out my trench leading into a natural rivulet, and I formed a gutter 40 feet long. I do not think the slops in this case have ever travelled as much as six feet, and there is no evidence that a drop of slop-water has ever touched the rivulet. The privets have grown, but the gutter has never been foul, and when the tiles have been taken up the porous rubbish beneath has been found perfectly sweet, and there has been no sloppiness at the sides.
A similar gutter on a bank was provided for a six-roomed house, and the slop-water has never travelled to [81]the end, or anywhere near it, notwithstanding a considerable fall.
The water of a fixed bath has run for nine years into a gutter 20 feet long, and at times as much as 120 gallons a day has flowed into it, but the water is never visible two minutes after the waste has ceased to flow; there has been no foulness of any kind, and the only effect has been to make the shrubs grow.
The bedroom slops of a country mansion with twenty-three inhabitants were taken, eighteen months ago, into a plantation, and the only result has been that the limes have thrown up suckers, but there has been neither sloppiness nor foulness.
The bedroom slops of a cottage with five inhabitants have run for five or six years along a gutter 12 feet long, at the foot of a privet hedge, and there has been neither sloppiness nor foulness, except when, as stated above, I produced stagnation.
4. When it is feasible, it is advisable to allow different varieties of slops to flow in separate gutters.
The waste of fixed baths is almost clean, containing nothing but a little soap at most; bedroom waste contains soap and urine, but no solid particles of any size to give trouble, except a stray bit of paper, or an old match, or a few hairs, and some fluff from towels, which will all be caught upon the perforated tiles, and can be swept up occasionally.
The waste from kitchen and pantry sinks needs careful straining and filtering before it is allowed to flow into an open gutter. I have mentioned the necessity of providing strainers and a sink-basket, and I now proceed to describe the slop-filter which is advisable for the kitchen sink (fig. 28). [82]The waste-pipe of the sink must terminate 2 feet or 2 feet 6 inches above the ground level, and be provided with a reversible nozzle delivering over a filtering vessel made of concrete or iron. This filter is in duplicate, and is provided with a diaphragm reaching to within an inch of the bottom. Each half of the vessel measures 1 foot by 1 foot 6 inches, and is 2 feet 6 inches deep, and has a capacity of 3·75 cubic feet. The outflow is immediately beneath the diaphragm, and empties into the open gutter. Each half of the filter is filled with stones varying in size from a hazel-nut to a walnut, and the waste is allowed to flow through one half of the filter, and then, when that half gets foul, the nozzle is reversed, and the second half is brought into use, and the half first used can be cleaned out. The filter must be provided with a fine copper strainer, and if the slops be carefully strained the filter will not get foul for months; but if lumps of fat and slabs of [83]cabbage-leaves be allowed to get into the filter, it soon gets foul, as does the abomination known as a fat-trap.
The method of purifying sewage by 'intermittent downward filtration' is well understood, and the methods advocated here are merely modifications of what has been done in this country, and also by the Massachusetts Board of Health.
What is meant by 'intermittent downward filtration'? How frequent are the intermissions?
The intermissions usually recommended are 'sewage for six hours and rest for twenty-four hours,' but my belief is that the purifying action of the filter-bed ceases directly the filter is filled and water-logged. The intermissions must be perpetual. The supply of slop-water in a private house is essentially intermittent, and this perpetual intermission is the secret of the success of the methods I have indicated. Between nine at night and seven in the morning—ten hours out of every twenty-four—the flow of slop-water is usually nil. Between 8 A.M. and 11 A.M. is the time of the bulkiest flow, but even this intermits. A housemaid's pail with its three or four gallons will come once in ten or fifteen minutes, so that the filter is always being emptied, and as the water drains off the fresh air follows it. The water of a fixed bath is practically clean, and gives the filtration gutter a vigorous stir, which does nothing but good. The domestic intermissions are invaluable. When sewage is collected in a tank and is then allowed to flow without intermission for six hours at a stretch, it is doubtful if the greatest purifying power is obtained from the filter.
Rain-Water.
Another point of great importance is the bestowal of rain-water. The usual method is to conduct the rain-water from the eaves by means of pipes which open directly into an underground sewer or empty over a gully which [84]runs into an underground sewer. This underground sewer conducts the rain-water either to a main sewer or cesspool, and the important fact to be borne in mind is that the length of underground pipes, whose main function is to conduct rain-water, are nothing but prolongations of sewers or cesspools which conduct the gases of putrefaction to many points round the dwelling, either at the ground level or the roof level.
There can be no reason why rain-water pipes should not end in a 'shoe,' and discharge over open gutters which might flow to a gully, if absolutely necessary, at a distance from the house. The practice of taking rain-water direct into underground drains is a great cause of damp walls. A year or so ago the rain-water pipes of a country house well known to the author, which ran direct apparently into the underground drain, were examined. In every case the underground drain was broken and leaky, and in some places completely choked by the roots of plants and trees, while the rain-water got away as it could, and kept the foundations of the walls perpetually soaked.
In the London house, with its cave-dwelling basement and narrow area, it is inevitable that the rain-water must flow to an underground sewer more or less directly, but there is no reason why this Cockney necessity should be adopted in the country. It is obviously advisable to conduct rain-water clear of the walls and foundations. The mediæval gargoyle was useful in this way, and I think I am right in stating that the 'flying buttress' was occasionally made to serve the purpose of a water-gutter with the same object.
Refuse.
It has been said that classification is the basis of all science, and it most certainly is the basis of the scientific disposal of refuse. Refuse matter is most varied in its [85]nature, and the items of which it is composed—excrement, rags, bones, paper, straw, sawdust, and other packing materials, cinders and ashes, old crockery, broken glass, old metal, &c.—all demand a different method of treatment.
When I see the grimy gentlemen in fan-tailed hats engaged in the marvellous operation of climbing over spiked railings with the object of filling a huge lumbering cart with a mixture of some or all of the things mentioned above, I feel that they are occupied in a bit of wilful mischief, and are merely increasing the dangers and difficulties of that sorting which is inevitable. In cities house refuse should be collected every day, and the sorting should be done at once by the collector, with the intelligent co-operation of the householder. Things dissimilar in nature should never be mixed. The first division is into putrescible and non-putrescible, and the former should be sent forthwith to the farmer to be dug into the ground. The non-putrescible refuse—glass, crockery, cinder, ash, metal—if sorted and temporarily stored in bins, would probably pay the cost of its collection and removal, and might perhaps yield a slight return. A great deal of the non-putrescible refuse might be of use to the sanitary authority on the spot for making foundations for paths and roads, or for scattering on the streets in slippery or frosty weather. Ash (not cinder) beneath the gravel on a garden path gives in time a firmness and stability which are remarkable. Whether it would work in with the macadam in road-making, and cause a similar improvement in the road, I do not know. It is difficult to understand why it should not do so. Non-putrescible refuse is not a danger to health, and it is certain that a great deal of it might be used for various purposes by the sanitary authority.
This immediate sorting is only possible when such materials are collected every day and the bulk is small.
It seems to me that much of our municipal scavenging is too magnificent, and that it is often inefficient in proportion to its magnificence. The nimble boys who collect the street droppings and store them in bins which contain nothing but the valuable and marketable manure are the type of what is good. The showy Clydesdale slowly dragging the most lumbering cart conceivable filled with an unmarketable mixture is the type of what is bad.
Farmers are shy of taking London sweepings, because, as one told me, 'they send such stuff.' All organic refuse is good for the land, but the farmer wants it in a form which does not hinder tillage. Pieces of oil-cloth, hamper lids, dead dogs and cats, and old tin canisters, are a nuisance to the farmer, and a very slight admixture of such things spoils the practical value (a different thing to theoretical value) of the manure which is mixed with them.
The sanitarian who loses sight of classification, and who, in his eagerness for a big scheme, is neglectful of details, has not mastered the elements of his trade.
The only rational treatment for excremental matters is immediate superficial burial, with a view to the production of crops, as detailed in 'Rural Hygiene.' It is to be hoped that, with this object in view, some municipality will purchase a tract of land and endeavour to give the poor an object-lesson on the right use of refuse. If convenient access to such a farm by means of canal, river, or railway siding could be obtained, it would make little difference whether it was two or twenty miles from the town, but the nearer the land is to the houses the better. Such a farm must be hand-tilled, and, if skilfully hand-tilled, would certainly produce as much food as a market-garden. It would employ an enormous amount of labour, and would at least pay its labour bill. I am not advocating that such [87]a farm should be used as a playground for the semi-criminal, semi-imbecile, and generally incompetent class who go to form the 'unemployed'; for the trade of agriculture, to be successful, demands both skill and energy. The 'unemployed' should be set to stone-breaking, street sweeping, dung-collecting, road picking and ramming, and scavenging generally, under the eye of foremen in town, and then, if found worthy, they might be exported to the farm.
Figs. 29 and 30 are intended to show the plan and section [88]of a group of the smallest town tenements, with a scavenger's alley between them and the three gutters, two closed at both ends, to be filled with absorbent material to collect the urine, and one to be filled with non-absorbent material to filter and aërate the slop-water, which should always flow in open channels when practicable. The 'scavenger's alley' should be protected by gates. It is thought that the excrement would be primarily collected in comparatively small vessels, like garden water-tanks upon wheels. The excrement having been allowed to drain before collection, and being in a semi-dry, sticky condition, would have no tendency to slop about during a journey, and in a covered vessel such as I have described might be sent any distance without danger or offence. Arrived at the farm the tank would be transferred to a second pair of wheels, and by being tilted would easily deposit its contents in a furrow previously made in the ground with a spade. The tank should be dried and lime-whitened and returned to the town, and three days after the deposit of the excrement in the ground, plants of the cabbage order should be [89]dibbled in. Cabbages and their allies are the only plants which really flourish in the fresh material; but after the cabbage crop has been harvested any garden crop may be grown, and it will be found that the fertility of ground treated as I have suggested is very great and very persistent.
The best method of treating kitchen waste and putrescible refuse, such as cabbage leaves and the trimmings of vegetables, &c., is to throw all together into a heap enclosed by a circle of wire netting. In the course of a few months complete humification will take place.
CHAPTER IV
OVERCROWDING, ITS CAUSES AND EFFECTS
I have been at some pains to demonstrate the dangers and inconveniences which are inseparable from houses built, as are the majority of town houses, upon an area which is wholly insufficient when considered in relation to their cubic contents.
Feeling, as I do, that the question of space round the dwelling is of the greatest importance—so important that every other sanitary regulation sinks into insignificance when compared with it—I have endeavoured to show how detached houses may, to their great advantage, be independent of the public sewers, and equally independent, if their owner choose, of public water supplies; and this I have done in the hope that in country places, and places which are developing, the precious boon of living in a detached house may be recognised.
While I am not slow to admit that water under pressure is a great advantage if it be wisely used, I have pointed out persistently for some years that our present system of water-carried sewage gives a 'fatal facility' to the overcrowding of houses, and has made life, of a sort, physically possible under conditions of overcrowding which have never been equalled in the history of the world.
In China and the East generally, be it remembered, the large population lives upon one plane. It has been left to [91]Europe and America to try the experiment of piling the city populations in heaps, of housing them in many-storeyed buildings, some of which (in America) are fifty times the height of a man.
The facilities for overcrowding which are afforded by big schemes of water-supply and sewerage are now well understood, and have caused the formation of 'Building Societies' throughout the country. A large number of these societies during the past few years have been proved to have been dishonestly managed, and have involved widespread financial disaster amongst the poor and thrifty.
The mode of proceeding of these societies is to buy up, on the outskirts of towns having a system of sewers and a common water-supply, plots of land abutting on roads which have been sewered at the expense of the ratepayers.
These plots are then sold to purchasers who pay 10 per cent. deposit for possession, and pay the rest of the purchase money in monthly or quarterly instalments for a term of years, 10 or 15, as the case may be, with 5 per cent. interest. Thus the artisan, having paid a most exorbitant price for a plot of ground, starts in life with a mortgage round his neck, and probably finds, should anything interfere with the regular payment of instalments, that he has a hard-faced usurer to deal with, who merely concealed his identity behind the title of 'Company, Limited.'
The accompanying diagram (fig. 31) gives a good idea of the development of a district subsequent to sewering. It has been copied from the prospectus of a Building Society. A A A is an old road having houses on the north side only; B B B is an old road with houses on the south side only, i.e., seven dwelling houses in a course of more than half a mile.
The space between A A A and B B B was, until a few months [92]ago, a market garden full of fruit trees, and about nine acres in extent.
A few years ago A A A and B B B were sewered at the expense of the ratepayers, and very soon afterwards this market garden was bought by a 'Building Society' and converted into a 'building estate.'
It is obviously a very 'eligible' estate, for there is a Railway (R.), with a Station (S.), a Post and Telegraph Office (P.O.), a Church (Ch.), and two Public Houses (P.H.). None of the elements of modern civilisation are wanting. After the sewering of roads A A A and B B B, the District [93]Council, in a fit of zealous extravagance, destroyed the gravel paths at the side of B, and put a 12 by 6 inch kerb, and laid half a mile of granolithic pavement for the benefit of the aforesaid seven houses.
When the Building Society issued its prospectus the plots abutting on the old roads A A A and B B B were sold at once, and the reason is obvious, viz., that the roads are ready made and sewered; and a note with regard to road B B B says, 'This road is a highway maintainable by the local authorities, who will provide a proper footway in front of the plots in due course.' The ratepayers as a whole are to provide pavements for the speculative builder in this particular instance, and it is evident that the owners of the plot and the Local Council had come to an agreement in the matter. The houses abutting on the new roads, Z Z Z, will, in addition to the purchase money for the land, be charged 3s. per foot frontage for sewers, and 'also such a proportion as their surveyor shall assess of the expense of repairing and maintaining the road or roads, until the same shall be handed over to the local authorities.' On an adjoining property the cost of 'making up' a private road was estimated at 12s. per foot run, so that the cost would amount to between 10l. and 11l. for a plot having a frontage of 18 feet, and might form a ruinous charge on some of the corner plots.
The ground will accommodate 177 plots, and the plots facing the old roads fetched 3l. a foot. Of these there is room for fifty-nine, having a frontage of 20 feet each, so that the price paid for these at 60l. per plot would be over 3,500l.; and if the remaining 118 plots fetched 40l. each (4,720l.), the total price realised for this 9 acres would be over 8,000l., in addition to the charge for sewerage and road-making.
When, moreover, it is remembered that the society may possibly hold a mortgage on every plot and every house, for [94]which they get 5 per cent. and excellent security, it will be admitted that running a 'Building Society' is a tolerably profitable business.
If all these plots are sold there will be a population of over 1,200 persons on 9 acres of ground, and the ratepayers will be at the charge not only of educating the children, but of providing hospitals for the segregation of infectious diseases, allotments, free libraries, open spaces, and additions to the sewerage works for dealing with the sewage of 1,200 persons.
When a 'progressive' municipality sets to work to 'develop' its district (a speculative and hazardous process, which it should leave to private enterprise), the ratepayer soon begins to see that a great diversity of interests has to be served.
The little shopkeeper (and it is of this class that Boards and Councils are largely composed) wants the greatest number of people on the smallest space; and he sees that in proportion as the dwelling has an insufficient curtilage, so are its inhabitants wholly and entirely dependent on the shop.
The person with a fixed income who settles in a district wishes the district to remain picturesque, rural, and quiet, and, above all, he desires that the 'rates' may be kept down. He naturally objects to be taxed for the sewering of country roads in order that the fields may be covered with courts and alleys of jerry-built houses, and equally he objects to be taxed in order that every railway station in the country may display a large invitation to trippers to invade his solitude and make his life a burden.
All sanitarians are agreed that mortality and density of populations are directly proportional. The following figures, taken from Table R (p. xlvii.) of the decennial supplement of the Registrar-General (1895), show this very [95]clearly, as does also the diagram of the mortality figures for London (p. 144).
| Persons to a square mile | Death-rate (corrected) |
| 138 | 12·70 |
| 187 | 14·48 |
| 307 | 16·47 |
| 662 | 18·55 |
| 1,803 | 20·43 |
| 3,299 | 22·30 |
| 4,295 | 24·51 |
| 19,584 | 33·00 |
The corrected death-rate for 'Urban England,' as given by the same authority, is 22·32, as against 16·95 for 'Rural England.'
To form a just estimate of the comparative healthiness or unhealthiness of a great city like London is no easy matter. The composition of the population is, especially in the central parts, so abnormal in regard to age and sex that unless corrections be made for this abnormality any comparison of London with other places is futile. Such corrections are now made by the Registrar-General.
It is probable that in no city are the annual variations of population greater than in London. The population of June (the height of the season) and the population of September (when 'everybody is out of town') must be very different. In September the rich go to the country, the shopkeepers go to the seaside, and the poorest of the poor go hop-picking. The School Board attendances for the first week of September show a deficit of 80,700 children, or 11·1 per cent., figures which clearly demonstrate that the autumn exodus is not limited to the wealthy classes.
It is at this season that we see paragraphs in the paper to the effect that the death-rate of some London parish for the Michaelmas quarter reached an incredibly low figure, and we are asked to infer that the population, thanks to the wise policy pursued by the vestry, is fast making for [96]immortality. Of course such statements are not worth the paper they are written on, because there are no data as to population, and the period chosen is so short as to be valueless.
In estimating the death-rates of different sanitary areas of London it has been customary for the last six years to distribute the deaths occurring in institutions to the districts to which the deceased 'belonged,' and to exclude entirely the deaths of persons belonging to districts outside registration London; in this way about 1·5 per cent. of the deaths occurring in registration London may be excluded. This manœuvre helps to diminish the London death-rate, but, as no account is taken of sick people who leave London to die elsewhere, it is manifestly an unjustifiable thing to do.
If the strangers who die in London institutions are to be excluded, it is a question whether all strangers merely sojourning in London ought not to be excluded from the estimate of population. Again, a man comes from the country and is knocked down by a vehicle in the street and dies in a London hospital; or during a sojourn in London he gets caught in a London fog and dies of bronchitis; or he 'catches' influenza, or pneumonia, or diphtheria in London and dies. Surely the deaths of these three ought to be credited to London in all fairness. It is a very dangerous thing to 'cook' statistics, and we do not get much nearer the truth by doing so.
The best indication, probably, as to whether the conditions of life in any locality are healthy or the reverse is the infant mortality; in this way we exclude the fallacies due to abnormal age distribution, because we compare identical age periods; and the proportion of the sexes among children is practically the same everywhere. We exclude also the influences of occupation. By studying the mortality of children under five we are studying the influ[97]ence of the home and home surroundings on the incidence of disease, which is particularly what we wish to do.
In the decennial supplement of the Registrar-General published in 1896, Dr. Tatham gives a table (Table II. p. lxxxii. et seq.) of the 'annual death-rate per million living among children under five years of age, from all causes and from several causes, 1881-90.' This valuable table ought to be most widely studied. Being based upon statistics of ten years intervening between the censuses of 1881 and 1891, the estimates of population have a maximum of reliability, because we are relieved of the errors inseparable from statistics referring only to short periods of time.
It is constantly stated that London is the healthiest city in the world, a statement which, if true, must make us very sorry for the other cities. In Dr. Tatham's table, alluded to above, he first deals with counties.
We find that the death-rate of children under five from all causes in England was 56,825 per million; that the highest death-rate among children was in Lancashire (72,795), and the next highest was in the county of London (68,164). The lowest death-rate was in the county of Dorset (35,651).
Table Legend:
A = Smallpox
B = Measles
C = Scarlet fever
D = Diphtheria
E = Whooping cough
F = Fever
G = Diarrhœa
H = Tuberculosis Disease
I = Respiratory Disease
| All Causes | A | B | C | D | E | F | G | H | I | |
| Lancashire | 72,795 | 37 | 5,053 | 2,454 | 706 | 3,805 | 285 | 6,461 | 5,364 | 17,037 |
| London | 68,164 | 240 | 4,743 | 1,780 | 1,371 | 5,342 | 165 | 5,444 | 6,581 | 16,021 |
| Hampshire | 42,222 | 10 | 2,005 | 505 | 939 | 2,508 | 280 | 2,783 | 3,299 | 9,011 |
| Dorsetshire | 35,651 | 4 | 1,748 | 488 | 493 | 1,815 | 62 | 1,305 | 2,401 | 9,390 |
I have also thrown in Hampshire, because not only is it my own county, but it is a mixed county, largely rural, but also containing the big towns of Southampton and Portsmouth.
Looking at these four in tabular form, we see that in Lancashire the mortality from measles, scarlet fever, fever, diarrhœa, and respiratory disease was greater than in London; and in London the mortality from small-pox, diphtheria, whooping cough, and tuberculous disease was greater than in Lancashire.
In Hampshire and Dorsetshire the mortality was very much less from every cause than in either Lancashire or London.
It is important to point out that the deaths of children from tuberculous disease are greater in London than in any other county, and that the deaths from tuberculous and respiratory diseases combined are greater in London than in Lancashire.
We have seen that the mortality of children under five averaged for the whole of London 68,164 in the decennium 1881-90, while that for England and Wales was 56,825, or, omitting the last three figures, let us say they were 68 and 57.
Examining the various registration districts more closely, we find that the child mortality was less than the average for England and Wales in four London districts only, viz., Lewisham (44), Hampstead (48), Woolwich (51), and Wandsworth (56), districts which are all on the outskirts of the place we call London. Certain other districts had a child mortality less than the average of London as a whole, viz., Camberwell (59), Hackney (60), Islington (61), Paddington and Kensington (63), Greenwich (63), St. Pancras (66), Fulham, Poplar, and Lambeth (67).
All the other districts had a child mortality greater than the average of London, viz., Mile End (69), St. George's, Hanover Square (71), Westminster (72), Chelsea and St. Olave's (73), Marylebone (75), Bethnal Green (76), Shoreditch (78), St. Saviour's (79), St. Giles's (80), Holborn (82), [99]Whitechapel (85), St. George's in the East (87), the City (90), Stepney (99) and the Strand (109).
With the exception of the City, Stepney, and the Strand, there are only two registration districts in the whole country which have a child mortality over 90, viz., Manchester (93) and Liverpool (114). To Liverpool therefore belongs the distinction of being the most unwholesome place for little children in the whole country, and the 'Strand,' which constitutes the very centre of London, comes next.
Let us examine these figures more closely, and let us throw the child mortality of Liverpool and the Strand into tabular form, and contrast them with the registration district of Andover, in Hampshire, a district which I select for reasons which will appear later.
Table Legend:
A = Smallpox
B = Measles
C = Scarlet fever
D = Diphtheria
E = Whooping cough
F = Fever
G = Diarrhœa
H = Tuberculosis Disease
I = Respiratory Disease
| All Causes | A | B | C | D | E | F | G | H | I | |
| Liverpool | 114,253 | 29 | 9,492 | 2,966 | 852 | 5,894 | 483 | 9,818 | 7,138 | 26,080 |
| Strand | 109,596 | 38 | 6,626 | 1,828 | 4,760 | 6,359 | 76 | 7,692 | 11,881 | 30,122 |
| Andover | 32,260 | 0 | 1,227 | 307 | 225 | 2,505 | 153 | 1,074 | 2,096 | 7,209 |
From this table it appears that the mortality from measles, scarlet-fever, and diarrhœa was greater in Liverpool than in the Strand; but that the other diseases scheduled were more fatal in the Strand than in Liverpool.
We have previously pointed out that the deaths of children from tuberculous and respiratory diseases are greater in London than in any other county, and now we find that the death-rate of children from these two classes of diseases amounted in the 'Strand' to 42,003, far and away the highest figure in the country, Liverpool coming second with 33,218. The death-rate of children from the same causes [100]in Andover was only 9,305, considerably less than a quarter of the Strand death-rate.
Thanks to vaccination and the purity of the water-supply the mortality in the Strand from small-pox and fever is very small, but the mortality of children from the acute air-borne contagia (measles, whooping cough, scarlet-fever, and diphtheria), and still more from the chronic air-borne contagia, is fearful to contemplate.
The big mortality from tuberculous disease forces upon us the reflection that a large number of children who become tuberculous in the 'Strand' do not die within the age limits with which we are concerned, but drop off later in life after years of invalidism and suffering. We have seen that children under five are decimated yearly in the Strand. How many more are crippled for life?
The deaths of children under one year of age per 1,000 births is a safe criterion of the health conditions of a locality. This figure for the ten years 1881-90 was, for the whole of England and Wales, 142. In London, we find that in five districts (Hampstead 117, Lewisham 121, Woolwich 124, Hackney 137, and Wandsworth 141) this mortality was below the average of the whole country, while in the remaining twenty-five districts it was above the average.
In Paddington, Islington, Camberwell, Lambeth, Greenwich, Mile End, Poplar, and Marylebone, it was above 142 and under 150. In St. Pancras, Kensington, St. George's (Hanover Square), St. Giles's, Bethnal Green, and St. Olave's, it was above 150 and under 160; in Chelsea, Fulham, Westminster, Holborn, Shoreditch, and St. Saviour's, it was over 160 and under 170. The City was 171, Whitechapel 173, St. George's-in-the-East 182, Stepney 196, the Strand 226.
To show what this figure of 226—the infant mortality of the Strand—means, I will give the infant mortality of some of the worst towns in Lancashire: in Liverpool 219, [101]Wigan 161, Bolton 163, Salford 183, Manchester 193, Ashton-under-Lyne 173, Oldham 169, Rochdale 145, Burnley 184, Blackburn 178, Preston 203. On the other hand, one may say that the infant mortality of Andover, which has just adopted a great part of the London Building Act, with the approval of the Local Government Board, was (for the ten years 1881-90) 91, or 23 per cent. less than the best of the London districts, and nearly 60 per cent. better than the Strand.
Glancing at the other Hampshire districts, one may note that in the New Forest the infant mortality was as low as 80, and that it was only in Portsea Island (139), Alverstoke (123), and Southampton (135) that even the lowest of the metropolitan figures were approached. It is interesting to note that even the worst districts in Hampshire are below the average of the whole kingdom in the matter of infant mortality.
The Strand
I have previously alluded to the high mortality of the Strand registration district, and my remarks on one occasion were contemptuously dismissed, with the criticism that it was unfair to judge of the state of London by the health of the slums.
It becomes necessary therefore to say that the Strand registration district includes the Temple, St. Clement Danes, the Precinct of the Savoy, St. Mary-le-Strand, St. Paul, Covent Garden, and St. Martin's in the Fields.
Its southern boundary extends from the Temple Stairs to Whitehall Court, along the Thames Embankment. From Whitehall Court, the western boundary runs through the 'Horse Guards' and through the middle of Buckingham Palace to the top of Constitution Hill. It includes the [102]whole of the Green Park, but none of the houses abutting on it, with the exception, I believe, of Stafford House. From Stafford House the northern boundary runs south of Pall Mall, and includes Clarence House, St. James's Palace, the War Office, Marlborough House, and Carlton House Terrace. Thence the boundary runs up the Haymarket, along the north side of Leicester Square and Long Acre to Drury Lane and by Sardinia Street and the south side of Lincoln's Inn Fields to Chancery Lane, the south end of which constitutes its eastern boundary.
This district includes parts of four royal palaces and also Somerset House, Horse Guards, Admiralty, War Office, National Gallery, and National Portrait Gallery. In it are to be found five churches (Temple, St. Clement, St. Mary, St. Martin, St. Paul, Covent Garden), Exeter Hall, and more than twenty of the largest and best known theatres and music-halls. The Constitutional and National Liberal Clubs are within its boundaries, and its numerous huge hotels are famous throughout the world.
The worst parts of the district are in the north-east, but one must mention that it does not include the Seven Dials or the north half of Drury Lane. Clare Market, the south end of Drury Lane, Drury Court and Bedfordbury, are the slums of the Strand registration district. It is not a poor district. The percentage of persons 'in poverty' in London as a whole is given by Mr. Charles Booth as 30·7, while that for the Strand is only 23·9.
Many of the labourers employed in Covent Garden Market and in the theatres earn very good wages, but Mr. Booth specially mentions the fact that in some of the lowest districts house rent is very dear. Wages is a relative term, and the potential prosperity of a person is only to be determined by subtracting from the earnings the cost of the necessaries of life, inclusive of house rent.
It is obvious, however, that the prime necessary of life (fresh air) is not to be had in the Strand at any price.
It may be well to add that the Strand sanitary area is not co-terminous with the Strand registration district, which we have been considering. The chief difference is that the former includes St. Anne's, Soho, and excludes St. Martin's in the Fields.
This district of the 'Strand,' which I have chosen because it is the most unhealthy district in London, and in some respects the worst in the whole country, is, so to say, the pulpit from which the British have preached sanitation to the whole world. In it we find the offices of the Registrar-General and the London County Council; the Temple, where Sanitary Bills are drafted, and the Law Courts, where the sanitary law is administered; the Royal College of Physicians; the Examination Hall where candidates for diplomas of Public Health and Medicine are examined, and also the offices of the 'Lancet' and the 'British Medical Journal.' The Royal College of Surgeons, the Local Government Board and Imperial Parliament, if not within, are only just outside its limits.
It is doubtful if any district in London or any other city is better provided with open spaces than the Strand. St. James's Park and the Green Park are both partly within its limits. It has the Embankment and the Thames to the south, the Temple Gardens to the east, Lincoln's Inn Fields to the north-east, and Trafalgar Square in the centre. It is wonderfully provided with what are miscalled 'lungs,' but it is evident that lungs are of little good if the blood only circulates in them occasionally on a Sunday. It is well to bear this fact in mind, because our municipal governors sometimes talk as if the provision of 'open spaces' at exorbitant and extravagant cost could compensate for overcrowding in the dwelling, with a lack of light and air therein.
It is in the Strand, more than in any other district, that houses have been built of great height and enormous cubic capacity without any curtilage whatever. I have attended 'banquets' at more than one hostelry in this district where 150 or 200 persons have been fed in a room having no outside windows of any kind, and where, late in the evening, the guests have been provided with a little fresh (!) air by opening glass partitions communicating with a huge 'coffee-room' or table d'hôte room. These rooms are made by enclosing what ought to be open courts in the centre of these huge hotels, and their utilisation is only possible because of the perfection to which the science of artificial illumination has been brought. There can be no health without daylight, and sunlight, and fresh air, but the electric light is good enough to make money by.
To a greater or less extent, throughout London the height of the houses has been gradually raised, and the available curtilage has been built upon. This is seen in the dwellings of the rich, and there is no doubt that the conditions which lead to overcrowding are all intensified in the poorer quarters.
Building Regulations
Part V. of the London Building Act, 1894, provides for open spaces about buildings and height of building.
It provides, in the case of new houses in new streets, for an open space in the rear, exclusively belonging to such building, of at least 150 square feet, free from erections except W.C. and ashpit. Where the ground storey is not inhabited, this open space may be provided at a height of 16 feet above the level of the pavement. The open space must extend the entire width of the building and have a depth of 10 feet at least.
A diagonal line drawn from the rear of the open space [105]on the pavement level, and inclining towards the building at an angle of 63°·5, shall clear the top of such building save chimneys, dormers, gables, &c. This means that the house may be at all levels twice as high as the space is deep.
When a house abuts at the rear on a street or permanent 'open space,' then no private open space or curtilage need be provided.
'Nothing in this section shall apply to houses abutting in the rear on the river Thames, or on a public park, or on an 'open space' of not less than 80 feet in depth which is dedicated to the public, or the maintenance of which as an open space is secured permanently or to the satisfaction of the Council by covenant or otherwise.'
In new streets less than 50 feet wide no house may be erected having a height greater than the width of the street.
No house may be more than 80 feet high without the special permission of the Council.
These regulations, from the point of view of health, are as bad as can be, because they put a premium, so to say, on buildings of enormous cubic capacity. We have seen that the provisions as to private curtilage are limited to a back yard 10 feet deep, but in the case of houses abutting on two streets, front and back, or abutting on a street and 'open space' 80 feet deep, these restrictions are dispensed with.
If an open space, acquired and maintained at enormous cost, is to be an excuse for surrounding it with huge blocks of 'flats' 80 feet high, it is not difficult to see that their effect on the public health will be mischievous rather than beneficial. There is no advantage in looking out on an open space through a closed window, and the great problem in London is how to manage that young children under school age are to breathe the external air which is essential to their [106]proper development. In the country the perambulator is pushed into the garden, and through the open door the mother at her work can have an eye upon her children. But for a family occupying a set of rooms in a 'model dwelling,' when the father is gone to work, the elder children at school, and the mother busy, there is nothing for it but to allow the children to breathe the air of the living-rooms, fouled from many sources. These children seldom breathe external air, and never breathe really fresh air. When they are a little older, they fluctuate between crowded two-storeyed schools, a fetid home, and an 'open space' (perhaps 80 feet wide and surrounded by houses 80 feet high!). Is it to be wondered at that the even tenor of their way is interrupted by diphtheria and scarlet fever, or that 22 per cent. die without ever keeping a birthday, and that children under five are more than decimated annually?
One must rejoice to think that in new houses (mostly) on the outskirts the little child will have a back yard to play in, having an area of at least 150 square feet (with deductions for the permitted erections).
The little child in the 'Strand' will enjoy no such luxury, and how it is to get any fresh air before it is old enough to play in the fearfully crowded and dangerous streets is a mystery.
These regulations of the London Building Act seem to point to the fact that 'betterment' really means overcrowding in houses of enormous cubic capacity.
I shall be told, and rightly, that the horrible overcrowding of houses in the centre of London is caused by the high price of building land, and that it cannot be prevented. Further, I shall be told that, in spite of the overcrowding and general unsanitary conditions, rents are [107]increasing. This is also true as regards some districts, but, as I have said before, there is no relation between hygiene and money-getting. But there is no reason why we should deceive ourselves as to the results of overcrowding. They are set forth with absolute plainness by the Registrar-General, and we must be thankful that we have an official statistician who is above local considerations, and who does not feel himself called upon to keep unpleasant facts in the background. There is yet one Balaam among the prophets.
I have for years combated the oft-repeated statements as to the 'healthiness' of London, not because I expect that London will alter its way, but because rural places and the Colonies should not blindly follow the lead of London, in the belief that they are following a good sanitary model, and that disastrous consequences will not inevitably follow upon a reckless overcrowding of houses.
The prime object of overcrowding was for safety. Cities were originally walled fortresses, and people crowded into them for protection, and were killed by epidemics instead of by their enemies. Modern sanitation favours overcrowding, and this it is which makes it so popular, for overcrowding favours money-getting.
When sewer pipes and water pipes are laid throughout a district it becomes possible (but not till then) to build houses without curtilage, except a 10-foot back yard.
If, therefore, rural places are reckless enough to perpetrate a 'sewage scheme,' it becomes very necessary to check the overcrowding of houses.
'Model' (!) By-laws
I am sorry to say that the Local Government Board does not appear to be sensible of this necessity.
My reason for this statement is (to quote an example [108]within my own knowledge) that the Local Government Board a little more than a year ago sanctioned the adoption of 'model' (!) by-laws by the borough of Andover, and on examining these by-laws, which cover 69 closely printed large octavo pages, and comprise hundreds of sections and sub-sections, the bulk of which must be quite incomprehensible to the Town Council, I find that as regards buildings many of the clauses are practically identical with those of the London Building Act.
The Local Government Board does not seem to recognise that circumstances alter cases, and that the regulations which may be beneficial in the crowded and filthy slums of a great city, may he mischievous in a village or country town. Andover is an exceedingly healthy little town, as the table on p. 99 will show, and in it there must be very few, if any, houses more than 50 feet high, and the great majority of the houses and cottages have large yards or gardens.
And yet the Local Government Board sanctions regulations for this town which permit the erection of dwelling houses a hundred feet high! with a backyard 25 feet deep!! and it further allows the adoption of the minimum of 150 square feet of back yard for dwelling houses.
In illustration of this, reference may be made to figs. 32, 33, 34, which are borrowed from Knight's 'Model By-laws,' published under the authority of the Local Government Board. Fig. 32 shows the 'model' open space for a cottage, fig. 33 for a house up to 25 feet high, and fig. 34 the maximum which is necessary, even though the house be 100 feet high or more.
These regulations may be good in London, but when such regulations are printed in the by-laws of rural places they become dangerous and wicked suggestions, which one fears the local builders will not be slow to adopt, especially [109]if the town be sewered throughout, which happily as yet is not the case.
These elaborate building regulations as applied to [110]country places are absurd. I do not say that in the case of houses abutting on the streets and which touch other houses some control by the local authority is not necessary, or that the local authority is not to exercise supervision as to the manner of making connections of houses with sewers, water pipes, and gas pipes.
But it is clear that all harassing regulations are out of place when they are applied to isolated dwellings which are wholly detached and separated by a moderate interval (say a distance equal to the height) from the boundaries of other premises. The man who builds a detached house ought to be encouraged, and not worried, and the insurance offices and the owner may be left to see that the construction of the house is good enough.
These by-laws contain a prohibition of overhanging storeys (in the old English fashion), which may be reasonable enough in crowded streets, but are unreasonable and silly when applied to isolated dwellings. A friend of mine had a fancy to build a house of this kind in the middle of three acres of land which he bought in Hertfordshire, and after he had been at the expense of getting out his plans, &c., he found that such a building was against the by-laws. However, he discovered means to 'square' the local jacks-in-office, and his very pretty house was built, and is a decided ornament to the district.
These by-laws are an expense to ratepayers, and they increase the cost of buildings. Elaborate plans and descriptions have to be furnished, and the buildings have to be inspected at various periods of their construction, and, of course, all variations of plan which may appear necessary in the course of construction must also be submitted and 'passed' by the local authority. It may happen that there are members of the local council who understand the technicalities of the building trade; but even if this be the [111]case, it is manifestly unjust that the plans of a builder who is outside the council should be submitted to and judged by a competitor who happens to be inside. As a rule, the council is completely in the hands of the local surveyor, and the local surveyor exercises despotic power over all building operations.
This leads us to ask the question, 'What is a surveyor?' Lawyers and doctors have to be 'legally qualified,' and the ratepayers have some guarantee that the town clerk and medical officer of health know something of their business. But it is difficult to get a similar guarantee with regard to that terrible despot, the surveyor to the local board.
Whether the surveyor be learned or ignorant in the matters which he undertakes to survey must always be a matter of doubt, but it is evident that a person who exercises such arbitrary power ought on no account to be allowed to practise his profession for his private gain. Humanum est errare. We must not expect an impossible standard of morality in any man, and no surveyor ought to be placed in the invidious position of sitting in judgment on his own plans.
These arbitrary by-laws must tend to check building operations, and to hinder the development of the art of the architect and the science of the builder. The restrictions are another instance of
and I feel certain that, in the interests of the public health, builders of isolated dwellings ought to be allowed to escape from the despotism which is so dear to modern democracy.
Everything which tends to encourage the provision of adequate space round dwellings is a great gain.
Such by-laws as I have quoted, when applied to country [112]places, and when no exceptions such as I have indicated are made, are a downright incentive to overcrowding, and mischievous in the highest degree.
The Cost of the Dwelling
Everything which increases the cost of the dwelling must tend to increase overcrowding.
The London rents are enormous; the artisan pays 7s. or 8s. for accommodation which he could get in a village for 1s. 6d., and in a country town for 2s. 6d.
The rich man pays his 200l., 300l., or more for a house (without a square inch of curtilage) which out of London would fetch 40l. or 50l. at most.
In London it happens, probably, more often than elsewhere that people pay in house-rent a sum which is an excessive proportion of their income, and their finances feel the strain of slight increments to the cost of the dwelling, and they are often driven to take lodgers or 'paying-guests'; or people apparently well off give up their houses and take a 'flat,' in which the crowding is excessive.
This kind of thing goes on among the well-to-do classes, and certainly to a greater extent among the poor.
When we consider the charges, other than rent, in London as compared with country houses, we must never forget that, rents being three or more times as high in London as elsewhere, the rating in the pound ought to be multiplied by three or four before we can compare London rates with country rates.
Or we must take some other basis of comparison, such as the area occupied or the cubic contents. A house which I lived in in London for twenty-five years occupies an area of 18 by 72 feet, or 1,296 square feet, or 144 square yards.
The rent was originally 180l., which was raised to 200l. when the lease was renewed in 1892; i.e. the rent was originally 1l. 5s. per square yard, and is now 1l. 8s. per square yard. 'The rateable value' has been gradually pushed up from 150l. to 184l., and the gross value has lately been set down at 220l., or 10 per cent. more than the rent (because the tenant undertakes to do the repairs).
The changes other than rent have been as follows:—
| 1873 | 1896 | ||||||
| £ | s. | d. | £ | s. | d. | ||
| Income Tax | } | 9 | 15 | 0 | 14 | 18 | 4 |
| Inhabited House Duty | } | ||||||
| Parochial Rates | 30 | 0 | 0 | 55 | 19 | 4 | |
| Water | 6 | 8 | 0 | 7 | 10 | 6 | |
| Total | 46 | 3 | 0 | 78 | 8 | 2 | |
| Rent | 180 | 0 | 0 | 200 | 0 | 0 | |
| Grand total | 226 | 3 | 0 | 278 | 8 | 2 | |
Thus it will be seen that the cost of this house (which has not been enlarged in any way) has been increased by 23 per cent. The rent has increased 11 per cent., or 20l. a year. The rates have increased by nearly 87 per cent., or very nearly 26l. a year.
The imperial taxes have increased nearly 53 per cent., or 5l. 3s. 4d. per year, and the water by nearly 18 per cent., or 1l. 2s. 6d. per year. It will be noted that while the tenant in this case submitted to an increase of 11 per cent., the charges over which the tenant has practically no control have increased in a much higher ratio, and now amount to 78l. 8s. 2d., or more than 10s. 6d. per square yard of occupied land, the total cost of the house being 1l. 18s. 6d. per square yard, or, including repairs, more than 2l. per square yard.
The total obligatory charges (rent, rates, taxes, and [114]water), which in 1873 were 226l., had risen in 1896 to 278l. In the same time the interest on 100l. invested in Consols has fallen from 3l. 5s. to 2l. 10s.
In 1893 a sum of 7,000l. invested in Consols would have paid the obligatory charges on this house. In 1896 these charges could only be met by a sum of 11,000l. invested in Consols.
Looked at in this way, the cost of the dwelling has risen 57 per cent. in 23 years, the size of the dwelling remaining constant.
The charge for water has been included because no house is habitable without it, and in this case the tenant cannot sink a well, because the house is totally without curtilage of any kind, and the rain-water having fallen through the London air is so foully dirty as to be unusable.
The householders of London rightly view with alarm the rapid increase of the sum levied for rates. This sum has increased at the rate of more than 3 per cent. per annum during the twenty-five years I lived in the house I have been describing, and now amounts to rather more than 7s. 6d. per square yard occupied. The average householder is naturally nervous and apprehensive; he is getting unwilling to take a house for a long term, and is squeezing his household into 'flats,' in which (as the landlord pays the rates) the yearly expenditure on house accommodation is fairly calculable. The attractiveness of the flat is further enhanced by short-term leases, so that, should illness or a financial mishap befall him, he will be less heavily weighted than would be the case if he were the owner of a long, unmarketable lease.
I think we may take it for granted that if the well-to-do classes are showing a tendency to overcrowd, this tendency will be found to get progressively more intense as we descend in the social scale. The well-to-do occupiers of [115]flats have to be content with what may be called 'rather close quarters,' but their servants are often squeezed into rooms scarcely bigger than cupboards. It is not conceivable that those who are in a dependent position will have better accommodation than those whom they serve.
Remedies for Overcrowding
The final question is, What can be done to prevent overcrowding of houses and of persons in the house?
I freely admit that very little can be done in big towns, and people must be left to judge for themselves as to whether they will allow their children to run the extra risk of death, crippling disease, or defective development, inseparable from life in a crowded city. The statistics of the Registrar-General (i.e. the Annual Summary and the Decennial Supplement) show clearly what these risks are, but it is necessary to add that some of the local statistics manifest at times an undue desire to minimise the mortality of the district from which they emanate.
A great metropolitan city like London, concerning which we are educated from our cradles to utter big boasts, exercises an enormous influence on public opinion, but it is perfectly clear that she is a dangerous model to follow in the matter of house-construction.
I call to mind the case of a great London builder who bought a country mansion in a park. He was a very able man, but when he carried out some alterations and additions to his new house he found it impossible to cast away his town-bred ideas, and accordingly built underground kitchens and coal cellars, and had the coals put into his cellar through a plate in the pavement just outside the drawing-room window. He had been so long accustomed to build houses with a minimum of area, that when he had [116]an unlimited space at his disposal he failed to utilise or appreciate the advantages of such a boon.
Country places should be careful to avoid the adoption, as by-laws, of regulations originally framed with the idea of mitigating the horrors of the London slums. With regard to these regulations, it must be remembered that 'the trail of the Cockney is over them all,' and it has been shown that regulations, especially as to space round dwellings, which may be beneficial in the Seven Dials become mischievous suggestions when printed and circulated as the by-laws of a country district. It seems almost incredible that the Local Government Board should sanction the adoption of some of these by-laws by country communities.
The exigencies of space in London have led to the construction of underground offices, with the result that at least a tenth of the inhabitants of modern London are cave-dwellers; and in the by-laws from which I have quoted I find no attempt to penalise, or in any way to restrict, the perpetration of similar barbarities in the country.
If there be underground 'offices,' the drains of the house will leave it at a level of some 10 feet below the ground level, and the public sewer must be at least 11 feet underground, and the laying of sewers at such a depth is relatively expensive. As there are extra charges for high level water service, ought there not to be similar extra charges for low level drain service?
The great blot on modern sanitary legislation is the entire absence of any encouragement for the sanitary well-doers.
Sanitary legislation is founded on a basis of mischievous lop-sided socialism, in which the sanitary well doer is heavily taxed for the support of the jerry-builder, and is [117]called upon to pay for all the shortcomings of the negligent and filthy.
Encouragement ought to be given to the man who builds a house with ample curtilage; and if such house be removed from all other dwellings by a distance equal to its height, he ought to be freed from the restrictions of harassing by-laws, and the despotic control of district surveyors whose credentials are often of the flimsiest, and whose ideas are stereotyped.
The idea which was prevalent a few years ago, that open spaces should be taxed at 'site value' is, one must hope, dead. Its obviously mischievous tendency needs no comment.
The only equitable basis for calculating the rateable value of a house for sanitary purposes is the cubic capacity, because, as a broad rule, the bigger the house the greater is the amount of work which it throws upon streets and sewers. The 'grounds' or 'curtilage' of a house ought to be very leniently taxed, although one must admit that streets and pavements ought to be paid for in proportion to house and ground frontage.
If a man spend money in beautifying his house without enlarging it, this ought not to entail an increase in rateable value for sanitary purposes. Such beautifyings are good for trade in a proper sense, and ought not in the interests of the community to be checked.
The rich man who has a fancy for a fine house has already had his income handsomely taxed, and it seems scarcely just or wise that he should be further directly taxed for spending his income.
Horses if of similar dimensions used to be equally taxed, and no distinction was made between the 'Thoroughbred' and the 'Screw,' which was quite equitable, because the owner of the former had already paid income tax.
I have been at some pains to point out that in country or semi-rural districts, where it is possible to give a house a decent curtilage or small garden, it is easy for a householder to make the sanitation of his dwelling quite independent of the local authority. In fact, the householder is able if he be so minded to make his sanitation complete, and to finish, on his own premises and to his own profit, that 'circulation of organic matter' which is a law of Nature, and the only true basis upon which the science of sanitation can possibly stand firm.
The householder can do piecemeal what no public authority has ever succeeded in doing wholesale, albeit that millions of money have been wasted in silly attempts.
Why should not the householder be encouraged? One method of encouragement would be to allow him to pay for water by meter, if he be so minded, exactly as he pays for gas. Such a measure as this would effectually solve the water difficulty everywhere.
On referring to p. 113 it will be seen that in 1873 I paid 6l. 8s. per annum for water. As there were no fixed baths and washing was not done at home, I reckon the water consumption was not more than seventeen gallons per head per diem.
In 1873 my household averaged nine persons, so that the yearly consumption of water was not more than 9 × 17 × 365 = 55,845 gallons (say 56,000), which, at 6l. 8s., means about 2s. 3d. per 1,000 gallons.
In 1896 I reckon that my household averaged four and a half persons, and that the yearly consumption of water was 28,000 gallons, which, at 7l. 10s. 6d., means very nearly 5s. 6d. per 1,000. Suppose that this house stood in the country, and that it were possible to adopt dry methods of sanitation, this would reduce the water consumption by about one-third, say to 12 gallons per head, or 19,000 [119]gallons a year for the household of 1896. At a shilling per 1,000 gallons, which I believe is a fair price, the water bill would fall to 19s.
At a shilling per 1,000 gallons, twelve gallons per diem, or 4,380 gallons per year, would cost 4s. 4d. per head, or a penny per head per week. If in a country place the rain-water were stored the annual cost for water would be still less.
It may be well to add the twelve gallons per diem allows for a daily sponge bath, and that on this quantity of water absolute domestic and personal cleanliness can be maintained. An excess of water is a pure luxury, and it should be remembered that sewage difficulties are largely proportionate to the amount of water which has to be dealt with.
The supply of water by meter would effectually check waste, which no by-laws and regulations can effect; and if the water mains were frozen, the water companies, very properly, would be the chief losers, and the householder would not be called upon to pay for that which he had never been supplied with.
In the matter of water 'enough is as good as a feast,' and it is idle to imagine that the public health will be improved by a reckless extravagance in this or any other direction.
Finally, is it not possible to consider the sanitary well-doer in the matter of sewerage rates? As it is, the householder who perfects and completes the sanitation of his house on his own premises, very possibly pays more than he who throws the whole of the trouble and expense on the public authority.
He who takes trouble in this matter is regarded as a fool by the majority, who say, 'He has got to pay rates; why should he bother.'
That the burden of public authorities and the pollution of rivers would be very much lessened by the recognition of the well-doer, there can be no doubt.
In considering the rating of a house for sewerage works it is clear that every sink, W.C., bath or gully discharging its contents into a public sewer ought to be charged, and such charge should be progressive; thus, if 5s. were paid for one such discharge hole, 7s. 6d. should be paid for the second, 10s. for the third, 12s. 6d. for the fourth, and so on. In this way a cottage with one kitchen sink only would pay 5s., but a mansion with, say, 10 sinks, baths, and W.C., would pay 8l. 2s. 6d. Such charges are analogous to the charges made by water companies, which are higher for the better class of house. If this or something like this were done, the fixed charges on the house would produce a considerable sum, which would go far towards paying the municipal bills for scavenging and sewering. The balance would have to be raised by a rate on the buildings themselves, which rate should be in proportion to the cubic contents of the buildings, without reference to their curtilage, because large curtilage tends to improve the public health more than all the clauses of all the sanitary Acts that ever were devised.
The cubic contents should alone be considered in making assessments for rates. If a man spend money in making his house more wholesome without increasing its size, and thereby increases its value, it is clearly not in the interests of the public health that he should be fined by the sanitary authority for so doing. Nevertheless this is done daily.
That a man should pay for so much water as he uses and for no more, and that he should pay the municipality for personal services directly in proportion to those services, seem to be two propositions so simple and so equitable, and so absolutely fundamental for all just dealing, that one [121]cannot be surprised at the trouble which follows the neglect of them.
Great as are the sanitary evils connected with overcrowding, it is probable that the moral and social harm which results from it is infinitely more important; and yet we find that our modern socialistic legislation does everything to encourage and nothing to discourage this greatest of sanitary and social ills.
It is strange that the cubic contents of a building should be a factor which is rigorously excluded from consideration when rating and building regulations are being considered. It seems to the writer to be obvious that it is by far the most important factor, and one which cannot be neglected if our municipal regulations are to have any permanence. The Metropolitan Building Act we have seen puts a premium on large buildings, by abolishing all restrictions as to curtilage, provided the building runs from street to street or from street to 'open space,' and never considers the enormous dangers of these large buildings in relation to epidemic disease and fire.
Every country place would do well to enact that—
- (1) The height of a house shall in no case be greater than the width of the street upon which it abuts.
- (2) Every house shall have a minimum private curtilage upon the ground level, and entirely free from buildings which shall equal the cubic contents of the house divided by 50.
In the second paragraph I have chosen 50 for my divisor, because the average width of a street and the average height of the four-storeyed house are not far from 50 feet.
Let us take the case of an ordinary four-storeyed house (with no basement) having an area of 20 × 50 and [122]50 feet high. Then the curtilage would be (20 × 50 × 50) / 50 = 1,000; i.e., the house must have a curtilage exactly equal to the area occupied by the building—a back yard probably, 50 feet deep and 20 feet wide. If in addition to the four storeys there be a basement of 12,500 cubic feet, then an additional 250 square feet of curtilage would be required, and the builder who is tempted to overcrowd would be constantly checked by the price he has to pay for his obligatory curtilage.
The high price of building land is largely due to there being practically no restriction as to the cubic contents permissible on a certain area.
If we take the smaller two-storeyed cottages, having a width of 15 feet, a depth of 25, and a height of 20 feet, then the curtilage would be (15 × 25 × 20) / 50 = 150, which is the minimum of the 'model' by-laws. If the builder put a basement to this cottage of 3,750 cubic feet, he would have to provide additional 75 square feet of curtilage, and thus a check would be put upon underground dwellings and high buildings which obstruct the light and air. On the other hand, there need be no restrictions on the height or cubic contents of any building provided its curtilage be ample.
If it were possible for the first house considered to have a height of 100 feet in addition to its basement, then, the cubic contents being 112,500 feet, the curtilage would have to be 2,250 square feet, and the house and curtilage combined would occupy some 3,250 square feet, or rather less than 1⁄13 of an acre.
It is probable that a comprehensive rule of this kind would satisfactorily keep builder and site speculator in order, while it placed a minimum of restriction on the originality and fancy of architect and builder.
Builders of houses wholly detached from other houses or boundaries by a distance equal to the height of the house should be allowed to escape altogether from the harassing 'model' by-laws and the tyranny of the surveyor.
I would say finally—
1. That overcrowding is the greatest of all sanitary evils, and far and away the greatest of all moral evils.
2. That whatever increases the cost of the dwelling inevitably increases overcrowding.
3. That overcrowding is facilitated by modern methods of sanitation.
4. That, unless the crowding of houses be prevented, great schemes of sewerage and water-supply will eventually make the health of a district worse instead of better.
5. That 'open spaces' and public gardens do not compensate for the lack of light and air in the dwelling or of curtilage around it.
What one may call municipal luxuries are not permissible if they permanently increase the cost of the dwelling.
If such luxuries be self-supporting they may be permissible, but it is clear to my mind that, as a rule, they should be left to be provided by private munificence or voluntary public subscription. They ought never to be paid for out of the rates.
The avowed policy of many municipalities is to practise a maximum of extravagance, in the belief that such extravagance benefits the poor, and these vicarious philanthropists receive a willing support from those who are directly interested in such schemes.
6. That if great schemes for sewerage, or water supply, or the provision of open spaces, be effected by loans which increase the rates for long terms, and thereby permanently [124]increase the cost of the dwelling, they will inevitably lead to a deterioration in the public health and morals. Some of these schemes facilitate overcrowding, while increased rates, by raising the cost of the dwelling, compel it.
7. Municipal ostentation is wholly indefensible. To build palatial offices costing a million and more of money, and thereby saddle the ratepayers with another loan, is indefensible. To buy a cocked hat for the mayor out of the rates (as did a less ambitious municipality) is equally indefensible, and serves no useful purpose except to raise a laugh.
We have been long accustomed to hear that our chief sanitary necessity in this world is pure water. This would be quite true if we were fish. But it is obvious that the purity of the air we breathe is of far greater importance than the purity of the water we drink, seeing that we must take a draught of air about twenty times a minute, while many of us do not take a draught of raw water from week's end to week's end.
If the huge death-rate of the Strand were due to impure water, we may be sure that there would be no lack of discussion thereupon; but as it is due to overcrowding, and the filthiness of the air consequent upon overcrowding, we hear nothing about it. To make any serious attempt to check overcrowding would interfere with trade, and therefore it is considered silly and futile to discuss such a matter. Any man who supposes that considerations of hygiene will be allowed to interfere with trade, is, I think, deceived. At all events, I have no such belief.
My sole object in discussing these matters is to warn country places against blindly following the lead of London in sanitary matters.
CHAPTER V
THE CIRCULATION OF ORGANIC MATTER[3]
It is quite impossible to define 'organic matter,' or to indicate the line, if there be any, between organic and inorganic.
Organic matter is the material of which living things are made. When a chemist analyses anything which is the product of life, whether vegetable or animal, he often speaks of his incombustible residue or ash as 'inorganic matter,' but this is clearly an arbitrary use of the term, for this incombustible residue has formed an indispensable part of one living thing, and may in due time be incorporated with other living things as something which they cannot do without.
It may well be that everything of which we have knowledge (even including the igneous rocks) has at one time or another formed part of a living organism, and it is certain that a large proportion of the commoner chemical elements may form a part, more or less indispensable, of the bodies and framework of plants or animals.
Oxygen, hydrogen, nitrogen, carbon, chlorine, sulphur, phosphorus, iron, sodium, potassium and calcium seem to be indispensable to almost every living thing. Many more of the elements are constantly found in some organisms, [126]while others, such as lead, mercury, silver, &c., may be temporarily incorporated with living bodies.
We shall deal mainly with those elements which are pre-eminently mobile, which are constantly changing and exchanging, combining and separating, and which are readily combustible. For practical purposes one might, indeed, use the terms 'organic' and 'combustible' to signify the same thing.
With regard to solid matter, the power of readily circulating implies a readiness of combustibility, but it must be remembered that there is no hard line between combustible and incombustible. This is a matter of temperature, and many things which are incombustible here are said to be blazing in the sun.
The combustion of organic matter may take place slowly, or with moderate rapidity, or with explosive violence.
When we burn coal, which is a vegetable product, we find that the carbon and hydrogen escape as carbonic acid and water, accompanied by nitrogen, sulphuric acid, and volatile hydrocarbons. The residue consists mainly of silica and alumina, which are removed from the furnace in the form of clinker and ash. The water ultimately returns to the earth in the form of rain or dew; the carbonic acid is ultimately absorbed by green plants, and, by stimulating the growth of these, helps to furnish us with more combustible material; while the residue is almost a waste product. Thus, in this example we find that the carbon and watery vapour readily 'circulate,' while the residue can only do so after a long interval of time, and is practically lost. The volatile hydrocarbons and sulphuric acid, being poisonous to herbage, are a source of practical loss rather than gain.
Let us take next the case of an animal, which is really [127]a living furnace, browsing in a field; as it browses we may often see the breath, which is the smoke of this furnace, laden with carbonic acid and water, escaping from its mouth and nostrils, and it is probable that the green leaves of the herbage absorb this carbonic acid almost as soon as it escapes, and, appropriating the carbon, return oxygen to the animal to help its respiration and combustion. The animal as it eats continues to grow and increase in bulk and value, whereas the artificial furnace in which the coal is burnt tends steadily to wear out and decrease in value. As it browses and grows, the droppings of the animal nourish the herbage which here and there, by patches of more vigorous growth and deeper green, afford sure evidence of the value of these waste products.
In this arrangement there is no waste, for both the animal and the herbage, by a process of mutual exchange and the circulation of organic matter, increase in value.
Not only is there no waste, but, strange as it may seem, there is a positive gain, with no loss whatever. The furnace and the fuel are both increased! This increase can only be apparent, and not real, for it is well known that although we may alter the form of matter, we can add nothing to and subtract nothing from the sum total of the world.
One would say that this apparent increase is due to the stimulating effect of the excreta upon the soil, which enables us to draw something extra from that inexhaustible storehouse of plant-food and water, and enables the animal to use these materials, instead of allowing them to drain to the springs, and so find their way to the sea. We know that a far greater proportion of the rainfall percolates through barren soil than through soil bearing crops. If this be so, there is a practical increase of the land at the expense of the water.
Again, we must remember that our knowledge of the sources of the gases of the atmosphere is not complete. It may be that all the oxygen of the air is furnished by the green leaves of plants, and all the carbonic acid by processes of respiration and combustion, but we are by no means sure of this. Of the sources of the atmospheric nitrogen we know nothing. Now it is certain that much of the carbon of the atmosphere is appropriated by the plants, and much of the oxygen by the animals. If among the herbage there be plants of clover, it is now certain that much of the atmospheric nitrogen will be drawn into the soil to nourish these plants and generally to increase their fertility. Whether the return of oxygen, carbon, and nitrogen is, in the long run, equal to the intake we cannot tell.
When, however, we ponder upon the gradual increase of vegetable soil or humus with which the bare rocks have been clothed in the course of ages, it is almost impossible not to come to the conclusion that the humus, and with it the fertility of the soil, has steadily increased at the expense of the sea on the one hand, and, possibly, of the atmosphere on the other. To put the matter in the form of question and in other terms, 'Does the Lithosphere increase at the expense of the Atmosphere and the Hydrosphere?' Does the land increase at the expense of sea and air? Be this as it may, it seems certain that by scrupulous return to the soil of all that comes out of it the resources of Nature are made increasingly available for the benefit of man.
When organic matter is mixed with water, a process of putrefaction and fermentation is started, and the organic matter, instead of undergoing oxidation, is reduced, and among the commoner products of this process are ammonia with sulphuretted hydrogen and marsh-gas, which are both combustible. These processes furnish us with other combustible[129] matters, among the commonest of which are the alcohols, the familiar products of fermentation.
It is interesting to note the tendency of organic matter, when mixed with water, to give rise to explosive and combustible products. Explosions in cesspools and sewers have occurred many times. When wet hay is stored in stack it catches fire. When we stir the mud at the bottom of a pond or river, bubbles of combustible marsh-gas rise to the surface. The coal measures are due to the storing under water of semi-aquatic plants which have been preserved by being silted up, and we know that coal is full of olefiant gas, marsh-gas, sulphuretted hydrogen and carbon monoxide, which are all combustible, and that the carbonaceous residue, charged with volatile and combustible hydrocarbons, forms the chief fuel of the civilised world. Peat is formed in ways analogous to that of coal, and the so-called mineral oils are certainly the products of organic matter which has been silted up.
These subterranean stores of combustibles, all of organic origin, are, as we know, prodigious in quantity. Nobody can predict the time which it will take to exhaust the coal measures of the world, and we know for a fact that the sacred fires of Baku on the Caspian, fed by subterranean reservoirs of naphtha, have been burning for centuries.
When we see the end of a tin of 'preserved meat' bulged, we know that the gas-forming organisms have been at work within, and when the bed of the lower reaches of the Mississippi rises as a small mud mountain, spluttering with carburetted hydrogen, we know that analogous forces have been in operation. It seems, indeed, to be a law of Nature that the ultimate destiny of organic matter is to 'circulate,' and that if it does not do so quietly, as in the ordinary processes of nutrition in plants and animals, it [130]merely bides its time, and ultimately attains its end with more or less destructive violence.
Nitre (nitrate of potash or nitrate of soda) is an organic product, and sulphur is an essential constituent of all or nearly all organisms. Of the three ingredients of gunpowder, two (charcoal and saltpetre) are, it is certain, of exclusively organic origin, and the third, sulphur, may be so also.
All the common combustibles with which we are familiar are certainly of organic origin, and one is almost forced to the conclusion that in this world life must have preceded combustion. If we are to explain what has been by what is, such a conclusion is irresistible. Are we quite sure that volcanoes, which are seldom far from the sea, are not fed by old deposits of organic matter which has collected in the primeval ocean, and, like the more recent coal measures, have been silted up?
What has been the destiny of the protoplasm of the countless animals and plants which are found in geologic strata? What part have ancient microbes had in the formation and disruption of the successive layers of which this earth is formed? These are questions which force themselves upon the mind, but which I will not attempt to answer. This biological view of the cosmogony which subjects the world, equally with all that is upon it, to the laws of development, evolution, and decay, does not, I believe, present so many difficulties as might at first sight appear.
Omne vivum ex vivo is a law of Nature, and all organic bodies spring from organic antecedents. Organic matter is our capital in this world, and the more frequently we can turn it over, and the more quickly and efficiently we can make it circulate, the more frequent will be our [131]dividends. If we burn organic matter we may get a good dividend of energy, but nothing further is to be expected. The construction of the furnace involves an outlay of capital, which steadily diminishes as the furnace wears out by frequent use. If we burn organic matter merely to be rid of it, we spend our money for the sole purpose of dissipating our capital. The function of fire is to destroy and sterilise.
If we mix organic matter with large quantities of water, we have to encounter all the evils and annoyance of putrefaction, and if, when so mixed, we send it to the sea, we have no material gain of any kind. We spend our money for the purpose of dissipating our capital.
We may place the water containing the organic matter upon the land, and in tropical countries this is done, with excellent effect, for the production of rice, a semi-aquatic plant, which, according to Professor Georgeson, Professor of Agriculture in the Imperial University of Tokio, is said to prefer its nitrogen in the form of ammonia. The same authority states that nitrification does not take place under water, and careful experiments carried out at Tokio show that sulphate of ammonia is a much better manure for irrigated rice than nitrate of soda.
In our damp climate sewage farming has proved a dismal failure, and the difficulties seem to increase with the quantity of water which has to be dealt with. Excess of water drowns the humus, and nitrification cannot go on in a soil the pores of which are closed by excess of moisture.
The living earth, teeming with aërobic microbes, must be allowed to breathe. It needs for this purpose a certain amount (about 30 per cent.) of moisture; but it stands drowning no better than a man does, and if it be drowned, agricultural failure is inevitable.
If we carefully return to the upper layers of the humus, in which air and microbes exist in plenty, the residue of [132]everything which we extract from it, we inevitably increase the thickness of the humus and its fertility. Our capital increases, and our dividends increase and recur with a frequency which depends upon the climate.
With thrifty and high cultivation it may, indeed, prove profitable to compensate defects of climate by the use of glass and artificial heat.
The part played in the economy of Nature by fungi and bacteria—the new learning of the last half-century—is an addition to human knowledge which is destined to revolutionise our views of many natural phenomena. It has already exercised enormous propulsive power on human thought, and has stimulated our imagination scarcely less than when, to use the words of Froude, 'the firm earth itself, unfixed from its foundations, was seen to be but a small atom in the awful vastness of the universe.'
This knowledge has provided us with a new world, peopled with organisms in numbers which, like the distances of the astronomers and the periods of the geologists, are really unthinkable by the human mind. Their variety also, both in form and function, is, for practical purposes, infinite.
When, with the help of the many inventions of the optician and the dyer, we catch a glimpse of things which a few years back were 'undreamt of in our philosophy,' and when we reflect that these organisms are certainly the offspring of 'necessity,' and are probably mere indications of infinities beyond, we cannot be too thankful for the flood of light which these discoveries have shed upon the enormity of human ignorance.
The lower animals and the lower vegetable organisms (fungi and bacteria) co-operate in a remarkable way in the circulation of organic matter.
In the autumn the gardener, with a view to what is [133]called 'leaf mould,' sweeps the dead leaves into a heap, where they are exposed to air and rain. This heap when thus treated gets hot, and last autumn I found that the temperature of such a heap had risen in the course of a week or so to 104° F., and remained at a temperature considerably above that of the surrounding air during the whole winter. On turning it over after a month or so one found in it a large number of earthworms and endless fungoid growths visible to the naked eye, and one felt sure that it was swarming with countless millions of bacteria, invisible except to the highest powers of the microscope. In the beginning of March this heap, much reduced in size, was spread loosely over a patch of ground which was previously dug. If one examined that ground to-day one would scarcely recognise the structure of leaves, and in a few weeks more it will have become nothing but ordinary garden mould, and anything planted in it will grow with vigour. This is a familiar everyday fact.
We know also that noisome filth spread over a field by the farmer in the autumn or winter loses its offensiveness in a few days, and by the spring neither our eyes nor noses give us any clue to the cause of the fertility of the field which is covered with ordinary 'mould.' This process of 'humification' is largely due to earthworms and other earth dwellers, which pass the earth repeatedly through their bodies, and in doing so reduce it to a very fine powder. I have examined worm castings picked off a lawn, and which, after being slowly dried, have been gently sifted through muslin. Those who have never examined a worm casting in this way will be interested to know of what an impalpable dust the greater part is composed, and will also note the considerable size of the pieces of flint and grit which the animal has used in its living mill, and which have been separated by the muslin sieve.
These castings are full of microbes, and those who will take the trouble to scatter the smallest conceivable pinch of this impalpable dust upon a sterilised potato, after the manner and with all the precautions familiar to bacteriologists, will obtain an abundant and varied growth of bacteria and moulds, which will completely baffle their powers of enumeration and discrimination.
The greatest hindrance in the bacterial examination of the soil is this embarras de richesses, which makes the isolation of different species a matter of extreme difficulty.
The bacteria exist in the soil in countless millions, but it must be remembered that they get fewer as we go deeper. The first few inches of the soil are, in the matter of bacterial richness, worth all the rest, and at a depth of five or six feet they appear to be almost non-existent. The practical lesson which we have to lay to heart in applying this knowledge is that the upper layers of the soil are the potent layers in bringing about the circulation of organic matters, and that if we wish to hasten this process we must be careful to place our organic refuse near the surface, and not to bury it deeply, a process by which the circulation is inevitably delayed or practically prevented. If we bury it deeply we not only get no good, but we may get harm by poisoning our wells and springs.
It is the same with organic liquids. If these be poured on the surface, the 'living earth' (i.e. the humus stuffed with animal and microbial life) purges them of their organic matter, and transmits a relatively pure liquid to the deeper layers. If they be taken to the barren subsoil direct, as in underground sewers and cesspools, they escape the purifying action of air and aërobic organisms, and inevitably poison the water. Filthy liquids accumulating in cesspools and leaking under pressure to our wells have cost us health and money incalculable.
Liquids poured upon the surface cannot, owing to the crumby nature of the humus, exert any appreciable hydraulic pressure. This is a fact of huge importance in the practical management of organic refuse.
All effete organic matter instantly becomes the prey of animals and plants. The dead body of an animal teems with life—Le roi est mort, vive le roi. M. Mégnin, a skilled entomologist and a member of the French Academy of Medicine, has made a study, which is full of gruesome interest, of the living machinery which makes away with the bodies of animals not buried but exposed to the air and protected from beasts of prey.
M. Mégnin shows that the destruction of the animal is accomplished in no haphazard fashion, but that successive squadrons of insects are attracted by the successive stages of putrefaction.
The first squadron which arrives, sometimes before death and always before putrefaction, consists entirely of dipterous insects, house-flies and their relative, the blow-fly.
The next squadron are also diptera, and are said to be attracted by the commencing odour of decomposition. These squadrons use the carcase as a procreant cradle, and thus ensure the nourishment of the larvæ so soon as they are hatched. Amongst these flesh-seeking flies there are said to be specialists which prefer the flesh of particular animals.
The third squadron is attracted when the fat begins to undergo an acid fermentation. These consist of coleoptera and lepidoptera, beetles and butterflies, and among them is Dermestes Lardarius, the Bacon Beetle.
When the fats become cheesy the diptera reappear, and among them is Pyophila Casei, the fly which breeds jumpers in cheese, which is accompanied by a beetle, whose larvæ are connoisseurs in rancidity.
When the carcase becomes ammoniacal, black, and slimy, it is visited by a fifth squadron of flies and beetles.
And these are succeeded by the sixth squadron, consisting of acari or mites, whose function it is to dry up the moisture and reduce the carcase to a mummy-like condition.
The dried carcase proves attractive to the seventh squadron, consisting of beetles and moths, some of which are the familiar pests of the housewife, the furrier, and the keepers of museums. These animals gnaw the softer parts, such as ligaments, and leave nothing but a fine powder behind them, which is in fact their dung.
The last and eighth squadron consists solely of beetles, which clean up the débris, in the shape of dung, shells, pupa cases, &c., of the seven squadrons which have preceded them.
M. Mégnin, being an entomologist and not a bacteriologist, deals exclusively with the insects concerned in making away with a carcase, but it is evident that bacteria work hand in hand with them.
There are many other instances which may be quoted of the co-operation of fungi with other organisms, and it is only of late years that we have appreciated the fact of symbiosis, or the living together of two organisms for the mutual benefit of each. This fact was first pointed out in so-called lichens, which are now shown to be complex bodies consisting of a fungus and an alga, living in symbiotic community for the mutual benefit of each.
It was next shown that the papilionaceous leguminosæ are unable to flourish without certain bacterial nodules which grow upon their roots, and by the instrumentality of which they can appropriate the nitrogen of the air, and thus the fact, familiar for centuries, that the leguminosæ leave the ground in a state of great fertility, while they are singularly independent of nitrogenous manures, has been explained.
But if the plants themselves are independent of dung, it is not so, apparently, with the symbiotic nodules, which seem to flourish far more vigorously in rich garden ground than they do in comparatively poor farm land. Thus Sir John Lawes has grown clover in a rich old garden for forty-two years, and has had luxuriant crops every year.
According to my own observation on the scarlet runner bean these nodules are more plentiful upon the roots which grow superficially than upon those which run deeply.
Symbiosis is observable in many plants other than the leguminosæ, and it is certain that many of our big forest trees depend for their nourishment upon fungi which grow upon their roots.
All animals appear to be symbiotic, for we all carry about millions of microbes, which must fairly be regarded as junior partners in our economy, and which we cannot do without. The microbe which has been chiefly studied—the Bacterium Coli commune—appears to be essential for certain digestive processes which go on in the intestines while we live; and when we die, this microbe is active in starting the dead body upon that cycle of events which is one form of the 'Circulation of Organic Matter.'
Now it is certain that the dung of all animals swarms with bacteria and allied organisms when it leaves the intestines, and it seems highly probable that excrement carries with it the biological machinery which is necessary for its dissolution and ultimate humification.
My friend, Mr. George Murray, F.R.S., the keeper of the Botanical Department of the British Museum, whose learning in fungology is well known, has kindly furnished me with an elaborate list of 139 genera of fungi which flourish on excrement.
Of these 139 genera, Mr. Murray has tabulated no less [138]than 628 species which are known to flourish on excrement.
Of the 628 species, 226 have been found on the dung of more than one genus of animals, but no less than 402 species of fungi are peculiar to the excrement of only one genus of animals.
Of these 402 species of fungi, 91 are peculiar to the dung of the ox; 78 to the horse; 68 to the hare and rabbit; 30 to the dog; 25 to the sheep; 28 to birds; 21 to man; 16 to the mouse; 9 to the deer; 7 to the pig; 7 to the wolf; and 22 to other animals.
This search for fungi in excrement is necessarily incomplete. In Mr. Murray's list it is evident that the greatest number of species has been found in the dung of animals which are domesticated and common, and which offer facilities to the fungologist. The numbers are startling, but when we consider that the dung of every living thing which crawls or burrows, or swims or flies, has properties which are peculiar to it, and which fit it to become the nidus of some peculiar fungoid or bacterial growth, the part played by fungi in the distribution and circulation of organic matter cannot be over-estimated.
The facts which have been recounted, and which seem to show that fungi and bacteria are necessary for the growth and development of even the highest plants and animals, and that fungi and animals are equally necessary for the dissolution of organic matter, point to the conclusion that the correlation of the biological forces in this world is no less exact than the correlation of the physical forces. The uniform composition of the atmosphere, except under special and local conditions, is a fact which tends in the same direction.
While it is impossible to over-estimate the debt which [139]agriculture owes to chemistry, we have, nevertheless, learnt from the bacteriologist that there are biological problems underlying the question of fertility, and that a mere chemical estimation of the constituents of organic manure is insufficient, by itself, to fix its manurial value. It is by the agency of bacteria that organic matter is changed into nitrates and other soluble salts, which are absorbed by the roots of plants and serve to nourish them. This change only takes place provided the temperature and moisture are suitable and the ground be properly tilled. Drought and frost arrest the change, and excess of moisture, by closing the pores of the soil, does the same thing.
Organic manures are economical in the long run, because if the weather is adverse they bide their time until the advent of 'fine growing weather.' If one season prove unfavourable, a large amount of the organic matter remains in the soil to nourish the next crop. This is not the case when soluble chemical manures are used.
That it is necessary to put dung upon the ground if we are to maintain the fertility of the soil has been the experience of all peoples in every age.
I will now allude to a diagram (fig. 35) which represents by a curve the yearly produce of barley, in bushels per acre, grown continuously on the same plots of ground for forty [140]years, but with this difference, that one plot (represented by the upper curve) received 14 tons per annum per acre of farmyard manure, while the other, represented by the lower curve, has been unmanured continuously. This diagram has been constructed from figures given by Sir John Lawes and Sir Henry Gilbert in the 'Transactions of the Highland and Agricultural Society of Scotland' for 1895. I have replaced fractions by the nearest whole figure. The fluctuations of both these curves are very great, and it will be noticed that they are exactly parallel to each other. This teaches us that weather is the most important factor in agricultural success, and shows the extreme danger to the farmer of 'placing all his eggs in one basket,' as has been done by the so-called farmers of the Far West, who have attempted to grow wheat only by the process of scratching the prairie, without returning any dung to the soil, and many of whom have been financially swamped by the first bad season.
Taking the average of the forty years, it will be found that the produce of the manured land averaged 49 bushels per acre per annum, while the unmanured land gave only 16½ bushels.
I might have added to the diagram a third curve showing the produce of that plot of ground which, of all those manured with artificials, gave the highest yield. The yield of this plot for the whole forty years averaged 46 bushels, or only 3 bushels short of the average yield of the plot treated with farmyard manure. If, however, we take the average yield of the three plots for each of the four decades comprising the forty years, the value of the organic matter becomes very manifest. Thus the yield for each decade was with
| Farmyard dung | 44·9 | 51·5 | 50·0 | 51·6 |
| Artificial manure | 48·7 | 49·4 | 42·8 | 41·5 |
| Unmanured | 22·2 | 17·5 | 13·7 | 12·6 |
It will be observed that the yield from artificial manuring only exceeded the yield from the farmyard plot in the first decade, when it showed an excess of 3·8 bushels. In the other three decades it was deficient by 2·1, 7·2, and 10·1 bushels.
The deficiency of the unmanured plot in each decade, as compared with the farmyard plot, was 22·7, 34·0, 37·3, and 39·0.
These figures are very convincing, and as practical agriculturists seem to be now agreed that farming is hopeless without an adequate amount of live-stock to furnish dung, no more need be said upon this head.
But is there no danger in using organic refuse, which may be infective and dangerous, as an application to the land? To this I should say emphatically 'No,' provided it be put in the upper layers of the soil, and the soil be tilled. Our organic refuse, when allowed to putrefy in water, and to trickle under pressure to our wells, or run direct into our sources of drinking-water, has turned millions of pounds into the pockets of members of my profession, but when rationally used as a top-dressing for the well-tilled soil it has never, that I am aware of, produced any harm.
I have tried to investigate this matter. Some five years ago I constructed a well five feet deep in the middle of a garden which is plentifully manured with all that is most loathsome to our senses. This well is lined to the very bottom with concrete pipes, further protected by an external coating of concrete; the junctions of the pipes are securely closed by cement, and there is a good parapet and efficient cover (see page 65 and figs. 22 and 23).
Now no water can possibly enter the well, except [142]through the bottom. The water in it is clear and bright, and since its construction no mud has collected on the bottom. The sides of the pipes also remain absolutely clean, so much so that when, in 1895, I showed this well to a party of scientific friends, some of them dropped a hint that it had possibly been scrubbed in honour of their visit. This, however, was not the case.
The water from this well has been examined three times chemically, with the result that it has been pronounced free from organic impurities, and three bacteriological examinations have been made, with the result of showing a bacterial purity which is quite exceptional. The last examination was made by Dr. Cartwright Wood in November 1895, and showed a very high degree of bacterial purity. The water was specially examined by Dr. Wood for the presence of Bacterium Coli commune, but with negative results. Dr. Wood writes: 'The results are exceedingly satisfactory, and I must admit surprised me very much.' A surface-well on this pattern has lately been constructed in a village near Andover, and the results, as far as the appearance of the well and water is concerned, seem to be entirely satisfactory.
When people live crowded together in cities, the difficulties connected with the cleaning of the houses are very great. After the invention of the steam-engine it was found possible to supply even the top floors of the highest houses with an ample supply of water. We accordingly abolished the scavenger, and adopted a complete system of water-carried sewage. In this way our houses have been cleansed, and our rivers and surface-wells have been fouled, and it is difficult to say whether at present there be a balance of advantage or disadvantage. We have had epidemics of cholera and of typhoid, and it is almost [143]certain that there is no one here present but has suffered in some way or other from the 'drains.'
The greatest drawback of this system is the fact that it encourages overcrowding of houses on inadequate areas, and, unfortunately, it is this fact which has rendered the system so popular. With water under pressure there is no need to provide houses with any back-door or back-yard, and there is no inconvenience in having excessively high buildings. The speculative builder, who has been relieved of all responsibilities in connection with sewage and water supply, has abundantly used his opportunities, and the happy ground-landlord has sold his land at large prices per square foot. We are shutting out the light and air more and more from our cities, and the crowding in the streets is making locomotion in them difficult. This overcrowding is a serious matter, and I will show what it means in London by means of a table and diagrammatic plan of the sanitary areas of London, with the mortality figures in the years 1892 and 1893, as calculated by Mr. Shirley Murphy, after due correction for abnormalities of age and sex distribution.
This table and plan (p. 144) shows at a glance that the mortality of London as a whole (taken as 1,000) is 14 or 15 per cent. higher than that of England and Wales, and that while some of the outlying districts, such as Hampstead, Lewisham, and Plumstead, have a mortality below that of England and Wales, the areas near the centre of London are all considerably above it; and some, such as the Strand, Holborn, St. George's-in-the-East, and Whitechapel, have a mortality as high as that of the worst manufacturing towns.
The danger of overcrowding is well shown by the explosive outburst of small-pox in Marylebone in 1894.
MORTALITY FIGURES
(Figures in small type show the population of the Sanitary Areas)
DR=Corrected Death Rate 1892 MF=Mortality Figures
| DR | MF | ||
| Hampstead | 14·2 | 657 | |
| Lewisham | } | 15·7 | 727 |
| Plumstead | } | ||
| Wandsworth | 16·8 | 778 | |
| Hackney | 18·1 | 838 | |
| England and Wales | 19·0 | 880 | |
| Paddington | } | 19·3 | 894 |
| St. George's, Hanover Square | } | ||
| Battersea | } | 19·4 | 898 |
| Kensington | } | ||
| Greenwich | 19·7 | 912 | |
| Camberwell | 19·9 | 921 | |
| Islington | 20·1 | 931 | |
| St. James's, W. | 20·2 | 935 | |
| Lambeth | 20·7 | 958 | |
| Hammersmith | 20·8 | 963 | |
| Fulham | 20·9 | 968 | |
| London (entire) | 21·6 | 1000 | |
| Chelsea | 22·0 | 1019 | |
| Rotherhithe | 22·2 | 1028 | |
| Woolwich | 22·8 | 1056 | |
| Poplar | 23·2 | 1074 | |
| St. Marylebone | 23·4 | 1083 | |
| St. Pancras | 23·5 | 1088 | |
| Mile End | 23·8 | 1102 | |
| Shoreditch | 23·9 | 1106 | |
| Bethnal Green | 24·1 | 1115 | |
| Bermondsey | 24·3 | 1125 | |
| City of London | 25·3 | 1171 | |
| Newington | 25·5 | 1181 | |
| St. Giles | 26·2 | 1213 | |
| Westminster | 26·6 | 1231 | |
| St. Saviour, Southwark | 26·7 | 1236 | |
| Whitechapel | 26·8 | 1241 | |
| Clerkenwell | } | 27·5 | 1273 |
| St. George's, Southwark | } | ||
| Limehouse | 27·8 | 1287 | |
| St. Martin's in the Fields | 27·9 | 1292 | |
| St. Olave's | 28·1 | 1301 | |
| St. Luke's | 28·2 | 1306 | |
| St. George's East | 28·8 | 1333 | |
| Holborn | 29·7 | 1375 | |
| Strand | 33·4 | 1546 |
Fig. 36 represents part of the Asylums Board Map, in which each case of notified small-pox is shown by a black dot. This map shows that the outbreak was limited to two spots, one in Portland Town and one round [146]Nightingale Street, Edgware Road, where the density of population, according to Mr. Charles Booth, is over 300 persons to the acre.
Other maps published by the Asylums Board show that whereas the air-borne contagium, diphtheria, was confined more or less to the crowded districts, enteric fever, which is a water-borne contagium, was evenly spread over the whole parish. It need hardly be said that the enforcement of vaccination, notification, and isolation, is important in proportion to the density of population. The working of the sanitary laws is a great expense to the ratepayers. I find it stated, for instance, in the report of the Asylums Board, that for the removal of the 260 small-pox patients from Marylebone the ambulances travelled nearly twenty miles for each patient, and collectively 5,200 miles, or about the distance from here to Bombay. Overcrowding is not cheap, and I find, by a reference to the report of St. Marylebone, that whereas in 1871 that parish, of about 1,500 acres, and with a diminishing population, could be 'run' for about 660l. a day, it now costs about 1,100l. per day. It is right to add that the parish has no control over a great part of the expenditure, but, nevertheless, 440l. per diem is a fair sum to place upon the shrine of progressive municipalism.
If infectious disease occurs in our houses we have only to notify, and the parish does the rest. We have put a premium on fever, and the lucky man whose house is visited by a mild scarlatina is rewarded by having his family maintained for six weeks at the public expense, and his whitewashing done by the parish. If, on the return of a child from the hospital, another child catches the disease, he can recover damages.
The Asylums Board is probably the most pauperising institution ever conceived, but we are such cowards in the [147]presence of disease that financial and moral considerations have but little weight, provided the unclean be removed.
Another great drawback to the water-carriage system of sewage is the increasing difficulty with regard to water supply. Our needs per head per diem in the matter of water have gradually increased to something like forty gallons, which many experts consider to be none too much. In London the air is so foul that rain-water is valueless for domestic use, and the water of the surface wells is too poisonous to drink, because we have neglected what I believe to be the most important of the principles of sanitation, viz. the keeping of organic refuse, whether solid or liquid, on the surface. The humus is the most perfect purifier and the best of filters, in virtue of its physical conditions and the life that is in it. We deliberately take our filth to the under side of the filter, and then complain because our surface wells are foul. The water companies are masters of the situation. Water is not paid for, as a rule, in proportion to the quantity used, because Parliament in its wisdom has decided that thriftiness in the use of water is wicked. The grossly overburdened ratepayer is now pricking up his ears to listen to the prattle about Welsh water schemes at the cost of 38,000,000l., and is congratulating himself that he is only a leaseholder, and that his bondage is terminable in seven, fourteen, or twenty-one years at most. Water carriage, in which the carrier is some sixty times more heavy and twenty times more bulky than the thing to be carried, is economically ridiculous (except in places where Nature has provided enormous quantities of water), and involves everyplace where it is tried in ruinous debt. Let us take an illustration.
A suburban district having 27,000 persons on 7,000 acres of land, or a population of less than four to the acre, mainly engaged in market gardening, has in the last ten [148]years borrowed 106,442l. for sewerage works. The only visible result to the inhabitants is that even country roads, with houses at ¼-mile or ½-mile intervals, have been dotted with foul-smelling manholes.
In 1894-5 the sum of 18,534l. 14s. 1d. was raised from rates, and of this there was spent 6,518l. 13s. 10d. for interest and repayment of sewerage loans, and 2,542l. 3s. 11d. for current expenses in connection with sewage. If to this be added one-third of the establishment charges (say 700l.), we reach a total of 9,860l., or more than half the sum received from rates.
The provision and maintenance of all the patent domestic gimcracks which water carriage involves, together with the necessarily increased bills for water paid by the householder, would probably double that sum, and we shall not be far wrong in saying that these 27,000 persons are spending 20,000l. a year for the purpose of throwing their capital into the Thames.
This doubling of rates has most seriously crippled the chief industry of the district, and the market gardeners feel severely the heavy extra charges which they are called upon to pay. These gentlemen, by putting much of the offal of great towns to its proper use, and converting it into food and wages for the poor, are doing a great work, but they are in a fair way of being ruined by the silly recklessness of our local governors.
On December 8, 1895, a writer in The Times pointed out that in 1895, as compared with 1890, 633,000 acres of land were either out of cultivation or had been converted into 'permanent pasture,' a term which implies a minimum cultivation. Of these lands there were in Essex over 31,000 acres, in Kent nearly 30,000, in Surrey 15,000, in Sussex 29,000, in Berks 20,000, in Bucks 11,500, Herts 7,600, Middlesex 5,500.
It is a noteworthy fact that in the eight counties nearest London, which provides for them an insatiable market, nearly 150,000 acres of land should have glided out of cultivation in the last five years. It is impossible not to believe that the local rates in places near London are the last straw upon the back of the agriculturist, who is ruinously taxed in order that his land may be starved. To show what suburban agriculturists have to bear in the way of local taxation I will quote from my little book, 'Essays on Rural Hygiene,'[4] a few figures showing what is paid by a gentleman who farms 200 acres of land, of which 15 are grass:
| £ | s. | d. | |
| Income Tax (at 6d.) | 47 | 4 | 9 |
| Land Tax | 24 | 16 | 8½ |
| Poor Rate | 123 | 0 | 5 |
| Burial Rate | 19 | 13 | 8 |
| District Rate | 83 | 1 | 11 |
| Tithe (considered low) | 15 | 11 | 4 |
| —————— | |||
| £313 | 8 | 9½ | |
The social problems of the present day are many and complicated, and all of us have heard of 'Distressed Agriculture,' 'Pauperism,' 'The Aged Poor,' and the 'Unemployed.'
The agriculturist, who is being burdensomely taxed in order that his land may be starved, now has part of his rates paid for him out of the Imperial Exchequer. No one who knows the straits he is in will grudge him this relief. But the paying of local charges out of Imperial taxes has the inevitable result of making our 'Local Boards' more and more extravagant, because they have the spending without the trouble of raising money.
The reform most needed in the interest of agriculturists and others is to put an effectual check upon the [150]extravagance and ostentation of Local Boards and District Councils, and to see that they spend no more money in any one year than they can raise in their districts. These bodies are now obliged to submit their accounts to a proper audit and to publish them, and it is hoped that the ratepayer will subject them to close criticism.
The policy of allowing persons who are elected for three years to raise loans and plunge a district into debt for a period of thirty years without one iota of personal responsibility is obviously dangerous. To allow reckless borrowing for the construction of works which are a source of expense and waste, and never of profit, would be called madness in private life.
Doubtless a seat on a Council which borrows money in lots of 100,000l. at a time affords a delightful amusement to the idle man, the busybody, the faddist, the philanthropist with a mission for fumbling in other persons' pockets, and the prophet who is ever anxious to borrow in order to provide for the future of which he is ignorant. Your prophet is the most dangerous of these persons, and instances will occur to the minds of most of us of municipalities which have been half ruined by over-sanguine persons endowed with speculative minds and persuasive tongues. The risk run by these persons is so small, be it remembered, that if an aggrieved ratepayer makes them defendants in an action, they enjoy the unique privilege of paying part of their costs and damages out of the successful plaintiff's pockets.
Most of the local borrowing in this country has been for works of sewerage, and although such works are financially ruinous, we are told that we get a dividend of 'Health.' This, however, is not true, and nobody could expect health to emerge from a system of which putrefaction and overcrowding are the chief characteristics.
The application of organic matter to well-tilled soil leads to positive gain and definite increase. The soil is the only permanent source of wealth in this world. And we are all of us absolutely dependent upon it for existence and happiness. The soil, if properly tilled, provides health as well as wealth, and be it remembered that in proportion to its productiveness so is the need of labour; and further, be it remembered that long after the eye is too dim and the hand too slow to keep time with steam machinery, the physical powers are amply sufficient for the cultivation of the land.
Many of our pressing social problems are inextricably linked with our duty to the soil, and any country in which the fertility of the soil does not increase cannot be rightly regarded as really in the van of civilisation and scientific progress. We are probably the wealthiest country on the globe, because for some time past we have been the hub of the entire financial world. Our success in one direction is no excuse for neglecting the more certain sources of wealth, and it is to be hoped that it will soon be regarded as evidence of neglect of our moral obligations to allow the land to drift out of cultivation.
CHAPTER VI
THE SOIL IN ITS RELATION TO DISEASE AND SANITATION[5]
In dealing with the relation of the earth to disease it behoves us to move with caution, and we shall do well at the outset to admit that there is very little knowledge of the subject which can be regarded as certain. We are in the land of conjectures, surmises, and plausible hypotheses, which perhaps are leading on to certain knowledge, but it will be necessary to check the dicta of the laboratories by experience gained outside of them. Such has always been the admirable custom in this country, where the labours of the pure scientist have been checked by that truly excellent staff of workers, the medical inspectors of the Local Government Board, to whom the world at large is more deeply indebted that perhaps it is aware. Before we blame the earth for causing us harm we must be sure that the facts, or alleged facts, of the bacteriologist are supported by the experience of the practical epidemiologist. Science unchecked by practice will certainly lead us astray in the future, as it has done in the past, and just as a 'lie which is half a truth is ever the blackest of lies,' so a new scientific fact imperfectly understood has potentialities for evil which are unbounded.
If we set aside for the present the question of malaria, [153]which is undoubtedly primarily connected with certain soils, we have very little evidence that any other disease of practical importance is primarily connected with the soil. There appear to be two microbes which are present with tolerable constancy in the upper layers of the soil, and which, when applied to a raw surface or injected hypodermically, may cause tetanus and malignant œdema; but as yet we are without any evidence that either of these diseases can be caused by drinking water which has percolated through the soil, or can rise as a miasm from the soil. They concern the surgeon mainly, and from the point of view of epidemiology are unimportant.
Phthisis, or rather death from phthisis, which is not quite the same thing, is said to be more prevalent on damp soils than on dry ones, and it has further been said that the death-rate from this disease has been reduced in certain towns by sewerage. This statement is not universally accepted, and even if it be true it does not necessarily inculpate the soil because damp soils are cold, and patients with phthisis or any chronic lung trouble are very intolerant of cold and damp. It is very generally recognised that phthisis is prevalent in proportion to overcrowding, and that it is conveyed by tuberculous milk or meat seems to be certain as the result of recent experimental work. Any charge against the soil itself is as yet not proven.
Diphtheria has been said to be prevalent on certain soils, but this assertion is now discredited, and we recognise that the great cause of its spread is overcrowding. Its habitat, if it has any, outside the animal body is not yet known.
Anthrax, which is due to a spore-bearing organism, can certainly be conveyed to animals browsing on grass soiled by the dung or blood of infected animals. The bacilli seem to die in the carcase of a dead animal within three days [154]after death; and as, for spore formation, the free access of air and a temperature of 70° F. are necessary, it is not likely that this goes on in the earth. Pasteur's assertion that anthrax spores may be brought to the surface by earthworms is discredited by Koch and others. Man, I believe, has never been infected with anthrax except by direct inoculation or, as in the wool-sorter, by inhaling spores from infected wool or hides. Clearly, animals should not be allowed to browse in an infected field, and such fields should, where possible, be ploughed up and converted from pasture into arable land. The danger of burying animals dead of anthrax is considered unworthy of credence by those eminent veterinary authorities, Professor Brown and Professor McFadyean, and the latter has shown that the process of putrefaction is fatal to the virulence of the tissues of the dead animal when these are inoculated into other animals or administered by the mouth.
Enteric fever and cholera bear a close resemblance to each other in their mode of spread, and they are both recognised in this country as mainly, if not entirely, water-borne diseases. Whether this be absolutely the case in the tropics I will not pause to discuss, because I am ignorant of the conditions of tropical life; but it is known that at present the water-borne theory, as against the air-borne theory, is receiving more and more support in India. That these diseases are produced in most cases by the direct infection of water by the excreta of infected patients is in Europe very generally acknowledged. The cholera epidemics of 1848, 1854, and 1866, and the more recent epidemic at Hamburg, strongly support the water-borne theory of cholera, and the enteric fever epidemics which afford similar evidence in this country have been so numerous that it is unnecessary to particularise. The spread of both these diseases seems to be favoured by conditions of [155]filth and overcrowding, and the existence of a filthy and sodden condition of the soil has been often spoken of in connection with them. Nevertheless, there have been very few outbreaks of enteric fever in which the fact that cesspools, sewers, or underground middens have been in direct communication with the sources of water has not been detected. If, as seems highly probable, typhoid fever may be conveyed by sewer air, there is nothing improbable in the suggestion that it can be conveyed by the air of privies or middens in which fæces are allowed to putrefy. That typhoid fever poison can lurk in properly-tilled ground seems very unlikely, and I am not aware that such a thing has ever been suggested. Pettenkofer's statement, that epidemics of typhoid fever and cholera follow depressions of the ground water may be true for Munich, but it has not been materially supported in this country; and, in Budapest, Fodor has found that these diseases are more prevalent when the ground water is high. The variations of level in the ground water depend upon such a number of meteorological and other conditions, and give rise to so many and different effects, that even if Pettenkofer's statement be accepted it would not necessarily point to the earth as the natural habitat of the typhoid fever poison. Professor Lane Notter, in his summing up of this ground-water question, says[6]: 'It must, however, be borne in mind that it is not the ground itself which is the cause of the disease, but the impurities in the soil which the varying level of the ground water helps to set in action.' Now, no organic impurity can possibly reach the soil from the subsoil, which is purely inorganic. Any organic impurity which reaches the ground water must, therefore, come from above, and is due in the vast majority of cases to our mismanagement[156] of organic refuse. Dr. Sims Woodhead[7] says that 'the deeper layers of the earth are frequently almost entirely free from micro-organisms, just as is the ground water.' Of course if the soil of a city be porous, and if there be a subterranean network of sewers interspersed with cesspools, this would (in the high probability that an average proportion of these contrivances leak) constitute a very great danger, but we must not blame the earth because we mismanage it. The earth, be it remembered, is our sole permanent source of wealth, and we must not needlessly quarrel with our bread-and-butter.
This world would not be habitable were it not for the humus with which its bare rocks are clothed. The humus is the living covering of the skeleton, and its formation has taken ages. The primitive bare rock which has been 'weathered' by the changing seasons gets clothed with a growth of lichen. This thin but rough covering entangles stray particles, and thus by its own decay affords a nidus for a stronger growth. This stronger growth, by chemical action and physical force, works further into the rock, on which the soaking rains and rending frosts have an increasing effect, and thus, partly by the disruption of the inorganic rock, and partly by the increase in ever-growing quantities of vegetable decay, the humus rises, as it were, 'on stepping-stones of its dead self' until it is able to afford footing and nourishment for the stately forest tree, and its fertility finally becomes sufficient to attract the attention of the husbandman. This humus, the loose, mainly organic covering of the rocks, is formed, as we have seen, by crumbling rocks from below and by the constant additions of dead organic matter which are deposited upon the surface. These additions of organic matter, be they in the form of dead animals, dead leaves, dung, or what not, become [157]humified, and thus the stock of humus tends steadily to increase. The greater the stock of humus the greater the fertility, and the greater the fertility the greater will be the amount of dead organic matter to increase the stock of humus. The conversion of the dead organic matter into humus is a biological process, and is caused by the animals which live in the humus, and is perfected by the growth of fungi. On this account I ventured some years ago to speak of the humus as the 'Living Earth,' and I take it that no more important addition has ever been made to the stock of human knowledge than the recognition that the humus teems with life, and that its fertility and healthiness depend entirely upon biological processes. If the humus be sterilised, either by heat or antiseptics, it becomes absolutely barren. It was at one time supposed that the fertility of the soil depended mainly upon the process of nitrification, whereby nitrogenous organic matter is converted into soluble nitrates which are absorbed by the roots of plants, and there can be no doubt that these nitrifying organisms are most important. The causes of the fertility of the soil are probably far more complex than we suppose, and I think it may be said that we are as yet only upon the threshold of our knowledge with regard to them.
The phenomenon of 'symbiosis,' or the living together of chlorophyll-bearing plants with those which have no chlorophyll in so-called symbiotic community, where each partner works for its fellow's good as well as its own, is far more common than was supposed. Originally demonstrated in so-called lichens, which really consist of symbioses of fungi and algæ, it was next shown in the papilionaceous leguminosæ, whose nourishment appears to be largely dependent upon so-called bacterial nodules which grow upon their roots, and, according to my observations, more upon the superficial roots than those which run more deeply. In [158]Oliver's edition of Kerner's 'Natural History of Plants'[8] will be found an account of symbioses between fungi and big flowering plants in which 'the division of labour consists in the fungus mycelium providing the green-leaved phanerogam with water and food-stuffs from the ground, whilst receiving in return from its partner such organic compounds as have been produced in the green leaves.' 'The union of two partners always takes place underground, the absorbent roots of the phanerogam being woven over by the filaments of a mycelium.... As the root grows onward the mycelium grows with it, accompanying it like a shadow.... The ultimate ramifications of roots of trees 100 years old and the suction roots of year-old seedlings are woven by the mycelial filaments in precisely the same manner.' It is stated that many plants only flourish in symbiotic community, and in this fact lies the explanation of the readiness of some plants to grow and flourish from cuttings put in sand, or from seedlings grown in nutritive solutions, while others, in the absence of the necessary fungi encircling their roots, cannot be made to strike root or flourish in this way. When it is stated that to the latter class belong oaks, beeches, firs, willows, poplars, rhododendrons, and heaths, the importance of symbiosis in this world will be readily understood. Now we know why it is that the gardener prizes leaf-mould in spite of its being comparatively poor in nitrogen as compared with guano. Leaf-mould is full of fungi, and in it the plant readily establishes its requisite symbiosis.
This great and astounding fact of symbiosis, of which we have only recently had cognisance, will serve to enforce the steadily growing opinion that the sphere of the chemist is in all living processes strictly limited. In estimating the value of artificial manures the chemist's dictum is of the [159]greatest value, but his analysis when used to gauge the value of the living humus may be entirely misleading. The chemist has told us again and again that the quantity of nitrogen in humus and in earth-closet soil is, as compared with many artificial manures, comparatively small, and therefore the mistake has been made of regarding human fæces and the product of earth closets as of small manurial value. I believe that such a statement is most misleading, and on this point I claim to speak with no inconsiderable experience. For the past ten years I have cultivated a garden of about an acre and a quarter in extent in which the only manure used has been the excremental and other refuse of some twenty cottages with about 100 inhabitants. In August 1895 I invited a party of the British Medical Association to view that garden, and I think that none of my guests on that occasion will refuse to admit that the garden was as full of crops of one kind and another as a garden could well be. Dr. Voelcker, the chemist of the Royal Agricultural Society, whom I had the honour of numbering among my guests on that occasion, told me that he had never seen a piece of ground more fully stocked, and he very kindly went carefully round the garden with me to see if his experienced eye could detect any sign of sickness in the soil. I have never detected any such signs, and neither could he. The garden affords no evidence of being overdone with manure, and my belief is that it would take a great deal more. This ten years' experience has convinced me that human fæces constitute a manure of the greatest value, all analyses to the contrary notwithstanding. The probable explanation lies in the fact that the microbes extruded with the fæces are of great value in developing the fertility of the humus.
Many recent experiences in sanitation and in medicine [160]force upon us the conclusion that the value of chemical analysis in biological questions is not final. Water which has been found to contain the bacillus of typhoid fever has passed the tests of the chemist, and there can be little doubt that in the past many samples of wholesome water have been condemned for containing the products, in the form of nitrates, of oxidised organic matter. Again, the action of toxins and antitoxins is quite beyond the reach of the chemist, and the marvellous results which have been obtained by administering thyroid extract teach us that in dietetics there is something which the chemist cannot gauge. Raw thyroid and cooked thyroid would give the same results on analysis, but how different is the physiological result! How different is the action of the carefully dried stomach of the calf in the form of rennet or pepsin as compared with a dish of tripe! These facts must force upon us the speculation that the same thing may produce very different effects according to the temperature to which it may have been artificially raised by drying under a vacuum or by cooking, and must drive us to the conclusion that although it may be advisable under certain circumstances to boil our milk or our water, it is possible that the act of cooking may change, we know not to what degree, the physiological action of the milk or water which has been thus treated. My experience tells me that the chemists are wrong when they say that human excreta are of small manurial value. Their analyses are doubtless right, but their conclusions are erroneous and very dangerously misleading. In this statement I should be supported by the whole of the 'Far Eastern' nations.
The ultimate manurial value of urine is doubtless very great, although when pure or nearly pure it is very deadly to herbage. The only satisfactory way of using urine as a manure is to imitate the farmer, by mixing it with an [161]absorbent material, such as straw, sawdust, peat, earth, paper, cotton waste, wool waste, &c., placing it upon the surface of the ground and digging or ploughing it in.
The best evidence that the humus is alive is the fact that it breathes. The fungi which are destitute of chlorophyll absorb oxygen and give off carbonic acid, in this respect resembling animals and differing from the chlorophyll-bearing plants. The most easily obtained evidence of this is the fact that decaying refuse generates heat, a fact which is easily ascertained by using a thermometer. Thus I have at present in the garden of my cottage in the Thames Valley a heap of privet leaves intermixed with a quantity of fine twigs which give it great porosity and serve to admit a large quantity of air. On the morning of October 21 the temperature of the air was 39° F., and the temperature of the heap of leaves was 57° (18° more than the air). On October 22 there was a heavy cold rain with a cold easterly wind. On the morning of October 23 the temperature of the air was 40° and the temperature of the heap of leaves was 56°. On the night of October 23-24 there was (for the time of year) a very severe frost. My heap of leaves on the morning of the 24th was solidified on the surface by the frost, but the temperature of the interior was 53° while that of the air was 30° (an increase of 23° over the air). This heap, it should be stated, is only a small heap, and would all go into a big wheelbarrow. On the morning of October 24, after taking the temperature of this heap, I turned it over with a fork, putting the frozen top in the centre and altering the position of the constituents of the heap. A quarter of an hour later the temperature of the heap was found to be 32°, and at seven in the evening it was still at freezing-point, or only just above it. The night of October 24-25 was again very frosty, as many as 12° of frost having been registered at a house close by. At eight [162]in the morning of the 25th, however, my heap of leaves showed a temperature of 40°, having risen 8° during this very cold night, and being 20° above the minimum cold recorded in the night. At 7 P.M. on the 25th the temperature of the heap was 42°, and the next morning, after a third very cold and frosty night, it had risen to 45°. The rise of temperature here was clearly due to the respiration of living things, and could not have been in any degree caused by absorption of sun heat. (Since the above was written autumn has come upon us, and the fallen leaves have been collected into a big heap. On November 15 the temperature of this heap was found to be 62° F., and a week later (November 22) had risen to 104° F.!) The fact that the humification of organic matter generates heat is a fact which is of enormous practical value to the gardener and farmer. The market gardens round London, which produce astounding crops and assimilate an enormous quantity of dung, are in a sense extended and mild hotbeds. One hopes that those who are advocating the burning of organic refuse will pause to think, however necessary such a process may be under certain circumstances, how great is the dispersion of energy which such a process involves and how much heat is lost which might otherwise be used for the stimulation of germination and growth in seeds and plants. One hopes also that those who would condemn as foul the humus which contains a large amount of carbonic acid will remember that this gas may only be an evidence of perfectly healthy and vigorous action. The important fact that the tillers of the soil are the most long-lived of all the laboring classes is one which must never be lost sight of.
That the humus breathes and generates an enormous quantity of carbonic acid precisely as an animal does is a fact which the agriculturist must ever bear in mind. Many of the operations of the farm have for their object the [163]loosening of the soil and the admission of air to enable the respiratory processes to go on. Every farmer will tell you that the earlier he can get upon the ground to hoe his turnips the better will be the crop (other things being equal), and every farmer knows the advantage of thorough tillage. If the respiration of the humus is an important fact, it becomes very important indeed not to drown it. It stands drowning no better than a man does, but, like a man, it requires a requisite amount, but not too much, to drink. There can be no doubt that the failure, which is almost general, of so-called sewage farming arises through the drowning of the humus; and it must be borne in mind that sewage water consists to a very considerable extent of water which has been boiled, or is hard, deep well water, and has not the valuable quality of rain-water of containing some 2·5 volumes per cent. of atmospheric air dissolved in it. There can be little doubt that the great trouble to the sewage farmer is the excess of water which drowns the humus. When three or four ounces of excrement are mixed with 1,200 times their weight of water they run small chance of humification, and one must fear that the difficulties of the sewage farmer (financial or agricultural, or both) must increase with the magnificence and extravagance of the water-supply of the town the sanitary interests of which the sewage farm is intended to subserve. The evil effects of too much water have come before me lately in two very striking examples. While going over the experimental farm belonging to Mr. H. C. Stephens, M.P., at Cholderton, on Salisbury Plain, this autumn (which I did in company with a large number of practical agriculturists), there were here and there noticeable in the middle of fields having a uniform quality of soil, and which had been treated in identical fashions, certain large patches over which the growth of turnips, as compared with the rest of the fields [164]was very defective. The explanation offered was that on these patches the animals had been folded in wet weather, that the dung had been trodden into the ground, and the soil had been hardened and consolidated by the trampling of the beasts. Under such conditions (air not being adequately admitted to the pores of the soil) the humification of the dung had been hindered and the crops stunted in consequence. This was a fact new to me, who am only an amateur agriculturist; but I may state that it was unanimously and unreservedly accepted as an adequate explanation by all the farmers present, who seemed to be perfectly familiar with the consequences of folding cattle in the wet. On the other hand, the most fertile patch of the whole farm was where the cattle had been folded for a fortnight continuously on the same spot during the severe frost of last winter, and had been fed upon food which was necessarily brought to them on that spot. The ground being as hard as iron could not be more consolidated by trampling, and with the advent of the thaw there was a general disruption of soil and dung, and humification went on rapidly in earth of which the pores had been opened by the beneficent effects of a deep frost, and which had received an amount of dung which was exceptionally great.
Another experience was a visit to a sewage farm belonging to a town in which brewing is the staple industry. This farm was large (nearly twice as big as at one time was considered necessary) and was composed of a very porous, gravelly soil in a high situation. The manager was an able man, and one felt that if success was to be obtained it was here. But the amount of water pumped on to this ground was exceptionally great, amounting at times to as much as 150 gallons per head of population per diem. The result can be imagined. The humus was drowned, and large tracts of the farm were as wet as a marsh, bore no crops, [165]and never could be made to bear any under such conditions. As soon as it had been saturated it was ploughed up and saturated again, there being no time (let alone other considerations) to grow crops in face of the huge volumes of water which had to be dealt with. Those parts of the farm which were under cultivation grew enormous quantities of water-grass, a noxious weed, and altogether the agricultural aspects of this estate were as gloomy as could well be. As for the effluent, it was thick and turbid, and stunk like a dirty brewery. It was impossible to believe that the effluent had been rendered safe for discharge into a river, and its cost must have approached that of the beer which was sold in the adjoining town. The amount of water seemed to be the trouble here, and clearly the first duty of the municipality would be to divert directly into the river all the storm water and all the water which was used in enormous quantities for refrigerating purposes, and which, being perfectly wholesome, might go into the stream direct. A visit to the pumping-station of this municipality was most unpleasant for the nostrils, and left upon me the impression that the Local Government Board would do well to insist that all sewage committees should have a board-room at the pumping-station and another at the farm, and should be allowed to deliberate in no other place. The humification of excrement in the presence of such an overpowering amount of water is impossible, and I believe that municipalities which are now busy diverting storm water will have to go further and deal with excreta, domestic slop-water, and manufacturers' effluents on different and separate systems. I confess I should like to see water-closets dealt with on an independent system by a vacuum principle such as is advocated by Shone and Liernur. Manufacturers' refuse, which is liable to contain chemicals and antiseptics, is so likely to kill the humus by poison as well as by drowning[166] that it seems impossible to deal with it on any one system, and it is to be hoped that with the advance of chemistry it may be increasingly possible to turn manufacturing effluents to profitable account.
It is now more than ten years ago since I first deliberately drew attention to the shortcomings of modern sanitary methods, and pointed out that the safe disposal of organic refuse was a question of which the biologist, rather than the engineer or chemist, would give us the solution. It is a hopeful sign of the times that engineers are now recognising this fact, thanks mainly to the teaching of the Board of Health in Massachusetts. The purification of sewage is wrought by the presence of living organisms on the filters; and for the due filtration of drinking-water it is now admitted that the filtering material must have a coating of living slime. These are facts which are now all but universally admitted.
Our go-ahead municipalities, formed on democratic lines, are more ostentatious than the worst of Roman emperors. The London County Council wished at one time to give 750,000l. for a site for its house! The central ideas of modern municipalism are the raising of loans and the sweating of the ratepayer. It must be remembered that there is no relation between magnificence and real efficiency. For example, in a town which I sometimes visit I am always interested by a stately pageant consisting of a huge conveyance weighing at least half a ton and looking like a cross between a railway truck and a hearse. This is drawn by a horse weighing 15 or 16 cwt., and this horse is guarded by two men weighing, perhaps, 12 st. apiece. Inside the hearse are eighteen huge pails weighing 40 lb. each, and inside the pails are the weekly excreta of ninety people, which should, if properly managed, certainly not weigh more than 200 lb. or 300 lb. In short, there are about [167]30 cwt. of gear for the removal of at most 3 cwt. of material. This cumbrous array works, it need hardly be said, at a funereal pace, and there can be no doubt that a lad with a hand-truck coming every day would do the work far more rapidly, efficiently, and cheaply.
It must be borne in mind that the fertility of the soil should bear a certain proportion to the density of population, and that the ability of land to support its population ought steadily to increase, especially if the population enjoys the blessings of free trade. I may perhaps best illustrate my meaning by referring again to the visit which I paid to the farm of Mr. H. C. Stephens, M.P. The down lands which comprise this district consist of a very few inches of humus overlying chalk, the herbage is scanty, and the population of animals (in relation to acreage) necessarily very small. One of the difficulties which the farmer has had to encounter in this district is the obtaining of sufficient water for his stock, and perhaps the most important work which Mr. Stephens has done is to sink a deep well in the chalk. This well, worked by a wind engine and provided with storage reservoirs, gives a supply of water which may be regarded as unlimited. With good water-supply, ample area, and the possibility of importing food which the neighbouring railway affords, it became possible to maintain a very large number of sheep, oxen, and horses for farm and breeding purposes. The animals are all folded, and the whole of their dung is returned to the soil, and the effect produced by this large addition of organic matter cannot fail to strike the visitor, who finds in spots where the herbage was previously so thin as to approach barrenness that he now has to wade knee-deep through a thick felt of grass. All over the farm the effect of adding this organic matter to the soil is everywhere apparent, and it is certain that the need of imported food-stuffs[168] for the animals must diminish in proportion to the increase of fertility of the farm. This estate on Salisbury Plain realises, in fact, the utopia of which I have spoken in 'Rural Hygiene'[9]—i.e., a place where there are water-pipes but no sewer pipes. The indispensable water has by skilful but comparatively simple engineering been brought within easy reach of the human and animal population, but the organic excrements and other refuse, instead of being washed away into a neighbouring valley to poison the inhabitants there, are retained upon the soil to provide extra herbage, extra meat, extra work, and extra wages, with increased contentment and no loss of health. The increased fertility of the soil must have the effect of counteracting poverty and diminishing that charge upon the land known as the Poor-rate, and as for sanitary rates, the very essence of the progress I have been describing consists in the fact that there are none to pay. When the members of the local council in this utopia have mended the roads and paid for the school they may return with a clear conscience to their own business, instead of meddling with that of other people.
The fact that the potential increase of the fertility of the soil is to a certain extent proportioned to the increase of population is a political and economical fact of fundamental importance. The fertility of the soil of a country which imports millions of tons of food ought steadily to increase, and I believe that but for counteracting circumstances free trade ought to have benefited the farmer equally with all other classes of the community. If the enormous quantity of excremental and refuse matters due to free trade had been placed upon the land to increase the national stock of humus the fertility of the soil must have increased proportionately, and the fall in prices due to the competition of imported food [169]would have been proportionately counteracted. If on the farm at Cholderton which I have been describing the well water had been used for washing all the excrement of the animals into the nearest river there could have been no increase of fertility of the soil, and the animals must have been dependent upon imported cake and other food-stuffs to a degree which would never vary, instead of, as at present, tending steadily to get less. Among the nostrums which have been suggested for the relief of agricultural distress are 'light railways,' but as imports and exports are apt to balance themselves, one would fear that the light railway, for every truss of hay or sack of corn which it conveys to the nearest junction, will bring back a frozen carcase of meat or its equivalent. If, however, these light railways (and the existing railways) can bring the refuse of the towns on to the land to increase the agricultural capital in the form of humus, the farmers will certainly have more to sell and our need of imported food (per head of population) will tend steadily to get less. Until—if I may use the expression—we make some serious effort to leave our imported 'cake' upon the land in a form in which it can be advantageously utilised, our needs for importation will never get less, and our state of scare as to the sufficiency of our Navy will get steadily worse as the population increases. It is very bad policy for railways to charge exorbitant rates for the conveyance of dung, because the less dung they import the less will be the export of produce on the return journey. It is impossible to doubt that the man who increases the fertility of the soil of a country deserves well of that country and should be encouraged by the State and his fellow-countrymen. Professor Otis Mason of Washington has gone so far as to say: 'The form of law which does not decrease the amount of taxation proportionally to the yield per acre is not in the line of progress.' And again: 'Any law which [170]punishes a man with taxation for preventing waste, recuperating worn acres, or developing the latent resources of nature, is wicked.' There can be no doubt that taxation presses very hardly upon agriculturists, especially those whose land happens to be within the boundary of a 'progressive' corporation. I have mentioned (p. 149) a friend who farms 200 acres of land (of which fifteen are grass) in the Thames Valley who pays more than 300l. a year in imperial and local taxes. This is due to the fact that he is under the heel of a 'progressive' board, which, finding it can borrow money at 3 per cent., is making full use of its powers and is fast converting a pretty village into something scarcely distinguishable from Houndsditch.
We may now profitably turn to the consideration of Malaria, a disease which is undoubtedly connected with the soil and which has its habitat in the soil of certain places. Malaria requires for its development decaying organic matter, a high or moderately high temperature, and usually an excess of moisture. Tropical marshes are the elected seats of malaria, but not the exclusive seats, for it is known that certain rocks and arid plains, as well as the sandy estuaries of rivers, are liable to be malarious. The one thing which all, or almost all, malarious districts have in common is the fact that they are barren, or nearly so, uncultivated, and in many cases uncultivable. Malaria is rare in England, but once it was common, and we must not forget that James I. and Cromwell are both of them said to have been victims of this disease, which was rife in London in their time, especially in the Essex marshes and on the south side of the Thames, in Lambeth Marsh and the adjoining districts. An undrained country is uncultivable, and it has been found that drainage followed by cultivation has in this country enormously lessened the amount of malarious disease. Cultivation of land finishes [171]the work begun by artificial drainage. The soil is dried and aërated by tillage, and the organic matter, when the humus is no longer drowned, is oxidised, and goes to nourish plants and trees, which effect an upward drainage no less important than the downward drainage, while the oxygen exhaled by the green leaves cannot but benefit the air of the locality. If we wish to keep clear of malaria in this country we must till the soil and so nourish the humus that its produce may be sufficiently valuable to bear the expense of any artificial drainage which it may be necessary to maintain. If the land of this country goes out of cultivation, as in places it seems to be doing, I see no reason why we or our successors should not witness a recrudescence of malarious disease in localities which are prone to develop it.
It will not be unprofitable in this connection to consider the history of the Roman Campagna. It is generally admitted that the Roman Campagna was not always the desolate waste which it ultimately became. It was prone to malaria, doubtless, but this was kept in check by the large farming population. It is not conceivable that in days when locomotion was slow a city could have attained the proportions and importance of Rome if it had been situated in the middle of a sterile and malarious plain. The neglect of agriculture began in the Augustan age, when Rome was at the zenith of her power, and it is worthy of note that Mæcenas is credited with having incited Virgil to write the 'Georgics' in order to direct, by this fascinating method, the attention of the Roman people to the neglected joys of agriculture. With the acquisition of fertile districts in Africa and elsewhere, not only did the need for home-grown commodities decrease, but it is probable that the profits of home farming decreased also. Corn was imported in enormous quantities, while the expenses connected [172]with the defence of the Empire led to such a merciless taxation of the landholder that in self-defence he was obliged to allow his land to go out of cultivation, and thus escape from the brutal exactions of the tax-gatherer. According to Gibbon, within sixty years of the death of Constantine 320,000 acres of the district of Campania had become barren. Further, there can be no doubt that the Cloaca Maxima and other cloacæ sent to the Tiber much, if not all, of the organic refuse which should have been returned to the land. Finally, there can be little doubt that the extravagant water supply of ancient Rome must have had the effect of causing neglect of local wells, and as the water of the aqueducts was supplied to places in the Campagna as well as to Rome itself, the discontinuance of pumping must have helped to leave moisture in the soil at the same time that an extra supply from a distance was giving an additional quantity to it. As these great works of engineering did away with the necessity of manual labour, and as the barren land stood in no need of husbandmen, it is not to be wondered at that the problem of the unemployed grew urgent in Rome. We hear that in the later days of the Empire the masses congregated at the baths or waited whole days at the doors of the amphitheatre while they were fed with doles of bread or corn supplied from the public granaries. With a dense idle population and with barren and unwholesome surroundings the amenities of Rome as an imperial residence declined, and on this account it was probably that Diocletian seldom visited it; and one cannot but think that the social and sanitary conditions of the capital were among the causes which led Constantine to abandon it in favour of his new city on the Bosphorus. Finally, one is not surprised to hear that when Alaric took the city in the beginning of the fifth century he did so, not by direct assault, but by seizing the huge granaries and [173]magazines at the Port of Ostia, and then offering to the unhappy Romans the choice of surrender or starvation. We are often asked to admire the Roman aqueducts, and Rome is not infrequently held up to us as a model to be copied. I fear we are copying her only too exactly, and I fear that equally with Rome we shall find out the futility of a brutal and reckless expenditure mainly directed towards the starvation of the soil and a senseless struggle with conditions imposed on us by Nature. I have heard it suggested that the cultivation of the soil of England is of no importance, that our islands are destined for residential and manufacturing purposes only, and that our sustenance is to depend entirely upon 'big-bellied argosies' bearing all the treasures of more fertile climes. But the cultivation of the soil and the nurturing of the humus have important bearings upon questions other than food supply, and if we continue to starve the humus and to convey our filth beneath it instead of upon it, I fear that the cost of living in this country is likely to increase, while the pleasures of existence will diminish.
The moral of all that I have been saying is to the effect that to nourish the humus and to till it are the inexorable duty of the sanitarian. This simple duty is the key to plentiful food and a good supply of wholesome water. Nature is relentless, and will sooner or later destroy those who neglect to follow her inexorable laws. We used to say that 'the weakest' (morally, physically, and mentally) 'must go to the wall.' Now we use the expression 'survival of the fittest' to express the same idea. Nature does not relent, but man, in his commendable efforts towards philanthropy, endeavours to relent, and hence the principle underlying much modern sanitary work is the attempt to bring about the survival of the unfittest. If I may judge from the criticisms to which at one time and another the [174]ideas which I have put forward have been subjected, I may conclude that the principles advocated are considered right, but that the lowest classes of our population are not to be trusted to safeguard to any extent the wholesomeness of their homes. Therefore we are all asked to come down to the level of the dirtiest and most careless, and our sanitary methods (in which there is too much of Hercules and too little of Minerva) do not admit of any encouragement being given to those living within a municipal boundary who may be so circumstanced that they can adopt the principles I have advocated. No! we must all be tarred with the same brush, and no quarter is given to those who refuse to allow the municipality to be put to the trouble and expense of robbing them of stuff which they find invaluable on their own land. In Hampshire I have spent a considerable sum of money in freeing the river from some pollution and saving trouble to the town. Incidentally, I have improved the value of a house, and, of course, the rates of that house have been raised. Such a fact is a most effectual check upon the vast majority of those who might wish to imitate what they may approve of in principle, and I feel assured that no real advance in sanitation will be made until there is an equitable adjustment of sanitary rates and we have the right, if we desire it, to pay for water by meter. That water should be paid for according to rateable value, and that the rating authority and the water authority should be identical, seems to me to be an arrangement which the ratepayer will possibly find irksome. The greatest of sanitary troubles in the present day is overcrowding, and this trouble is greatly fostered by our methods of sanitation. And yet we find responsible persons suggesting that open spaces should be taxed at 'site value,' while at the same time they are willing to spend any amount of millions in bringing water from Wales because they think that eventually[175] their dangerously dense population will have a density twice as great. We shall some day recognise the futility of fighting against Nature. It is the engineer's business to overcome natural obstacles, and we of the medical profession cannot but have the greatest admiration for the many distinguished members of that sister profession which, by its skill and daring, has in countless ways assisted the development of our commerce and manufactures. They have, indeed, 'expelled Nature with a pitchfork,' but it behoves us to remember the rest of the quotation. We must distinguish also between brilliancy of achievement and the end attained. We all of us admire the brilliant men who made the Thames Tunnel, built the 'Great Eastern' steamship, and gave us the luxury of the broad-gauge railway; but it is doubtful if the original shareholders in those enterprises would participate in our enthusiasm. Money will accomplish nearly anything in the engineering way, and it is not the engineer's business to consider the financial side of the question. I have always had a shrewd suspicion that Archimedes was possibly less admired by the Syracusan ratepayer than by the rest of the world, and I have often pondered whether, had he lived in these days, and had made his famous request of δὸς ποῦ στῶ, the Local Government Board would have sanctioned the issuing of a Syracusan 3 per cent. stock to provide the fulcrum for which he asked.
I frequently meet friends who say, 'I've been reading that article of yours about the earth,' and so forth, and then, after patting one on the back and being charmingly complimentary, they generally end by asserting that, after all, the convenience of the water-closet more than counteracts its disadvantages. The fascinations of this winsome apparatus seem unconquerable, and one is bound to confess that—provided the machine be of a good pattern and well made; [176]provided the plumber who sets it has knowledge and a conscience; provided those who use it do not try its constitution with brickbats and old boots; provided there is not a frost; and provided there is not a drought—it does sweep out of the Cockney's house material of the use of which he is ignorant, and for which he has no market. All the difficulties and dangers of the water-closet are on the far side of the trap, and do not trouble the householder. I feel inclined to paraphrase the words which King Lear used to something equally fascinating and, as he found, equally treacherous:—
As a champion of individual liberty, I would say that those who in country places wish for water-closets should pay for them, and those who, for conscience' sake, do not pollute the rivers or starve the soil should not be taxed to pay for the misdeeds of those who do.
FOOTNOTES
[3] Discourse delivered at the Royal Institution of Great Britain, Friday, April 24, 1896.
[4] Essays on Rural Hygiene, 2nd ed. 1894. Longmans.
[5] Delivered before the Nottingham Medico-Chirurgical Society on Oct. 30, 1895.
[6] Parkes' Hygiene, 8th edition, p. 10.
[7] Bacteria and their Products, p. 394. Walter Scott, 1891.
[8] Vol. i., p. 249.
[9] Essays on Rural Hygiene, 2nd edition. Longmans, 1894.
INDEX
- Andover, garden at, 37, 159
- — well at, 63
- Animals, housing of, 59
- Anthrax, 153
- Aspect of dwelling, 13
- Bacterium coli commune, 142
- Bedroom windows, 21
- Building regulations, 104
- — societies, 91
- Bungalow facing south, 13
- Cellarage window, 28
- Cellars, 27
- Cholderton experimental farm, 163, 167
- Cholera, 154
- Circulation of organic matter, the, 125
- Classification of refuse, 84
- Construction of wells, 61
- Corridors, the ventilation of, 9
- Cost of the dwelling, the, 112
- Defects in planning, 1
- Diphtheria, 153
- Dry catch privy, 39
- — method of treating urine, 49
- — methods, 32, 49
- — refuse, 89
- — urinals, 55
- Earth-closets, indoor, 44
- Enteric fever, 154
- Fauna of death, the, 135
- Filtration gutters, 78
- —, intermittent, 83
- Flora of excrements, the, 137
- Garden at Andover, 37, 159
- Generation of heat by decaying refuse, 161
- Hospital construction, 9, 10
- Hotel bedrooms, 19
- House, the typical London, 3
- Houses, damp, 26
- Housing of animals, 59
- Humification, 33
- Indoor earth-closets, 44
- Isolated dwelling, sanitation of the, 32, 41
- Larders, 30
- Local taxation, 147
- London house, the typical, 3
- — mortality, 144
- Malaria, 170
- Marylebone small-pox outbreak, the, 143
- 'Model' by-laws, 107
- Mortality, London, 144
- Overcrowding, 90
- — final conclusions, 123
- — remedies for, 115
- Pail system, the, 42
- Phthisis, 153
- Planning, defects in, 1
- Practical sanitation, 34
- Principles of slop-drainage, 75
- Putrescible fluids, 23
- Rates, cubic contents in relation to, 120
- Rating, 119
- Refuse, classification of, 84
- — dry, 89
- Roman Campagna, 171
- Rome, ancient, 171
- Rooms, living, 18
- Sanitation, practical, 34
- — of the isolated dwelling, the, 32, 41
- Sewage farms, 164
- Slop-drainage, principles of, 75
- Slop-water, 69
- Soil, the, in relation to disease and sanitation, 153
- Strand, the, 101
- Symbiosis, 136, 157
- Taxation, local, 147
- Town dwellings, 87
- Urinals, dry, 55
- Urine, dry method of treating, 49
- Ventilation of corridors, the, 9
- Warming, 16
- Water by meter, 118
- Wells, construction of, 61, 141
- Window, bedroom, 21
- — cellarage, 28
PRINTED BY
SPOTTISWOODE AND CO., NEW-STREET SQUARE
LONDON
Transcriber's Notes
Minor punctuation and printer errors repaired.

